Hoppa till innehåll
Särö

Uppgången 2

Rymlig villa med stor och härlig trädgård

  • Typ: Villa, ett och ett halvplanshus
  • Rum: 6, varav 5 sovrum
  • Boarea: 284 m2
  • Biarea: 32 m2
  • Tomtarea: 1 504 m2
  • Byggnadsår: 1974
  • Driftkostnad: 63 793 kr/år
  • Upplåtelseform: Äganderätt

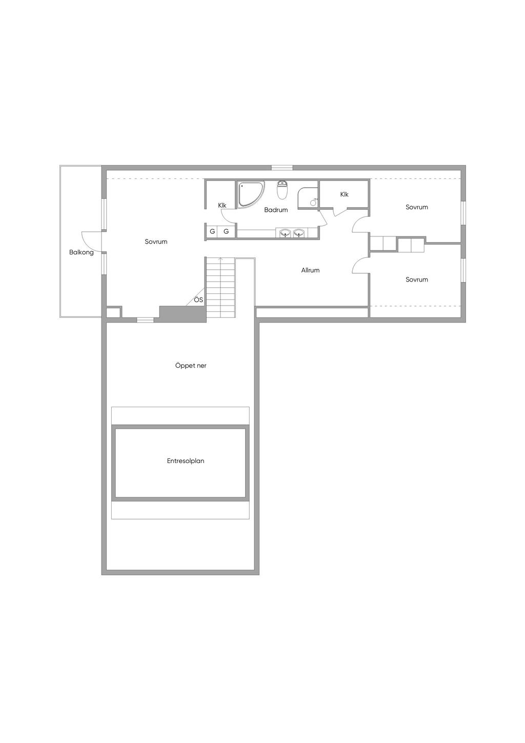
Varmt välkomna till Uppgången 2, en rymlig villa om totalt drygt 300 kvm! Här finns plats åt den stora familjen med härliga umgängesytor i stort vardagsrum tillsammans med entresolplan, trivsamt kök, fem sovrum varav ett med egen ingång, allrum och goda förvaringsmöjligheter. Villan erbjuder även en stor hall med gästtoalett i anslutning, badrum med badkar och dusch på övre plan, väl tilltagen tvättstuga/groventré med wc, dusch och bastu samt ett garage (numera förråd).

Underbar trädgård med skyddat och soligt läge. Stor gräsmatta som är perfekt för dem med spring i benen, samtidigt som det finns rogivande oaser och stora altaner för att passa allas intressen. I den uppvuxna trädgården finns rhododendron i olika färger, rosentry pärlbuske, magnolia och guldjasmin. Här plockar ni vindruvor, äpplen, körsbär, svarta och röda vinbär samt blåbär.

På Uppgången 2 bor ni bekvämt med gångavstånd till buss, bad, golf, tennis och båtliv. På några minuter med bil tar ni er till Särö centrum, vilket är ett område som utvecklats mycket under senare år. Till centrum kan ni dessutom gena med cykel eller promenera på bara några minuter och där finner ni bland annat matvaruaffär, bageri/café, gym, vårdcentral, apotek, skola upp till åk 9 samt olika förskolor.

Varmt välkomna med ert intresse till ansvarig mäklare Lisa Stafsing, 0707-96 06 66!

Om Bostaden

Sammanfattning

Typ: Villa, ett och ett halvplanshus
Rum: 6, varav 5 sovrum
Boarea: 284 m2
Biarea: 32 m2
Tomtarea: 1 504 m2
Pris (Utgångspris): 9 950 000 kr
Byggnadsår: 1974
Driftkostnad: 63 793 kr/år
Upplåtelseform: Äganderätt
Inflyttning: Enligt överenskommelse

Kommentar till boarean

Boareauppgift enligt: Lantmäteriet
Entréplan ca 196 kvm boa samt 32 kvm bia. Övre plan ca 87 kvm boa.

Uppvärmning

Direktverkande el, luft-/luftvärmepump samt täljstenskamin

Byggnadssätt

Vatten: Kommunalt vatten året om
Avlopp: Kommunalt avlopp
Grund: Platta på mark
Stomme: Betong/lättbetong/trä
Bjälklag: Betong
Fasad: Puts och trä
Fönster: 2-glasfönster isoler
Takbeklädnad: Betongpannor
Ventilation: Självdrag (frånluftsfläkt är installerat i grovköket)
Radon: En korttidsmätning gällande radon har gjorts under sensommar 2022 och mätresultat (som är under gränsvärdet) finns tillgängligt hos ansvarig mäklare.
Kommentar: En besiktning är gjord som ligger till grund för försäkringen Varudeklarerat och ett besiktningsprotokoll finns tillgängligt hos ansvarig mäklare i samband med visning.

Renoveringar

Om-/tillbyggnadsår: 2005

Tomt/balkong/uteplats

Härligt uppvuxen trädgård med stor gräsmatta.

Parkering

Stor asfalterad uppfart med plats för ca 3 bilar.

Tv/Internetanslutning

Fiber finns installerat.

Allmänt

Län: Halland
Kommun: Kungsbacka
Fastighetsbeteckning: KUNGSBACKA NÖTEGÅNG 1:89

Planbestämmelser

Alguseredsområdet, Byggnadsplan (Beslutsdatum: 1974-04-19, Senast ändrad: 2024-03-21)

Övriga rättigheter och belastningar

Gemensamhetsanläggning: Andel i Kungsbacka Algusered Ga:1

Algusereds Vägförening (849400-7589),
Box 2059
429 12 Särö

Kontaktperson Tommy Engman, ordförande.

Ändamål körvägar, gång- och cykelvägar och allmän platsmark. Till vägarna hör körbana med vändplatser samt diken, dagvattenledningar och slänter.
Rättigheter förmån: Avtalsservitut: LEDNING FÖR VATTENAVRINNING

Ekonomi

Pris (Utgångspris)

9 950 000 kr

Driftkostnader

63 793 kr/år
Årlig elförbrukning: 21796 kWh/år

Fördelas enligt följande

El: 39 412 kr
Vatten och avlopp: 8 421 kr
Väg: 1 800 kr
Försäkring: 11 500 kr
Försäkringskommentar: Fullvärdesförsökrat via Gjensidige.
Renhållning: 2 660 kr

Utöver ovanstående eventuella driftkostnader tillkommer fastighetsavgift med belopp om 10 074 kr.

Observera att driftskostnaderna som anges ovan baseras på säljarens faktiska kostnader det senaste året om inget annat särskilt anges.
Vilka driftskostnader köparen kommer att ha beror på hur bostaden kommer att användas, vilka abonnemang som kommer att tecknas och övriga omständigheter i det enskilda fallet.

Taxering

Byggnad: 5 600 000 kr
Mark: 3 867 000 kr
Totalt: 9 467 000 kr
Taxeringsår: 2024
Taxeringsvärdet är: Fastställt
Värdeår: 1979
Standardpoäng: 33
Typkod: 220, Småhusenhet, bebyggd

Pantbrev

Det finns 15 pantbrev uttaget om sammanlagt 4 800 000 kr.

Energideklaration

Status: Energideklaration är utförd
Energiprestanda: 131 kWh/kvm/år
Energiklass: EE
Specifik energianvändning: 77 kWh/kvm/år
Energideklaration utförd: 2022-08-10
Besiktningsman: Anticimex

Försäkring

Svensk Fastighetsförmedling samarbetar med If för att underlätta ditt bostadsköp. När du köper bostad eller fritidshus genom Svensk Fastighetsförmedling är den automatiskt försäkrad. Vi kallar det Flytta in-försäkring. Den är kostnadsfri och gäller under de första 30 dagarna. Fortsätter du sedan att försäkra hemmet eller fritidshuset hos If får du 10% rabatt och flera andra unika förmåner. Fråga din mäklare för att ta del av erbjudandet.
Trygg affär - Varudeklarerad Villa

Alla bilder

+ 48 Visa alla 54 bilder
 

Planritning

Karta och område

Uppgången 2, Särö

Kalkyl

Vad kostar nya boendet?

Fler värden

Här nedanför kan du ändra ränta, amortering och driftkostnader och se hur de påverkar kalkylen.

Återställ alla värden
Visa fler

Ränta

Amortering

Driftkostnad per månad

Driftkostnad/månad

Observera att driftskostnaderna som anges ovan baseras på säljarens faktiska kostnader det senaste året om inget annat särskilt anges.

Vilka driftskostnader köparen kommer att ha beror på hur bostaden kommer att användas, vilka abonnemang som kommer att tecknas och övriga omständigheter i det enskilda fallet.

Boendekostnad per månad

Ränta
+  kr
Driftkostnad
+  kr
Fastighetsskatt/-avgift
+ 840 kr
Skattereduktion
 kr
Summa
ca  kr
Amortering
+  kr
Inkl amortering
ca  kr

Ansök om lånelöfte

Hos vårt systerbolag Ordna Bolån kan du enkelt ansöka om lånelöfte eller bolån. En ansökan, svar från flera banker.

Visningsanmälan

Fyll i formuläret så kontaktar vi dig inom kort.

Välj mellan nedan alternativ
Onsdag 6 maj
Anmälan krävs

Uppgången 2, 429 42 Särö
Välkommen att boka visning!
Jag vill veta mer om bostaden

Kontaktuppgifter
Vänligen ange förnamn
Vänligen ange efternamn
Vänligen ange telefonnummer
Vänligen ange e-post
500 tecken kvar
Har du lånelöfte?*
Vill du ha hjälp med lånelöfte?
Vill du få nyheter och erbjudanden?

Oj, något gick fel! Försök igen. 

Ett ögonblick!
Tack, dina uppgifter är sparade!
Du fyllde inte i någon e-postadress. Ange den nedan för att inte missa någon information.
 
 
 
Ta del av vår integritetspolicy
 
 
 

Liknande bostäder till salu

Kungsbacka
Uppgången 2
Dela bostad: Dela på Facebook Dela med epost Dela med sms Kopiera länk Länken kopierad

Planritning