Hoppa till innehåll
Sennan

Glimmervägen 5

Rymlig 1½-plansvilla med källare och garage

  • Typ: Villa, 1 ½ plans villa med källare
  • Rum: 9, varav 6 sovrum
  • Boarea: 192 m2
  • Biarea: 128 m2
  • Tomtarea: 696 m2
  • Byggnadsår: 1966
  • Driftkostnad: 44 494 kr/år
  • Upplåtelseform: Äganderätt

Välkommen till denna rymliga och välplanerade 1½-plansvilla med källare som erbjuder generösa ytor för den stora familjen eller för dig som önskar gott om plats för både vardag och fritid.
Här bor du i ett hem med flexibla ytor, flera sovrum och praktiska lösningar som passar många olika behov.

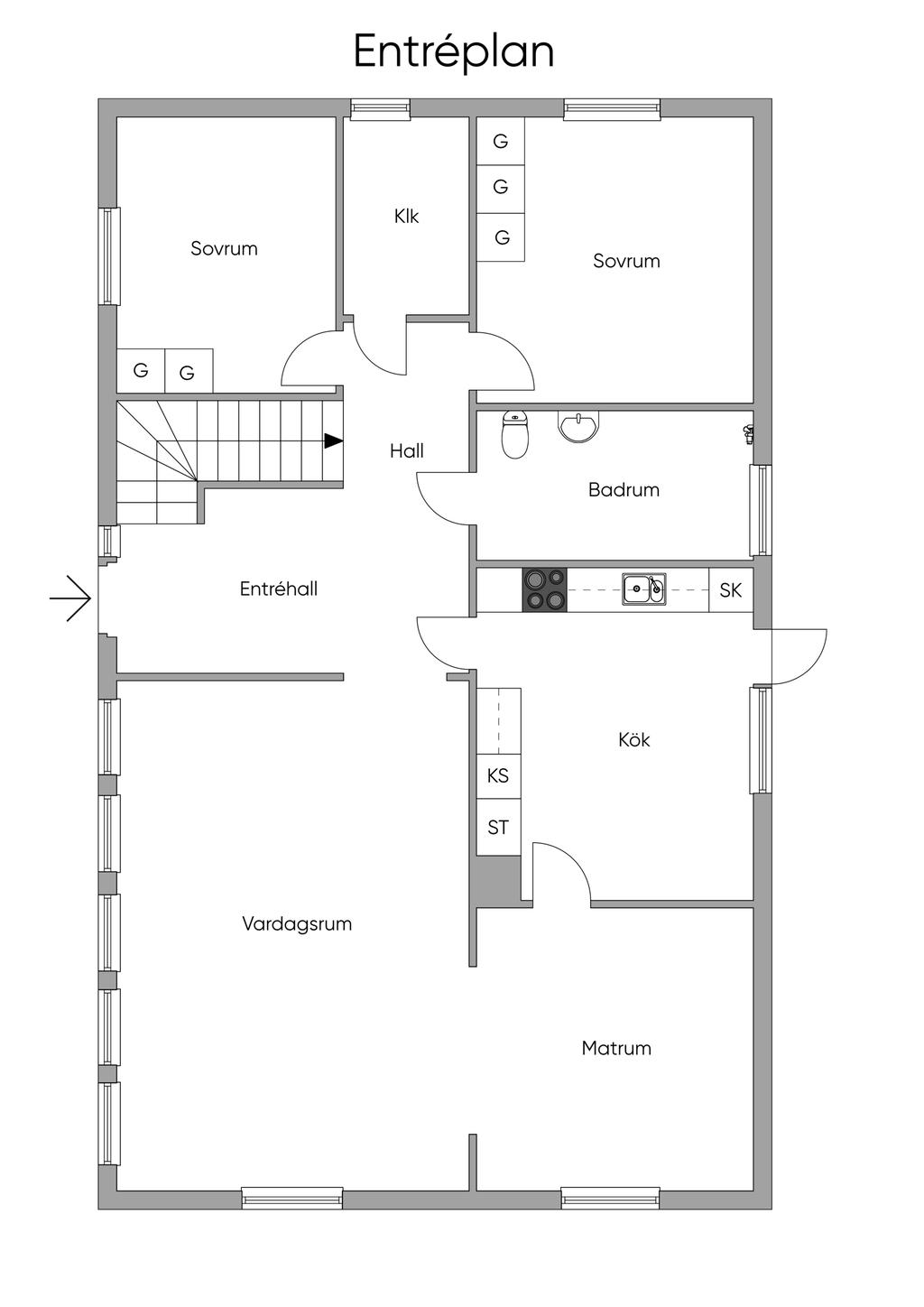
På entréplanet möts du av en rymlig hall med gott om plats för ytterkläder och förvaring. Vidare finns ett stort vardagsrum i vinkel med generösa fönsterpartier som skapar ett härligt ljusinsläpp och en trivsam atmosfär.
Det rymliga köket erbjuder gott om arbetsytor och plats för matgrupp, och härifrån når du även det inglasade uterummet – en perfekt plats att njuta av från tidig vår till sen höst.
På detta plan finns dessutom två sovrum, ett rymligt badrum samt en praktisk klädkammare.

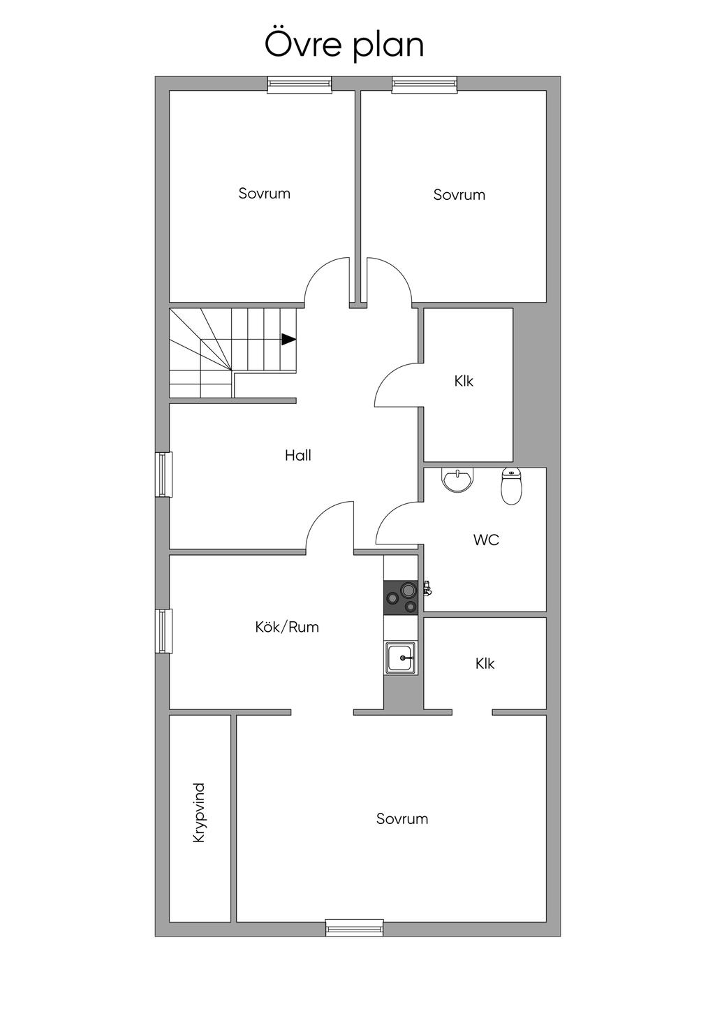
Övre plan erbjuder ytterligare generösa ytor med tre sovrum, varav ett större sovrum med egen klädkammare.
Här finns även ett badrum, ett allrum samt ett extra kök som ger fina möjligheter för exempelvis generationsboende, tonårsdel eller uthyrningsmöjligheter.

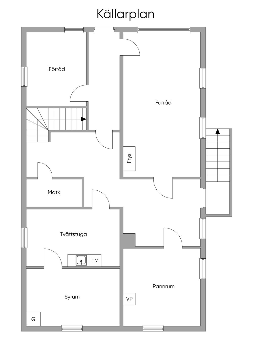
I källarplanet finns en tvättstuga med dusch samt flera användbara utrymmen med gott om plats för sovrum, förvaring, hobbyverksamhet, hemmagym eller andra önskemål.

Till fastigheten hör även garage.

Stora investeringar har redan gjorts med nytt yttertak med betongpannor från 2021 samt installation av energieffektiv luft/vattenvärmepump, vilket bidrar till ett mer bekvämt och ekonomiskt boende.

Ett hem med många möjligheter och gott om plats att växa i – varmt välkommen på visning!

Om Bostaden

Sammanfattning

Typ: Villa, 1 ½ plans villa med källare
Rum: 9, varav 6 sovrum
Boarea: 192 m2
Biarea: 128 m2
Tomtarea: 696 m2
Pris (Utgångspris): 1 890 000 kr
Byggnadsår: 1966
Driftkostnad: 44 494 kr/år
Upplåtelseform: Äganderätt

Kommentar till boarean

Boareauppgift enligt: Lantmäteriet

Uppvärmning

Värmepump luft-vatten

Byggnadssätt

Vatten: Kommunalt vatten året om
Avlopp: Kommunalt avlopp
Grund: Källare
Fasad: Tegelstensfasad
Fönster: 2-glasfönster
Takbeklädnad: Betongpannor
Ventilation: Självdrag

Renoveringar

2000 Renovering av badrum på entréplan.
Dränering på kortsida mot granne samt långsida på husets framsida.
2005 Installerat luft/vatten värmepump
2007 Renovering av kök.
2008 Byte av takkfönster
2012 Renovering av badrum på övre plan.
2014 Byggt inglasat uterum
Nytt yttertak på garaget.
2021 Nytt yttertak med betongpannor

Tomt/balkong/uteplats

Inglasat uterum

Övriga byggnader

Vidbyggt garage med plats för 1 bil.

Parkering

Garage med plats för 1 bil samt stenlagd uppfart med plats för 2 bilar.

Tv/Internetanslutning

Fiber ej indraget

Allmänt

Län: Halland
Kommun: Halmstad
Fastighetsbeteckning: HALMSTAD STEN 8:26

Omgivning

Detta lugna samhälle med sina cirka 400 invånare hittar man naturskönt beläget utmed Nissan strax 15 kilometer norr om Halmstad.
Det stations- och industrisamhälle som under senare delen av 1800-talet växte fram här är idag ett minne blott och istället har mysiga villakvarter byggts upp med naturen runt knuten.
Idag finns ingen butik i Sennan, men i Oskarström som ligger strax 3 kilometer norr om byn finns ett större kommersiellt utbud som innefattar både butiker och restauranger. I Oskarström finns det också tillgång till det mesta inom hälsa och samhällsservice, bland annat skolor, bibliotek, vårdcentral, tandvård, förskola och äldreboende.
Fotbollsintresserad? Då finns Sennans IF, en fotbollsförening med tradition som bildades redan 1934. Klubben har en fin ungdomsverksamhet och även viss seniorverksamhet. I Oskarström finns det utöver fotboll många andra aktiviteter.
Strax tre kilometer från Sennan ligger naturreservatet Virsehatt. Virsehatt är ett berg som höjer sig likt en kupol över Sennans dalgång. Här finns fina leder och vackra vyer. Vill du ha en liten tuffare vandring går du uppför berget där du kan njuta av den storslagna utsikten. I reservatet finns det även en digital skattjakt som passar bra för barn. Håll även utkik efter trollet!
Sennanån utgör en viktig del av reservatet. Utmed ån växer al som bildar en ridå längs vattnet. Hassel och rikligt med hallonbuskar finns också här. Bottenfaunan är värdefull vilket inverkar positivt både på fågel och fisk. Lax och öring reproducerar sig i ån och kungsfiskare, strömstare och forsärla söker föda i området. Nere vid Sennan finns det också en eldplats.
En rogivande plats att leva på där stillsamheten råder, en bra beskrivning på det charmiga samhället Sennan.
För uppdaterad information angående förskolor och grundskolor, besök kommunens hemsida halmstad.se.
För uppdaterad information om lokaltrafiken, besök Hallandstrafikens hemsida www.hallandstrafiken.se

Planbestämmelser

Sennans stationssamhälle(ändr), Byggnadsplan (Beslutsdatum: 1967-03-10, Senast ändrad: 1990-04-05)

Övriga rättigheter och belastningar

Inskrivna övriga rättigheter och belastningar: Sennadalen, Vattenskyddsområde (Beslutsdatum: 1983-12-20, Senast ändrad: 2025-02-11)

Ekonomi

Pris (Utgångspris)

1 890 000 kr

Driftkostnader

44 494 kr/år
Årlig elförbrukning: 13125 kWh/år

Fördelas enligt följande

Uppvärmning: 38 568 kr
Vatten och avlopp: 3 520 kr
Renhållning: 2 406 kr

Utöver ovanstående eventuella driftkostnader tillkommer fastighetsavgift med belopp om 8 524 kr.

Observera att driftskostnaderna som anges ovan baseras på säljarens faktiska kostnader det senaste året om inget annat särskilt anges.
Vilka driftskostnader köparen kommer att ha beror på hur bostaden kommer att användas, vilka abonnemang som kommer att tecknas och övriga omständigheter i det enskilda fallet.

Taxering

Byggnad: 1 747 000 kr
Mark: 309 000 kr
Totalt: 2 056 000 kr
Taxeringsår: 2024
Taxeringsvärdet är: Fastställt
Värdeår: 1966
Standardpoäng: 31
Typkod: 220, Småhusenhet, bebyggd

Pantbrev

Det finns 11 pantbrev uttaget om sammanlagt 125 000 kr.

Energideklaration

Energiprestanda: 91 kWh/kvm/år
Energiklass: DD
Specifik energianvändning: 47 kWh/kvm/år
Energideklaration utförd: 2026-04-30

Försäkring

Svensk Fastighetsförmedling samarbetar med If för att underlätta ditt bostadsköp. När du köper bostad eller fritidshus genom Svensk Fastighetsförmedling är den automatiskt försäkrad. Vi kallar det Flytta in-försäkring. Den är kostnadsfri och gäller under de första 30 dagarna. Fortsätter du sedan att försäkra hemmet eller fritidshuset hos If får du 10% rabatt och flera andra unika förmåner. Fråga din mäklare för att ta del av erbjudandet.

Alla bilder

+ 23 Visa alla 29 bilder
 

Planritning

Karta och område

Glimmervägen 5, Sennan

Visa avstånd som lista:
Avstånd avser alltid fågelvägen

Kalkyl

Vad kostar nya boendet?

Fler värden

Här nedanför kan du ändra ränta, amortering och driftkostnader och se hur de påverkar kalkylen.

Återställ alla värden
Visa fler

Ränta

Amortering

Driftkostnad per månad

Driftkostnad/månad

Observera att driftskostnaderna som anges ovan baseras på säljarens faktiska kostnader det senaste året om inget annat särskilt anges.

Vilka driftskostnader köparen kommer att ha beror på hur bostaden kommer att användas, vilka abonnemang som kommer att tecknas och övriga omständigheter i det enskilda fallet.

Boendekostnad per månad

Ränta
+  kr
Driftkostnad
+  kr
Fastighetsskatt/-avgift
+ 710 kr
Skattereduktion
 kr
Summa
ca  kr
Amortering
+  kr
Inkl amortering
ca  kr

Ansök om lånelöfte

Hos vårt systerbolag Ordna Bolån kan du enkelt ansöka om lånelöfte eller bolån. En ansökan, svar från flera banker.

Intresseformulär

Fyll i formuläret så kontaktar vi dig inom kort.

Kontaktuppgifter
Vänligen ange förnamn
Vänligen ange efternamn
Vänligen ange telefonnummer
Vänligen ange e-post
500 tecken kvar
Har du lånelöfte?*
Vill du ha hjälp med lånelöfte?
Vill du få nyheter och erbjudanden?

Oj, något gick fel! Försök igen. 

Ett ögonblick!
Tack, dina uppgifter är sparade!
Du fyllde inte i någon e-postadress. Ange den nedan för att inte missa någon information.
 
 
 
Ta del av vår integritetspolicy
 
 
 

Liknande bostäder till salu

Halmstad
Glimmervägen 5
Dela bostad: Dela på Facebook Dela med epost Dela med sms Kopiera länk Länken kopierad

Planritning