Hoppa till innehåll
Halmstad

Ramgränd 8

Optimal familjedröm i populära Bäckagård!

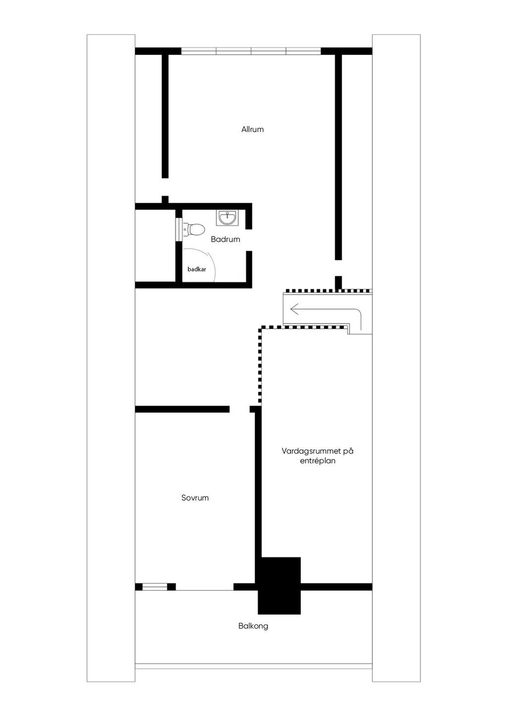
  • Typ: Villa, 1,5 plans villa
  • Rum: 5, varav 3-4 sovrum
  • Boarea: 208 m2
  • Biarea: 40 m2
  • Tomtarea: 832 m2
  • Byggnadsår: 1975
  • Driftkostnad: 51 500 kr/år
  • Upplåtelseform: Äganderätt

Inte ofta kommer det ut objekt med mångsidighet och bekvämlighet som den här villan, beläget på lugn gata i omtyckta bäckagård, perfekt mellan Halmstad centrum och Tylösand och närhet till grötvik och flertalet stränder och grönområden.

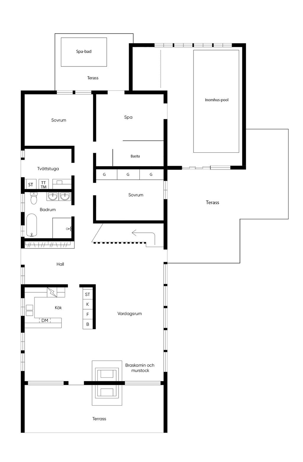
Varmt välkomna till denna imponerande villa som efter brand återuppbyggts 2012 och bjuder på spännande arkitektur om drygt 200 kvm med öppen planlösning om tre sovrum, två stora vardagsrum, två badrum, bastu/spa rum, inomhuspool, tvättstuga, fullgott kök och flertalet uteplatser i olika sollägen och även balkong. Uteplatsen i norrläge bjuder på förmiddagssol med jacuzzibad medan den andra har vi direkt anslutning till inomhuspoolen och den öppna trädgården. Utöver allt detta finner vi även garagebyggnad med bostads/- uthyrningsdel med sovrum och fullgott badrum samt ännu en liten stuga. Båda badrummen är fullt utrustade med vad som kan förväntas, extra plus med badkar i båda.

Här har inget lämnats åt slumpen utan material och färgval har noggrant valts ut omsorgsfullt har vid återuppbyggnad av huset 2012 valt att investera i förbättringar såsom vattenburen golvvärme, solpaneler, uppgradera uppvärmningssystemet från elpanna till energieffektiv bergvärmepump, utöka badrummet på entréplan genom att slå ihop tidigare gästtoalett och dåvarande badrum samt totalrenoverat garagebyggnadens bostadsdel. Den här delen lämpar sig perfekt för tonåringen, gästerna eller varför inte använda som uthyrningsenhet?

- Grattis, du tittar på ett Varudeklarerat hus! Vår försäkring Varudeklarerat är marknadens mest omfattande paket* för besiktning och försäkring, och gäller i tio år från tillträdet. *Enligt marknadsbevakning 2025-04-02. Varudeklarerat är försäkringen som skyddar både säljare och köpare vid bostadsförsäljning i tio år.

Köket i naturnära materialval och färger vilket ger modern och stilig känsla. Här finns alla bekvämligheter man kan förvänta sig. Extra plus med ugn i arbetshöjd! Från matsalen tar man sig vidare till vardagsrummet eller uteterassen som vetter mot trädgårdens framsida. Vardagsrummet bjuder på rejäl med rymd och ljusinsläpp tack vare de stora fönsterpartierna men också takhöjden som skapar karaktär. Braskaminen bidrar till uppvärmning men också till att förhöja mysfaktorn. Här tar vi oss vidare ut till terassen med bästa solläge en stor del av dagen. Perfekt för lunchen eller varför inte kombinera de varma timmarna med vad i inomhuspoolen?

Trädgården bjuder har yta för lek och gemenskap och är enkel att underhåll med ett fantastiskt vackert japanskt körsbärsträd på framsidan.

Nya hushållsmaskiner inköpta 2026 ( ej med på bilderna )

LG Tvättmaskin
LG Torktumlare
Siemens Induktionshäll
Bosch Diskmaskin
Bosch Kyl
Bosch Frys

Varmt välkommen att kontakta ansvarig mäklare för att boka visning!

Om Bostaden

Sammanfattning

Typ: Villa, 1,5 plans villa
Rum: 5, varav 3 sovrum, möjlighet till 4 sovrum
Boarea: 208 m2
Biarea: 40 m2
Tomtarea: 832 m2
Utgångspris: 7 495 000 kr
Byggnadsår: 1975
Driftkostnad: 51 500 kr/år
Upplåtelseform: Äganderätt

Kommentar till boarean

Boareauppgift enligt: Lantmäteriet

Uppvärmning

Bergvärmepump via vattenburet system samt braskamin
Ålder: från 2012

Byggnadssätt

Vatten: Kommunalt vatten året om
Avlopp: Kommunalt avlopp
Grund: Platta på mark och torpargrund
Stomme: Trä
Bjälklag: Trä
Fasad: Puts och träpanel
Fönster: 3-glasfönster isoler
Grundmur: Betong
Takbeklädnad: Betongpannor
Ventilation: Självdrag i bostadsdelen och mekanisk frånluft i poolrummet
Jordat/ojordat: Jordat
Murstock kommentar: Sotning och brandskyddskontroll har skett löpande av fackman

Renoveringar

Om-/tillbyggnadsår: 2012 gjordes en omfattande renovering av huset efter en brand
2011 uppstod en brand i huset där allt invändigt i bostaden samt fönster, tak mm skadades. Allt skadat material byttes ut i en omfattande renovering. I samband med renoveringen gjordes planlösningen delvis om. Skadan reglerades via försäkringsbolag och arbetena åtgärdades av fackmän som färdigställdes 2012. Utöver som fanns tidigare i huset valde ägare att göra nedan tillägg vid ombyggnationen.

2012 - Installera vattenburen golvvärme u hela huset
2012 - Installera bergvärmepump ( från tidigare elpanna )
2012 - Utöka badrummet på entréplan genom att slå ihop tidigare gästtoalett och dåvarande badrum
2012 - Garagebyggnadens bostadsdel totalrenoverades i samband med renovering av bostadshuset efter branden

Vidare renoveringar som gjorts:

Nya hushållsmaskiner inköpta 2026 ( ej med på bilderna )
LG Tvättmaskin
LG Torktumlare
Siemens Induktionshäll
Bosch Diskmaskin
Bosch Kyl
Bosch Frys

2025 - poolpump utbytt
2025 - Kyl och frys utbytta
2023 - byggdes altanen åt söder ut av fackman
2021 - jacuzzi installerades
2020 - Altanen åt öster med spa-bad byggdes av fackman
2020 - Solceller installerades på taket
2019 - Plattsättning på garageuppfart och mellan byggnadskropparna

Tomt/balkong/uteplats

2 uteterassen i olika väderstreck och balkong samt markplats på främre kortände

Övriga byggnader

Kombinerad garagebyggnad med bostadsdel samt friliggande stuga

Parkering

Uppfart med plats för 3 bilar och garage med plats för 1 bil.

Tv/Internetanslutning

Fiber finns indraget till fastigheten

Allmänt

Län: Halland
Kommun: Halmstad
Fastighetsbeteckning: HALMSTAD BÄCKAGÅRD 1:22

Planbestämmelser

Bäckagård 1:1, Byggnadsplan (Beslutsdatum: 1970-10-09, Senast ändrad: 2011-03-01)

Övriga rättigheter och belastningar

Gemensamhetsanläggning: HALMSTAD EKETÅNGA GA:17
Rättigheter last: Avtalsservitut: IMMISSION - SE BESKRIVNING
Avtalsrättigheter: Avtalsservitut IMMISSION

Övrigt

Information om Varudeklarerad besiktning*: Försäkringen gäller för fel och skador som upptäcks efter det att köpekontraktet undertecknats av säljare och köpare, dock tidigast efter genomförd försäkringsbesiktning, och i tio (10) år från tillträdesdagen. Detta gäller under förutsättning att säljaren och köparen fullgör köpet genom att underteckna köpebrev inom arton (18) månader från det senaste besiktningstillfället. När försäkringsbrev utfärdats gäller försäkringen från och med den dag som anges i försäkringsbrevet oberoende av tidsfristen för undertecknande av köpebrev. Varudeklarerat den enda försäkringen som försäkrar byggnadens skick, som gäller för både köpare och säljare, som har 3 000 000 kronor i maximalt försäkringsbelopp och som omfattar dolda fel, skada i riskkonstruktion, fel som lett till följdskada, skada som besiktningsteknikern varnat för (men som inte har upptäckts) och ansvar för besiktningsteknikerns misstag i 10 år.

* Med reservation för förändringar. Mer info och fullständiga och aktuella villkor finns i besiktningsprotokollet.

Ekonomi

Utgångspris

7 495 000 kr

Driftkostnader

51 500 kr/år
Årlig elförbrukning: 18836 kWh/år
Antal i hushållet: 3

Fördelas enligt följande

El: 21 000 kr
Uppvärmning: 17 600 kr
Vatten och avlopp: 7 900 kr
Försäkring: 2 000 kr
Renhållning: 3 000 kr
Beskrivning: Nuvarande ägare har betalat genomsnitt 1 kr per kwh

Utöver ovanstående eventuella driftkostnader tillkommer fastighetsavgift med belopp om 10 074 kr.

Observera att driftskostnaderna som anges ovan baseras på säljarens faktiska kostnader det senaste året om inget annat särskilt anges.
Vilka driftskostnader köparen kommer att ha beror på hur bostaden kommer att användas, vilka abonnemang som kommer att tecknas och övriga omständigheter i det enskilda fallet.

Taxering

Byggnad: 5 400 000 kr
Mark: 1 816 000 kr
Totalt: 7 216 000 kr
Taxeringsår: 2024
Taxeringsvärdet är: Fastställt
Värdeår: 2012
Standardpoäng: 50
Typkod: 220, Småhusenhet, bebyggd

Pantbrev

Det finns 13 pantbrev uttaget om sammanlagt 2 945 000 kr.

Energideklaration

Status: Energideklaration är utförd
Energiprestanda: 78 kWh/kvm/år
Energiklass: CC
Specifik energianvändning: 40 kWh/kvm/år
Energideklaration utförd: 2025-08-08
Besiktningsman: Tomas Forss, Anticimex
Beskrivning: På yttertaket finns 50 kvm solceller. Det har beräknats att anläggningen levererar ca 7000 kWh varav 65 % har
sålts och 35 % använts som egen el. Inomhus finns en pool som värmts upp ca 6 månader med bergvärmepump. Energiförbrukningen räknas till ca
2500 kWh vilket har dragits av från husets energiförbrukning.
Ett spa-bad finns utomhus på altanen. Energiförbrukningen räknas till 4500 kWh vilket har dragits av från husets
energiförbrukning.
Ett gästrum med tillhörande dusch/toalett finns i garaget som värms upp med luft/luftvärmepump.
Energiförbrukningen räknas till 1000 kWh vilket har dragits av från husets energiförbrukning.

Försäkring

Svensk Fastighetsförmedling samarbetar med If för att underlätta ditt bostadsköp. När du köper bostad eller fritidshus genom Svensk Fastighetsförmedling är den automatiskt försäkrad. Vi kallar det Flytta in-försäkring. Den är kostnadsfri och gäller under de första 30 dagarna. Fortsätter du sedan att försäkra hemmet eller fritidshuset hos If får du 10% rabatt och flera andra unika förmåner. Fråga din mäklare för att ta del av erbjudandet.
Trygg affär - Varudeklarerad Villa

Alla bilder

+ 47 Visa alla 53 bilder
 

Planritning

Karta och område

Ramgränd 8, Halmstad

Kalkyl

Vad kostar nya boendet?

Fler värden

Här nedanför kan du ändra ränta, amortering och driftkostnader och se hur de påverkar kalkylen.

Återställ alla värden
Visa fler

Ränta

Amortering

Driftkostnad per månad

Driftkostnad/månad

Observera att driftskostnaderna som anges ovan baseras på säljarens faktiska kostnader det senaste året om inget annat särskilt anges.

Vilka driftskostnader köparen kommer att ha beror på hur bostaden kommer att användas, vilka abonnemang som kommer att tecknas och övriga omständigheter i det enskilda fallet.

Boendekostnad per månad

Ränta
+  kr
Driftkostnad
+  kr
Fastighetsskatt/-avgift
+ 840 kr
Skattereduktion
 kr
Summa
ca  kr
Amortering
+  kr
Inkl amortering
ca  kr

Ansök om lånelöfte

Hos vårt systerbolag Ordna Bolån kan du enkelt ansöka om lånelöfte eller bolån. En ansökan, svar från flera banker.

Visningsanmälan

Fyll i formuläret så kontaktar vi dig inom kort.

Välj mellan nedan alternativ
Lördag 25 april
Anmälan krävs

Ramgränd 8, 302 77 Halmstad
Tisdag 28 april
Anmälan krävs

Ramgränd 8, 302 77 Halmstad
Jag vill veta mer om bostaden

Kontaktuppgifter
Vänligen ange förnamn
Vänligen ange efternamn
Vänligen ange telefonnummer
Vänligen ange e-post
500 tecken kvar
Har du lånelöfte?*
Vill du ha hjälp med lånelöfte?
Vill du få nyheter och erbjudanden?

Oj, något gick fel! Försök igen. 

Ett ögonblick!
Tack, dina uppgifter är sparade!
Du fyllde inte i någon e-postadress. Ange den nedan för att inte missa någon information.
 
 
 
Ta del av vår integritetspolicy
 
 
 

Liknande bostäder till salu

Halmstad
Ramgränd 8
Dela bostad: Dela på Facebook Dela med epost Dela med sms Kopiera länk Länken kopierad

Planritning