Hoppa till innehåll
 
Aktiv matchning
Aktiv matchning
Detta är en bostad som visas exklusivt på svenskfast.se. Mäklaren letar aktivt efter rätt köpare och uppgifter som pris och visningsdatum kan saknas. Anmäl ditt intresse för att få alla uppdateringar och mer information om denna bostad.
Vill du veta mer om bostaden?
Glommen

Rosendalsvägen 12

Aktiv matchning
Aktiv matchning
Detta är en bostad som visas exklusivt på svenskfast.se. Mäklaren letar aktivt efter rätt köpare och uppgifter som pris och visningsdatum kan saknas. Anmäl ditt intresse för att få alla uppdateringar och mer information om denna bostad.
Vill du veta mer om bostaden?

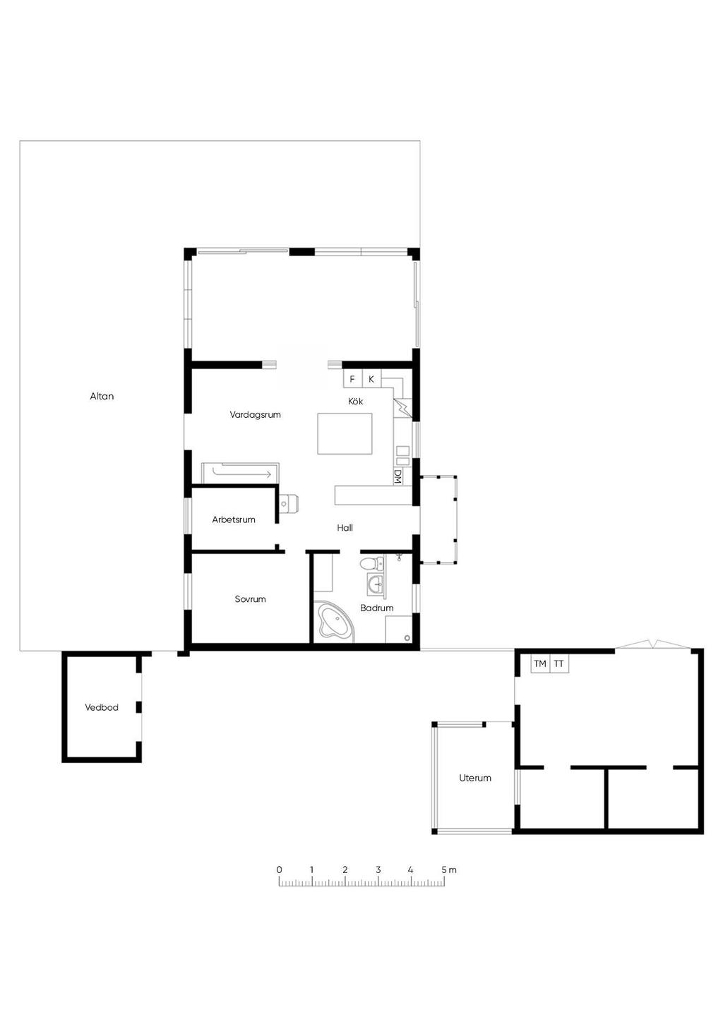
Välplanerad villa med härlig vinterträdgård och närhet till havet

  • Typ: Villa, Villa, 1-plan med sovloft
  • Rum: 4, varav 2-4 sovrum
  • Boarea: 61 m2
  • Biarea: 31 m2
  • Tomtarea: 989 m2
  • Byggnadsår: 2004
  • Driftkostnad: 35 211 kr/år
  • Upplåtelseform: Äganderätt

I rofyllda Rosendal, på Rosendalsvägen, finner du denna trivsamma villa omgiven av grönska på en tomt om 989 m². Här bor du med närhet till havet och når Glommens småbåtshamn på ungefär 15 minuter med cykel. Ett boende som fungerar lika bra året runt som för dig som söker ett bekvämt fritidsboende i kustnära miljö.

Bostaden rymmer 61 m² boyta och ytterligare 31 m² biyta, med en planlösning som känns både luftig och ombonad. De sociala ytorna binds samman av ett fint ljusflöde och kontakt mot trädgården – en plats som lockar till umgänge, oavsett årstid.

Vardagsrummet ligger centralt i huset och har generösa fönsterpartier som suddar ut gränsen mellan inne och ute. Intill finns köket, som är öppet mot matplatsen och har gott om arbetsyta samt förvaring. En kamin sprider värme och bidrar till den hemtrevliga känslan under årets svalare månader.

Huset erbjuder även ett sovrum i lugna färger med plats för dubbelsäng, ett arbetsrum som kan nyttjas som gästrum eller barnrum, samt ett badrum med kaklade ytor och hörnbadkar.

Från vardagsrummet nås den vinterbonade uterumsdelen – en uppskattad förlängning av bostaden med plats för både middagar, vila och umgänge. Härifrån tar du dig vidare ut till den stora altanen i bästa väderstreck, där sommardagarna gärna blir långa.

På tomten finns även en separat byggnad med tvättavdelning, extra förvaring och ett rymligt uterum i anslutning, samt en vedbod. Trädgården är insynsskyddad med gräsmatta, blomsterplanteringar och uppvuxna häckar.

Läget i Rosendal kombinerar lugn och närhet – här har du både naturen och havet runt hörnet, samtidigt som du når både Falkenberg och Varberg på bara en kort bilfärd.

Om Bostaden

Beskrivning

Hall
Välkomnande hall med plats för avhängning. Ljusa väggar och klinker på golvet som övergår till trägolv som fortsätter vidare in i huset.

Kök
Arbetsvänligt kök med gott om skåp, arbetsbänk i vinkel och öppen planlösning mot vardagsrum och matplats.

Vardagsrum
Ljust och luftigt rum med stora fönsterpartier mot altan och trädgård. Kamin som ger värme och karaktär.

Arbetsrum / Gästrum
Perfekt som kontor eller extra sovplats.

Sovrum
Rofyllt sovrum med plats för dubbelsäng och förvaring.

Badrum
Helkaklat med hörnbadkar, duschhörna, WC, handfat och badrumsskåp.

Vinterträdgård / Uterum
Väl tilltagen yta i glasad miljö – en naturlig samlingspunkt från tidig vår till sen höst.




Sammanfattning

Typ: Villa, Villa, 1-plan med sovloft
Rum: 4, varav 2 sovrum, möjlighet till 4 sovrum
Boarea: 61 m2
Biarea: 31 m2
Tomtarea: 989 m2
Byggnadsår: 2004
Driftkostnad: 35 211 kr/år
Upplåtelseform: Äganderätt

Kommentar till boarean

Boareauppgift enligt: Lantmäteriet

Uppvärmning

Direktverkande el, luft-/luftvärmepump och täljstenskamin

Byggnadssätt

Vatten: Kommunalt vatten året om
Avlopp: Kommunalt avlopp
Grund: Krypgrund samt plintgrund under vinterträdgården
Stomme: Trä
Fasad: Träfasad
Fönster: 2-och 3-glas isolerfönster
Takbeklädnad: Sadeltak med betongpannor på underlagstak av råspont, papp och läkt,
Ventilation: Självdrag
Fel och brister: Säljaren har tecknat Varudeklarerat och ett besiktningsprotokoll finns tillgängligt för intressenter.
Allmän information: Ett välbyggt och omsorgsfullt omhändertaget hus uppfört 2004. Huset har krypgrund och plintgrund, konstruktioner som generellt kan vara fuktkänsliga. I detta fall har dock förebyggande och effektiva åtgärder vidtagits för att skapa goda förutsättningar, bland annat genom att marken i krypgrunden täckts med plastfolie. Vid besiktning uppmäts fuktvärden som ligger under gällande gränsvärden, vilket ger en trygg grundkonstruktion.

Plintgrunden under vinterträdgården har besiktigats via en mindre öppning vid altantrappan, då ordinarie inspektionslucka saknas.
Kommentar: Fastigheten förvärvades år 2001.

Huset uppfördes under åren 2002–2004 med stomme från Mjöbäcksvillan och har till stora delar färdigställts av nuvarande ägare, som är fackkunniga.

Luft-/luftvärmepump installerades 2012.

Täljstenskaminen sotas löpande av fastighetsägaren samt vart femte år av auktoriserad sotare.

Fasad och övriga trädetaljer målas och underhålls fortlöpande.

Yttertakets betongpannor rengörs regelbundet.

Vindskivorna på husets västra sida har nyligen bytts ut.

Dagvatten från stuprören leds via rör till stenkistor placerade vid tomtens ytterkanter.

Tomt/balkong/uteplats

989 m² uppvuxen trädgårdstomt med stora altandäck, prydnadsplanteringar och plats för både lek och avkoppling.

Övriga byggnader

Garage
I separat byggnad finns tvättmaskin, torktumlare, förvaring och ett uterum i anslutning.

Allmänt

Län: Halland
Kommun: Falkenberg
Område: Rosendal
Fastighetsbeteckning: FALKENBERG ROSENDAL 2:55

Planbestämmelser

Morup,rosendal m fl, Byggnadsplan (Beslutsdatum: 1967-05-24, Senast ändrad: 2023-09-21)

Övriga rättigheter och belastningar

Gemensamhetsanläggning: FALKENBERG ROSENDAL GA:1

Ekonomi

Driftkostnader

35 211 kr/år
Årlig elförbrukning: 10324 kWh/år
Antal i hushållet: 2

Fördelas enligt följande

El: 21 408 kr
Uppvärmning: 2 000 kr
Vatten och avlopp: 5 236 kr
Väg: 1 400 kr
Försäkring: 3 887 kr
Renhållning: 1 280 kr

Utöver ovanstående eventuella driftkostnader tillkommer fastighetsavgift med belopp om 10 074 kr.

Observera att driftskostnaderna som anges ovan baseras på säljarens faktiska kostnader det senaste året om inget annat särskilt anges.
Vilka driftskostnader köparen kommer att ha beror på hur bostaden kommer att användas, vilka abonnemang som kommer att tecknas och övriga omständigheter i det enskilda fallet.

Taxering

Byggnad: 1 508 000 kr
Mark: 1 495 000 kr
Totalt: 3 003 000 kr
Taxeringsår: 2024
Taxeringsvärdet är: Fastställt
Värdeår: 2004
Standardpoäng: 30
Typkod: 220, Småhusenhet, bebyggd

Pantbrev

Det finns 3 pantbrev uttaget om sammanlagt 800 000 kr.

Försäkring

Svensk Fastighetsförmedling samarbetar med If för att underlätta ditt bostadsköp. När du köper bostad eller fritidshus genom Svensk Fastighetsförmedling är den automatiskt försäkrad. Vi kallar det Flytta in-försäkring. Den är kostnadsfri och gäller under de första 30 dagarna. Fortsätter du sedan att försäkra hemmet eller fritidshuset hos If får du 10% rabatt och flera andra unika förmåner. Fråga din mäklare för att ta del av erbjudandet.
Trygg affär - Varudeklarerad Villa

Alla bilder

+ 38 Visa alla 44 bilder
 

Planritning

Karta och område

Rosendalsvägen 12, Glommen

Kalkyl

Vad kostar nya boendet?

Fler värden

Här nedanför kan du ändra ränta, amortering och driftkostnader och se hur de påverkar kalkylen.

Återställ alla värden
Visa fler

Ränta

Amortering

Driftkostnad per månad

Driftkostnad/månad

Observera att driftskostnaderna som anges ovan baseras på säljarens faktiska kostnader det senaste året om inget annat särskilt anges.

Vilka driftskostnader köparen kommer att ha beror på hur bostaden kommer att användas, vilka abonnemang som kommer att tecknas och övriga omständigheter i det enskilda fallet.

Boendekostnad per månad

Ränta
+  kr
Driftkostnad
+  kr
Fastighetsskatt/-avgift
+ 840 kr
Skattereduktion
 kr
Summa
ca  kr
Amortering
+  kr
Inkl amortering
ca  kr

Ansök om lånelöfte

Hos vårt systerbolag Ordna Bolån kan du enkelt ansöka om lånelöfte eller bolån. En ansökan, svar från flera banker.

Intresseformulär

Fyll i formuläret så kontaktar vi dig inom kort.

Kontaktuppgifter
Vänligen ange förnamn
Vänligen ange efternamn
Vänligen ange telefonnummer
Vänligen ange e-post
500 tecken kvar
Har du lånelöfte?*
Vill du ha hjälp med lånelöfte?
Vill du få nyheter och erbjudanden?

Oj, något gick fel! Försök igen. 

Ett ögonblick!
Tack, dina uppgifter är sparade!
Du fyllde inte i någon e-postadress. Ange den nedan för att inte missa någon information.
 
 
 
Ta del av vår integritetspolicy
 
 
 

Liknande bostäder till salu

Rosendal, Falkenberg
Rosendalsvägen 12
Dela bostad: Dela på Facebook Dela med epost Dela med sms Kopiera länk Länken kopierad

Planritning