Hoppa till innehåll
Gagnef

Tjärnhedsvägen 24

Topprenoverad villa med jacuzzi och garage

  • Typ: Villa, 2-plan i suterräng
  • Rum: 6, varav 5 sovrum
  • Boarea: 155 m2
  • Biarea: 49 m2
  • Tomtarea: 887 m2
  • Byggnadsår: 1981
  • Driftkostnad: 40 267 kr/år
  • Upplåtelseform: Äganderätt

Välkommen till denna fantastiska villa i suterräng i Gagnef! Med sin tillbyggnad och som precis blivit färdig som utbyggnad år 2024 är detta hemmet som passar perfekt för den moderna familjen som blivit eller blir fler. Med sina fyra rymliga sovrum finns gott om utrymme för alla att trivas. Bostaden är smakfullt renoverad, här har manga tunga investerignar redan gjorts vilket gör att ni kan flytt rakt in och bara njuta.  Bostaden bjuder på en mix av modern och stilren inredning tillsammans med extra lyx så som en nedfälld jacuzzi på nybýggda altanens trädäck, perfekt för avkoppling och njutning. Förutom att ha blivit utbyggt rejält och fått en trivsam altan har man även bytt tak, fönster, samt bytt till luft/vattenvärmepump. Här har man en bostad som har det mesta.

Det välutrustade köket med matplats har en öppen planlösning mot vardagsrummet, där en värmande kamin ger en extra mysig atmosfär. Med två stora badrum, varav det på övre planet senast renoverat, finns det gott om plats för hela familjen, även när tonåringarna tar tid på sig.

Ett garage i huset ger bekväm parkering och förvaring. Belägen i ett lugnt område, finns det även möjlighet att njuta av naturen med närhet till elljusspår och fina leder på gångavstånd.

Dessutom är bostaden centralt belägen i Gagnef, vilket gör pendlingen till jobbet enkelt och bekvämt.

Sammanfattningsvis erbjuder denna villa i suterräng allt en familj kan önska sig - stilfull renovering, moderna bekvämligheter och närhet till både natur och närliggande bekvämligheters som tågstation och Välsorterad matbutik på cykelavstånd.

Missa inte chansen att bli ägare till detta drömhem!

Om Bostaden

Beskrivning

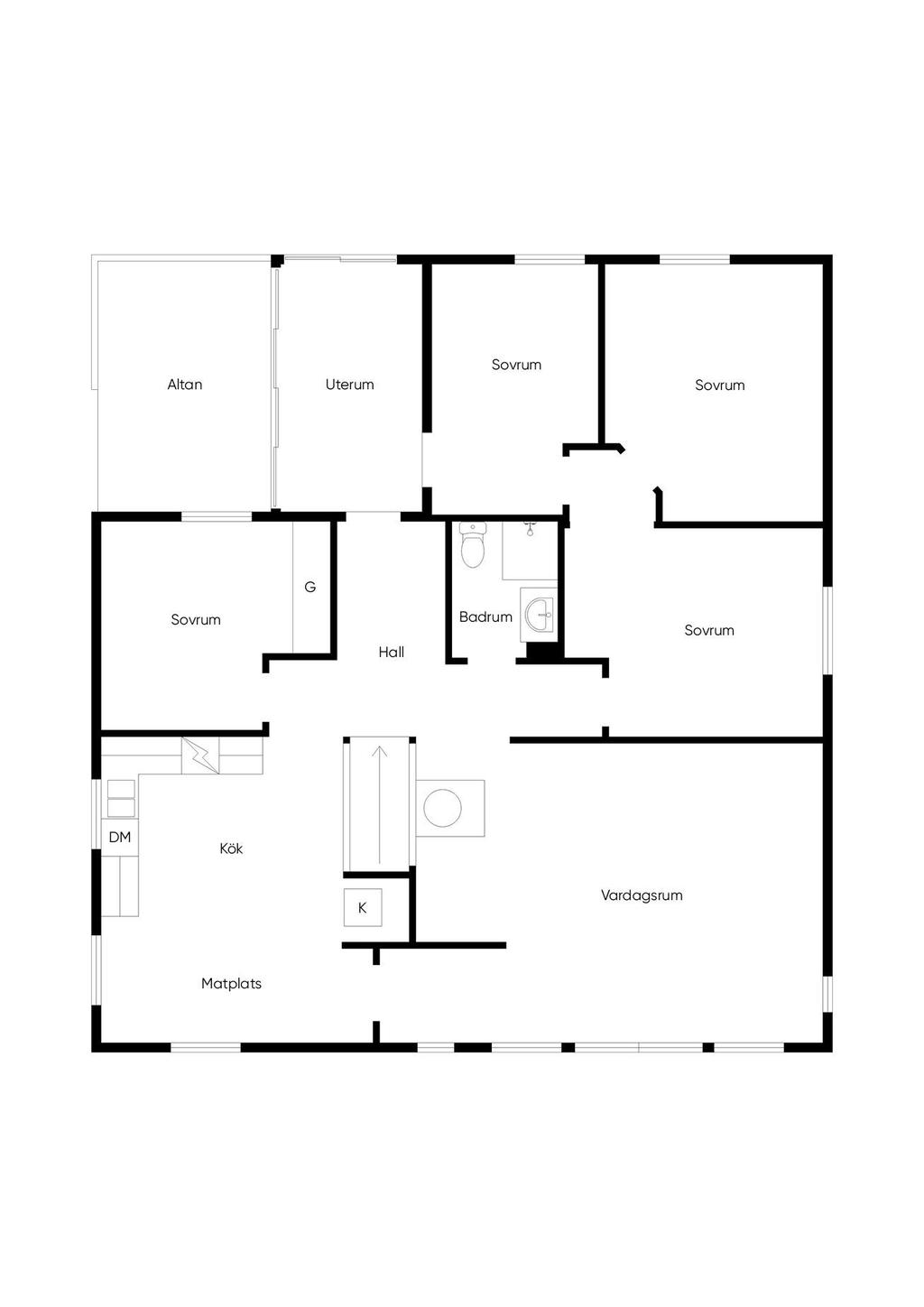
Hall: Souterrängplan. Rymlig hall på entréplanet med gott om förvaring direkt i suterrängplanets entré.
Badrum: Souterrängplan. Nedre planet erbjuder ett helkaklat badrum med, dusch, wc, kommod och handfat. Badrummet är enkelt att underhålla.
Sovrum 1/Kontor: Souterrängplan. Intill entrén finns ett sovrum som blir perfekt för tonåringen som vill ha eget krypin. Eller kontor för hemmajobbaren.
Tvättstuga: Souterrängplan. Rymlig tvättstuga med praktisk förvaring.
Garage: Souterrängplan. Garaget är rymligt och erbjuder gott om plats för både bil och verktyg. Det är en praktisk förvaringsplats för dina hobbyartiklar och nås via utsidan och via entré från huset.
Kök: Ovanvåning. Köket är stilrent och grått med öppen planlösning mot vardagsrummet via öppningen vid trappan. Det erbjuder gott om utrymme för matplats och arbetsytor och har rymliga fönsterpartier för naturligt ljusinsläpp.
Vardagsrum: Ovanvåning. Rymligt vardagsrum med kamin och stora fönsterpartier. Neutral interiör, bra för inredning efter eget tycke.
Sovrum: Ovanvåning. Rymligt sovrum intill kök och vardagsrum. Privat men ändå mitt i bostaden. Ljusa väggar och fina trägolv ger möjlighet till enkel inredning.
Sovrum 3-4: Ovanvåning. Sovrum 3-4 är beläget i utbyggnaden och har fina trägolv samt ljusa väggar. Passar familjer som vill ha barnrummet  intill. Rummet är lätt att inreda och erbjuder gott om utrymme för personlig touch.

Sammanfattning

Typ: Villa, 2-plan i suterräng
Rum: 6, varav 5 sovrum
Boarea: 155 m2
Biarea: 49 m2
Tomtarea: 887 m2
Pris (Utgångspris): 2 695 000 kr
Byggnadsår: 1981
Driftkostnad: 40 267 kr/år
Upplåtelseform: Äganderätt
Inflyttning: Enligt överenskommelse

Kommentar till boarean

Boareauppgift enligt: Lantmäteriet
Boarean är uppskattad mätning av ägaren. Utbyggnad har gjorts med två sovrum på 12.5 kvm x2 samt utbyggt vardagsrum.
Ursprungligt boarea enligt taxering 118kvm/49kvm biarea.
Uppvärmt boyta Atemp enligt mätningar gjorda vid energideklarationen är 174 kvm.

Uppvärmning

Luft/vattenvrämepump och täljstenskamin

Byggnadssätt

Vatten: Kommunalt vatten året om
Avlopp: Kommunalt avlopp
Grund: Souterräng och plintgrund på utbyggnad
Stomme: Betong/Trä
Fasad: Stående träpanel
Fönster: 3-glasfönster och 2+ 1 i suterrängplanet
Takbeklädnad: Betongpannor och fasadplåt på utbyggnad
Utvändiga plåtarbeten: Plåt
Ventilation: Mekanisk frånluft (FX) med värmeåtervinning
Murstock: Skorsten av plåt

Renoveringar

2011 Målat om invändigt på hela entréplan. Hans Isbergs måleri.
2013 Renoverat kök. HTH Köksforum.
2013 Installerat kamin Frykbergs.
2013 Bytt garageport.
2018/19 Bytt större delen av fönstren utom i garage och pannrum samt bytt altandörrar. Mockfjärds fönster.
2019 Renoverat dusch/toalett på övervåning. Hembad.
2021 Installerat luft/vattenvärmepump. Dala rörservice.
2023 Målat om utvändigt. Eget arbete.
2023 Tillbyggnad av två stycken sovrum samt byggt in balkong för att få ett större vardagsrum. Dala byggelit.
2023 Bytt yttertak. Dala Byggelit.
2023 Öppnat och satt in fönster i sovrum 2. Dala Byggelit.
2023 Byggt tralldäck på framsidan. Eget arbete.
2024 Byggt tralldäck på baksidan. Eget arbete.
2024 Glasat in del av altan
2024 Dragit om ventilationsrör och bytt fläktmotor. Lindab.
2024 Rengjort ventilationskanaler. Friska hus.

Tomt/balkong/uteplats

Uteplats intill entrén mot vägen
Tillbyggd uteplats med trall och inbyggd jacuzzi. En inglasad del. Ostört läge på husets baksisda med trädgården som omringar

Övriga byggnader

Förråd och växthus på tomten

Parkering

Garage

Allmänt

Län: Dalarna
Kommun: Gagnef
Fastighetsbeteckning: GAGNEF MOJE 5:88

Planbestämmelser

Gagnefs kyrkby(övre tjärna)del av, Byggnadsplan (Beslutsdatum: 1977-09-07, Senast ändrad: 2004-12-29)

Övriga rättigheter och belastningar

Gemensamhetsanläggning: Gagnef Moje Ga:5
Inskrivna övriga rättigheter och belastningar: Tallbacken, Vattenskyddsområde (Beslutsdatum: 20130408, Registreringsdatum: 20130924)
Tallbacken, Vattenskyddsområde (Beslutsdatum: 2013-04-08, Registreringsdatum: 2013-09-24, Senast ändrad: 2024-03-20)

Övrigt

Säljarens ord
Luftigt och modern stil. Stor och rymlig hall när man kommer in i entren.
På övervåningen är det öppen planlösning.
Stort vardagsrum där man kan sitta framför brasan och bara vara. Underbar utsikt från fönster till naturen när man är i vardagsrummet.

Naturen med elljusspår i utanför dörren.

Årstiderna:
Sommar och höst. Perfekt när man kan gå runt i trädgården och plocka alla bär. Men även vintern och våren har sin charm när man kan stå i vardagsrummet och se ut i skogen på alla rådjur eller bara ta en lugn promenad i naturen. Rid och skoterled finns även i närheten.

Jordgubbar, vinbär, hallon, smultron och äppelträd finns i trädgården, kantareller, blåbär och lingon växer i skogen precis utanför dörren.
Barnvänligt och lugnt område med fantastiska grannar och gemenskap. Närheten till naturen och att höra fågelkvitter utanför dörren ger en känsla av att man bor mitt i skogen.

Luftvärmepumpen kan snabbt ändras till AC under sommarens varma dagar.

Lyxen att kunna gå ut och ta ett dopp i spa badet under sommaren och även under vintern.

Ekonomi

Pris (Utgångspris)

2 695 000 kr

Driftkostnader

40 267 kr/år
Årlig elförbrukning: 12500 kWh/år
Antal i hushållet: 3

Fördelas enligt följande

El: 24 146 kr
Vatten och avlopp: 7 324 kr
Försäkring: 3 472 kr
Renhållning: 3 728 kr
Samfällighet: 1 200 kr
Sotning: 397 kr
Beskrivning: Från slutet av mars/början av april hjälper solpanelerna till att värma varmvattnet och minskar driftkostnaderna.

Utöver ovanstående eventuella driftkostnader tillkommer fastighetsavgift med belopp om 8 874 kr.

Observera att driftskostnaderna som anges ovan baseras på säljarens faktiska kostnader det senaste året om inget annat särskilt anges.
Vilka driftskostnader köparen kommer att ha beror på hur bostaden kommer att användas, vilka abonnemang som kommer att tecknas och övriga omständigheter i det enskilda fallet.

Taxering

Byggnad: 1 178 000 kr
Mark: 363 000 kr
Totalt: 1 541 000 kr
Taxeringsår: 2024
Taxeringsvärdet är: Fastställt
Värdeår: 1981
Standardpoäng: 29
Typkod: 220, Småhusenhet, bebyggd

Pantbrev

Det finns 4 pantbrev uttaget om sammanlagt 925 500 kr.

Försäkring

Svensk Fastighetsförmedling samarbetar med If för att underlätta ditt bostadsköp. När du köper bostad eller fritidshus genom Svensk Fastighetsförmedling är den automatiskt försäkrad. Vi kallar det Flytta in-försäkring. Den är kostnadsfri och gäller under de första 30 dagarna. Fortsätter du sedan att försäkra hemmet eller fritidshuset hos If får du 10% rabatt och flera andra unika förmåner. Fråga din mäklare för att ta del av erbjudandet.
Trygg affär - Varudeklarerad Villa

Alla bilder

+ 40 Visa alla 46 bilder
 

Planritning

Karta och område

Tjärnhedsvägen 24, Gagnef

Kalkyl

Vad kostar nya boendet?

Fler värden

Här nedanför kan du ändra ränta, amortering och driftkostnader och se hur de påverkar kalkylen.

Återställ alla värden
Visa fler

Ränta

Amortering

Driftkostnad per månad

Driftkostnad/månad

Observera att driftskostnaderna som anges ovan baseras på säljarens faktiska kostnader det senaste året om inget annat särskilt anges.

Vilka driftskostnader köparen kommer att ha beror på hur bostaden kommer att användas, vilka abonnemang som kommer att tecknas och övriga omständigheter i det enskilda fallet.

Boendekostnad per månad

Ränta
+  kr
Driftkostnad
+  kr
Fastighetsskatt/-avgift
+ 740 kr
Skattereduktion
 kr
Summa
ca  kr
Amortering
+  kr
Inkl amortering
ca  kr

Ansök om lånelöfte

Hos vårt systerbolag Ordna Bolån kan du enkelt ansöka om lånelöfte eller bolån. En ansökan, svar från flera banker.

Intresseformulär

Fyll i formuläret så kontaktar vi dig inom kort.

Kontaktuppgifter
Vänligen ange förnamn
Vänligen ange efternamn
Vänligen ange telefonnummer
Vänligen ange e-post
500 tecken kvar
Har du lånelöfte?*
Vill du ha hjälp med lånelöfte?
Vill du få nyheter och erbjudanden?

Oj, något gick fel! Försök igen. 

Ett ögonblick!
Tack, dina uppgifter är sparade!
Du fyllde inte i någon e-postadress. Ange den nedan för att inte missa någon information.
 
 
 
Ta del av vår integritetspolicy
 
 
 

Liknande bostäder till salu

Gagnef
Tjärnhedsvägen 24
Dela bostad: Dela på Facebook Dela med epost Dela med sms Kopiera länk Länken kopierad

Planritning