Hoppa till innehåll
Djurmo

Björkvägen 8

Trivsam och renoverad villa i trevliga Djurmo

  • Typ: Villa, 1 plan med källare
  • Rum: 4, varav 3 sovrum
  • Boarea: 103 m2
  • Biarea: 103 m2
  • Tomtarea: 949 m2
  • Byggnadsår: 1972
  • Driftkostnad: 49 442 kr/år
  • Upplåtelseform: Äganderätt

Välkommen till denna 1-plansvilla med källare, ett praktiskt, renoverat och lättskött boende med genomtänkt planlösning och goda utrymmen.
Här bor du med öppna sociala ytor, fint ljusinsläpp och altaner i flera väderstreck som ger möjlighet att följa solen under dagen.

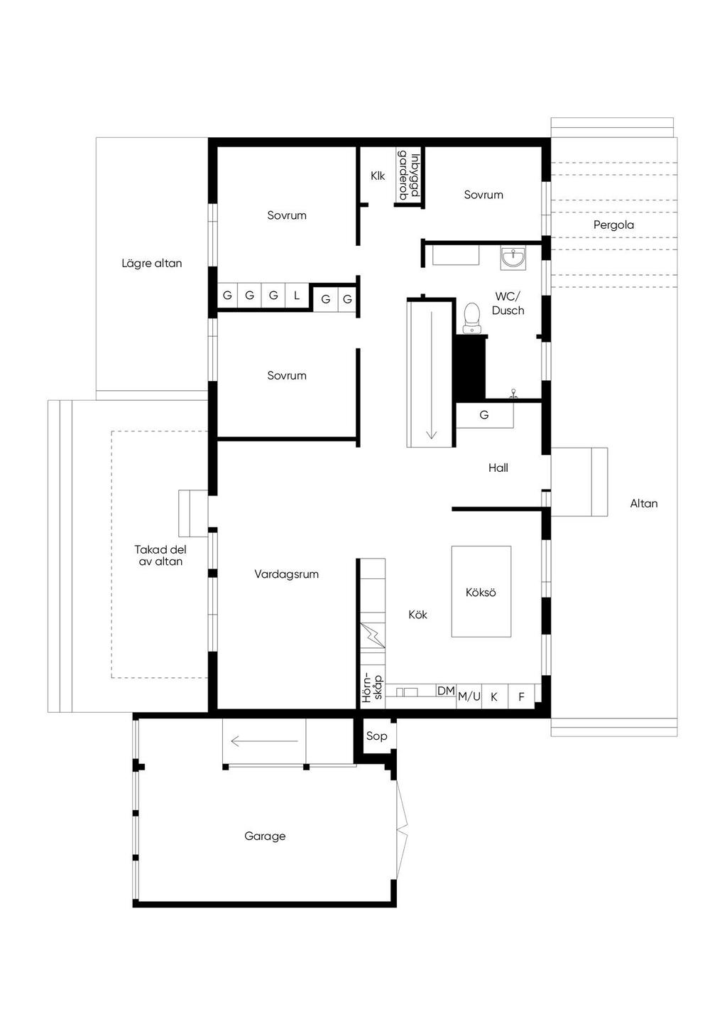
Entréplanet erbjuder ett rymligt kök med köksö och gott om arbetsytor, i öppen anslutning till vardagsrummet där det finns plats för både matsalsmöbler och soffgrupp. Vidare finns tre sovrum, klädkammare samt ett renoverat badrum. Entréplanet har genomgått renoveringar under de senaste åren, vilket ger en enhetlig, modern och trivsamt inbjudande känsla.
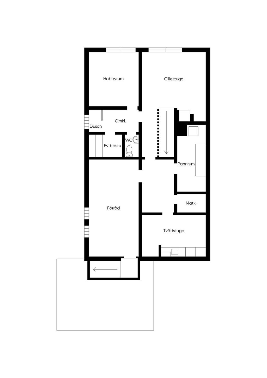
Källarplanet ger ytterligare utrymmen med bland annat gillestuga med öppen spis, rum som kan användas som kontor eller gästrum, helt nyrenoverad tvättstuga med bra arbetsytor samt flera praktiska förråd, hobbyrum och teknikutrymmen.

Vid entrén välkomnas du av ett generöst altandäck, och på baksidan finns ytterligare ett stort altandäck, delvis under tak, med utgång från vardagsrummet mot trädgården. Trädgården är en trivsam och ombonad tomt med bärbuskar, planteringar och ett rofyllt läge intill ett mindre skogsparti bakom huset.
På tomten finns även ett vidbyggt garage, carport samt en rymlig uppfart med plats för flera bilar.

Bostaden är belägen i Djurmo, ett lugnt och barnvänligt område med närhet till både natur och service. Här bor du nära skog och fina promenadstråk, elljusspår, badsjöar och Dalälven. I området finns förskola, skola och fritidsaktiviteter, och det är smidigt pendlingsavstånd till Borlänge, Falun och Leksand. Djurmo klack och naturreservatet Änjansdalen erbjuder uppskattade utflyktsmål året runt.

Ett hem som kombinerar funktion, utrymme och närhet till natur i ett område där många trivs!

Villan är besiktad för försäkringen Varudeklarerat och besiktningsprotokoll från Anticimex finns tillgängligt inför visning.

Välkommen med din visningsanmälan!

Om Bostaden

Beskrivning

Entréplan:
- Entréhall med plats för ytterkläder och en stor garderob. Vinylgolv (vattenburen golvvärme), målade väggar.
- Stort öppet och fullutrustat kök med rejäla arbetsytor och köksö med extra diskho och dolda eluttag. Vinylgolv, kaklade/tapetserade väggar.
- Vardagsrum med plats för både matgrupp och sittgrupp. Utgång till altanen mot trädgården. Vinylgolv, målade väggar.
- Sovrum 1 med garderob. Vinylgolv, målade väggar.
- Sovrum 2, det största sovrummet med garderobsvägg. Vinylgolv, målade väggar.
- Förråd/klädkammare.
- Sovrum 3 med garderob. Vinylgolv, målade väggar.
- Wc/dusch utrustat med toalett, hanfatskommod, stor duschplats och högskåp. Våtrumsmatta på golv och vägg.

Källarplan:
- Gillestuga med öppen spis. Trägolv, bröstpanel/tapetserade väggar.
- Kontorsrum/gästrum. Målad betong på golv och vägg.
- Wc utrustad med toalett och handfat. Målad betong på golv och vägg.
- Duschrum med förberedd bastu (förråd). Målad betong på golv och vägg.
- Pannrum med luft-vattenvärmepumpen, pelletspanna, pelletsförråd och apparatur till solfångare. Betong på golv och vägg.
- Verkstad/hobbyrum med uppgång till garaget.
- Svale/matförråd. Betong på golv och vägg.
- Nyrenoverad tvättstuga utrustad med IKEA köksstommar, bra arbetsytor, tvättmaskin och torktumlare. Målad betong på golv och vägg.

Sammanfattning

Typ: Villa, 1 plan med källare
Rum: 4, varav 3 sovrum
Boarea: 103 m2
Biarea: 103 m2
Tomtarea: 949 m2
Utgångspris: 2 295 000 kr
Byggnadsår: 1972
Driftkostnad: 49 442 kr/år
Upplåtelseform: Äganderätt

Kommentar till boarean

Boareauppgift enligt: Lantmäteriet

Uppvärmning

Värmepump luft-vatten, pelletspanna, solpaneler (för varmvatten), öppen spis

Byggnadssätt

Vatten: Kommunalt vatten året om
Avlopp: Kommunalt avlopp
Grund: Källare/Grundsula
Stomme: Trä
Fasad: Tegelstensfasad
Fönster: 2-glasfönster
Takbeklädnad: Betongpannor
Ventilation: Mekanisk från- och tilluftsventilation med återvinning (FTX)
Radon: Radonmätning utförd vintern 2019-2020.
Huvudsäkring: 16 A
Murstock: Skorsten av plåt

Renoveringar

2026:
Tvättstuga
Grusläggning framsida
2025:
Altan baksida
2023:
Dränering (2 sidor som ej dränerades 2010)
Altan framsida
2022:
Installation av luft-vattenvärmepump (pelletspanna finns kvar)
Badrum entréplan
2020-2021:
Ombyggnad kök och vardagsrum
El i samband med köksrenovering
Löpande:
Ytskikt, garderober, innerdörrar

Tidigare ägare:
Tak 2011
Fiberanslutning 2010
Dränering 2010 (2 sidor)
Carport 1995

Tomt/balkong/uteplats

Stort altandäck vid entrén
Stort atandäck, delvis med tak, mot trädgården

Övriga byggnader

Vidbyggt garage
Carport

Parkering

Vidbyggt garage
Carport
Uppfart med plats för flera bilar

Tv/Internetanslutning

Fiber finns installerat

Allmänt

Län: Dalarna
Kommun: Gagnef
Fastighetsbeteckning: GAGNEF DJURMO 1:39

Omgivning

Djurmo är ett omtyckt, lugnt och mycket barnvänligt område.
Förskola, grundskola F-6 samt fritidshem finns i byn, Djurmo-Sifferbo IF erbjuder aktiviteter för alla åldrar, och här finns även fina badplatser, elljusspår och ett gym.
Bra läge för pendling till Borlänge/Falun/Leksand etc. och cykelavstånd till Djurås där du har mataffärer, apotek, vårdcentral, restauranger och service.
En sevärdhet i området är Djurmo klack, berget med fantastisk vy över stora delar av kommunen, men framförallt över den närmsta bygden.

Planbestämmelser

Djurmo del av, Byggnadsplan (Beslutsdatum: 1967-01-24, Senast ändrad: 2025-04-03)

Övriga rättigheter och belastningar

Gemensamhetsanläggning: GAGNEF DJURMO GA:5

Ekonomi

Utgångspris

2 295 000 kr

Driftkostnader

49 442 kr/år
Årlig elförbrukning: 12629 kWh/år
Antal i hushållet: 5

Fördelas enligt följande

El: 28 929 kr
Vatten och avlopp: 9 588 kr
Försäkring: 5 000 kr
Renhållning: 3 125 kr
Samfällighet: 1 800 kr
Sotning: 1 000 kr

Utöver ovanstående eventuella driftkostnader tillkommer fastighetsavgift med belopp om 10 425 kr.

Observera att driftskostnaderna som anges ovan baseras på säljarens faktiska kostnader det senaste året om inget annat särskilt anges.
Vilka driftskostnader köparen kommer att ha beror på hur bostaden kommer att användas, vilka abonnemang som kommer att tecknas och övriga omständigheter i det enskilda fallet.

Taxering

Byggnad: 1 285 000 kr
Mark: 332 000 kr
Totalt: 1 617 000 kr
Taxeringsår: 2024
Taxeringsvärdet är: Fastställt
Värdeår: 1972
Standardpoäng: 32
Typkod: 220, Småhusenhet, bebyggd

Pantbrev

Det finns 7 pantbrev uttaget om sammanlagt 1 938 000 kr.

Energideklaration

Status: Energideklaration är utförd
Energiprestanda: 70 kWh/kvm/år
Energiklass: CC
Specifik energianvändning: 43 kWh/kvm/år
Energideklaration utförd: 2026-04-17
Besiktningsman: Jonas Eriksson, Anticimex Services KB

Försäkring

Svensk Fastighetsförmedling samarbetar med If för att underlätta ditt bostadsköp. När du köper bostad eller fritidshus genom Svensk Fastighetsförmedling är den automatiskt försäkrad. Vi kallar det Flytta in-försäkring. Den är kostnadsfri och gäller under de första 30 dagarna. Fortsätter du sedan att försäkra hemmet eller fritidshuset hos If får du 10% rabatt och flera andra unika förmåner. Fråga din mäklare för att ta del av erbjudandet.
Trygg affär - Varudeklarerad Villa

Alla bilder

+ 35 Visa alla 41 bilder
 

Planritning

Karta och område

Björkvägen 8, Djurmo

Kalkyl

Vad kostar nya boendet?

Fler värden

Här nedanför kan du ändra ränta, amortering och driftkostnader och se hur de påverkar kalkylen.

Återställ alla värden
Visa fler

Ränta

Amortering

Driftkostnad per månad

Driftkostnad/månad

Observera att driftskostnaderna som anges ovan baseras på säljarens faktiska kostnader det senaste året om inget annat särskilt anges.

Vilka driftskostnader köparen kommer att ha beror på hur bostaden kommer att användas, vilka abonnemang som kommer att tecknas och övriga omständigheter i det enskilda fallet.

Boendekostnad per månad

Ränta
+  kr
Driftkostnad
+  kr
Fastighetsskatt/-avgift
+ 869 kr
Skattereduktion
 kr
Summa
ca  kr
Amortering
+  kr
Inkl amortering
ca  kr

Ansök om lånelöfte

Hos vårt systerbolag Ordna Bolån kan du enkelt ansöka om lånelöfte eller bolån. En ansökan, svar från flera banker.

Intresseformulär

Fyll i formuläret så kontaktar vi dig inom kort.

Kontaktuppgifter
Vänligen ange förnamn
Vänligen ange efternamn
Vänligen ange telefonnummer
Vänligen ange e-post
500 tecken kvar
Har du lånelöfte?*
Vill du ha hjälp med lånelöfte?
Vill du få nyheter och erbjudanden?

Oj, något gick fel! Försök igen. 

Ett ögonblick!
Tack, dina uppgifter är sparade!
Du fyllde inte i någon e-postadress. Ange den nedan för att inte missa någon information.
 
 
 
Ta del av vår integritetspolicy
 
 
 

Liknande bostäder till salu

Gagnef
Björkvägen 8
Dela bostad: Dela på Facebook Dela med epost Dela med sms Kopiera länk Länken kopierad

Planritning