Hoppa till innehåll
 
Aktiv matchning
Aktiv matchning
Detta är en bostad som visas exklusivt på svenskfast.se. Mäklaren letar aktivt efter rätt köpare och uppgifter som pris och visningsdatum kan saknas. Anmäl ditt intresse för att få alla uppdateringar och mer information om denna bostad.
Vill du veta mer om bostaden?
Borlänge

Grönstigen 5

Aktiv matchning
Aktiv matchning
Detta är en bostad som visas exklusivt på svenskfast.se. Mäklaren letar aktivt efter rätt köpare och uppgifter som pris och visningsdatum kan saknas. Anmäl ditt intresse för att få alla uppdateringar och mer information om denna bostad.
Vill du veta mer om bostaden?

  • Typ: Villa, Enplansvilla med källare
  • Rum: 3, varav 2 sovrum
  • Boarea: 70 m2
  • Biarea: 70 m2
  • Tomtarea: 947 m2
  • Byggnadsår: 1940
  • Driftkostnad: 47 851 kr/år
  • Upplåtelseform: Äganderätt

Välkommen till Grönstigen 5!
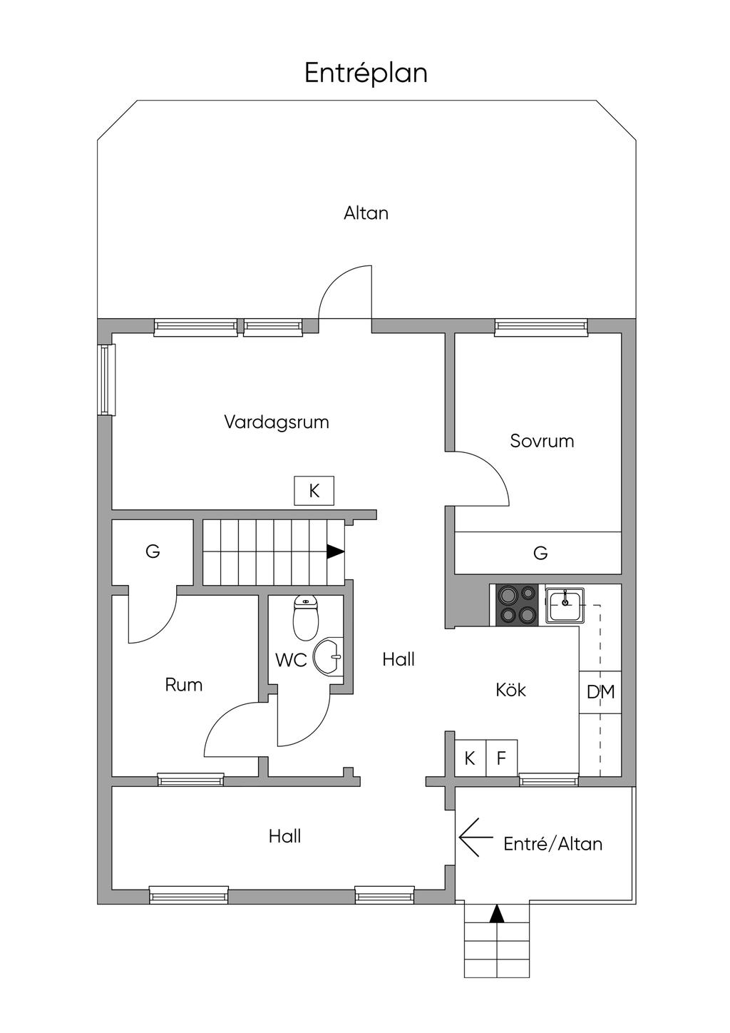
Här bor du i en välskött enplansvilla med källare uppförd 1940, som med tiden fått varsamma och smakfulla uppdateringar. Boytan om 86 kvm kompletteras av ytterligare 70 kvm i källarplanet, vilket skapar gott om plats för både vardagsliv och hobby.

Entréplanet bjuder på 3 rok med renoverat kök (2015), renoverad WC (2015), två sovrum samt ett vardagsrum med kamin och utgång till en större altan. I källaren väntar två rymliga rum perfekt som gästrum, tonårsdel, hemmakontor eller allrum. Här finns även renoverad WC (2015) med dusch samt en fräsch tvättstuga.

Huset har genomgått flera större renoveringar: Taket byttes 2014, köket renoverades 2015, båda WC renoverades 2015, dränering gjordes 2017 och fasaden målades 2021. Det är helt enkelt ett hem där det mesta redan är gjort – här är det bara att flytta rakt in och börja trivas.

Enligt säljarna är sommaren här årets höjdpunkt. Då kan du låta altandörren stå på glänt, njuta av den svenska sommarkvällen och låta blicken vila på gräset under den susande björken. Den stora altanen på baksidan blir snabbt favoritplatsen för middagar, umgänge och lata dagar i solen, medan barnen leker fritt på tomten. Vid entrén finns dessutom en nyare mindre altan som adderar både välkomnande känsla men även att fånga morgonsolen, varför inte avnjuta en kopp kaffe här på morgonen?

Läget är svårt att slå. Här bor du i ett mycket centralt område med närhet till centrum, bussförbindelser, förskola, skola och matbutiker som ICA Maxi. Älven ligger bara ett stenkast bort och ger fina promenadstråk året runt. På gatan råder god gemenskap – här hjälps grannarna åt och skapar en trygg och välkomnande känsla.

Vi förbereder just nu denna försäljning då säljarna letar nytt och större boende. Sitter du i ett större boende gärna enplansvilla och vill ha ett mindre boende. Tveka inte att höra av dig!
Varmt välkommen med din intresseanmälan!
/ Pia Rydén
Reg. Fastighetsmäklare
073-682 96 34

Om Bostaden

Beskrivning

Hall: Entréplan. Välkommen in! Avhängning till höger. Laminatgolv och målade väggar.
Kök: Entréplan. Utrustat med spishäll, inbyggd ugn, fläkt, diskmaskin, Kyl/frys. Laminatgolv och målade väggar.
Vardagsrum: Entréplan. Här finns en värmande kamin och utgång till den stora altanen på baksidan. Laminatgolv och målade väggar.
Sovrum 1: Entréplan. Inbyggd garderob. Laminatgolv och målade väggar.
Sovrum 2: Entréplan. Inbyggd garderob. Laminatgolv och tapetserad fondvägg samt målade väggar.
WC: Entréplan. Utrustat med toalett och kommod. Kakel på väggar och klinker på golv.
Hall: Källare. Målade väggar och matta på golv.
WC med dusch: Källare. Utrustat med toalett, badrumsskåp, kommod och dusch. Kakel på väggar och klinker på golv med golvvärme.
Kontor: Källare. Målade väggar och matta på golv.
Tvättstuga: Källare. Utrustat med tvättmaskin och torktumlare. Målade väggar och klinkerinspirerande vinylgolv.
Allrum: Källare. Målade väggar och matta på golv.

Sammanfattning

Typ: Villa, Enplansvilla med källare
Rum: 3, varav 2 sovrum
Boarea: 70 m2
Biarea: 70 m2
Tomtarea: 947 m2
Byggnadsår: 1940
Driftkostnad: 47 851 kr/år
Upplåtelseform: Äganderätt

Kommentar till boarean

Boareauppgift enligt: Lantmäteriet
Enligt uppgift från Lantmäteriet är bostaden 70+70kvm. Tidigare ägare har gjort en tillbyggnad vid entrén, enligt uppgift från tidigare prospekt är boarean 86kvm. Är arean av betydelse rekommenderar vi en areamätning.

Byggnadssätt

Vatten: Kommunalt vatten året om
Avlopp: Kommunalt avlopp
Fasad: Träfasad
Fönster: 3-glasfönster
Markbeskaffning: Trädgårdstomt

Renoveringar

Tidigare renoveringar:
2014 - Taket bytt
2015 - WC entréplan och badrum källare + Kök
2017 - Dränerat
2020 - Tilläggsisolerat

Nuvarande ägare:
2021 - Målat om fasad + Bytt altandörr och fönster 3-glas insatta i hela huset.
Ytskikt löpande

Tomt/balkong/uteplats

Mindre altan på framsidan vid entré uppförd 2023 och en stor altan på baksida uppförd 2021.

Allmänt

Län: Dalarna
Kommun: Borlänge
Område: Mjälga/Årby
Fastighetsbeteckning: BORLÄNGE KARESTÄPPAN 10

Planbestämmelser

För del av kvarteret åkerskogen och karestäppan, Detaljplan (Beslutsdatum: 2016-09-20, Registreringsdatum: 2016-10-26)

Övriga rättigheter och belastningar

Rättigheter last: Ledningsrätt: FJÄRRVÄRME
Ledningsrätt: TELE

Ekonomi

Driftkostnader

47 851 kr/år
Årlig elförbrukning: 7750 kWh/år
Antal i hushållet: 3

Fördelas enligt följande

El: 15 380 kr
Uppvärmning: 17 609 kr
Vatten och avlopp: 6 412 kr
Försäkring: 5 111 kr
Renhållning: 2 844 kr
Sotning: 495 kr

Utöver ovanstående eventuella driftkostnader tillkommer fastighetsavgift med belopp om 8 340 kr.

Observera att driftskostnaderna som anges ovan baseras på säljarens faktiska kostnader det senaste året om inget annat särskilt anges.
Vilka driftskostnader köparen kommer att ha beror på hur bostaden kommer att användas, vilka abonnemang som kommer att tecknas och övriga omständigheter i det enskilda fallet.

Taxering

Byggnad: 572 000 kr
Mark: 540 000 kr
Totalt: 1 112 000 kr
Taxeringsår: 2024
Taxeringsvärdet är: Fastställt
Värdeår: 1940
Standardpoäng: 20
Typkod: 220, Småhusenhet, bebyggd

Pantbrev

Det finns 11 pantbrev uttaget om sammanlagt 1 776 000 kr.

Försäkring

Svensk Fastighetsförmedling samarbetar med If för att underlätta ditt bostadsköp. När du köper bostad eller fritidshus genom Svensk Fastighetsförmedling är den automatiskt försäkrad. Vi kallar det Flytta in-försäkring. Den är kostnadsfri och gäller under de första 30 dagarna. Fortsätter du sedan att försäkra hemmet eller fritidshuset hos If får du 10% rabatt och flera andra unika förmåner. Fråga din mäklare för att ta del av erbjudandet.
Trygg affär - Varudeklarerad Villa

Alla bilder

Planritning

Karta och område

Grönstigen 5, Borlänge

Kalkyl

Vad kostar nya boendet?

Fler värden

Här nedanför kan du ändra ränta, amortering och driftkostnader och se hur de påverkar kalkylen.

Återställ alla värden
Visa fler

Ränta

Amortering

Driftkostnad per månad

Driftkostnad/månad

Observera att driftskostnaderna som anges ovan baseras på säljarens faktiska kostnader det senaste året om inget annat särskilt anges.

Vilka driftskostnader köparen kommer att ha beror på hur bostaden kommer att användas, vilka abonnemang som kommer att tecknas och övriga omständigheter i det enskilda fallet.

Boendekostnad per månad

Ränta
+  kr
Driftkostnad
+  kr
Fastighetsskatt/-avgift
+ 695 kr
Skattereduktion
 kr
Summa
ca  kr
Amortering
+  kr
Inkl amortering
ca  kr

Ansök om lånelöfte

Hos vårt systerbolag Ordna Bolån kan du enkelt ansöka om lånelöfte eller bolån. En ansökan, svar från flera banker.

Intresseformulär

Fyll i formuläret så kontaktar vi dig inom kort.

Kontaktuppgifter
Vänligen ange förnamn
Vänligen ange efternamn
Vänligen ange telefonnummer
Vänligen ange e-post
500 tecken kvar
Har du lånelöfte?*
Vill du ha hjälp med lånelöfte?
Vill du få nyheter och erbjudanden?

Oj, något gick fel! Försök igen. 

Ett ögonblick!
Tack, dina uppgifter är sparade!
Du fyllde inte i någon e-postadress. Ange den nedan för att inte missa någon information.
 
 
 
Ta del av vår integritetspolicy
 
 
 

Liknande bostäder till salu

Mjälga/Årby, Borlänge
Grönstigen 5
Dela bostad: Dela på Facebook Dela med epost Dela med sms Kopiera länk Länken kopierad

Planritning