Hoppa till innehåll
Borlänge

Örtgatan 16

LERGÄRDET - Villa med öppen planlösning och renoverat kök!

  • Typ: Villa, Enplansvilla med källare
  • Rum: 4, varav 3-4 sovrum
  • Boarea: 91 m2
  • Biarea: 121 m2
  • Tomtarea: 1 066 m2
  • Byggnadsår: 1963
  • Driftkostnad: 56 243 kr/år
  • Upplåtelseform: Äganderätt

Välkommen till denna trivsamma enplans tegelvilla med hel källare, belägen i populära och familjevänliga Lergärdet! Här har stora renoveringar utförts under åren, bland annat har yttertaket bytts, fönstren bytts och köket renoverats.

På entréplanet möts du av en öppen och social planlösning som skapar ett härligt flöde mellan rummen och släpper in rikligt med ljus! Den blottade murstocken blir ett naturligt blickfång mitt i bostaden, där kaminen bidrar med både värme och en ombonad känsla under årets kallare månader.

Från vardagsrummet kliver du vidare ut till det stora inglasade uterummet – en självklar samlingsplats som rymmer både familj och vänner. Här förlängs utesäsongen avsevärt, och vidare väntar en generös altan i soligt söderläge där du kan njuta av långa, härliga dagar i solen.

Köket är smakfullt renoverat och välutrustat med moderna bekvämligheter såsom induktionshäll och integrerad diskmaskin. Intill köket finner du en matplats där dina gäster kan slå sig ner medan du lagar mat.

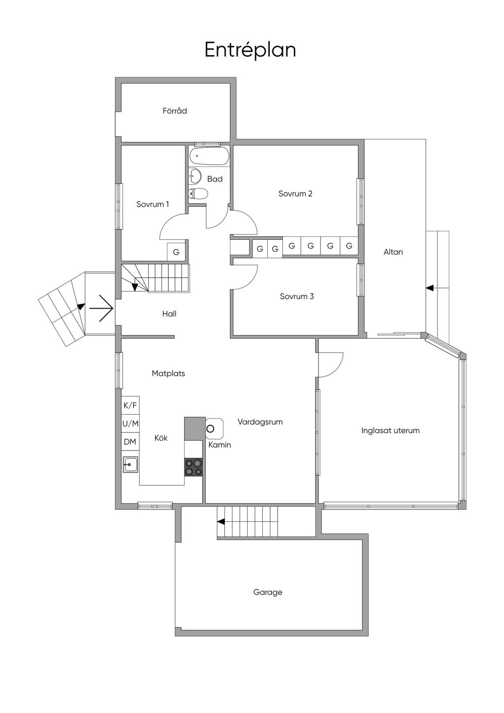
Entréplanet erbjuder dessutom tre rymliga sovrum samt ett helkaklat badrum.

I källaren finns gott om extra utrymmen som skapar flexibilitet för hela familjen, för här finner du ytterligare ett sovrum, en mysig gillestuga med bastu, tvättstuga med dusch samt ett stort hobbyrum med många användningsmöjligheter.

Med fjärrvärme och fiber får du ett bekvämt och lättskött boende med låga driftkostnader och snabb uppkoppling – perfekt för det moderna livet.

Här bor du i ett lugnt och uppskattat område med närhet till allt som underlättar vardagen. Ett hem att trivas i under många år framöver!

Anmäl dig på visning nu!

Om Bostaden

Beskrivning

Hall: Entréplan. Du välkomnas av en hall med laminatgolv och träpanel på väggarna. Intill entrén finns rn luft/luftvärmepump och avhängningsmöjligheter samt längre in i hallen finns ett inbyggt städskåp.
Sovrum 1: Entréplan. I sovrum 1 ligger ett laminatgolv och väggarna är målade. Här finns en inbyggd garderob.
Badrum: Entréplan. Det helkaklade badrummet är utrustat med el-golvvärme, toalett, badkar samt tvättställ med kommod.
Sovrum 2: Entréplan. Sovrum 2 har plastmatta på golvet och målade väggar. Här finns en garderobsvägg med inbyggda garderober.
Sovrum 3: Entréplan. I sovrum 3 ligger ett laminatgolv med inbyggd belysning och väggarna är målade. Här finns 2 st inbyggda garderober.
Vardagsrum: Entréplan. I vardagsrummet ligger ett laminatgolv och väggarna är målade. Här finner du en kamin samt utgången till det stora inglasade uterummet.
Kök: Entréplan. Köket har laminatgolv och väggarna är tapetserade. Köket är utrustat med induktionshäll, fläkt, integrerad diskmaskin, inbyggd ugn, inbyggd micro samt en kombinerad kyl/frys. Intill köket ryms en matplats.
Sovrum 4: Källare. I sovrum 4 ligger ett laminatgolv och väggarna är målade samt en tapetserad fondvägg. Här finns en inbyggd garderob.
WC: Källare. WC:n har klinkers på golvet och panelskivor på väggarna. WC:n är utrustad med toalett och tvättställ med kommod.
Gillestuga: Källare. Gillestugan har laminatgolv samt träpanel på väggarna. Här finns en bastu och ett förråd.
Tvättstuga: Källare. Tvättstugan har målad betong på väggar och golv. Tvättstugan är utrustad med tvättmaskin, torktumlare, tvättho samt duschkabin.

Sammanfattning

Typ: Villa, Enplansvilla med källare
Rum: 4, varav 3 sovrum, möjlighet till 4 sovrum
Boarea: 91 m2
Biarea: 121 m2
Tomtarea: 1 066 m2
Utgångspris: 2 295 000 kr
Byggnadsår: 1963
Driftkostnad: 56 243 kr/år
Upplåtelseform: Äganderätt

Kommentar till boarean

Boareauppgift enligt: Lantmäteriet

Uppvärmning

Fjärrvär + luft/luft + kamin

Byggnadssätt

Vatten: Kommunalt vatten året om
Avlopp: Kommunalt avlopp
Grund: Källare
Stomme: Betong/Trä
Fasad: Tegelstensfasad
Fönster: 3-glas isoler och 2-glas
Takbeklädnad: Betongpannor
Ventilation: Självdrag

Renoveringar

2025 - Installation av el-bilsladdare
2023 - Nytt vedförråd
2022 - Ny entrétapp. Ny duschkabin i källaren. Renovering av sovrum.
2021 - Ny altan. Installation av luft/luftvärmepump.
2020 - Nytt kök. Renovering av toalett i källaren. Nytt staket.
2019 - Ny väggpanel i hall.
2018 - Installation av ny vindstrapp. Nytt innertak i kök, vardagsrum och hall .
2017 - Ny fjärrvärmeväxlare.
2015 - Installation av braskamin. Nytt laminatgolv i kök, vardagsrum och hall. Ändrat planlösning och tagit bort vägg i kök, vardagsrum och hall.
2014 - Nytt kylskåp.
2000 - Nytt yttertak. Nya fönster. Byggnation av inglasat uterum.
1999 - Nytt badrum.

Tomt/balkong/uteplats

Stort inglasat uterum
Altan i söderläge

Övriga byggnader

Friggebod

Parkering

Vidbyggt garage

Tv/Internetanslutning

Fiber finns installerat

Allmänt

Län: Dalarna
Kommun: Borlänge
Område: Lergärdet
Fastighetsbeteckning: BORLÄNGE ÖRTEN 5

Planbestämmelser

Område sydost om lergärdsvägen, Stadsplan (Beslutsdatum: 1962-06-20, Senast ändrad: 2022-10-15)
Örten, Tomtindelning (Beslutsdatum: 1963-02-02, Senast ändrad: 1994-05-20)

Övriga rättigheter och belastningar

Rättigheter last: Ledningsrätt: FJÄRRVÄRME

Ekonomi

Utgångspris

2 295 000 kr

Driftkostnader

56 243 kr/år
Årlig elförbrukning: 12235 kWh/år
Antal i hushållet: 4

Fördelas enligt följande

El: 22 546 kr
Uppvärmning: 18 599 kr
Vatten och avlopp: 7 269 kr
Försäkring: 4 869 kr
Renhållning: 2 760 kr
Sotning: 200 kr

Utöver ovanstående eventuella driftkostnader tillkommer fastighetsavgift med belopp om 10 425 kr.

Observera att driftskostnaderna som anges ovan baseras på säljarens faktiska kostnader det senaste året om inget annat särskilt anges.
Vilka driftskostnader köparen kommer att ha beror på hur bostaden kommer att användas, vilka abonnemang som kommer att tecknas och övriga omständigheter i det enskilda fallet.

Taxering

Byggnad: 1 173 000 kr
Mark: 509 000 kr
Totalt: 1 682 000 kr
Taxeringsår: 2024
Taxeringsvärdet är: Fastställt
Värdeår: 1963
Standardpoäng: 29
Typkod: 220, Småhusenhet, bebyggd

Pantbrev

Det finns 14 pantbrev uttaget om sammanlagt 1 643 000 kr.

Energideklaration

Status: Energideklaration är utförd
Energiprestanda: 75 kWh/kvm/år
Energiklass: CC
Specifik energianvändning: 106 kWh/kvm/år
Energideklaration utförd: 2026-03-27
Besiktningsman: Anders Norell

Försäkring

Svensk Fastighetsförmedling samarbetar med If för att underlätta ditt bostadsköp. När du köper bostad eller fritidshus genom Svensk Fastighetsförmedling är den automatiskt försäkrad. Vi kallar det Flytta in-försäkring. Den är kostnadsfri och gäller under de första 30 dagarna. Fortsätter du sedan att försäkra hemmet eller fritidshuset hos If får du 10% rabatt och flera andra unika förmåner. Fråga din mäklare för att ta del av erbjudandet.
Trygg affär - Varudeklarerad Villa

Alla bilder

+ 31 Visa alla 37 bilder
 

Planritning

Karta och område

Örtgatan 16, Borlänge

Kalkyl

Vad kostar nya boendet?

Fler värden

Här nedanför kan du ändra ränta, amortering och driftkostnader och se hur de påverkar kalkylen.

Återställ alla värden
Visa fler

Ränta

Amortering

Driftkostnad per månad

Driftkostnad/månad

Observera att driftskostnaderna som anges ovan baseras på säljarens faktiska kostnader det senaste året om inget annat särskilt anges.

Vilka driftskostnader köparen kommer att ha beror på hur bostaden kommer att användas, vilka abonnemang som kommer att tecknas och övriga omständigheter i det enskilda fallet.

Boendekostnad per månad

Ränta
+  kr
Driftkostnad
+  kr
Fastighetsskatt/-avgift
+ 869 kr
Skattereduktion
 kr
Summa
ca  kr
Amortering
+  kr
Inkl amortering
ca  kr

Ansök om lånelöfte

Hos vårt systerbolag Ordna Bolån kan du enkelt ansöka om lånelöfte eller bolån. En ansökan, svar från flera banker.

Visningsanmälan

Fyll i formuläret så kontaktar vi dig inom kort.

Välj mellan nedan alternativ
Tisdag 14 april
Anmälan krävs

Örtgatan 16, 784 65 Borlänge
Anmälan krävs för visning!
Jag vill veta mer om bostaden

Kontaktuppgifter
Vänligen ange förnamn
Vänligen ange efternamn
Vänligen ange telefonnummer
Vänligen ange e-post
500 tecken kvar
Har du lånelöfte?*
Vill du ha hjälp med lånelöfte?
Vill du få nyheter och erbjudanden?

Oj, något gick fel! Försök igen. 

Ett ögonblick!
Tack, dina uppgifter är sparade!
Du fyllde inte i någon e-postadress. Ange den nedan för att inte missa någon information.
 
 
 
Ta del av vår integritetspolicy
 
 
 

Liknande bostäder till salu

Lergärdet, Borlänge
Örtgatan 16
Dela bostad: Dela på Facebook Dela med epost Dela med sms Kopiera länk Länken kopierad

Planritning