Hoppa till innehåll
Herräng

Tulkavägen 190

Nybyggt rymligt hus med med 4 ha mark i ett skifte

  • Typ: Lantbruk/Gård
  • Inriktning: Fritid, Övrigt, Gård
  • Rum: 7
  • Boarea: 160 m2
  • Tomtarea: 43 515 m2
  • Total area: 43 515 m2
  • Driftkostnad: 12 680 kr/år
  • Upplåtelseform: Äganderätt

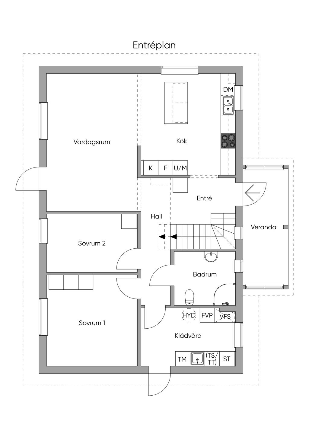
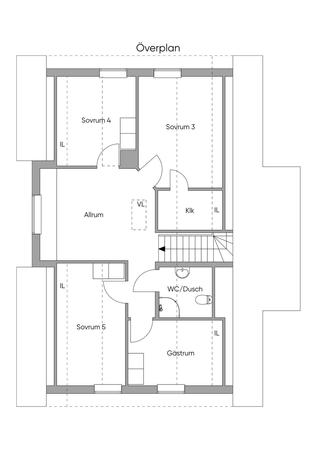
Nytt hus om 160 kvm och med förhöjt väggliv, byggt år 2021 med hela 6 sovrum, två allrum och två badrum/wc, badrummet på övre plan har elektrisk golvvärme. Trevligt trädäck om ca 60 kvm byggt år 2022 på baksidan med utgång från vardagsrummet. Vardagsrum och kök finns i öppen planlösning och mitt i huset finns en braskamin. På entréplan finns två av sovrummen och fyra finns på övre plan. Husets uppvärmning sker till vattenburen golvvärme på entréplan och på övre plan finns vattenburna radiatorer, värmesystemet har en stor luftvattenvärmepump som värmekälla. På hustaket i söder finns solcellsanläggning installerad och kopplad till 10 kWh batterier, som finns i husets tvättstuga. Energiförbrukningen på fastigheten är väldigt låg, endast ca 6000-7000 kWh/år. Carport/varmförråd, rummet där är ca 35 kvm stort. Fastigheten är taxerad som en lantbruksenhet och det finns möjlighet att bygga ekonomibyggnader på marken. Tulka är en trevlig liten by ca 5 km utanför Hallstavik, som har service som flera förskolor, skolor upp till 9:e klass, vårdcentral, apotek, pizzerior, matbutiker, cafe, utomhusbad etc. I Herräng, ca 5 km norrut från fastigheten finns bl.a. Herrängs Marina och kommunal badplats. Välkomna till visning!

Om Lantbruket

Sammanfattning

Typ: Lantbruk/Gård
Inriktning: Fritid, Övrigt, Gård
Tomtarea: 43 515 m2
Total area: 43 515 m2
Pris (Utgångspris): 5 850 000 kr
Driftkostnad: 12 680 kr/år
Upplåtelseform: Äganderätt
Tomtareauppgift enligt: Lantmäteriet

Allmänt

Län: Stockholm
Kommun: Norrtälje
Område: Herräng
Fastighetsbeteckning: NORRTÄLJE TULKA 1:60

Övriga rättigheter och belastningar

Rättigheter last: Avtalsservitut: ELLEDNING MM - SE BESKRIVNING
Avtalsrättigheter: Avtalsservitut ELLEDNING MM
Avtalsnyttjanderätt TELE

Om

Sammanfattning

Typ: Småhusbyggnad
Rum: 7
Boarea: 160 m2. Boareauppgift enligt: Lantmäteriet
Byggnadsår: 2021

Byggnadssätt

Vatten: Egen borrad brunn
Avlopp: Avloppsbrunn med infiltration
Grund: Betongplatta
Stomme: Trä
Fasad: Träfasad
Fönster: 3-glasfönster isoler
Takbeklädnad: Betongpannor
Ventilation: Mekanisk frånluft
Murstock: Skorsten av plåt

Tv/Internetanslutning

Starlink satellitinternet fungerar väl för närvarande. Fiberdragning är på gång under våren 2026, ca 20-30 meter från huset ingår i installationskostnaden, om köparen önskar att beställa och installera den.

Taxering

Taxeringsvärde: 3 151 000 kr
Värdeår: 2021

Ekonomi

Pris (Utgångspris)

5 850 000 kr

Driftkostnader

12 680 kr/år
Årlig elförbrukning: 6225 kWh/år
Antal i hushållet: 5

Fördelas enligt följande

Uppvärmning: 605 kr
Vatten och avlopp: 1 800 kr
Försäkring: 7 275 kr
Renhållning: 3 000 kr

Observera att driftskostnaderna som anges ovan baseras på säljarens faktiska kostnader det senaste året om inget annat särskilt anges.
Vilka driftskostnader köparen kommer att ha beror på hur bostaden kommer att användas, vilka abonnemang som kommer att tecknas och övriga omständigheter i det enskilda fallet.

Taxering

Byggnad: 3 151 000 kr
Mark: 869 000 kr
Totalt: 4 020 000 kr
Taxeringsår: 2023
Taxeringsvärdet är: Fastställt
Typkod: 120, Lantbruksenhet bebyggd

Pantbrev

Det finns 1 pantbrev uttaget om sammanlagt 3 500 000 kr.

Alla bilder

+ 22 Visa alla 28 bilder
 

Planritning

Karta och område

Tulkavägen 190, Herräng

Intresseformulär

Fyll i formuläret så kontaktar vi dig inom kort.

Kontaktuppgifter
Vänligen ange förnamn
Vänligen ange efternamn
Vänligen ange telefonnummer
Vänligen ange e-post
500 tecken kvar
Har du lånelöfte?*
Vill du ha hjälp med lånelöfte?
Vill du få nyheter och erbjudanden?

Oj, något gick fel! Försök igen. 

Ett ögonblick!
Tack, dina uppgifter är sparade!
Du fyllde inte i någon e-postadress. Ange den nedan för att inte missa någon information.
 
 
 
Ta del av vår integritetspolicy
 
 
 

Liknande bostäder till salu

Herräng, Norrtälje
Tulkavägen 190
Dela bostad: Dela på Facebook Dela med epost Dela med sms Kopiera länk Länken kopierad

Planritning