Hoppa till innehåll
Västra Frölunda

Runstensvägen 12 B

Unikt läge med vidunderlig utsikt över hav & skärgård

  • Typ: Fritidshus
  • Rum: 2, varav 1-2 sovrum
  • Boarea: ca 30 m2
  • Driftkostnad: 16 150 kr/år
  • Upplåtelseform: Arrenderätt

Välkommen till en sällsynt möjlighet att förvärva ett boende med ett av områdets mest eftertraktade lägen. Här bor du högt och fritt med en vidunderlig utsikt över hav och skärgård – en plats där lugnet infinner sig så fort du kliver upp på berget.

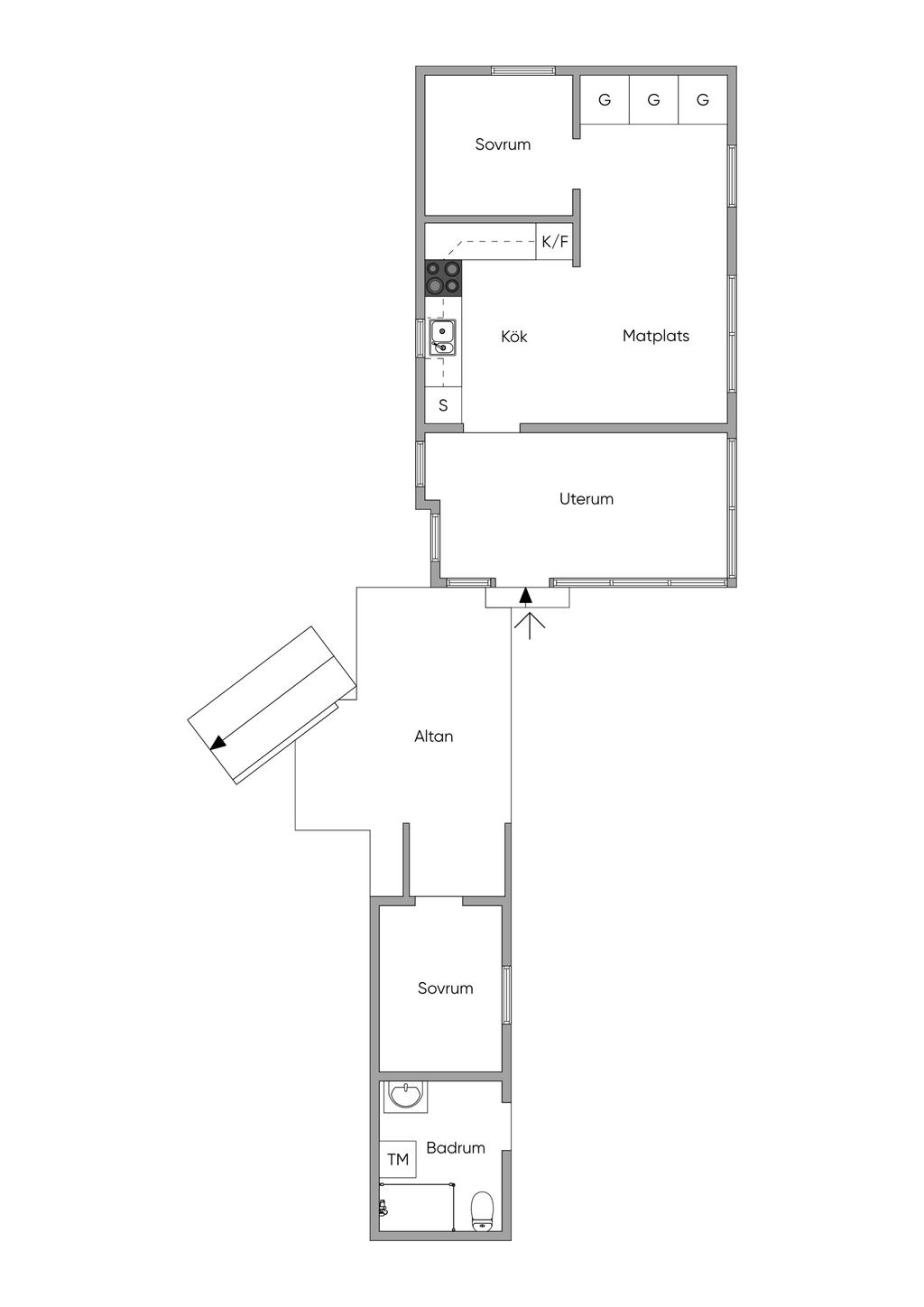
Bostaden fördelas på två byggnader och tre rum och kök och erbjuder goda möjligheter att skapa ett personligt och trivsamt hem.
En unik chans att etablera sig i ett attraktivt område där liknande möjligheter sällan erbjuds.

Nuvarande ägare berättar om över 50 år fyllda av minnen från denna magiska plats. Här har de njutit av stillheten, naturen och närheten till havet. Morgonkaffet har ofta avnjutits med utsikt över skärgården, där båtar och vågor skapar ett ständigt levande landskap.

Den inglasade verandan har varit en självklar samlingsplats, med många middagar i solnedgången över havet. Fyrarna Valö och Vinga sätter sin prägel på horisonten och förstärker den genuina skärgårdskänslan.

Området bjuder också på en stark gemenskap – midsommar firas på ängen med dans kring midsommarstången och sensommarkvällar fylls ofta av trevliga grillkvällar. Här finns fina promenadstråk över klipporna och närhet till flera badplatser, vilket gör detta till ett lika självklart sommarparadis som ett uppskattat utflyktsmål året om.

Läget är svårslaget, med närhet till Smithska udden med både klippor och badstrand, samt småbåtshamn för den båtintresserade. Parkering finns i anslutning till bostaden, vilket gör vardagen enkel.

Detta är ett boende för dig som söker något mer än bara ett hus – en plats att landa på, leva i och skapa minnen för generationer framåt.

-Detta är en arrendestuga och vanligt bolån gäller ej.

-Uthyrning är ej tillåtet.

Om Bostaden

Sammanfattning

Typ: Fritidshus
Rum: 2, varav 1 sovrum, möjlighet till 2 sovrum
Boarea: ca 30 m2
Pris (Utgångspris): 2 650 000 kr
Driftkostnad: 16 150 kr/år
Upplåtelseform: Arrenderätt

Kommentar till boarean

Boareauppgift enligt: Arean är uppskattad
Ej uppmätt

Uppvärmning

Direktverkande el

Byggnadssätt

Vatten: Kommunalt sommarvatten
Avlopp: Kommunalt avlopp sommar
Grund: Krypgrund
Stomme: Trä
Fasad: Stående träpanel
Fönster: 3-glasfönster isoler
Takbeklädnad: Plåt
Ventilation: Självdrag

Tomt/balkong/uteplats

Underbara terrasser byggda på klipporna med vidsträckt utsikt över havet. Här finns också plan gräsmatta.
Inglasat uterum vid entrén försedd med infravärme blir den naturliga matplatsen när vädret sviker.

Övriga byggnader

Intill huset finns en byggnad med ett extra sovrum samt ett fullutrustat badrum med duschkabin, toalett, handfat och tvättmaskin.

Parkering

Parkering för 2-3 bilar finns längst med Runstensvägen, ett tio-tal meter från huset (se bild)

Tv/Internetanslutning

Mobilt bredband fungerar bra

Allmänt

Län: Västra Götaland
Kommun: Göteborg
Område: Näset
Fastighetsbeteckning: Göteborg Näset 759:388

Omgivning

Näset är en cirka 3 km lång och 2 km bred halvö sydväst om Göteborg. Liksom flera områden i Västra Göteborg för Näsets historia oss tillbaka till sten- och bronsåldern och man tros ha ägnat sig åt jordbruk och fiske i området. I slutet av 1800-talet började man bryta sten längs kustremsan. Den verksamheten pågick fram till första världskriget och satte sina spår i kustlandskapet. På 1920-talet började man plantera skog och etablera sommarstugor i området. Under 1940-talet blev området en del av Göteborg och nu tog byggnationen av sommarbostäder fart. Sakta men säkert har sommarbostäderna sedan övergått till permanentbostäder och numera utgörs bebyggelsen mest av villa- och radhusområden.

Bor man på Näset har man strand, klippor, badvikar och båthamnar på bara några minuters gångavstånd. För dig med båtintresse finns fina småbåtshamnar som t.ex. Björlahamnen, Rörvik och Hammar varifrån man lätt kan ta sig vidare ut till Göteborgs södra skärgård.

Näset är inte bara hav, bad och båtliv. Här finns alla möjligheter till motion året runt. Vid Åkeredsrondellen ligger Sportarenan där man kan spela tennis, badminton, fotboll och minigolf.

För den som tycker om att promenera finns vackra naturstigar runt hela halvön med massor av smultronställen som badplatserna vid Möttvik, Smithska udden, Hammar, Hängesten, Rörvik, Stegerholmen och Saltsjönäs. Vid Välens ekologiska fritids- och våtmarksområde kan man bland annat njuta av fågelskådning.

När det gäller skolor och barnomsorg finns det flera alternativ att välja mellan. Läs gärna mer på www.goteborg.se.

Närområdets matbutik finns vid Åkeredsrondellen. I området finns även pizzerior och café.

Inte långt från Näset finner man expansiva Frölunda Torg med sitt stora utbud av butiker och service. Intill Frölunda Torg ligger Frölunda Kulturhus som bl.a. erbjuder biograf och olika kulturella aktiviteter. Här finns också en simhall och ett stort bibliotek. Till Frölunda Torg tar du dig lätt med buss eller cykel. Frölunda Resecentrum är områdets knutpunkt och därifrån tar man sig smidigt vidare ut till stadens olika delar med både spårvagn och buss. Läs gärna mer på www.vasttrafik.se.

Ekonomi

Pris (Utgångspris)

2 650 000 kr

Driftkostnader

16 150 kr/år
Antal i hushållet: 2

Fördelas enligt följande

El: 12 000 kr
Försäkring: 1 500 kr
Vägsamgällighet: 150 kr
Medlemskap: 2 500 kr
Beskrivning: I föreningsavgsiften ingår vatten och sophantering

Arrende

Arrendekostnad: 17 400 kr
Arrendeperiod: Arrendekostnaden räknas upp årligen med KPI

Observera att driftskostnaderna som anges ovan baseras på säljarens faktiska kostnader det senaste året om inget annat särskilt anges.
Vilka driftskostnader köparen kommer att ha beror på hur bostaden kommer att användas, vilka abonnemang som kommer att tecknas och övriga omständigheter i det enskilda fallet.

Taxering

Taxeringsvärdet är: Ej fastställt
Typkod: 225, Småhusenhet, småhus på ofri grund

Pantbrev

Det finns 0 pantbrev uttaget om sammanlagt 0 kr

Energideklaration

Status: Energideklaration behövs ej

Försäkring

Svensk Fastighetsförmedling samarbetar med If för att underlätta ditt bostadsköp. När du köper bostad eller fritidshus genom Svensk Fastighetsförmedling är den automatiskt försäkrad. Vi kallar det Flytta in-försäkring. Den är kostnadsfri och gäller under de första 30 dagarna. Fortsätter du sedan att försäkra hemmet eller fritidshuset hos If får du 10% rabatt och flera andra unika förmåner. Fråga din mäklare för att ta del av erbjudandet.

Alla bilder

+ 18 Visa alla 24 bilder
 

Planritning

Karta och område

Runstensvägen 12 B, Västra Frölunda

Kalkyl

Vad kostar nya boendet?

Ansvarig mäklare erbjuder dig som ska köpa bostad en skriftlig beräkning av dina personliga boendekostnader. Kontakta mäklaren om du önskar en boendekostnadskalkyl.

Visningsanmälan

Fyll i formuläret så kontaktar vi dig inom kort.

Välj mellan nedan alternativ
Onsdag 6 maj
Anmälan krävs

Runstensvägen 12 B, 421 66 Västra Frölunda
Lördag 9 maj
Anmälan krävs

Runstensvägen 12 B, 421 66 Västra Frölunda
Jag vill veta mer om bostaden

Kontaktuppgifter
Vänligen ange förnamn
Vänligen ange efternamn
Vänligen ange telefonnummer
Vänligen ange e-post
500 tecken kvar
Har du lånelöfte?*
Vill du ha hjälp med lånelöfte?
Vill du få nyheter och erbjudanden?

Oj, något gick fel! Försök igen. 

Ett ögonblick!
Tack, dina uppgifter är sparade!
Du fyllde inte i någon e-postadress. Ange den nedan för att inte missa någon information.
 
 
 
Ta del av vår integritetspolicy
 
 
 

Liknande bostäder till salu

Näset, Göteborg
Runstensvägen 12 B
Dela bostad: Dela på Facebook Dela med epost Dela med sms Kopiera länk Länken kopierad

Planritning