Hoppa till innehåll
Edsbro

Stockkärrsvägen 108

Stort fritidshus med plats för hela familjen och gäster!

  • Typ: Fritidshus, 1-plan fritidshus
  • Rum: 5, varav 4 sovrum
  • Boarea: 71 m2
  • Tomtarea: 1 764 m2
  • Byggnadsår: 1978
  • Driftkostnad: 36 119 kr/år
  • Upplåtelseform: Äganderätt

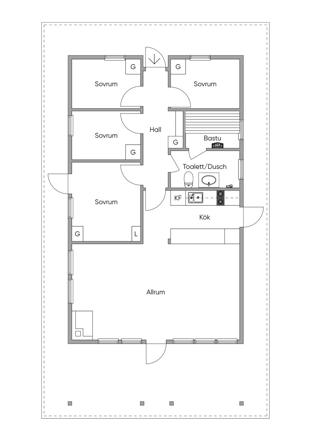
Välkommen till detta rymliga och välplanerade fritidshus som erbjuder gott om plats för både familj och vänner. Huvudbyggnaden rymmer hela fyra sovrum samt ett fräscht badrum med dusch, WC och avkopplande bastu – perfekt efter en dag vid sjön eller i naturen.

Husets hjärta är det generösa allrummet med öppet i nock som skapar en härlig rymd och ljus atmosfär, här finns även en öppen spis med insats för kyligare kvällar. De stora fönsterpartierna vetter mot den insynsskyddade baksidan av tomten och suddar ut gränsen mellan ute och inne. Härifrån nås även den trivsamma uteplatsen under tak, idealisk för långa sommarkvällar och middagar i det fria. I direkt anslutning till allrummet finns matplats och kök i öppen planlösning – en social yta som inbjuder till umgänge.

Den stora och plana tomten är välskött med flera planteringar och gott om yta för lek, avkoppling och framtida möjligheter. På tomten finns även ett rymligt gästhus med stort allrum/sovrum samt en enklare köksdel. Gästhuset kan vid behov delas av och användas som två separata sovrum, vilket gör det perfekt för gäster eller äldre barn. Här finns dessutom ett fristående mindre förråd samt ytterligare förrådsutrymme i anslutning till gästhuset.

Fastigheten är belägen i ett trevligt och omtyckt område med gångavstånd till badsjö – en riktig sommaridyll för hela familjen.

Ett fritidshus som kombinerar generösa ytor, lugnt läge och närhet till natur och bad. Välkommen att uppleva detta trivsamma boende på plats!

Om Bostaden

Sammanfattning

Typ: Fritidshus, 1-plan fritidshus
Rum: 5, varav 4 sovrum
Boarea: 71 m2
Tomtarea: 1 764 m2
Pris (Utgångspris): 1 695 000 kr
Byggnadsår: 1978
Driftkostnad: 36 119 kr/år
Upplåtelseform: Äganderätt

Kommentar till boarean

Boareauppgift enligt: Lantmäteriet

Uppvärmning

Luftvärmepump, direktverkande el, braskamin

Byggnadssätt

Vatten: Egen grävd brunn, sommarvatten från samfällighetsförening
Avlopp: Sluten tank med BDT
Ventilation: Självdrag

Allmänt

Län: Stockholm
Kommun: Norrtälje
Fastighetsbeteckning: NORRTÄLJE SMARA 1:240

Planbestämmelser

Smara norra delen ändring, Byggnadsplan (Beslutsdatum: 1976-10-13, Senast ändrad: 2023-02-24)

Övriga rättigheter och belastningar

Gemensamhetsanläggning: NORRTÄLJE SMARA GA:4 - VÄG
NORRTÄLJE SMARA GA:5 - VATTENANLÄGGNING,INFILTRATIONSANLÄGGNING
NORRTÄLJE SMARA GA:6 - BRANDDAMM,GRÖNOMRÅDE,BADPLATSER
NORRTÄLJE SMARA GA:2 - VÄG:VÄGBANA OCH ÖVRIGA VÄGANORDNINGAR SÅSOM DIKE,SLÄNT,TRUMMA,MÖTESPLATS,VÄNDPLATS,BUSSVÄNDPLATS OCH VÄGMÄRKEN.

Ekonomi

Pris (Utgångspris)

1 695 000 kr

Driftkostnader

36 119 kr/år
Årlig elförbrukning: 6800 kWh/år
Antal i hushållet: 2

Fördelas enligt följande

El: 17 300 kr
Vatten och avlopp: 7 060 kr
Försäkring: 4 364 kr
Renhållning: 1 600 kr
Samfällighet: 5 100 kr
Sotning: 695 kr

Utöver ovanstående eventuella driftkostnader tillkommer fastighetsavgift med belopp om 8 685 kr.

Observera att driftskostnaderna som anges ovan baseras på säljarens faktiska kostnader det senaste året om inget annat särskilt anges.
Vilka driftskostnader köparen kommer att ha beror på hur bostaden kommer att användas, vilka abonnemang som kommer att tecknas och övriga omständigheter i det enskilda fallet.

Taxering

Byggnad: 657 000 kr
Mark: 501 000 kr
Totalt: 1 158 000 kr
Taxeringsår: 2024
Taxeringsvärdet är: Fastställt
Värdeår: 1978
Standardpoäng: 22
Typkod: 220, Småhusenhet, bebyggd

Pantbrev

Det finns 2 pantbrev uttaget om sammanlagt 1 275 000 kr.

Försäkring

Svensk Fastighetsförmedling samarbetar med If för att underlätta ditt bostadsköp. När du köper bostad eller fritidshus genom Svensk Fastighetsförmedling är den automatiskt försäkrad. Vi kallar det Flytta in-försäkring. Den är kostnadsfri och gäller under de första 30 dagarna. Fortsätter du sedan att försäkra hemmet eller fritidshuset hos If får du 10% rabatt och flera andra unika förmåner. Fråga din mäklare för att ta del av erbjudandet.

Alla bilder

+ 21 Visa alla 27 bilder
 

Planritning

Karta och område

Stockkärrsvägen 108, Edsbro

Kalkyl

Vad kostar nya boendet?

Fler värden

Här nedanför kan du ändra ränta, amortering och driftkostnader och se hur de påverkar kalkylen.

Återställ alla värden
Visa fler

Ränta

Amortering

Driftkostnad per månad

Driftkostnad/månad

Observera att driftskostnaderna som anges ovan baseras på säljarens faktiska kostnader det senaste året om inget annat särskilt anges.

Vilka driftskostnader köparen kommer att ha beror på hur bostaden kommer att användas, vilka abonnemang som kommer att tecknas och övriga omständigheter i det enskilda fallet.

Boendekostnad per månad

Ränta
+  kr
Driftkostnad
+  kr
Fastighetsskatt/-avgift
+ 724 kr
Skattereduktion
 kr
Summa
ca  kr
Amortering
+  kr
Inkl amortering
ca  kr

Ansök om lånelöfte

Hos vårt systerbolag Ordna Bolån kan du enkelt ansöka om lånelöfte eller bolån. En ansökan, svar från flera banker.

Intresseformulär

Fyll i formuläret så kontaktar vi dig inom kort.

Kontaktuppgifter
Vänligen ange förnamn
Vänligen ange efternamn
Vänligen ange telefonnummer
Vänligen ange e-post
500 tecken kvar
Har du lånelöfte?*
Vill du ha hjälp med lånelöfte?
Vill du få nyheter och erbjudanden?

Oj, något gick fel! Försök igen. 

Ett ögonblick!
Tack, dina uppgifter är sparade!
Du fyllde inte i någon e-postadress. Ange den nedan för att inte missa någon information.
 
 
 
Ta del av vår integritetspolicy
 
 
 

Liknande bostäder till salu

Norrtälje
Stockkärrsvägen 108
Dela bostad: Dela på Facebook Dela med epost Dela med sms Kopiera länk Länken kopierad

Planritning