Hoppa till innehåll
Edsbro

Hästhagsvägen 31

Trevlig sommarstuga i naturnära läge

  • Typ: Övrigt, 1 plans hus
  • Rum: 4, varav 3 sovrum
  • Boarea: 47 m2
  • Tomtarea: 2 695 m2
  • Byggnadsår: 1970
  • Upplåtelseform: Äganderätt

Ett perfekt hus för dig som vill komma ifrån stadens jäkt och stress för att njuta av lugnet och stillheten! Endast 1 timme från stan ligger detta enkla och trevliga hus med 3 mindre sovrum, allrum och kök i öppen planlösning med värmande vedspis i mitten av huset. Ca 500 meter till busshållplats med direktkommunikationer till tekniska högskolan, Norrtälje och Hallstavik. Bussarna avgår tätt vilket ger goda pendlingsmöjligheter.
Nytt golv och golvisolering från år 2023 i kök och två av sovrummen. Allrumsdelen har öppet till nocken och man har utgång därifrån till altanen i insynsskyddat läge och utmed två sidor av huset, delvis med markis. En utedusch vid altanen, förråd för redskap och ett uthus där toaletten är. Borrad brunn delas med en granne. Fiber finns indragen till fastigheten och man kan fjärrstyra värme-element via en app. Välkomna till visning!

Om Bostaden

Beskrivning

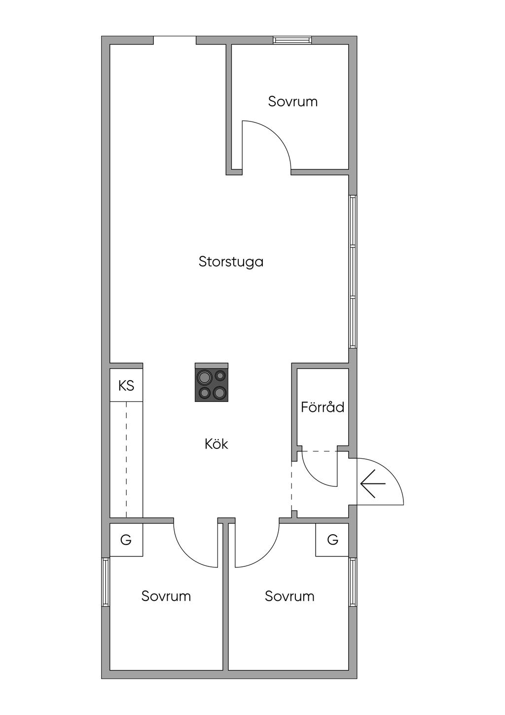
Ingång via altanen.

HALL
Direkt till höger finns en liten klädkammare för att hänga av ytterkläder.

KÖK OCH ALLRUM
Öppen planlösning med öppet till taknock i allrumsdelen. En centralt placerad vedspis ger skön värme. Köksluckorna har vita släta luckor. Indraget vatten och avlopp ut till stenkista, kyl/frys samt bänk spis med två plattor och ugn. Allrum i vinkel och utgång till altanen.

3 SOVRUM
Tre likvärdiga sovrum varav två ligger i anslutning till entré och kök och det tredje har ingång från allrummet.

Sammanfattning

Typ: Övrigt, 1 plans hus
Rum: 4, varav 3 sovrum
Boarea: 47 m2
Tomtarea: 2 695 m2
Pris (Utgångspris): 1 395 000 kr
Byggnadsår: 1970
Upplåtelseform: Äganderätt
Inflyttning: Enligt överenskommelse

Kommentar till boarean

Boareauppgift enligt: Lantmäteriet

Uppvärmning

Vedspis, fjärrstyrd elradiator

Byggnadssätt

Vatten: Sommarvatten
Avlopp: Avlopp saknas
Grund: Torpargrund
Stomme: Trä
Bjälklag: Trä
Fasad: Träfasad
Fönster: 2-glasfönster
Takbeklädnad: Betongpannor
Ventilation: Självdrag
Murstock: Skorsten av plåt
Kommentar: Gemensam brunn med en granne, servitut finns. Brunnen ligger på denna fastighet. Diskvattnet går ut till en stenkista på baksidan av huset.

Renoveringar

Om-/tillbyggnadsår: 1980
Golvet i kök och de två intilliggande sovrummen har nytt trägolv och ny isolering.

Tomt/balkong/uteplats

Stor altan utmed två sidor av huset. På altanens syd/östra del finns en markis.
Plan insynsskyddad trädgårdstomt

Övriga byggnader

Förråd med separat utrymme med utedass.
Förråd för cyklar mm

Parkering

Parkering för 2-3 bilar

Tv/Internetanslutning

Fiber finns indraget

Allmänt

Län: Stockholm
Kommun: Norrtälje
Område: Edsbro
Fastighetsbeteckning: NORRTÄLJE RÄNKA 10:1

Planbestämmelser

Ränka 11:1 m fl, Byggnadsplan (Beslutsdatum: 1981-02-18, Senast ändrad: 2023-02-24)
Trädfällningsförbud enl 110 § byggnadslagen, Förbud mot schaktning, trädfällning mm (Beslutsdatum: 1981-02-18, Senast ändrad: 1981-04-29)

Övriga rättigheter och belastningar

Rättigheter last: Avtalsservitut: VATTENTÄKT MM - SE BESKRIVNING
Avtalsrättigheter: Avtalsservitut VATTENTÄKT MM

Övrigt

Säljarens tankar:
Ränka är en lummig idyll med fantastiska kommunikationer.

Buss 639 avgår på 7 minuters promenadavstånd och tar dig raka vägen till Tekniska högskolan. Bussarna går ofta och goda pendlingsmöjligheter finns för den som vill spendera tid i stugan mitt i veckorna.
Vill man göra ett kortare utflykt avgår även buss 641 från samma läge. Efter dryga 30 minuter når du havsnära Norrtälje, en riktig liten pärla till stad. Här kan man gå på bio, ta ett glas vin vid kajen, fördriva tiden i små butiker eller njuta i solen på en av stadens många uteserveringar.
Ännu närmre, ca 10 med bil, ligger Edsbro. På den lokala Ica-handeln hittar man allt man behöver gällande mat, och man kan desssutom äta en bit på den nyöppnade krogen ”Verkstaden” som är väldigt populär under sommarhalvåret .
Vill man handla direkt från bonden här i Ununge finns alltid färska ägg, korv och kött att tillgå.

Det bästa med stugan är det privata läget, kaminen som sprider värme under höstmånaderna, den lummiga trädgården med nya blommor som överraskar varje månad, och husets goda själ. Dessutom omges man av snälla grannar som aldrig tvekat att räcka ut en hand när bilen inte startat eller något fattas i förrådet. Man känner sig välkommen här.

Promenadmöjligheterna är fantastiska för den som gillar att röra på sig, och svampskogen ligger runt hörnet. Hansjön med kristallklart vatten hittar du på en 5km cykeltur. På vintern kan man åka skridskor eller längdskidor.

Vi har haft förmånen att spendera alla årstider i husis.
Jularna har varit underbara. Vedspisen går varm, naturen sover men snön och stjärnorna gnistrar.
Den lilla byn ligger i dvala men här och där ser man ett ljus i fönstret, vilket skapar en känsla av lugn och trygghet.

På hösten har vi tillbringat timmar i skogarna. På några minuter försvinner hustak och tomtgränser och man kan vandra i timmar utan att stöta på civilisation. Ett bonus är att man ofta kommer hem med fickorna fulla av svamp.
Fördelen med hösten är att man får skörda allt man sått. Trädgården bjuder in till stora odlingsmöjligheter och några färggranna perenner dyker fram och överraskar.


Ekonomi

Pris (Utgångspris)

1 395 000 kr

Driftkostnader

Årlig elförbrukning: 352 kWh/år
Antal i hushållet: 3

Fördelas enligt följande

El: 5 900 kr
Väg: 1 000 kr
Försäkring: 4 360 kr
Renhållning: 1 300 kr
Sotning: 250 kr

Utöver ovanstående eventuella driftkostnader tillkommer fastighetsavgift med belopp om 6 203 kr.

Observera att driftskostnaderna som anges ovan baseras på säljarens faktiska kostnader det senaste året om inget annat särskilt anges.
Vilka driftskostnader köparen kommer att ha beror på hur bostaden kommer att användas, vilka abonnemang som kommer att tecknas och övriga omständigheter i det enskilda fallet.

Taxering

Byggnad: 294 000 kr
Mark: 533 000 kr
Totalt: 827 000 kr
Taxeringsår: 2024
Taxeringsvärdet är: Fastställt
Värdeår: 1972
Standardpoäng: 16
Typkod: 220, Småhusenhet, bebyggd

Pantbrev

Det finns 7 pantbrev uttaget om sammanlagt 1 130 500 kr.

Energideklaration

Status: Energideklaration behövs ej

Försäkring

Svensk Fastighetsförmedling samarbetar med If för att underlätta ditt bostadsköp. När du köper bostad eller fritidshus genom Svensk Fastighetsförmedling är den automatiskt försäkrad. Vi kallar det Flytta in-försäkring. Den är kostnadsfri och gäller under de första 30 dagarna. Fortsätter du sedan att försäkra hemmet eller fritidshuset hos If får du 10% rabatt och flera andra unika förmåner. Fråga din mäklare för att ta del av erbjudandet.

Alla bilder

+ 42 Visa alla 48 bilder
 

Planritning

Karta och område

Hästhagsvägen 31, Edsbro

Kalkyl

Vad kostar nya boendet?

Fler värden

Här nedanför kan du ändra ränta, amortering och driftkostnader och se hur de påverkar kalkylen.

Återställ alla värden
Visa fler

Ränta

Amortering

Driftkostnad per månad

Driftkostnad/månad

Observera att driftskostnaderna som anges ovan baseras på säljarens faktiska kostnader det senaste året om inget annat särskilt anges.

Vilka driftskostnader köparen kommer att ha beror på hur bostaden kommer att användas, vilka abonnemang som kommer att tecknas och övriga omständigheter i det enskilda fallet.

Boendekostnad per månad

Ränta
+  kr
Driftkostnad
+  kr
Fastighetsskatt/-avgift
+ 517 kr
Skattereduktion
 kr
Summa
ca  kr
Amortering
+  kr
Inkl amortering
ca  kr

Ansök om lånelöfte

Hos vårt systerbolag Ordna Bolån kan du enkelt ansöka om lånelöfte eller bolån. En ansökan, svar från flera banker.

Visningsanmälan

Fyll i formuläret så kontaktar vi dig inom kort.

Välj mellan nedan alternativ
Lördag 11 april
Öppen visning

Hästhagsvägen 31, 762 98 Edsbro
Jag vill veta mer om bostaden

Kontaktuppgifter
Vänligen ange förnamn
Vänligen ange efternamn
Vänligen ange telefonnummer
Vänligen ange e-post
500 tecken kvar
Har du lånelöfte?*
Vill du ha hjälp med lånelöfte?
Vill du få nyheter och erbjudanden?

Oj, något gick fel! Försök igen. 

Ett ögonblick!
Tack, dina uppgifter är sparade!
Du fyllde inte i någon e-postadress. Ange den nedan för att inte missa någon information.
 
 
 
Ta del av vår integritetspolicy
 
 
 

Liknande bostäder till salu

Edsbro, Norrtälje
Hästhagsvägen 31
Dela bostad: Dela på Facebook Dela med epost Dela med sms Kopiera länk Länken kopierad

Planritning