Hoppa till innehåll
Överum

Lilla Pjäkebo

Välkommen till ett charmigt torp med den rätta känslan

  • Typ: Fritidshus, 1,5 plan
  • Rum: 3, varav 2 sovrum
  • Boarea: 78 m2
  • Tomtarea: 5 387 m2
  • Byggnadsår: 1909
  • Driftkostnad: 29 170 kr/år
  • Upplåtelseform: Äganderätt

Varmt välkommen till charmiga Lilla Pjäkebo som ligger ostört i skogsbrynet med utsikt över öppet landskap. Här får du den gamla charmen i ett härligt torp med den rätta känslan samt tillhörande magasinsbyggnad som används till gäster, verkstad och i loftet finns plats för fest. Här når du flera insjöar inom cykelavstånd och här finns svamp- och bärskogar att upptäcka. Huset är välunderhållet med bl.a. nyare tak och badrum. Välkommen på visning!

Om Bostaden

Beskrivning

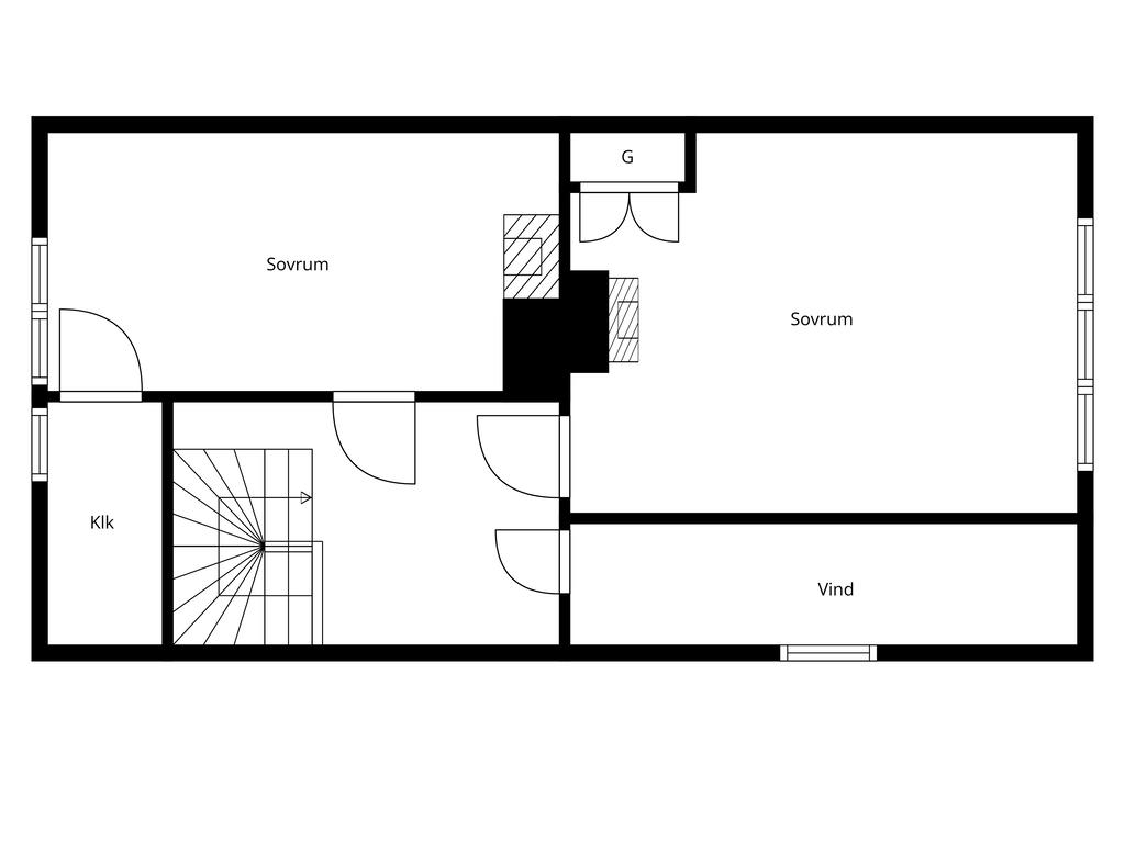
Entré via dubbeldörr in till hall med trappa till övervåning.
Kök med vedspis, elspis och bakugn, kyl/frys. Skafferi i anslutning till köket.
Badrum som byggdes 2008 med förbränningstoa, dusch , tvättmaskin, varmvattenberedare, handfat.
Vardagsrum med rörspis

Övre hall med sidovindsgarderob
Två sovrum varav det ena rymmer dubbelsäng. Rörspisar i båda sovrummen.

Sammanfattning

Typ: Fritidshus, 1,5 plan
Rum: 3, varav 2 sovrum
Boarea: 78 m2
Tomtarea: 5 387 m2
Pris (Utgångspris): 1 250 000 kr
Byggnadsår: 1909
Driftkostnad: 29 170 kr/år
Upplåtelseform: Äganderätt

Kommentar till boarean

Boareauppgift enligt: Lantmäteriet

Uppvärmning

3 rörspisar, vedspis, direkt el via oljefyllda radiatorer

Byggnadssätt

Vatten: Enskilt vatten året om, borrad brunn 85 meter. 2 filter finns
Avlopp: Enskilt avlopp
Grund: Torpargrund
Stomme: Timmer
Bjälklag: Trä
Fasad: Stående träpanel
Fönster: 1+1 glas
Takbeklädnad: Taktegel, bytt 2012
Ventilation: Självdrag
El: Blandade åldrar. Säkringsskåp med snabbsäkringar och jordfelsbrytare finns.
Murstock: Murad skorsten
Murstock kommentar: Kontinuerlig sotning samt brandskyddsinspektioner har utförts, senast 2023
Kommentar: Huset ca 1870-tal, magasinet sannolikt från 1700-talet.

Renoveringar

Borrat brunn 2007
Badrummet byggdes till 2008
Nytt tak på huset och magasinet 2012
Nytt golv magasinet 2018
Förbränningstoa 2023
Dragit el från magasinet till vedbod
Staket utmed väg
Tvättmaskin och spis ca 5 år
Byggt hönshus
Bytt panel på södersidan 2023, påbörjat framsidan 2025
Snöräcke
Byggt till garage 2008
Utebelysning
Golv och staket verandan

Övriga byggnader

Magasin med loft på nedervåning finns gästrum och liten verkstad.
Uthuslänga med matförråd, vedförråd, garage och utedass.
Hönshus
Lekstuga

Parkering

Gott om plats på tomten

Tv/Internetanslutning

Fiber finns i tomtgräns, ej anslutet till fastigheten.

Allmänt

Län: Kalmar
Kommun: Västervik
Fastighetsbeteckning: VÄSTERVIK PJÄKEBO 2:2

Övrigt

Huset säljs med merparten av inventarierna

Ekonomi

Pris (Utgångspris)

1 250 000 kr

Driftkostnader

29 170 kr/år
Antal i hushållet: 2

Fördelas enligt följande

El: 21 000 kr
Försäkring: 4 000 kr
Renhållning: 3 500 kr
Sotning: 670 kr
Beskrivning: Sotning kostar ca 2000:- vart tredje år.

Utöver ovanstående eventuella driftkostnader tillkommer fastighetsavgift med belopp om 3 323 kr.

Observera att driftskostnaderna som anges ovan baseras på säljarens faktiska kostnader det senaste året om inget annat särskilt anges.
Vilka driftskostnader köparen kommer att ha beror på hur bostaden kommer att användas, vilka abonnemang som kommer att tecknas och övriga omständigheter i det enskilda fallet.

Taxering

Byggnad: 246 000 kr
Mark: 197 000 kr
Totalt: 443 000 kr
Taxeringsår: 2024
Taxeringsvärdet är: Fastställt
Värdeår: 1929
Standardpoäng: 20
Typkod: 220, Småhusenhet, bebyggd

Pantbrev

Det finns 2 pantbrev uttaget om sammanlagt 250 000 kr.

Energideklaration

Status: Energideklaration behövs ej

Försäkring

Svensk Fastighetsförmedling samarbetar med If för att underlätta ditt bostadsköp. När du köper bostad eller fritidshus genom Svensk Fastighetsförmedling är den automatiskt försäkrad. Vi kallar det Flytta in-försäkring. Den är kostnadsfri och gäller under de första 30 dagarna. Fortsätter du sedan att försäkra hemmet eller fritidshuset hos If får du 10% rabatt och flera andra unika förmåner. Fråga din mäklare för att ta del av erbjudandet.

Alla bilder

+ 47 Visa alla 53 bilder
 

Planritning

Karta och område

Lilla Pjäkebo, Överum

Visa avstånd som lista:
Avstånd avser alltid fågelvägen

Kalkyl

Vad kostar nya boendet?

Fler värden

Här nedanför kan du ändra ränta, amortering och driftkostnader och se hur de påverkar kalkylen.

Återställ alla värden
Visa fler

Ränta

Amortering

Driftkostnad per månad

Driftkostnad/månad

Observera att driftskostnaderna som anges ovan baseras på säljarens faktiska kostnader det senaste året om inget annat särskilt anges.

Vilka driftskostnader köparen kommer att ha beror på hur bostaden kommer att användas, vilka abonnemang som kommer att tecknas och övriga omständigheter i det enskilda fallet.

Boendekostnad per månad

Ränta
+  kr
Driftkostnad
+  kr
Fastighetsskatt/-avgift
+ 277 kr
Skattereduktion
 kr
Summa
ca  kr
Amortering
+  kr
Inkl amortering
ca  kr

Ansök om lånelöfte

Hos vårt systerbolag Ordna Bolån kan du enkelt ansöka om lånelöfte eller bolån. En ansökan, svar från flera banker.

Visningsanmälan

Fyll i formuläret så kontaktar vi dig inom kort.

Välj mellan nedan alternativ
Onsdag 6 maj
Anmälan krävs

Lilla Pjäkebo, 594 73 Överum
Ring eller maila för tidsbokning. Välkommen!
Söndag 10 maj
Anmälan krävs

Lilla Pjäkebo, 594 73 Överum
Ring eller maila för tidsbokning. Välkommen!
Jag vill veta mer om bostaden

Kontaktuppgifter
Vänligen ange förnamn
Vänligen ange efternamn
Vänligen ange telefonnummer
Vänligen ange e-post
500 tecken kvar
Har du lånelöfte?*
Vill du ha hjälp med lånelöfte?
Vill du få nyheter och erbjudanden?

Oj, något gick fel! Försök igen. 

Ett ögonblick!
Tack, dina uppgifter är sparade!
Du fyllde inte i någon e-postadress. Ange den nedan för att inte missa någon information.
 
 
 
Ta del av vår integritetspolicy
 
 
 

Liknande bostäder till salu

Västervik
Lilla Pjäkebo
Dela bostad: Dela på Facebook Dela med epost Dela med sms Kopiera länk Länken kopierad

Planritning