Hoppa till innehåll
Edsbruk

Vråka Ängen 2

Charmigt torp med stora renoveringar gjorda och lantligt naturnära läge!

  • Typ: Fritidshus, 1 1/2-plan
  • Rum: 2, varav 1-2 sovrum
  • Boarea: 75 m2
  • Tomtarea: 2 366 m2
  • Byggnadsår: 1943
  • Driftkostnad: 21 870 kr/år
  • Upplåtelseform: Äganderätt

Drömmer du om ett torp där tiden får gå lite långsammare? Där morgonkaffet smakar lite bättre och kvällarna avslutas med solnedgång över öppna ängar? Då kan detta charmiga torp vara precis det du söker.
Med sitt klassiska uttryck – faluröd fasad, vita knutar och en prunkande trädgård – möts du av ett hem som andas lantlig idyll från första stund. Här blickar huset ut över öppna ängar där årstidernas skiftningar och ett rikt djur- och fågelliv skapar en levande tavla utanför fönstret. När solen sakta sjunker över åkrarna sprider sig ett stilla lugn som är svårt att hitta någon annanstans.

Invändigt möts du av den gamla charmen som varsamt bevarats. Trägolv som bär spår av många generationer, synlig timmerstomme och en genuin torpkänsla ger huset en varm och välkomnande atmosfär. Samtidigt har stora och viktiga renoveringar redan gjorts – nytt tak, ny fasad, samt renoverat kök och badrum. Här finns även vatten året runt och godkänt avlopp, vilket gör huset lika väl lämpat som fritidsboende som för året-runt-liv. Det är helt enkelt bara att flytta in och börja njuta.

På tomten finns flera uthus som ger fantastiska möjligheter. Kanske drömmer du om ett gästhus, en ateljé, ett hobbyrum eller plats för långväga vänner och familj som gärna stannar lite längre när de väl kommit hit.
Läget är lantligt och rofyllt men ändå lättillgängligt. På cykelavstånd ligger den charmiga byn Vråka – en levande by året runt med ett aktivt byalag och en gemenskap som gör att man snabbt känner sig hemma.
Det här är mer än bara ett hus. Det är en plats för sommarkvällar i trädgården, för stilla morgnar med utsikt över dimmiga ängar och för ett liv lite närmare naturen.
Välkommen till ett torp att förälska sig i!

Om Bostaden

Beskrivning

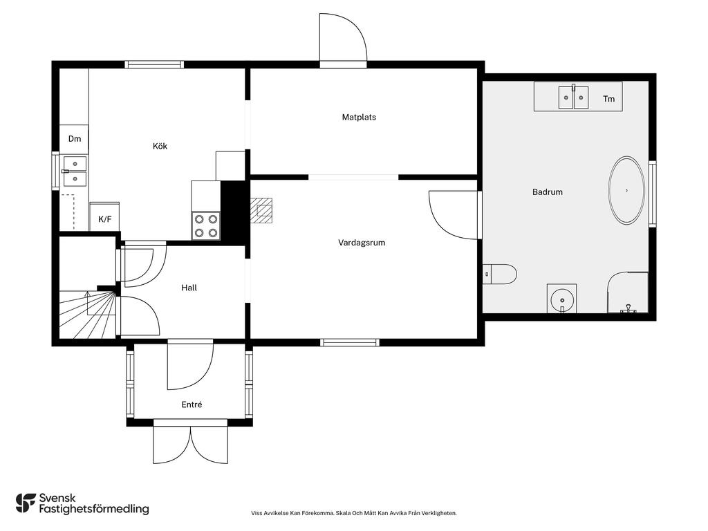
ENTRÉPLAN:
Charmig FARSTUKVIST med betonggolv, fina spröjsade fönster och utsikt över ängarna och trädgården. HALL med trägolv, plats för klädavhängning samt förråd innehållande varmvattensberedare till köket. Hemtrevligt KÖK med trägolv och vackert tak bestående av breda gamla plankor. I köket finns plats för mindre matbord och vy över ängarna. Köket (-16/17) är utrustat med kyl och frys i halvhöjd (-17), spis med plattor, fläkt, diskmaskin (diskmaskinen är ur funktion) och synliga timmerväggar, ett kök att verkligen trivas i. MATRUM med trägolv, plats för vänner och familj samt utgång via altandörr till trädgården och läge för kvällssol. VARDAGSRUM med trägolv, värmande kamin och plats för säng på entréplan om så önskas. Nyrenoverat rymligt BADRUM (-20) med plastmatta (golvvärme) och våtrumstapet samt öppet till nock. I badrummet finns wc, dusch, badkar, handfat, tvättho, tvättmaskin, paxfläkt samt spotlights i tak.

ÖVRE PLAN:
Stort vindsplan med vackra trägolv, synliga takbalkar och detaljer som skapar en genuin känsla. Här finns gott om plats för flera sovplatser.

Sammanfattning

Typ: Fritidshus, 1 1/2-plan
Rum: 2, varav 1 sovrum, möjlighet till 2 sovrum
Boarea: 75 m2
Tomtarea: 2 366 m2
Pris (Utgångspris): 1 500 000 kr
Byggnadsår: 1943
Driftkostnad: 21 870 kr/år
Upplåtelseform: Äganderätt
Inflyttning: Enligt överenskommelse

Kommentar till boarean

Boareauppgift enligt: Säljaren
Boarea enligt lantmäteriet: 60 kvm.

Uppvärmning

Kamin, oljefyllda radiatorer

Byggnadssätt

Vatten: Vatten året runt, brunnen delas med en granne
Avlopp: 3 kammarbrunn med infiltration
Grund: Torpargrund och krypgrund
Stomme: Trä
Bjälklag: Trä
Fasad: Träfasad (-16/17)
Fönster: 2-glasfönster och 3-glasfönster
Takbeklädnad: Takpanneplåt (-16/17)
Utvändiga plåtarbeten: Plåt
Ventilation: Självdrag
Murstock kommentar: Kaminen är sotad och okej att elda i.
Allmän information: -Grus runt hela huvudhuset intill grunden.
-Vattenutkast intill husvägg.

Renoveringar

Om-/tillbyggnadsår: 2020
2020: Tillbyggnad på 15 kvm innehållande badrum.
2018: Kaminen sattes in , murade skorstenen och gnistskydd.
2016/17: Nytt tak och ny fasad.

Tomt/balkong/uteplats

Stensatt uteplats med ölandsstenoch grus intill grillplats och utekök, här har du magisk vy över ängarna.

Övriga byggnader

-BODSLÄNGA innehållande hela tre bra rum med gjutet golv. I dessa utrymmen kan gästrum skapas om så önskas.
-BOD intill åkern innehållande två förrådsrum.
-JORDKÄLLARE med fina utrymmen.
-DASS.

Parkering

Parkering på tomten intill garagelängan.

Allmänt

Län: Kalmar
Kommun: Västervik
Fastighetsbeteckning: VÄSTERVIK VRÅKA 17:3

Övriga rättigheter och belastningar

Rättigheter last: Officialservitut: RÄTT ATT BEHÅLLA, UNDERHÅLLA OCH FÖRNYA VATTENLEDNING - VATTENLEDNING
Rättigheter förmån: Officialservitut: 1. RÄTT ATT TA VATTEN I BRUNNEN A FÖR ETT HUSHÅLLS BEHOV. 2. RÄTT ATT BEHÅLLA, UNDERHÅLLA OCH FÖRNYA VATTENLEDNINGEN FRÅN BRUNNEN A. - VATTENTÄKT, VATTENLEDNING
Officialservitut: RÄTT ATT ANVÄNDA VÄGEN B FÖR UTFART. - VÄG

Övrigt

Vråka byalag: https://www.vrakabygden.se/
Västra Eds hembygdsförening: https://www.hembygd.se/vastraed/ny-sida-5

Säljarens ord:
Den här platsen andas lugn och har en underbar naturtomt. Djurlivet är rikt med många olika slags fåglar som Vråk/ havsörn som seglar på himlen till småfåglar som trippar i trädgården , tranor, gäss ute på åkern och rådjur , harar samt ibland älg på besök.
Även om stugan kan upplevas liten har jag haft många gäster som trivts uppe på den generösa vinden. -2020 byggde jag tvättstuga / badrum vilket blev ett lyft för komforten.
Tidigt på våren och fram till sen höst brukar jag flytta ut och bo i stugan. En härlig tid! Eftersom det finns både el och kamin är det fullt möjligt bo vintertid om man inte räds mörkret.
Jag brukar ofta säga att ” Ängen ” är en magisk plats och där försvinner all stress när man njuter av fascinerande solnedgångar samt stjärnhimmel som lyser upp eller att stiga upp tidigt med morgon kaffet och se solen gå upp.
Vråka är en by med trevliga människor och aktiviteter av olika slag , pizza , pub kvällar, utegym, matserveringar , loppisar m.m
Mysiga Valdemarsvik samt Loftahammar med bad och båtliv ligger inte långt härifrån.
Jag har trivts oerhört bra under mina 10 år här och min önskan är att någon ska ta över detta paradis och njuta lika mycket som jag har jag gjort och framförallt ta hand om torpet med varsam omsorg.

Ekonomi

Pris (Utgångspris)

1 500 000 kr

Driftkostnader

21 870 kr/år
Årlig elförbrukning: 6026 kWh/år

Fördelas enligt följande

El: 13 100 kr
Vatten och avlopp: 2 120 kr
Försäkring: 4 000 kr
Renhållning: 2 000 kr
Sotning: 650 kr
Beskrivning: Driftskostnaderna är beräknade efter nuvarande ägares förbrukning. Huset har varit uppvärmt året runt.
Vintertid har huset varit uppvärmt till 14 grader.

Utöver ovanstående eventuella driftkostnader tillkommer fastighetsavgift med belopp om 6 503 kr.

Observera att driftskostnaderna som anges ovan baseras på säljarens faktiska kostnader det senaste året om inget annat särskilt anges.
Vilka driftskostnader köparen kommer att ha beror på hur bostaden kommer att användas, vilka abonnemang som kommer att tecknas och övriga omständigheter i det enskilda fallet.

Taxering

Byggnad: 655 000 kr
Mark: 212 000 kr
Totalt: 867 000 kr
Taxeringsår: 2024
Taxeringsvärdet är: Fastställt
Värdeår: 1962
Standardpoäng: 42
Typkod: 220, Småhusenhet, bebyggd

Pantbrev

Det finns 4 pantbrev uttaget om sammanlagt 1 200 000 kr.

Energideklaration

Status: Energideklaration behövs ej

Försäkring

Svensk Fastighetsförmedling samarbetar med If för att underlätta ditt bostadsköp. När du köper bostad eller fritidshus genom Svensk Fastighetsförmedling är den automatiskt försäkrad. Vi kallar det Flytta in-försäkring. Den är kostnadsfri och gäller under de första 30 dagarna. Fortsätter du sedan att försäkra hemmet eller fritidshuset hos If får du 10% rabatt och flera andra unika förmåner. Fråga din mäklare för att ta del av erbjudandet.

Alla bilder

+ 65 Visa alla 71 bilder
 

Planritning

Karta och område

Vråka Ängen 2, Edsbruk

Kalkyl

Vad kostar nya boendet?

Fler värden

Här nedanför kan du ändra ränta, amortering och driftkostnader och se hur de påverkar kalkylen.

Återställ alla värden
Visa fler

Ränta

Amortering

Driftkostnad per månad

Driftkostnad/månad

Observera att driftskostnaderna som anges ovan baseras på säljarens faktiska kostnader det senaste året om inget annat särskilt anges.

Vilka driftskostnader köparen kommer att ha beror på hur bostaden kommer att användas, vilka abonnemang som kommer att tecknas och övriga omständigheter i det enskilda fallet.

Boendekostnad per månad

Ränta
+  kr
Driftkostnad
+  kr
Fastighetsskatt/-avgift
+ 542 kr
Skattereduktion
 kr
Summa
ca  kr
Amortering
+  kr
Inkl amortering
ca  kr

Ansök om lånelöfte

Hos vårt systerbolag Ordna Bolån kan du enkelt ansöka om lånelöfte eller bolån. En ansökan, svar från flera banker.

Visningsanmälan

Fyll i formuläret så kontaktar vi dig inom kort.

Välj mellan nedan alternativ
Söndag 3 maj
Anmälan krävs

Vråka Ängen 2, 594 75 Edsbruk
Måndag 4 maj

Vråka Ängen 2, 594 75 Edsbruk
Jag vill veta mer om bostaden

Kontaktuppgifter
Vänligen ange förnamn
Vänligen ange efternamn
Vänligen ange telefonnummer
Vänligen ange e-post
500 tecken kvar
Har du lånelöfte?*
Vill du ha hjälp med lånelöfte?
Vill du få nyheter och erbjudanden?

Oj, något gick fel! Försök igen. 

Ett ögonblick!
Tack, dina uppgifter är sparade!
Du fyllde inte i någon e-postadress. Ange den nedan för att inte missa någon information.
 
 
 
Ta del av vår integritetspolicy
 
 
 

Liknande bostäder till salu

Västervik
Vråka Ängen 2
Dela bostad: Dela på Facebook Dela med epost Dela med sms Kopiera länk Länken kopierad

Planritning