Hoppa till innehåll
 
Visning
Månadsavgift: 5 827 kr/månad
Aktiv matchning
Detta är en bostad som visas exklusivt på svenskfast.se. Mäklaren letar aktivt efter rätt köpare och uppgifter som pris och visningsdatum kan saknas. Anmäl ditt intresse för att få alla uppdateringar och mer information om denna bostad.
Vill du veta mer om bostaden?
Ulricehamn

Norra Strandgatan 3A

Visning
Månadsavgift: 5 827 kr/månad
Aktiv matchning
Detta är en bostad som visas exklusivt på svenskfast.se. Mäklaren letar aktivt efter rätt köpare och uppgifter som pris och visningsdatum kan saknas. Anmäl ditt intresse för att få alla uppdateringar och mer information om denna bostad.
Vill du veta mer om bostaden?

Panoramautsikt och 85 välplanerade kvadrat på 12:e våningen!

  • Typ: Bostadsrättslägenhet
  • Rum: 4, varav 3 sovrum
  • Boarea: 85 m2
  • Lägenhetsnummer: 1121
  • Byggnadsår: 2014/2015
  • Månadsavgift: 5 827 kr
  • Driftkostnad: 1 043 kr/månad
  • Upplåtelseform: Bostadsrätt
  • Våning: 12 av 14
  • Hiss: Ja

Drömmer du om att slå upp ögonen till glittrande sjöutsikt? Kanske bor du i villa idag och inväntar rätt tillfälle att byta till ett mer lättskött och bekvämt boende – utan att ge avkall på vare sig yta eller vy? Nu finns möjligheten i omtyckta Brf Norra Stranden 1.

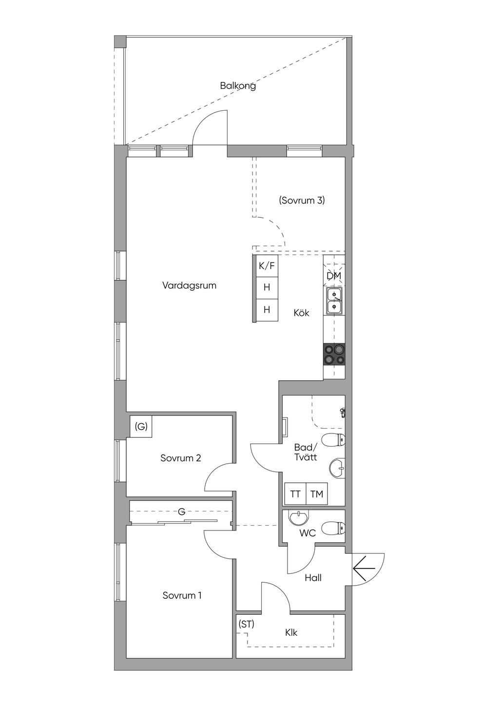
Hissen tar dig bekvämt upp till tolfte våningen där denna smart planerade bostad om 85 m² väntar. Här erbjuds en genomtänkt och trivsam bostad där varje kvadratmeter är smart planerad. Redan i den rymliga hallen möts du av generösa förvaringsmöjligheter i en separat klädkammare och en välkomnande känsla som följer dig vidare genom hemmet. Planlösningen är både funktionell och flexibel med tre sovrum – perfekt för familjen, gäster eller hemmakontor.

De sociala ytorna är ljusa och inbjudande med ett smakfullt kök från Vedum som delvis samspelar med det generösa vardagsrummet. Här finns gott om plats för både matgrupp och soffhörna, vilket skapar en naturlig samlingspunkt för vardag och fest. Den inglasade balkongen blir ett extra rum stora delar av året och bjuder på en fantastisk utsikt över Åsunden och Ulricehamns stad. Bostaden erbjuder dessutom både ett stilrent, fullt utrustat badrum med tvättmöjligheter och en separat gästtoalett – detaljer som förenklar vardagen och höjer komforten. Pricken över i är den inglasade balkongen. Här avnjuter du morgonkaffet, middag med vänner ihop med en magnifik panoramavy över Åsunden.

Norra Stranden har etablerat sig som ett av Ulricehamns mest eftertraktade bostadsområden. Med sitt attraktiva läge vid Åsundens norra strand bor du med naturen inpå knuten och samtidigt med bekvämt gång- och cykelavstånd till centrum, restauranger och mysiga butiker längs gågatan. För pendlaren är läget idealiskt med smidig access till motorvägen mot Borås, Jönköping och Göteborg. Bostadsrättsföreningen erbjuder flera värdefulla gemensamma utrymmen för sina medlemmar. Här finns bland annat uthyrningsrum för övernattande gäster, relaxavdelning med dusch, kalasrum, gemensam takterrass med fantastisk utsikt över sjön Åsunden och gemensam sjöstuga för fest, kalas eller andra typer av sammankomster.

Här får du ett modernt och lättillgängligt boende med en utsikt som fortsätter att fascinera – dag efter dag. Låter det som nått för dig? Perfekt då ses vi på visning!

Förbered er gärna genom att:
- Åk förbi huset och bekanta dig med området
- Låt oss hjälpa dig med att ordna lånelöfte via våra samarbetspartners
- Har du ett ägt boende? Boka en kostnadsfri, muntlig värdering av din nuvarande bostad.
Kontakta Josefine Härngren: 0321-53 07 74, josefine.ulricehamn@svenskfast.se.

Om Bostaden

Beskrivning

ENTRÉHALL:
Ni kliver in i en välkomnande och rymlig hall med vitmålade väggar och ljusgrått klinkergolv som övergår i ett stilrent parkettgolv längre in i bostaden. Här finns gott om plats för avhängning av ytterkläder. I direkt anslutning ligger en generös klädkammare som erbjuder utmärkta förvaringsmöjligheter.

GÄSTTOALETT:
Praktisk gästtoalett med klinkergolv och tapetserade väggar. Utrustad med WC, tvättställ med kommod samt spegel.

SOVRUM 1:
Det första sovrummet har parkettgolv och väggar målade i en harmonisk blå nyans. Här finns en rymlig skjutdörrsgarderob med smart inredning som underlättar klädförvaringen. Rummet har gott om plats för en dubbelsäng med tillhörande sängbord.

SOVRUM 2:
Det andra sovrummet erbjuder parkettgolv och vitmålade väggar. Här ryms enkelt en enkelsäng och skrivbord för den som önskar, vilket gör rummet perfekt som barnrum, gästrum eller hemmakontor.

BADRUM:
Stilrent och modernt badrum med kakel och klinker i neutrala toner. Här finns WC, tvättställ med kommod, badrumsskåp, handdukstork samt duschhörna med rundade glasdörrar. För extra komfort erbjuds golvvärme samt egen tvättmaskin och torktumlare. Praktisk arbetsbänk med förvaringsskåp ovanför ger smidig hantering av tvätten.

KÖK:
Smakfullt kök med vita köksluckor från Vedum och ljus mosaik ovan disk- och arbetsbänk. Köket är utrustat med spishäll, fläkt, diskmaskin, upphöjd ugn samt kombinerad kyl och frys. Planlösningen är delvis öppen mot vardagsrummet men avskärmas med en vägg som skapar en naturlig rumsindelning. I anslutning finns plats för matgrupp.

VARDAGSRUM:
Ett trivsamt och generöst vardagsrum med parkettgolv och målade väggar. Här finns gott om utrymme för både matplats och en större soffgrupp med tillhörande möblemang – en perfekt plats för umgänge. Den inglasade balkongen fungerar som ett härligt extrarum under årets varmare månader, där ni kan njuta av den fantastiska utsikten över Åsunden och Ulricehamns stad.

SOVRUM 3:
Detta rum är nyligen uppfört och används idag som ett tredje sovrum. Tidigare var ytan ett TV-rum i öppen planlösning mot både kök och vardagsrum, vilket ger flexibilitet för den som önskar en mer öppen disposition.

Sammanfattning

Typ: Bostadsrättslägenhet
Rum: 4, varav 3 sovrum
Boarea: 85 m2
Lägenhetsnummer: 1121
Byggnadsår: 2014/2015
Driftkostnad: 1 043 kr/månad
Upplåtelseform: Bostadsrätt
Våning: 12 av 14
Hiss: Ja
Inflyttning: Enligt överenskommelse

Kommentar till boarean

Boareauppgift enligt: Bostadsrättsföreningen
Boareauppgiften grundar sig i information från bostadsrättsföreningen. Om boarean anses vara av vikt för köparen, får denne själv ombesörja en annan uppmätning

Upplåtna utrymmen

Till lägenheten hör ett förråd.

Byggnadssätt

Kommentar: Grund: Betongplatta
Tak: Takpapp
Ytterfased: Stomme i betong
Fönster: Trä/Aluminium 2+1-glas isolerruta
Glaspartier: Trä/Aluminium 2-glas energiglas
Entrédörrar: Lackad aluminium
Tamburdörrar: Säkerhetsdörr i eklaminerad plåt

Tomt/balkong/uteplats

Inglasad balkong:

Tv/Internetanslutning

Föreningen har avtal med Sappa AB. Det ingår ca 24 tv kanaler och bredband är 1000/1000.

Värme- och ventilationsanläggning

Uppvärmningssystem: Fjärrvärme + återvinning på frånluften

Allmänt

Län: Västra Götaland
Kommun: Ulricehamn

Andel i föreningen

Andel i föreningen: 1,771

Pantsättningsavgift

592 kr

Bostadsrättens indirekta nettoskuldsättning

921 103 kr
Andelstal av årsavgift har inte framkommit, varpå andel av nettoskuldsättnings har beräknats på bostadsrättens andelstal.
Bostadsrättens indirekta nettoskuldsättning anger hur stor andel av bostadsrättsföreningens lån som indirekt belastar bostadsrätten. Det underlag som ligger till grund för beräkning av uppgiften har inhämtats från bostadsrättsföreningen, dels från årsredovisning dels från utdrag ur bostadsrättsföreningens lägenhetsregister. Observera att föreningens skuldsättningsgrad kan ha förändrats sedan årsredovisningen som ligger till grund för beräkningen upprättades.

Gemensamma utrymmen

Gemensamma utrymmen i bostadsrättsföreningen:

ÖVERNATTNINGSRUM:
I entréplanet finns två övernattningsrum med sängplatser för övernattande gäster. Bokning av övernattningsrummet görs hos bostadsrättsföreningen för en kostnad på 100 kr/dygn.

RELAXAVDELNING:
I entréplanet, anslutande till övernattningsrummen, finns en relaxavdelning med dusch och bastu.

KALASRUM:
På våning elva finns ett kalasrum som går att hyra av bostadsrättsföreningen.

GEMENSAM TERRASS:
På våning elva, i anslutning till kalasrummet, finns en stor gemensam takterrass för bostadsrättsföreningens medlemmar.

SJÖSTUGA:
En vacker sjöstuga, som är gemensam för båda bostadsrättsföreningarna, går att hyra för fest, kalas eller för någon annan typ av sammankomst.

CYKELFÖRRÅD:
Gemensamt cykelförråd finns på gården.

SOPSORTERINGSRUM:
Gemensamt sopsorteringsrum finns på gården.

LÄGENHETSFÖRRÅD:
Det finns ett lägenhetsförråd till varje lägenhet. Lägenhetsförråden är placerade i entréplan, på våning elva - fjorton samt i en utav gårdsbyggnaderna.

Parkering

Bilplats 1: Elbilplats . Avgift 450 kr/mån, har separat kö.
Bilplats 2: Carport . Avgift 500 kr/mån, har separat kö.
Bilplats 3: P-plats . Avgift 250 kr/mån, har separat kö.
Carport: 23 st
Parkeringplatser: 44 st varav 12 st är elbilplatser

Ekonomi

Överlåtelseavgift

Överlåtelseavgift: 1 480 kr
Överlåtelseavgift betalas av: köpare

Månadsavgift

5 827 kr
I månadsavgiften ingår värme, vatten och sophämtning. Kostnad för bredband och TV ingår med en obligatorisk kostnad på 280 kr/mån. (5 547 kr + 280 kr = 5 827 kr)

Driftkostnader

1 043 kr/månad
Årlig elförbrukning: 3623 kWh/år
Antal i hushållet: 4

Fördelas enligt följande

El: 905 kr
Försäkring: 138 kr

Observera att driftskostnaderna som anges ovan baseras på säljarens faktiska kostnader det senaste året om inget annat särskilt anges.
Vilka driftskostnader köparen kommer att ha beror på hur bostaden kommer att användas, vilka abonnemang som kommer att tecknas och övriga omständigheter i det enskilda fallet.

Pantsättning

Lägenheten är pantsatt

Energideklaration

Status: Energideklaration är utförd
Energiprestanda: 66 kWh/kvm/år
Energiklass: CC
Energideklaration utförd: 2018-06-15
Besiktningsman: Aktea Göteborg AB

Försäkring

Svensk Fastighetsförmedling samarbetar med If för att underlätta ditt bostadsköp. När du köper bostad eller fritidshus genom Svensk Fastighetsförmedling är den automatiskt försäkrad. Vi kallar det Flytta in-försäkring. Den är kostnadsfri och gäller under de första 30 dagarna. Fortsätter du sedan att försäkra hemmet eller fritidshuset hos If får du 10% rabatt och flera andra unika förmåner. Fråga din mäklare för att ta del av erbjudandet.

Alla bilder

+ 40 Visa alla 46 bilder
 

Planritning

Karta och område

Norra Strandgatan 3A, Ulricehamn

Kalkyl

Vad kostar nya boendet?

Fler värden

Här nedanför kan du ändra ränta, amortering och driftkostnader och se hur de påverkar kalkylen.

Återställ alla värden
Visa fler

Ränta

Amortering

Driftkostnad per månad

Driftkostnad/månad

Observera att driftskostnaderna som anges ovan baseras på säljarens faktiska kostnader det senaste året om inget annat särskilt anges.

Vilka driftskostnader köparen kommer att ha beror på hur bostaden kommer att användas, vilka abonnemang som kommer att tecknas och övriga omständigheter i det enskilda fallet.

Boendekostnad per månad

Ränta
+  kr
Driftkostnad
+  kr
Månadsavgift
+ 5827 kr
Skattereduktion
 kr
Summa
ca  kr
Amortering
+  kr
Inkl amortering
ca  kr

Ansök om lånelöfte

Hos vårt systerbolag Ordna Bolån kan du enkelt ansöka om lånelöfte eller bolån. En ansökan, svar från flera banker.

Visningsanmälan

Fyll i formuläret så kontaktar vi dig inom kort.

Välj mellan nedan alternativ
Tisdag 14 april
Anmälan krävs

Norra Strandgatan 3A, 523 44 Ulricehamn
Varmt välkommen på visning, anmälan krävs.
Jag vill veta mer om bostaden

Kontaktuppgifter
Vänligen ange förnamn
Vänligen ange efternamn
Vänligen ange telefonnummer
Vänligen ange e-post
500 tecken kvar
Har du lånelöfte?*
Vill du ha hjälp med lånelöfte?
Vill du få nyheter och erbjudanden?

Oj, något gick fel! Försök igen. 

Ett ögonblick!
Tack, dina uppgifter är sparade!
Du fyllde inte i någon e-postadress. Ange den nedan för att inte missa någon information.
 
 
 
Ta del av vår integritetspolicy
 
 
 

Liknande bostäder till salu

Ulricehamn
Norra Strandgatan 3A
Dela bostad: Dela på Facebook Dela med epost Dela med sms Kopiera länk Länken kopierad

Planritning