Hoppa till innehåll
 
Uddevalla

Södra Hamnen 3

  • Typ: Bostadsrättslägenhet
  • Rum: 4, varav 2-3 sovrum
  • Boarea: 198 m2
  • Månadsavgift: 5 000 kr
  • Driftkostnad: 1 943 kr/månad
  • Upplåtelseform: Bostadsrätt
  • Våning: 3 av 3
  • Hiss: Nej

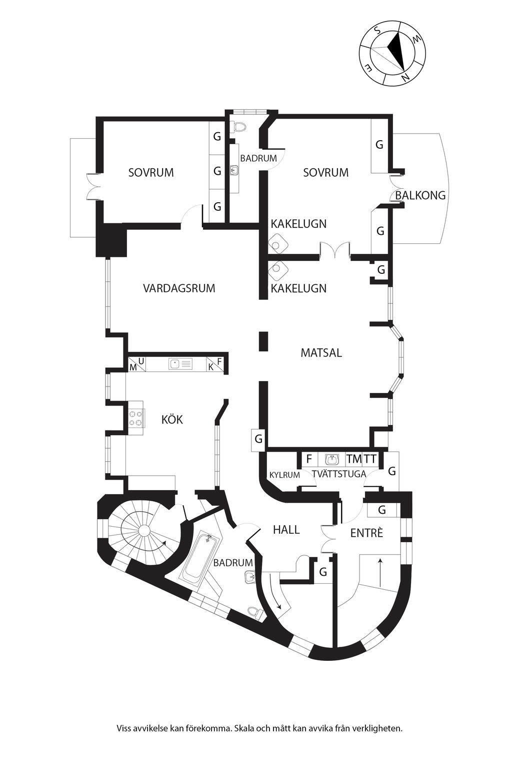
Välkommen till denna pampiga våning, belägen högst upp i anrika Petersonska huset. Här erbjuds ett boende utöver det vanliga med två balkonger och en hänförande utsikt över vattnet, samtidigt som du har ett bekvämt gångavstånd till både stadskärnan och strandpromenaden.

Våningen präglas av rymd och elegans med generösa rum, enorm takhöjd och vackra originaldetaljer såsom takstuckaturer och höga golvsocklar.
Med två badrum, två parkeringsplatser och två mycket rymliga förråd finns här alla bekvämligheter på plats.
Lägenheten upptar hela det översta våningsplanet i en av Uddevallas vackraste byggnader ritad av den välkände Göteborgsarkitekten Eugen Thorburn.

Huset genomgick en omfattande renovering år 2000 och omvandlades då till bostadsrätter. Föreningen är skuldfri och erbjuder låga månadsavgifter.

Redan i entrén möts du av en storslagen hall med imponerande takhöjd. Här finns även ett rymligt badrum med jacuzzi som har utsikt över stadens takåsar.
Köket från Kvänum är välutrustat med bland annat en rejäl gasspis från Gaggenau, gott om arbetsytor och förvaring samt plats för ett mindre matbord.
Den eleganta matsalen med kakelugn har utsikt över Bäveån och rymmer utan problem större middagsbjudningar.
Matsalen kan vid behov delas av och användas som extra sovrum eller arbetsrum.
I anslutning till matsalen ligger master bedroom med eget badrum, privat balkong, platsbyggda garderober och ytterligare en dekorativ kakelugn.
Våningens andra salong används idag som vardagsrum eller bibliotek – en inbjudande plats för avkoppling och sociala tillställningar och även här finns vackra detaljer såsom stuckatur och takrosett.
Det andra sovrummet erbjuder god förvaring och har utgång till en balkong i soligt söderläge mot lugn innergård.

Ett integrerat högtalarsystem finns installerat i samtliga rum.

Den privata tvättstugan är fullt utrustad med tvättmaskin, torktumlare och praktiskt tvättho. Här finns även ett eget kylrum samt extra frys, vilket ger utmärkta möjligheter till förvaring.

Detta är en våning som kombinerar generösa ytor, genomtänkta funktioner och tidlös elegans – ett hem som verkligen imponerar och bör upplevas på plats.
Bostaden är idag omöblerad och inflyttningsklar.

Varmt välkommen att anmäla dig till visning. Kontakta oss gärna för mer information.

Om Bostaden

Sammanfattning

Typ: Bostadsrättslägenhet
Rum: 4, varav 2 sovrum, möjlighet till 3 sovrum
Boarea: 198 m2
Pris (Utgångspris): 4 995 000 kr
Driftkostnad: 1 943 kr/månad
Upplåtelseform: Bostadsrätt
Våning: 3 av 3
Hiss: Nej

Kommentar till boarean

Boareauppgift enligt: Säljaren

Allmänt

Län: Västra Götaland
Kommun: Uddevalla
Område: Uddevalla Stad

Renoveringsbeskrivning

Utförda renoveringar i lägenheten:
Lägenheten är ombyggd och helrenoverad 2000-2001 med nya fönster i alla rum utom det stora badrummet och ett litet fönster i hallen, nya golv, väggytor, kylrum, tvättstuga, ny balkong mot vattnet mm.

Gemensamma utrymmen

Uppvärmt källarförråd ca 50 kvm och vindsförråd ca 20 kvm följer lägenheten.

Parkering

Två parkeringsplatser följer lägenheten. Förbereda för laddbox.

Ekonomi

Pris (Utgångspris)

4 995 000 kr

Månadsavgift

5 000 kr
I avgiften ingår vatten, internet och parkeringsplats

Driftkostnader

1 943 kr/månad
Kommentar: I uppvärmningskostnaden ingår även hushållsel.

Fördelas enligt följande

Uppvärmning: 1 800 kr
Försäkring: 143 kr

Observera att driftskostnaderna som anges ovan baseras på säljarens faktiska kostnader det senaste året om inget annat särskilt anges.
Vilka driftskostnader köparen kommer att ha beror på hur bostaden kommer att användas, vilka abonnemang som kommer att tecknas och övriga omständigheter i det enskilda fallet.

Pantsättning

Uppgift om pantsättning saknas

Försäkring

Svensk Fastighetsförmedling samarbetar med If för att underlätta ditt bostadsköp. När du köper bostad eller fritidshus genom Svensk Fastighetsförmedling är den automatiskt försäkrad. Vi kallar det Flytta in-försäkring. Den är kostnadsfri och gäller under de första 30 dagarna. Fortsätter du sedan att försäkra hemmet eller fritidshuset hos If får du 10% rabatt och flera andra unika förmåner. Fråga din mäklare för att ta del av erbjudandet.

Alla bilder

+ 19 Visa alla 25 bilder
 

Planritning

Karta och område

Södra Hamnen 3, Uddevalla

Kalkyl

Vad kostar nya boendet?

Fler värden

Här nedanför kan du ändra ränta, amortering och driftkostnader och se hur de påverkar kalkylen.

Återställ alla värden
Visa fler

Ränta

Amortering

Driftkostnad per månad

Driftkostnad/månad

Observera att driftskostnaderna som anges ovan baseras på säljarens faktiska kostnader det senaste året om inget annat särskilt anges.

Vilka driftskostnader köparen kommer att ha beror på hur bostaden kommer att användas, vilka abonnemang som kommer att tecknas och övriga omständigheter i det enskilda fallet.

Boendekostnad per månad

Ränta
+  kr
Driftkostnad
+  kr
Månadsavgift
+ 5000 kr
Skattereduktion
 kr
Summa
ca  kr
Amortering
+  kr
Inkl amortering
ca  kr

Ansök om lånelöfte

Hos vårt systerbolag Ordna Bolån kan du enkelt ansöka om lånelöfte eller bolån. En ansökan, svar från flera banker.

Visningsanmälan

Fyll i formuläret så kontaktar vi dig inom kort.

Välj mellan nedan alternativ
Onsdag 8 april

Södra Hamnen 3, 451 42 Uddevalla
Anmälan krävs. Klicka på ”Läs mer hos mäklaren”, där finns anmälan. Välkommen!
Jag vill veta mer om bostaden

Kontaktuppgifter
Vänligen ange förnamn
Vänligen ange efternamn
Vänligen ange telefonnummer
Vänligen ange e-post
500 tecken kvar
Har du lånelöfte?*
Vill du ha hjälp med lånelöfte?
Vill du få nyheter och erbjudanden?

Oj, något gick fel! Försök igen. 

Ett ögonblick!
Tack, dina uppgifter är sparade!
Du fyllde inte i någon e-postadress. Ange den nedan för att inte missa någon information.
 
 
 
Ta del av vår integritetspolicy
 
 
 

Liknande bostäder till salu

Uddevalla Stad, Uddevalla
Södra Hamnen 3
Dela bostad: Dela på Facebook Dela med epost Dela med sms Kopiera länk Länken kopierad

Planritning