Hoppa till innehåll
Torslanda

Tullan Finks Gata 6

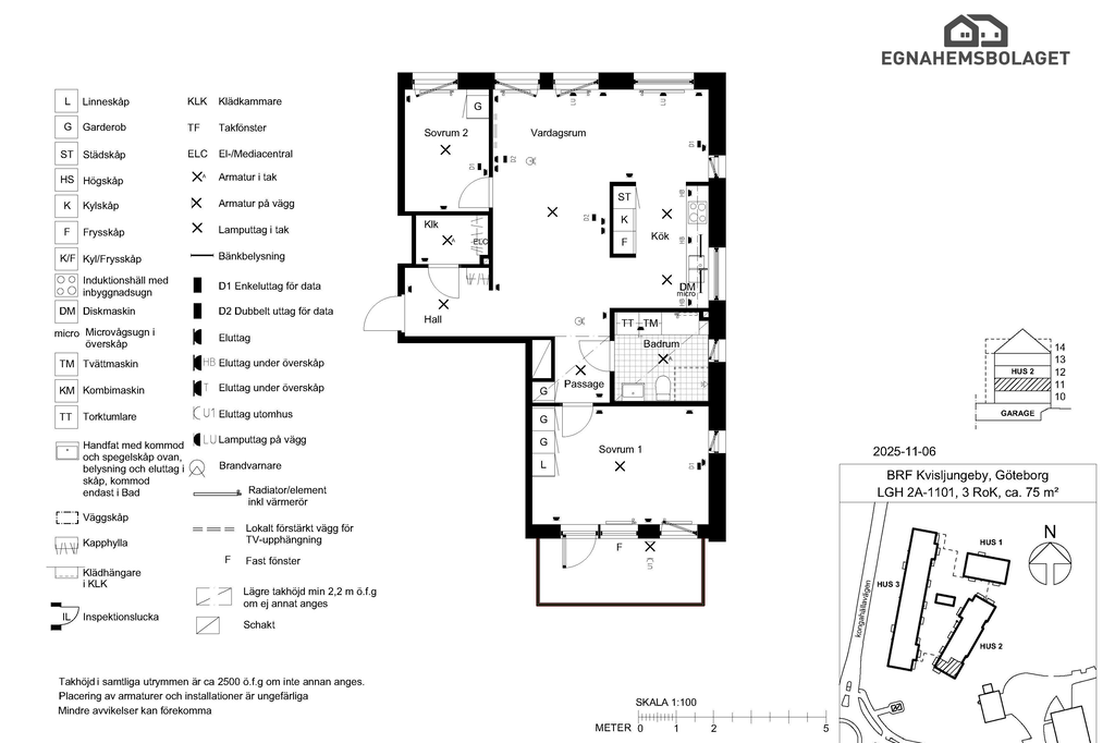
Genomgångslägenhet med gavelläge som erbjuder fönster i tre väderstreck.

  • Typ: Bostadsrättslägenhet
  • Rum: 3, varav 2 sovrum
  • Boarea: 75 m2
  • Lägenhetsnummer: 2A-1101
  • Byggnadsår: 2026
  • Månadsavgift: 4 000 kr
  • Upplåtelseform: Bostadsrätt
  • Våning: 1 av 4
  • Hiss: Ja

Välkommen hem till lägenhet 2A-1101, med 3 rum och kök och 75 kvadratmeter på våning 1.

* Läs om Egnahemsbolagets kampanj under dokument. Observera att kampanjen redan är aktiverad på utgångspriset!
Försäljningspriset är redan inkluderat ett avdrag på 150 000 kr från ordinarie pris ( 3.700 000 kr) på grund av pågående kampanj.
Kampanjen pågår fram till 2026-05-12. Läs mer om kampanjen under dokument.

Denna trea har luftiga ytor och en social planlösning. När du öppnar dörren möts du av en entréhall med avhängning och förvaring i klädkammare. Sedan öppnar hemmet upp sig i ett stort rum där kök, matplats och vardagsrum smälter samman i en halvöppen planlösning. Köket är utrustat med allt som ett modernt kök ska ha: kyl och frys i fullhöjd, diskmaskin, mikrovågsugn, spis med induktionshäll och varmluftsugn. Allt i ett stilrent vitt utförande. Köket är också utrustat med kolfilterfläkt.

Från vardagsrummet når du lägnhetens stora sovrum och badrum. Badrummet är helkaklat med en duschhörna i klarglas. Ditt nya hem har bra tvättmöjligheter med egen tvättmaskin och torktumlare. Ovanpå maskinerna ligger en praktisk bänkskiva där du kan vika tvätt och det finns överskåp med gott om förvaring.

Det stora sovrummet har gott om plats för dubbelsängen och bra förvaring i två garderober och ett linneskåp. Från detta sovrum har du utgång till entrevlig balkong med vy över innergården. På balkongen ryms en sittgrupp och läget är också smidigt för dig som vill kunna ha uppsikt över lekande barn på gården.

Det mindre sovrummet ligger på andra sidan lägenheten innanför vardagsrummet och här finns ytterligare en garderob.

Om Bostaden

Sammanfattning

Typ: Bostadsrättslägenhet
Rum: 3, varav 2 sovrum
Boarea: 75 m2
Lägenhetsnummer: 2A-1101
Utgångspris: 3 550 000 kr
Byggnadsår: 2026
Upplåtelseform: Bostadsrätt
Våning: 1 av 4
Hiss: Ja

Kommentar till boarean

Boareauppgift enligt: Bostadsrättsföreningen

Upplåtna utrymmen

Lägenheten har ett externt förråd placerat på vinden.

Byggnadssätt

Kommentar: Nybyggnation med färdigställande år 2026.

Tv/Internetanslutning

Tele2. Basutbud tv och bredband 100/100.

Värme- och ventilationsanläggning

Fastigheten värms upp med bergvärme, vilket ger en jämn och effektiv uppvärmning.

Ventilation sker via FTX-system med mekanisk till- och frånluft samt värmeåtervinning, vilket bidrar till god luftomsättning och ett behagligt inomhusklimat.

Allmänt

Län: Västra Götaland
Kommun: Göteborg
Område: Torslanda

Andel i föreningen

Andel i föreningen: 1,08%

Gemensamma utrymmen

Föreningen erbjuder flera gemensamma utrymmen som bidrar till en trivsam och funktionell boendemiljö. Det finns en gemensamhetslokal om ca 25 m², avsedd för sociala aktiviteter och mindre sammankomster.

På föreningens mark har en inbjudande gårdsmiljö anlagts med planteringar, gräsytor och hårdgjorda ytor som tillsammans skapar en välbalanserad helhet. Här finns växthus, sittbänkar med bord, grillmöjligheter samt lekplats. För cyklar finns cykelställ med tillhörande väderskydd, praktiskt placerade för vardagens behov.

Parkering

Garageplats utan el, 1100 kr/mån.

Garageplats med el, 1200 kr/mån.
Kostnaderna för den el man förbrukar tillkommer. Utöver månadskostnaden tillkommer en avgift för laddabonnemang, debiteras separat, ca 40 kr/mån.

Markparkering utomhus, 850 kr/mån.
Från och med oktober 2026 kommer markparkeringarna att beläggas med moms.

Ekonomi

Utgångspris

3 550 000 kr

Månadsavgift

4 000 kr
I din månadsavgift ingår värme, kallvatten, sophämtning och en försäkring för bostadsrättstillägg.

Lägenheterna har individuell mätning och debitering för (IMD) för hushållsel och varmvatten.
Föreningen har ett kollektivt avtal för tv, bredband och telefoni från Tele2, vilket ger ett mer förmånligt pris för dig som boende. Kostnaden om 172kr/mån läggs som ett obligatoriskt tillägg till månadsavgiften.

Pantsättning

Uppgift om pantsättning saknas

Försäkring

Svensk Fastighetsförmedling samarbetar med If för att underlätta ditt bostadsköp. När du köper bostad eller fritidshus genom Svensk Fastighetsförmedling är den automatiskt försäkrad. Vi kallar det Flytta in-försäkring. Den är kostnadsfri och gäller under de första 30 dagarna. Fortsätter du sedan att försäkra hemmet eller fritidshuset hos If får du 10% rabatt och flera andra unika förmåner. Fråga din mäklare för att ta del av erbjudandet.

Alla bilder

+ 7 Visa alla 13 bilder
 

Planritning

Karta och område

Tullan Finks Gata 6, Torslanda

Kalkyl

Vad kostar nya boendet?

Fler värden

Här nedanför kan du ändra ränta, amortering och driftkostnader och se hur de påverkar kalkylen.

Återställ alla värden
Visa fler

Ränta

Amortering

Driftkostnad per månad

Driftkostnad/månad

Observera att driftskostnaderna som anges ovan baseras på säljarens faktiska kostnader det senaste året om inget annat särskilt anges.

Vilka driftskostnader köparen kommer att ha beror på hur bostaden kommer att användas, vilka abonnemang som kommer att tecknas och övriga omständigheter i det enskilda fallet.

Boendekostnad per månad

Ränta
+  kr
Driftkostnad
+  kr
Månadsavgift
+ 4000 kr
Skattereduktion
 kr
Summa
ca  kr
Amortering
+  kr
Inkl amortering
ca  kr

Ansök om lånelöfte

Hos vårt systerbolag Ordna Bolån kan du enkelt ansöka om lånelöfte eller bolån. En ansökan, svar från flera banker.

Visningsanmälan

Fyll i formuläret så kontaktar vi dig inom kort.

Välj mellan nedan alternativ
Onsdag 3 juni
Anmälan krävs

Tullan Finks Gata 6, 423 59 Torslanda
Välkommen att kontakta mäklare för att boka visning!
Onsdag 10 juni
Anmälan krävs

Tullan Finks Gata 6, 423 59 Torslanda
Välkommen att kontakta mäklare för att boka visning!
Onsdag 17 juni
Anmälan krävs

Tullan Finks Gata 6, 423 59 Torslanda
Välkommen att kontakta mäklare för att boka visning!
Onsdag 24 juni
Anmälan krävs

Tullan Finks Gata 6, 423 59 Torslanda
Välkommen att kontakta mäklare för att boka visning!
Onsdag 1 juli
Anmälan krävs

Tullan Finks Gata 6, 423 59 Torslanda
Välkommen att kontakta mäklare för att boka visning!
Onsdag 8 juli
Anmälan krävs

Tullan Finks Gata 6, 423 59 Torslanda
Välkommen att kontakta mäklare för att boka visning!
Jag vill veta mer om bostaden

Kontaktuppgifter
Vänligen ange förnamn
Vänligen ange efternamn
Vänligen ange telefonnummer
Vänligen ange e-post
500 tecken kvar
Har du lånelöfte?*
Vill du ha hjälp med lånelöfte?
Vill du få nyheter och erbjudanden?

Oj, något gick fel! Försök igen. 

Ett ögonblick!
Tack, dina uppgifter är sparade!
Du fyllde inte i någon e-postadress. Ange den nedan för att inte missa någon information.
 
 
 
Ta del av vår integritetspolicy
 
 
 

Liknande bostäder till salu

Torslanda, Göteborg
Tullan Finks Gata 6
Dela bostad: Dela på Facebook Dela med epost Dela med sms Kopiera länk Länken kopierad

Planritning