Hoppa till innehåll
 
Aktiv matchning
Månadsavgift: 2 918 kr/månad
Vill du veta mer om bostaden?
Detta är en bostad som visas exklusivt på svenskfast.se. Mäklaren letar aktivt efter rätt köpare och uppgifter som pris och visningsdatum kan saknas. Anmäl ditt intresse för att få alla uppdateringar och mer information om denna bostad.
Göteborg

Morängatan 8

Aktiv matchning
Månadsavgift: 2 918 kr/månad
Vill du veta mer om bostaden?
Detta är en bostad som visas exklusivt på svenskfast.se. Mäklaren letar aktivt efter rätt köpare och uppgifter som pris och visningsdatum kan saknas. Anmäl ditt intresse för att få alla uppdateringar och mer information om denna bostad.

Magisk etta högst upp i huset med hiss!

  • Typ: Bostadsrättslägenhet
  • Rum: 1
  • Boarea: 37 m2
  • Lägenhetsnummer: 1131
  • Byggnadsår: 1942
  • Månadsavgift: 2 918 kr
  • Upplåtelseform: Bostadsrätt
  • Våning: 4 av 4
  • Hiss: Ja

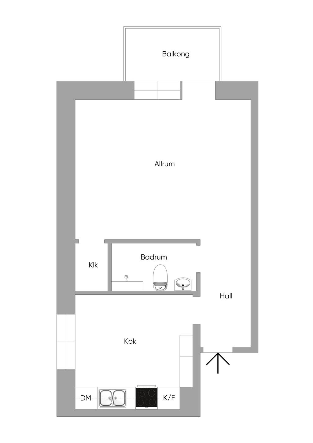
Välkommen till Morängatan 8 – en etta utöver det vanliga, högst upp i huset med hiss och himlen som närmsta granne. Här bor du bekvämt och ostört, med ett fantastiskt ljusinsläpp och en fri känsla som bara en bostad högst upp kan erbjuda.

Det vackra brädgolvet i allrummet ger lägenheten karaktär och värme direkt när du kliver in. Rummet är lättmöblerat med plats för både säng, soffa och matbord, och de generösa fönstren låter dagsljuset flöda in och skapar en luftig och harmonisk atmosfär.

Det separata köket är både charmigt och funktionellt, med bra arbetsytor och utrymme för ett mindre matbord. Här finns alla möjligheter att laga goda middagar och njuta av lugna morgnar med utsikt över takåsarna.

Att bostaden dessutom nås bekvämt via hiss gör vardagen extra smidig – oavsett om du kommer hem med matkassar eller bara vill ta dig upp enkelt och bekvämt.

Belägen i omtyckta Strömmensberg bor du i ett lugnt och trivsamt område med närhet till grönområden, service och smidiga kommunikationer in till city. Här får du ett rofyllt boende med stadens utbud inom räckhåll.

En perfekt första bostad eller för dig som söker ett högt, ljust och bekvämt boende med det lilla extra. Välkommen hem!

Om Bostaden

Sammanfattning

Typ: Bostadsrättslägenhet
Rum: 1
Boarea: 37 m2
Lägenhetsnummer: 1131
Byggnadsår: 1942
Upplåtelseform: Bostadsrätt
Våning: 4 av 4
Hiss: Ja

Kommentar till boarean

Boareauppgift enligt: Bostadsrättsföreningen

Tv/Internetanslutning

Kabel-TV via ComHem, basutbud ingår i avgiften.

Bredband via ComHem eller Bredbandsbolaget via fiber. Föreningen har tecknat gruppavtal, obligatoriskt tillägg för bredband 85:-/mån.
Kabel-TV via ComHem, basutbud ingår i avgiften.

Bredband via ComHem eller Bredbandsbolaget via fiber. Tecknas och betalas separat av lägenhetsinnehavaren.

Värme- och ventilationsanläggning

Fjärrvärme

Allmänt

Län: Västra Götaland
Kommun: Göteborg
Område: Östra Centrum

Andel i föreningen

Andel i föreningen: 0.5351%
Andel av insats: 0.53509%
Andel av månadsavgift: 0.5351%

Pantsättningsavgift

592 kr

Bostadsrättens indirekta nettoskuldsättning

181 153 kr
Bostadsrättens indirekta nettoskuldsättning anger hur stor andel av bostadsrättsföreningens lån som indirekt belastar bostadsrätten. Det underlag som ligger till grund för beräkning av uppgiften har inhämtats från bostadsrättsföreningen, dels från årsredovisning dels från utdrag ur bostadsrättsföreningens lägenhetsregister. Observera att föreningens skuldsättningsgrad kan ha förändrats sedan årsredovisningen som ligger till grund för beräkningen upprättades.

Om föreningen

Brf Göteborgshus nr 1 är Sveriges första Riksbyggenhus, byggt 1941-1942. Föreningen äger fastigheten Göteborg Bagaregården 36:13 med adresserna Kobergsgatan 2-8, 12-14, 18-30 samt Morängatan 8-12. Den består av 132 lägenheter med en sammanlagd boyta på 6781 kvm.

Lägenhetsfördelning
4 st 1 rum och kök
28 st 1 rum, kammare och kök
74 st 2 rum och kök
13 st 3 rum och kök
13 st 4 rum och kök

Fastigheterna är fullvärdesförsäkrade i Trygg Hansa.
Förvaltningen sköts av Riksbyggen.

Föreningen har en mycket informativ webbsida som är värd ett besök, www.gbghus1.nu

Renoveringsbeskrivning

Utförda renoveringar i föreningen:
1985-1986 Fastigheten rotrenoverades och alla el och VVS stammar byttes ut. Dessutom renoverades balkonger, fönster och hissar.
2004 Fasaden målades om.
2007 Avloppsstammarna spolades och vissa ventiler byttes ut.
2009 gjorde man en översyn av ventilationen.
2010 Tele2 installerade fiberlan.
2013 Ventilationen sågs över och ersattes med nya fläktar med modern styrning.
2014 Hissarna renoverades.
2015 Byte av radiatorventiler.
2017 Relining av avloppsstammarna.
2019 Målning av trapphus, tvättstuga
2021 Tak- och fasadrenovering
2022 OVK
Kommande renoveringar i föreningen:
Inga stora renoveringar planerade, föreningen följer en underhållsplan

Gemensamma utrymmen

Till lägenheten hör ett förråd.

I källaren finns ett flertal cykelrum och dessutom finns cykelställ på utsidan.

Föreningen har två tvättstugor i källaren på Kobergsgatan 6 och 12. I varje tvättstuga finns två stationer och under bokad tvättid har man möjlighet att disponera 2 tvättmaskiner, 1 torktumlare samt 1 torkrum. Gemensamt till de två stationerna finns en centrifug.

Bastu finns i källaren på Kobergsgatan 26.
Pingisrum finns i källaren vid Morängatan 8.
Motionsrum utrustat med två träningscyklar, två roddmaskiner, en crosstrainer samt ett ”hemmagym” finns i källaren vid Kobergsgatan 2.
Hobbyrummet ”Snickerboa” återfinns vid Kobergsgatan 24.

Parkering

Föreningen förfogar över 24 parkeringsplatser längs Kobergsgatan. Dessa P-platser har el-uttag för motorvärmare och kostar f.n. 200 kr per månad. Alla platser är uthyrda och kön/väntetiden är relativt lång
Föreningen är även delägare i Strömmensbergs P-platsförening, som disponerar en större parkeringsplats (95 platser, utan eluttag) med infart från StorhöjdsgatanPlatserna kostar f.n. 125 kr per månad för föreningens medlemmar. Även här är alla platser uthyrda, men omsättningen är större och väntetiden troligtvis kortare.
Fri parkering på flertalet gator i området.

Föreningens ekonomi

Kommande avgiftsförändringar: Inga planerade avgiftsändringar.
Historiska avgiftsändringar;
2024-01-01 höjning med 3%
2023-01-01 höjning med 5%
2021-01-01 höjning med 3%

Ekonomi

Överlåtelseavgift

Överlåtelseavgift: 1 480 kr
Överlåtelseavgift betalas av: köpare

Månadsavgift

2 918 kr
I avgiften ingår värme, vatten och kabel-tv
Bredbandsavgift om 85:-/månad tillkommer utöver månadsavgiften.
I avgiften ingår värme, vatten samt kabel-TV.

Avgiftsförändringar

Inga planerade avgiftsändringar.
Historiska avgiftsändringar;
2024-01-01 höjning med 3%
2023-01-01 höjning med 5%
2021-01-01 höjning med 3%

Pantsättning

Lägenheten är pantsatt

Energideklaration

Status: Energideklaration är utförd
Specifik energianvändning: 133 kWh/kvm/år
Energideklaration utförd: 2008-10-31

Försäkring

Svensk Fastighetsförmedling samarbetar med If för att underlätta ditt bostadsköp. När du köper bostad eller fritidshus genom Svensk Fastighetsförmedling är den automatiskt försäkrad. Vi kallar det Flytta in-försäkring. Den är kostnadsfri och gäller under de första 30 dagarna. Fortsätter du sedan att försäkra hemmet eller fritidshuset hos If får du 10% rabatt och flera andra unika förmåner. Fråga din mäklare för att ta del av erbjudandet.

Alla bilder

Planritning

Karta och område

Morängatan 8, Göteborg

Kalkyl

Vad kostar nya boendet?

Fler värden

Här nedanför kan du ändra ränta, amortering och driftkostnader och se hur de påverkar kalkylen.

Återställ alla värden
Visa fler

Ränta

Amortering

Driftkostnad per månad

Driftkostnad/månad

Observera att driftskostnaderna som anges ovan baseras på säljarens faktiska kostnader det senaste året om inget annat särskilt anges.

Vilka driftskostnader köparen kommer att ha beror på hur bostaden kommer att användas, vilka abonnemang som kommer att tecknas och övriga omständigheter i det enskilda fallet.

Boendekostnad per månad

Ränta
+  kr
Driftkostnad
+  kr
Månadsavgift
+ 2918 kr
Skattereduktion
 kr
Summa
ca  kr
Amortering
+  kr
Inkl amortering
ca  kr

Ansök om lånelöfte

Hos vårt systerbolag Ordna Bolån kan du enkelt ansöka om lånelöfte eller bolån. En ansökan, svar från flera banker.

Intresseformulär

Fyll i formuläret så kontaktar vi dig inom kort.

Kontaktuppgifter
Vänligen ange förnamn
Vänligen ange efternamn
Vänligen ange telefonnummer
Vänligen ange e-post
500 tecken kvar
Har du lånelöfte?*
Vill du ha hjälp med lånelöfte?
Vill du få nyheter och erbjudanden?

Oj, något gick fel! Försök igen. 

Ett ögonblick!
Tack, dina uppgifter är sparade!
Du fyllde inte i någon e-postadress. Ange den nedan för att inte missa någon information.
 
 
 
Ta del av vår integritetspolicy
 
 
 

Liknande bostäder till salu

Östra Centrum, Göteborg
Morängatan 8
Dela bostad: Dela på Facebook Dela med epost Dela med sms Kopiera länk Länken kopierad

Planritning