Hoppa till innehåll
 
Visning
Utgångspris: 
1 495 000 kr
Månadsavgift: 3 678 kr/månad
Göteborg

Arvesgärde 23

Visning
Utgångspris: 
1 495 000 kr
Månadsavgift: 3 678 kr/månad

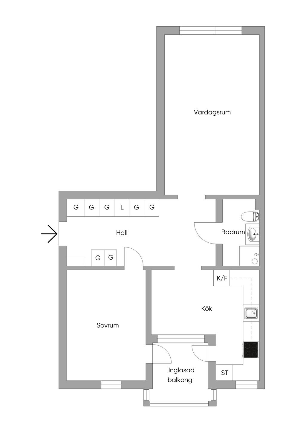
Trivsam och välplanerad 2:a med inglasad balkong och generösa ytor

  • Typ: Bostadsrättslägenhet
  • Rum: 2, varav 1 sovrum
  • Boarea: 65,5 m2
  • Lägenhetsnummer: 274
  • Byggnadsår: 1962-1964
  • Månadsavgift: 3 678 kr
  • Driftkostnad: 1 178 kr/månad
  • Upplåtelseform: Bostadsrätt
  • Våning: 1 av 3
  • Hiss: Nej

Välkommen till denna trivsamma och välplanerade tvåa som kombinerar generösa ytor med fint ljusinsläpp och genomtänkta funktioner. Bostaden präglas av en luftig känsla där stora fönsterpartier låter dagsljuset flöda genom hela lägenheten och skapar en ljus och inbjudande atmosfär.

Den härliga inglasade balkongen blir ett extra rum större delen av året och nås smidigt från både kök och sovrum – perfekt för morgonkaffet, avkoppling eller sociala stunder oavsett säsong. Köket erbjuder gott om arbetsyta, plats för matbord och är utrustat med diskmaskin som underlättar vardagen.

Vardagsrummet är rymligt och lättmöblerat med plats för både soffgrupp och matplats, samtidigt som de stora fönstren ger ett fantastiskt ljusflöde. Sovrummet är harmoniskt och praktiskt planerat med gott om plats för säng samt möjlighet till extra förvaring efter behov.

Redan i hallen möts du av generös förvaring tack vare flera garderober och bra avhängningsmöjligheter. Badrummet är funktionellt utrustat med dusch, tvättmaskin och handdukstork – en bekväm lösning som förenklar vardagslivet.

Detta är ett hem som erbjuder både rymd, ljus och smart planlösning – ett boende att trivas i från första stund.

Om Bostaden

Sammanfattning

Typ: Bostadsrättslägenhet
Rum: 2, varav 1 sovrum
Boarea: 65,5 m2
Lägenhetsnummer: 274
Utgångspris: 1 495 000 kr
Byggnadsår: 1962-1964
Driftkostnad: 1 178 kr/månad
Upplåtelseform: Bostadsrätt
Våning: 1 av 3
Hiss: Nej

Kommentar till boarean

Boareauppgift enligt: Bostadsrättsföreningen

Tv/Internetanslutning

Kabel-TV via ComHem. 17 analoga kanaler, 11 fasta digitala kanaler och 8 valfria digitala kanaler. Internet via Bahnhof 1000/1000Mbit

Allmänt

Län: Västra Götaland
Kommun: Göteborg

Omgivning

Tuve är ett omtyckt och familjevänligt område som kombinerar naturnära livskvalitet med smidig närhet till stadens utbud. Med direkt närhet till Hisingsparken bor du granne med ett uppskattat rekreationsområde fyllt av grönskande natur, slingrande promenadstigar och fina möjligheter till motion och friluftsliv året runt. För den aktive finns både Tuvevallen och Tuve ishall på bekvämt gångavstånd, vilket gör det enkelt att hålla en aktiv livsstil.

I Tuve centrum finns ett varierat utbud av service, restauranger och butiker, med matinköp smidigt ordnade genom ICA och Willys som båda ligger samlade på torget. Området är särskilt attraktivt för barnfamiljer tack vare flera närliggande skolor och förskolor, bland annat Fridaskolan (F–9), Gunnestorpsskolan (F–6), Tångenskolan (F–6) och Glöstorpsskolan (7–9).

Läget passar även utmärkt för pendlaren – med buss 17 tar du dig till Göteborgs centralstation på cirka 20 minuter, vilket ger snabb och smidig access till hela Göteborg. Här bor du med andra ord i ett lugnt och grönt område utan att kompromissa med tillgänglighet, service eller stadsliv.

Andel i föreningen

Andel i föreningen: 0,32290
Andel av månadsavgift: 0,32290

Pantsättningsavgift

592 kr

Bostadsrättens indirekta nettoskuldsättning

124 201 kr
Bostadsrättens indirekta nettoskuldsättning anger hur stor andel av bostadsrättsföreningens lån som indirekt belastar bostadsrätten. Det underlag som ligger till grund för beräkning av uppgiften har inhämtats från bostadsrättsföreningen, dels från årsredovisning dels från utdrag ur bostadsrättsföreningens lägenhetsregister. Observera att föreningens skuldsättningsgrad kan ha förändrats sedan årsredovisningen som ligger till grund för beräkningen upprättades.

Om föreningen

Föreningen Måsängen består av 8 bostadshus med adresserna Arvesgärde 9-24. I husen finns 304 st bostadsrätter i storlek 1-4 r.o.k.

Renoveringsbeskrivning

Utförda renoveringar i föreningen:
1990 - Fönster och nya balkonger.
1997 - Säkerhetsdörrar.
2001 - Omläggning tak och installation fjärrvärme.
2012 - Stam- (vatten, avlopp och el) och badrumsrenovering. 3-fas el indraget till varje lägenhet. Målning av cykelförråd och källare.
2013 - Nya kablar och utrustning till kabel-TV och bredband.
2015- Renovering av lekplatserna
2016 - 2st nya 24h tvättstugor färdigställs i panncentralen.
2017 - Byte av söderfasader samt södernischer vid entréerna inklusive nya fönster på södergavlarna.
2021 - Belysningsarmaturerna byttes ut i samtliga fastigheter till LED-belysning och tvättstugorna i fastigheterna har målats om.
2025 / 2024 - Uppfräschning av entréerna med nya utskick.
2025 - Uppdatering av befintliga laddstolpar på parkeringsplats.
2025 - Nyinstallation av ett digitalt boknings och porttelefonisystem

Gemensamma utrymmen

I föreningen finns en tvättstuga i varje hus som är belägen på entréplan. Varje tvättstuga är utrustad med två tvättmaskiner, en torktumlare, ett torkrum samt en mangel. Det finns också en mattvätt samt två dygnet-runt-tvättstugor. I föreningen finns även cykelrum, barnvagnsrum samt samlingslokal.

Parkering

Brf Måsängen har egna parkeringsplatser. Inom området finns det 175st parkeringsplatser fördelat på platser med Motorvärmare, laddstolpe eller utan något. Det finns även 54st garageplatser för bil samt 10st garageplatser för motorcykel.
Det finns utöver dessa även 39st gäst parkeringar.


Föreningen jobbar med kösystem till samtliga parkeringar och denna hanteras av förvaltaren Bredablick.
Ansökan till parkeringsplats görs via Bredablicks hemsida.

Ekonomi

Utgångspris

1 495 000 kr

Överlåtelseavgift

Överlåtelseavgift: 1 480 kr
Överlåtelseavgift betalas av: köpare

Månadsavgift

3 678 kr
I avgiften ingår vatten
I avgiften ingår vatten. Obligatoriskt tillägg om 103kr/ mån avseende Bredband och Kabel-TV tillkommer samt 675kr/mån avseende värmetillägg.

Driftkostnader

1 178 kr/månad
Årlig elförbrukning: 1000 kWh/år
Antal i hushållet: 1
Kommentar: Nuvarande bostadsrättsinnehavare betalar 245 kr/mån för parkering

Fördelas enligt följande

El: 200 kr
Försäkring: 200 kr
Bredband/Kabel-TV: 103 kr (obligatorisk)
Värmeavgift: 675 kr (obligatorisk)

Observera att driftskostnaderna som anges ovan baseras på säljarens faktiska kostnader det senaste året om inget annat särskilt anges.
Vilka driftskostnader köparen kommer att ha beror på hur bostaden kommer att användas, vilka abonnemang som kommer att tecknas och övriga omständigheter i det enskilda fallet.

Pantsättning

Lägenheten är pantsatt

Energideklaration

Status: Energideklaration är utförd
Energiprestanda: 166 kWh/kvm/år
Energiklass: FF
Specifik energianvändning: 150 kWh/kvm/år
Energideklaration utförd: 2019-10-01
Besiktningsman: Jarl Nilsson, J&E Energikonsult AB

Försäkring

Svensk Fastighetsförmedling samarbetar med If för att underlätta ditt bostadsköp. När du köper bostad eller fritidshus genom Svensk Fastighetsförmedling är den automatiskt försäkrad. Vi kallar det Flytta in-försäkring. Den är kostnadsfri och gäller under de första 30 dagarna. Fortsätter du sedan att försäkra hemmet eller fritidshuset hos If får du 10% rabatt och flera andra unika förmåner. Fråga din mäklare för att ta del av erbjudandet.

Alla bilder

+ 14 Visa alla 20 bilder
 

Planritning

Karta och område

Arvesgärde 23, Göteborg

Kalkyl

Vad kostar nya boendet?

Fler värden

Här nedanför kan du ändra ränta, amortering och driftkostnader och se hur de påverkar kalkylen.

Återställ alla värden
Visa fler

Ränta

Amortering

Driftkostnad per månad

Driftkostnad/månad

Observera att driftskostnaderna som anges ovan baseras på säljarens faktiska kostnader det senaste året om inget annat särskilt anges.

Vilka driftskostnader köparen kommer att ha beror på hur bostaden kommer att användas, vilka abonnemang som kommer att tecknas och övriga omständigheter i det enskilda fallet.

Boendekostnad per månad

Ränta
+  kr
Driftkostnad
+  kr
Månadsavgift
+ 3678 kr
Skattereduktion
 kr
Summa
ca  kr
Amortering
+  kr
Inkl amortering
ca  kr

Ansök om lånelöfte

Hos vårt systerbolag Ordna Bolån kan du enkelt ansöka om lånelöfte eller bolån. En ansökan, svar från flera banker.

Visningsanmälan

Fyll i formuläret så kontaktar vi dig inom kort.

Välj mellan nedan alternativ
Tisdag 14 april
Anmälan krävs

Arvesgärde 23, 417 44 Göteborg
Varmt välkomna på visning, anmälan krävs!
Jag vill veta mer om bostaden

Kontaktuppgifter
Vänligen ange förnamn
Vänligen ange efternamn
Vänligen ange telefonnummer
Vänligen ange e-post
500 tecken kvar
Har du lånelöfte?*
Vill du ha hjälp med lånelöfte?
Vill du få nyheter och erbjudanden?

Oj, något gick fel! Försök igen. 

Ett ögonblick!
Tack, dina uppgifter är sparade!
Du fyllde inte i någon e-postadress. Ange den nedan för att inte missa någon information.
 
 
 
Ta del av vår integritetspolicy
 
 
 

Liknande bostäder till salu

Göteborg
Arvesgärde 23
Dela bostad: Dela på Facebook Dela med epost Dela med sms Kopiera länk Länken kopierad

Planritning