Hoppa till innehåll
 
Utgångspris: 
1 100 000 kr
Månadsavgift: 7 708 kr/månad
Umeå

Innerbyvägen 7A

Utgångspris: 
1 100 000 kr
Månadsavgift: 7 708 kr/månad

En trivsam marklägenhet med känsla av litet radhus, belägen i lugn och naturnära miljö.

  • Typ: Bostadsrättslägenhet
  • Rum: 3, varav 2 sovrum
  • Boarea: 72,5 m2
  • Lägenhetsnummer: 0007
  • Byggnadsår: 1991
  • Månadsavgift: 7 708 kr
  • Driftkostnad: 553 kr/månad
  • Upplåtelseform: Bostadsrätt
  • Våning: 1 av 2

En trivsam marklägenhet med känsla av litet radhus, belägen i lugn och naturnära miljö. Det är en välplanerad 3 rok i bra skick, med renoverat badrum och ett rymligt kök med plats för ett större matbord. Från bostaden nås en balkong i soligt söderläge med vacker utsikt över öppna åkrar – perfekt för avkoppling och långa sommarkvällar.

Här bor du på landet med närhet till naturen, samtidigt som vardagen är smidig med både matbutik och skola alldeles intill. Umeå nås på cirka 10 minuter med bil och området har goda bussförbindelser, vilket gör pendlingen enkel och bekväm. Ett idealiskt boende för dig som vill kombinera lugn, bekvämlighet och närhet till stadens utbud.

Om Bostaden

Beskrivning

2025
Bytt golv och lister i hall och kök

2020
Renoverat badrummet

2018
Målat samtliga rum.
Bytt golv och lister i vardagsrummet och sovrummen.


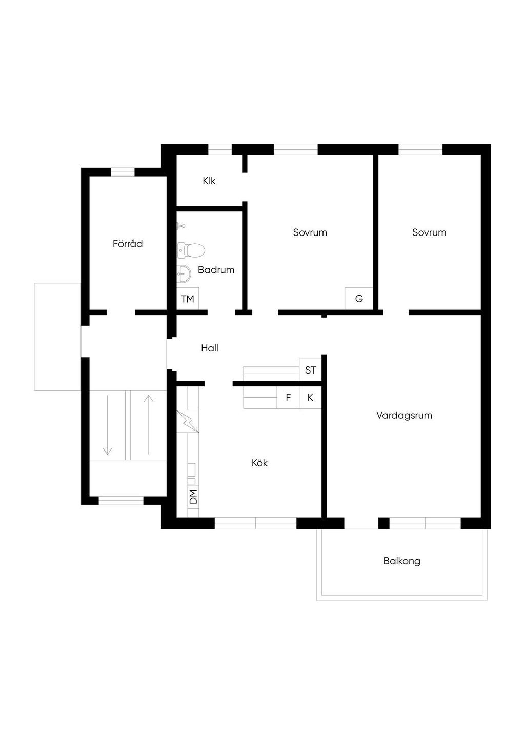
Hall, rymligt kök, renoverat badrum, 2 st sovrum, vardagsrum med utgång till balkong på baksidan med söderläge,
Kök: Rymligt kök med plats för ett större matbord. Gott om skåp med vita köksluckor och vitt kakel vid bänkskivan. Utrustat med kyl, frys, spis med häll (ca 2020), fläkt samt diskmaskin (2018).
Badrum: Renoverat badrum 2020 (våtrumsintyg finns) med våtrumsmatta på golv och väggar. Badrummet är utrustat med tvättställ med vit kommod, spegelskåp, dusch samt tvättmaskin.

Sammanfattning

Typ: Bostadsrättslägenhet
Rum: 3, varav 2 sovrum
Boarea: 72,5 m2
Lägenhetsnummer: 0007
Utgångspris: 1 100 000 kr
Byggnadsår: 1991
Driftkostnad: 553 kr/månad
Upplåtelseform: Bostadsrätt
Våning: 1 av 2
Inflyttning: Enligt överenskommelse

Kommentar till boarean

Boareauppgift enligt: Bostadsrättsföreningen

Upplåtna utrymmen

Lägenhetsförrådet ligger praktisk alldeles utanför dörren till lägenheten inne i trapphuset på samma plan.

Tomt/balkong/uteplats

Balkong: Rymlig balkong i markplan med utgång genom grind till gräsmattan. Ligger med söderläge så det är sol hela eftermiddagen till en bit in på kvällen på balkongen.

Tv/Internetanslutning

Internet - Anslutning och internetabonnemang tecknas separat via Hissjönet. Möjlighet att välja leveranshastighet finns. Fibern har prestanda upp t.o.m. 1000 Mb/s (400 kr/mån).
TV - Grundutbud med SVT1, SVT2, TV4, Kunskapskanalen samt Barnkanalen ingår. Vill man ha fler kanaler, så kan man teckna abonnemang via Boxer för markbunden kabeltv eller använda sig av Google Chromecast eller Apple-TV.

Värme- och ventilationsanläggning

Markvärme

Allmänt

Län: Västerbotten
Kommun: Umeå
Område: Hissjö

Andel i föreningen

Andel i föreningen: 4,314
Andel av månadsavgift: 0,04314

Pantsättningsavgift

592 kr

Om föreningen

Brf Hässjan är beläget på Innerbyvägen i tätorten Hissjö, ca 1mil nordväst om Umeå, efter riksväg 363.
Föreningen består av 24 lägenheter fördelat på sex fristående byggnader med fyra lägenheter i varje byggnad. Stora gemensamma ytor finns med gemensam uteplats, lekplats, matkällare samt odlingsmöjligheter.

Gemensamma utrymmen

Det finns gemensam tvättstuga, förråd för gemensamma grönytemaskiner, gemensamma matkällare, redskapsbod samt cykelförråd.
Det finns även en lekplats i området.

Parkering

Bilplats 1: Carport med tillhörande förråd . Avgift 475 kr/mån, har separat kö, har strömuttag.
Bilplats 2: P-plats . Avgift 250 kr/mån, har separat kö, har strömuttag.
Det finns 12 bilplatser med carport med tillhörande förråd samt 22 bilplatser utan tak.


Ekonomi

Utgångspris

1 100 000 kr

Överlåtelseavgift

Överlåtelseavgift: 1 480 kr
Överlåtelseavgift betalas av: säljare

Månadsavgift

7 708 kr
I avgiften ingår värme, vatten, kabel-tv och bostadsrättstillägg
Elabonemang behöver inte tecknas utan föreningen har gemensam el med preliminärförbrukningsdebitering med avläsning för avstämmning 1 gång per år.
Cirka 1% (60 kr) av månadsavgiften går till bostadsägarens inre fond . Det är ett sparande där man som bostadsägare kan använda för underhåll av sitt boende.

Driftkostnader

553 kr/månad
Antal i hushållet: 3

Fördelas enligt följande

El: 456 kr
Försäkring: 97 kr

Observera att driftskostnaderna som anges ovan baseras på säljarens faktiska kostnader det senaste året om inget annat särskilt anges.
Vilka driftskostnader köparen kommer att ha beror på hur bostaden kommer att användas, vilka abonnemang som kommer att tecknas och övriga omständigheter i det enskilda fallet.

Pantsättning

Lägenheten är pantsatt

Energideklaration

Status: Energideklaration är utförd
Energiprestanda: 73 kWh/kvm/år
Energiklass: CC
Energideklaration utförd: 2018-10-30

Inre reparationsfond

Summa: 9 630 kr

Försäkring

Svensk Fastighetsförmedling samarbetar med If för att underlätta ditt bostadsköp. När du köper bostad eller fritidshus genom Svensk Fastighetsförmedling är den automatiskt försäkrad. Vi kallar det Flytta in-försäkring. Den är kostnadsfri och gäller under de första 30 dagarna. Fortsätter du sedan att försäkra hemmet eller fritidshuset hos If får du 10% rabatt och flera andra unika förmåner. Fråga din mäklare för att ta del av erbjudandet.

Alla bilder

+ 23 Visa alla 29 bilder
 

Planritning

Karta och område

Innerbyvägen 7A, Umeå

Kalkyl

Vad kostar nya boendet?

Fler värden

Här nedanför kan du ändra ränta, amortering och driftkostnader och se hur de påverkar kalkylen.

Återställ alla värden
Visa fler

Ränta

Amortering

Driftkostnad per månad

Driftkostnad/månad

Observera att driftskostnaderna som anges ovan baseras på säljarens faktiska kostnader det senaste året om inget annat särskilt anges.

Vilka driftskostnader köparen kommer att ha beror på hur bostaden kommer att användas, vilka abonnemang som kommer att tecknas och övriga omständigheter i det enskilda fallet.

Boendekostnad per månad

Ränta
+  kr
Driftkostnad
+  kr
Månadsavgift
+ 7708 kr
Skattereduktion
 kr
Summa
ca  kr
Amortering
+  kr
Inkl amortering
ca  kr

Ansök om lånelöfte

Hos vårt systerbolag Ordna Bolån kan du enkelt ansöka om lånelöfte eller bolån. En ansökan, svar från flera banker.

Intresseformulär

Fyll i formuläret så kontaktar vi dig inom kort.

Kontaktuppgifter
Vänligen ange förnamn
Vänligen ange efternamn
Vänligen ange telefonnummer
Vänligen ange e-post
500 tecken kvar
Har du lånelöfte?*
Vill du ha hjälp med lånelöfte?
Vill du få nyheter och erbjudanden?

Oj, något gick fel! Försök igen. 

Ett ögonblick!
Tack, dina uppgifter är sparade!
Du fyllde inte i någon e-postadress. Ange den nedan för att inte missa någon information.
 
 
 
Ta del av vår integritetspolicy
 
 
 

Liknande bostäder till salu

Hissjö, Umeå
Innerbyvägen 7A
Dela bostad: Dela på Facebook Dela med epost Dela med sms Kopiera länk Länken kopierad

Planritning