Hoppa till innehåll
Stockholm

Roslagstullsbacken 14

BALKONG - GARAGE I HUSET - VACKERT RENOVERAD

  • Typ: Bostadsrättslägenhet
  • Rum: 2, varav 1 sovrum
  • Boarea: 67,3 m2
  • Lägenhetsnummer: A32/132
  • Byggnadsår: 2007
  • Månadsavgift: 4 887 kr
  • Driftkostnad: 732 kr/månad
  • Upplåtelseform: Bostadsrätt
  • Våning: 1 av 4
  • Hiss: Ja

Välkommen till en smakfullt och exklusivt renoverad tvåa som kombinerar funktionalitet med hög trivselfaktor i ett attraktivt och rofyllt läge.

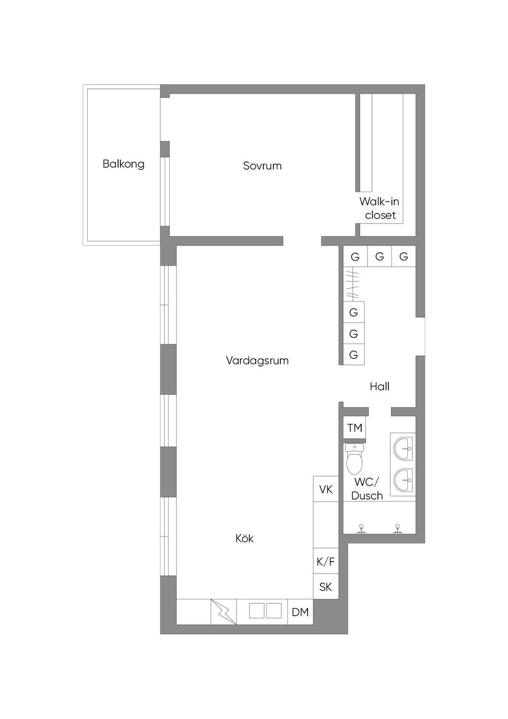
Redan i hallen möts du av generösa avhängningsmöjligheter i stilrena, platsbyggda garderober som skapar både ordning och ett elegant första intryck. Bostaden präglas genomgående av en välplanerad och integrerad belysning som lyfter fram materialvalen och skapar en varm, exklusiv atmosfär. Genomtänkta detaljer såsom strömbrytare och eluttag i matt svart från Buster + Punch bidrar till ett modernt och enhetligt uttryck. Bostaden öppnar upp sig mot ett luftigt och inbjudande sällskapsrum i öppen planlösning med köket. De stora fönsterpartierna i fil ger ett fantastiskt ljusinsläpp och förstärker känslan av rymd. Det moderna köket är fullt utrustat med diskmaskin, ugn, spis, fläkt, mikrovågsugn, kyl och frys samt en exklusiv vinkyl – perfekt för den som uppskattar det lilla extra. Här finns gott om plats för både en generös matplats och en bekväm soffgrupp, vilket gör bostaden idealisk för sociala tillställningar. Sovrummet är rymligt och rofyllt beläget mot en grönskande baksida. Här erbjuds en lyxig walk-in closet med heltäckningsmatta, automatiserad belysning och mycket goda förvaringsmöjligheter. Förvaring är genomgående väl tilltagen i hela bostaden, vilket gör det enkelt att hålla ett stilrent och organiserat hem. Från sovrummet nås även bostadens fantastiska balkong – en privat oas utan insyn där du kan njuta av lugna stunder med morgonkaffet eller ett glas vin i kvällssolen. Det exklusivt renoverade badrummet håller en mycket hög standard och är smakfullt utformat med dubbla integrerade takduschar, golvvärme och dubbla handfat. Här finns även en spegel med integrerad belysning, stilren kommod med god förvaring, vägghängd toalett samt praktiska inbyggda hyllor. Badrummet är dessutom utrustat med tvättmaskin och förberett utrymme för torktumlare – en perfekt kombination av funktion och lyx.

Brf Roslagstullsbacken är stabil förening som äger marken. Det finns i huset ett garage i källaren med 18 platser som kan hyras av föreningens medlemmar, kö-tid råder.

Här bor du i en välplanerad bostad med genomgående hög standard, belägen i ett lugnt område med närhet till grönområden och rekreation. Här är du bara en kort promenad från Tekniska Högskolan (tunnelbana) och tre minuter från närmaste matbutik på Birger Jarlsgatan - ca fem minuters cykelväg till Universitet. Runt hörnet finns även Lill-Jansskogen med dess trivsamma motionsspår och även Hagaparken med fina motions och badmöjligheter. För dig som är bilburen når du enkelt E4:an både norr och söder.

Varmt välkommen på visning!

Om Bostaden

Sammanfattning

Typ: Bostadsrättslägenhet
Rum: 2, varav 1 sovrum
Boarea: 67,3 m2
Lägenhetsnummer: A32/132
Pris (Utgångspris): 6 195 000 kr
Byggnadsår: 2007
Driftkostnad: 732 kr/månad
Upplåtelseform: Bostadsrätt
Våning: 1 av 4
Hiss: Ja

Kommentar till boarean

Boareauppgift enligt: Bostadsrättsföreningen
Uppgift angående boarean är baserad på säljarens uppgifter samt kontrollerad med föreningen. Denna area kan av olika skäl vara felaktig. Den köpare som avser arean vara av stor betydelse för köp bör därför vidta en uppmätning före köpet.

Upplåtna utrymmen

förråd i källaren tillhörande lägenhet.

Byggnadssätt

Kommentar: Byggår 2008.

Tv/Internetanslutning

Tv och bredband levereras via Telia.

Värme- och ventilationsanläggning

Fjärrvärme

Allmänt

Län: Stockholm
Kommun: Stockholm
Område: Östermalm

Andel i föreningen

Andel i föreningen: 2,45855
Andel av insats: 2,57627

Pantsättningsavgift

1 480 kr

Bostadsrättens indirekta nettoskuldsättning

942 189 kr
Bostadsrättens indirekta nettoskuldsättning anger hur stor andel av bostadsrättsföreningens lån som indirekt belastar bostadsrätten. Det underlag som ligger till grund för beräkning av uppgiften har inhämtats från bostadsrättsföreningen, dels från årsredovisning dels från utdrag ur bostadsrättsföreningens lägenhetsregister. Observera att föreningens skuldsättningsgrad kan ha förändrats sedan årsredovisningen som ligger till grund för beräkningen upprättades.

Om föreningen

Bostadsrättsföreningen Roslagstullsbacken består av 41 lägenheter. Föreningen är en äkta förening som äger marken.

Renoveringsbeskrivning

Kommande renoveringar i föreningen:
Inga kommande renoveringar (information från styrelsen 17/03/26)

Gemensamma utrymmen

Cykelförråd i garaget.
Cykelparkering utomhus.
Barnvagnsrum i vardera uppgång.
Soprum.

Parkering

Det finns garage i huset med möjlighet att hyra en p-plats.

Ekonomi

Pris (Utgångspris)

6 195 000 kr

Överlåtelseavgift

Överlåtelseavgift: 2 664 kr
Överlåtelseavgift betalas av: köpare

Månadsavgift

4 887 kr
I avgiften ingår värme, varmvatten, kallvatten och kabel-tv
utöver avgiften tillkommer obligatoriskt tillägg för balkong om 226 kr/mån samt 182 kr/mån för bredband.

Driftkostnader

732 kr/månad
Årlig elförbrukning: 3442 kWh/år
Antal i hushållet: 2

Fördelas enligt följande

El: 350 kr
Försäkring: 382 kr

Observera att driftskostnaderna som anges ovan baseras på säljarens faktiska kostnader det senaste året om inget annat särskilt anges.
Vilka driftskostnader köparen kommer att ha beror på hur bostaden kommer att användas, vilka abonnemang som kommer att tecknas och övriga omständigheter i det enskilda fallet.

Avgiftsförändringar

inga kommande avgiftsförändringar (info från styrelsen 17/03/2026)

Pantsättning

Lägenheten är pantsatt

Försäkring

Svensk Fastighetsförmedling samarbetar med If för att underlätta ditt bostadsköp. När du köper bostad eller fritidshus genom Svensk Fastighetsförmedling är den automatiskt försäkrad. Vi kallar det Flytta in-försäkring. Den är kostnadsfri och gäller under de första 30 dagarna. Fortsätter du sedan att försäkra hemmet eller fritidshuset hos If får du 10% rabatt och flera andra unika förmåner. Fråga din mäklare för att ta del av erbjudandet.

Alla bilder

+ 29 Visa alla 35 bilder
 

Planritning

Karta och område

Roslagstullsbacken 14, Stockholm

Kalkyl

Vad kostar nya boendet?

Fler värden

Här nedanför kan du ändra ränta, amortering och driftkostnader och se hur de påverkar kalkylen.

Återställ alla värden
Visa fler

Ränta

Amortering

Driftkostnad per månad

Driftkostnad/månad

Observera att driftskostnaderna som anges ovan baseras på säljarens faktiska kostnader det senaste året om inget annat särskilt anges.

Vilka driftskostnader köparen kommer att ha beror på hur bostaden kommer att användas, vilka abonnemang som kommer att tecknas och övriga omständigheter i det enskilda fallet.

Boendekostnad per månad

Ränta
+  kr
Driftkostnad
+  kr
Månadsavgift
+ 4887 kr
Skattereduktion
 kr
Summa
ca  kr
Amortering
+  kr
Inkl amortering
ca  kr

Ansök om lånelöfte

Hos vårt systerbolag Ordna Bolån kan du enkelt ansöka om lånelöfte eller bolån. En ansökan, svar från flera banker.

Visningsanmälan

Fyll i formuläret så kontaktar vi dig inom kort.

Välj mellan nedan alternativ
Söndag 19 april
Öppen visning

Roslagstullsbacken 14, 114 21 Stockholm
Anmäl gärna ert deltagande via mäklarens hemsida. Varmt välkomna!
Måndag 20 april
Öppen visning

Roslagstullsbacken 14, 114 21 Stockholm
Anmäl gärna ert deltagande via mäklarens hemsida. Varmt välkomna!
Jag vill veta mer om bostaden

Kontaktuppgifter
Vänligen ange förnamn
Vänligen ange efternamn
Vänligen ange telefonnummer
Vänligen ange e-post
500 tecken kvar
Har du lånelöfte?*
Vill du ha hjälp med lånelöfte?
Vill du få nyheter och erbjudanden?

Oj, något gick fel! Försök igen. 

Ett ögonblick!
Tack, dina uppgifter är sparade!
Du fyllde inte i någon e-postadress. Ange den nedan för att inte missa någon information.
 
 
 
Ta del av vår integritetspolicy
 
 
 

Liknande bostäder till salu

Östermalm, Stockholm
Roslagstullsbacken 14
Dela bostad: Dela på Facebook Dela med epost Dela med sms Kopiera länk Länken kopierad

Planritning