Hoppa till innehåll
 
Visning
Utgångspris: 
3 495 000 kr
Månadsavgift: 5 425 kr/månad
Järna

Amandas Väg 38

Visning
Utgångspris: 
3 495 000 kr
Månadsavgift: 5 425 kr/månad

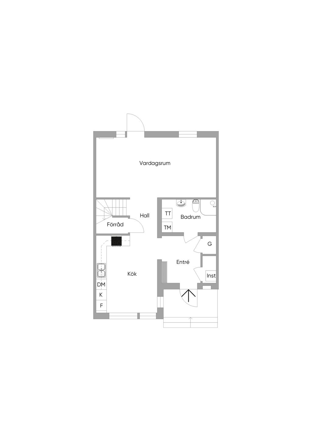
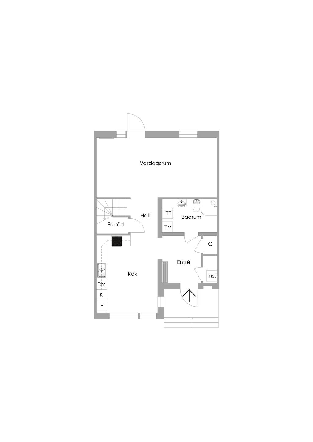
Välkomna till Amandas väg 38 – ett nyligen producerat och välplanerat radhus

  • Typ: Radhus
  • Rum: 5, varav 3-4 sovrum
  • Boarea: 117 m2
  • Lägenhetsnummer: G03S
  • Byggnadsår: 2022-2023
  • Månadsavgift: 5 425 kr
  • Driftkostnad: 1 353 kr/månad
  • Upplåtelseform: Bostadsrätt

Välkommen till ett nyckelfärdigt hem där både familj och vänner får plats att trivas. Detta moderna radhus från 2023 om 117 kvm är fördelat på två plan och erbjuder ett välplanerat boende med kök och vardagsrum på entréplanet samt uteplatser både fram och bak – perfekt för sommarens grillkvällar, lek och avkoppling.

På entréplanet finns kök och vardagsrum med gott om plats för umgänge och trivsel. Här finns även ett helkaklat badrum samt utgång till husets soliga baksida, en härlig förlängning av bostaden under årets varmare månader.

En trappa upp finns husets privata del med tre sovrum, där ett idag används som arbetsrum, samt ett allrum och gott om förvaringsmöjligheter. Här finns även ett andra helkaklat badrum, vilket gör morgonrusningen enkel för hela familjen.

Här bor du utan att behöva tänka på renoveringar många år framöver – huset blev klart 2023 och är i modernt skick. På uppfarten finns plats för två bilar.

Amandas väg ligger i ett uppskattat och barnvänligt område med närhet till flera förskolor, skolor, lekplatser och idrottsanläggningar. I närheten finns även populära Kallfors Golfklubb med restaurang. Området präglas av grönska, skogspartier och god grannsämja – här har många bott länge och trivs mycket bra.

Ett hem som är redo att fyllas med nya minnen och vardagens alla små och stora stunder.

Om Bostaden

Sammanfattning

Typ: Radhus
Rum: 5, varav 3 sovrum, möjlighet till 4 sovrum
Boarea: 117 m2
Lägenhetsnummer: G03S
Utgångspris: 3 495 000 kr
Byggnadsår: 2022-2023
Driftkostnad: 1 353 kr/månad
Upplåtelseform: Bostadsrätt

Kommentar till boarean

Boareauppgift enligt: Bostadsrättsföreningen

Allmänt

Län: Stockholm
Kommun: Södertälje

Andel i föreningen

Andel i föreningen: 1,985 %

Bostadsrättens indirekta nettoskuldsättning

1 385 000 kr
Bostadsrättens indirekta nettoskuldsättning anger hur stor andel av bostadsrättsföreningens lån som indirekt belastar bostadsrätten. Det underlag som ligger till grund för beräkning av uppgiften har inhämtats från bostadsrättsföreningen, dels från årsredovisning dels från utdrag ur bostadsrättsföreningens lägenhetsregister. Observera att föreningens skuldsättningsgrad kan ha förändrats sedan årsredovisningen som ligger till grund för beräkningen upprättades.

Om föreningen

Om föreningen
Föreningen består av totalt 62 lägenheter, fördelade på fyra flerbostadshus i två våningar, samt fyra parhus och fem radhuslängor.

Parkering
För flerbostadshusen finns 44 parkeringsplatser, medan radhusen och parhusen har 64 platser. Dessutom finns 7 gästparkeringar. En parkeringsplats på den allmänna boendeparkeringen kostar 200 kr/månad. För radhusen ingår parkering på den egna uppfarten.

TV och bredband
Samtliga lägenheter är anslutna till öppen fiber. Föreningen har ett gruppavtal med Telenor för TV och bredband, vilket kostar 230 kr/månad och faktureras tillsammans med hyran. Modem och TV-box finns installerade i varje bostad, och boende behöver kontakta Telenor för att aktivera tjänsten vid inflyttning.

Renoveringar
Inga större renoveringar är beslutade i dagsläget.

Avgifter vid överlåtelse och pantsättning
Föreningen har rätt att ta ut en överlåtelseavgift för att täcka administrativa kostnader vid ägarbyte. Avgiften faktureras antingen säljare eller köpare, enligt föreningens stadgar. Vid pantsättning av bostadsrätten tas en pantsättningsavgift ut, som faktureras pantsättaren och registreras i föreningens pantsättningsregister.

Ekonomi

Utgångspris

3 495 000 kr

Månadsavgift

5 425 kr
El, fast avgift per år 40kr/mån
Vatten, fast avgift 40kr /mån
Bredband/Tv 230kr /mån.

Driftkostnader

1 353 kr/månad
Årlig elförbrukning: 5378 kWh/år
Antal i hushållet: 4
Kommentar: Från säljaren '' Uppvärmningskostnaden ingår i elkostnaden. Elavgifter och förbrukning varierar från månad till månad. Jag har därför använt det faktiska genomsnittet från december 2024 till och med november 2025 (eftersom vi per den 14 februari 2026 endast har mottagit fakturor till och med november 2025)

Fördelas enligt följande

El: 1 088 kr
Vatten: 265 kr

Observera att driftskostnaderna som anges ovan baseras på säljarens faktiska kostnader det senaste året om inget annat särskilt anges.
Vilka driftskostnader köparen kommer att ha beror på hur bostaden kommer att användas, vilka abonnemang som kommer att tecknas och övriga omständigheter i det enskilda fallet.

Pantsättning

Uppgift om pantsättning saknas

Försäkring

Svensk Fastighetsförmedling samarbetar med If för att underlätta ditt bostadsköp. När du köper bostad eller fritidshus genom Svensk Fastighetsförmedling är den automatiskt försäkrad. Vi kallar det Flytta in-försäkring. Den är kostnadsfri och gäller under de första 30 dagarna. Fortsätter du sedan att försäkra hemmet eller fritidshuset hos If får du 10% rabatt och flera andra unika förmåner. Fråga din mäklare för att ta del av erbjudandet.

Alla bilder

+ 15 Visa alla 21 bilder
 

Karta och område

Amandas Väg 38, Järna

Kalkyl

Vad kostar nya boendet?

Fler värden

Här nedanför kan du ändra ränta, amortering och driftkostnader och se hur de påverkar kalkylen.

Återställ alla värden
Visa fler

Ränta

Amortering

Driftkostnad per månad

Driftkostnad/månad

Observera att driftskostnaderna som anges ovan baseras på säljarens faktiska kostnader det senaste året om inget annat särskilt anges.

Vilka driftskostnader köparen kommer att ha beror på hur bostaden kommer att användas, vilka abonnemang som kommer att tecknas och övriga omständigheter i det enskilda fallet.

Boendekostnad per månad

Ränta
+  kr
Driftkostnad
+  kr
Månadsavgift
+ 5425 kr
Skattereduktion
 kr
Summa
ca  kr
Amortering
+  kr
Inkl amortering
ca  kr

Ansök om lånelöfte

Hos vårt systerbolag Ordna Bolån kan du enkelt ansöka om lånelöfte eller bolån. En ansökan, svar från flera banker.

Visningsanmälan

Fyll i formuläret så kontaktar vi dig inom kort.

Välj mellan nedan alternativ
Måndag 27 april
Anmälan krävs

Amandas Väg 38, 153 38 Järna
Vänligen anmäl er via fastighetsmäklarens hemsida för att erhålla visningstid detta datum eller direkt på 070 843 05 02.
Jag vill veta mer om bostaden

Kontaktuppgifter
Vänligen ange förnamn
Vänligen ange efternamn
Vänligen ange telefonnummer
Vänligen ange e-post
500 tecken kvar
Har du lånelöfte?*
Vill du ha hjälp med lånelöfte?
Vill du få nyheter och erbjudanden?

Oj, något gick fel! Försök igen. 

Ett ögonblick!
Tack, dina uppgifter är sparade!
Du fyllde inte i någon e-postadress. Ange den nedan för att inte missa någon information.
 
 
 
Ta del av vår integritetspolicy
 
 
 

Liknande bostäder till salu

Södertälje
Amandas Väg 38
Dela bostad: Dela på Facebook Dela med epost Dela med sms Kopiera länk Länken kopierad

Planritning