Hoppa till innehåll
 
Pris (Utgångspris): 
2 795 000 kr
Månadsavgift: 6 826 kr/månad
Nykvarn

Rudkällavägen 3AA

Pris (Utgångspris): 
2 795 000 kr
Månadsavgift: 6 826 kr/månad

Villakänsla i mysiga Brokvarn!

  • Typ: Parhus
  • Rum: 5, varav 4 sovrum
  • Boarea: 117,9 m2
  • Lägenhetsnummer: 107
  • Byggnadsår: 2019
  • Månadsavgift: 6 826 kr
  • Driftkostnad: 1 750 kr/månad
  • Upplåtelseform: Bostadsrätt

Välkommen till Rudkällavägen och ett fint parhus med hela fyra sovrum. Bostadsrättsföreningen ser ljust på framtiden och sänkte sina månadsavgifter med 20% i höstas!

Genomgående moderna ytskikt samt ett av områdets bästa lägen fritt från biltrafik utanför dörren.

Trevlig planlösning med generösa sociala ytor och öppet mellan kök och vardagsrum som bidrar till en luftig känsla. Ett fullutrustat kök med bra arbetsytor från Vedum och vitvaror från Siemens. Parkettgolv med golvvärme, två helkaklade badrum samt egen tvättstuga. Huset är beläget på hörntomt med en altan i bra solläge. Goda förvaringsmöjligheter i flertalet garderober samt förråd. Tre rymliga sovrum i nedre plan med parkettgolv. Laddbox för elbil finns.

Om Bostaden

Beskrivning

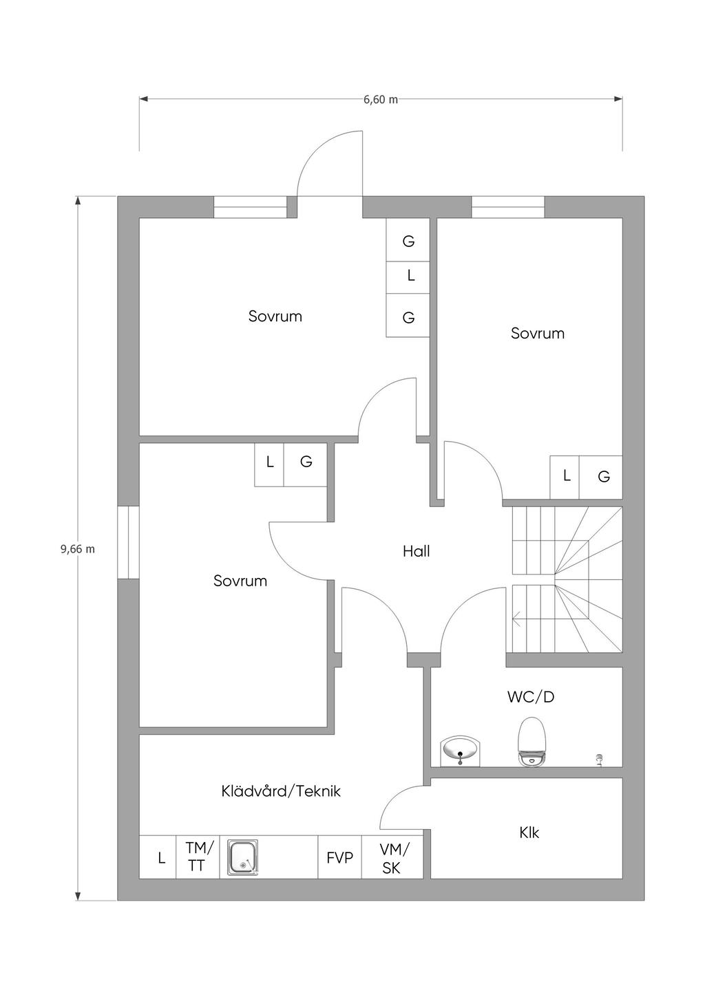
Hall med garderob, kök från Vedum, vardagsrum, badrum och ett sovrum på entréplanet. En trappa ned finns hall, tre sovrum, ett fint badrum och en stor tvättstuga/teknikrum och förråd/klädkammare. Utgång till altanen finner ni också här nere.

Utrustning kök: Kylskåp, frys, varmluftsugn, induktionshäll, köksfläkt, inbyggd mikro samt diskmaskin.
Utrustning tvättstuga: tvättmaskin, torktumlare, handfat, städskåp samt generösa arbetsytor och arbetsbänk.

Sammanfattning

Typ: Parhus
Rum: 5, varav 4 sovrum
Boarea: 117,9 m2
Lägenhetsnummer: 107
Pris (Utgångspris): 2 795 000 kr
Byggnadsår: 2019
Driftkostnad: 1 750 kr/månad
Upplåtelseform: Bostadsrätt
Inflyttning: Enligt överenskommelse

Kommentar till boarean

Boareauppgift enligt: Bostadsrättsföreningen

Tv/Internetanslutning

Fiber finns, leverantör tecknas separat.

Värme- och ventilationsanläggning

Egen frånluftsvärmepump i husen.

Allmänt

Län: Stockholm
Kommun: Nykvarn
Område: Nykvarn

Andel i föreningen

Andel i föreningen: 0,0831628
Andel av insats: Uppgiften har ej gått att få fram
Andel av månadsavgift: Uppgiften har ej gått att få fram

Parkering

En p-plats hör till varje hus till en kostnad om 395 kr/mån, föreningen har även ett antal gästparkeringar. Laddbox finns installerat.

Ekonomi

Pris (Utgångspris)

2 795 000 kr

Månadsavgift

6 826 kr
Vatten, sophämtning och föreningsskötsel ingår i avgiften.
En p-plats per hus är obligatorisk vilket ger en tillkommande kostnad om 395 kr/månad utöver månadsavgiften.
Föreningen sänker sina månadsavgifter med 20% (!) per den 2025-10-01. Den nya avgiften är den som utannonseras i annonsen.

Driftkostnader

1 750 kr/månad

Fördelas enligt följande

Uppvärmning: 1 500 kr
Försäkring: 250 kr

Observera att driftskostnaderna som anges ovan baseras på säljarens faktiska kostnader det senaste året om inget annat särskilt anges.
Vilka driftskostnader köparen kommer att ha beror på hur bostaden kommer att användas, vilka abonnemang som kommer att tecknas och övriga omständigheter i det enskilda fallet.

Pantsättning

Uppgift om pantsättning saknas

Försäkring

Svensk Fastighetsförmedling samarbetar med If för att underlätta ditt bostadsköp. När du köper bostad eller fritidshus genom Svensk Fastighetsförmedling är den automatiskt försäkrad. Vi kallar det Flytta in-försäkring. Den är kostnadsfri och gäller under de första 30 dagarna. Fortsätter du sedan att försäkra hemmet eller fritidshuset hos If får du 10% rabatt och flera andra unika förmåner. Fråga din mäklare för att ta del av erbjudandet.

Alla bilder

+ 7 Visa alla 13 bilder
 

Planritning

Karta och område

Rudkällavägen 3AA, Nykvarn

Kalkyl

Vad kostar nya boendet?

Fler värden

Här nedanför kan du ändra ränta, amortering och driftkostnader och se hur de påverkar kalkylen.

Återställ alla värden
Visa fler

Ränta

Amortering

Driftkostnad per månad

Driftkostnad/månad

Observera att driftskostnaderna som anges ovan baseras på säljarens faktiska kostnader det senaste året om inget annat särskilt anges.

Vilka driftskostnader köparen kommer att ha beror på hur bostaden kommer att användas, vilka abonnemang som kommer att tecknas och övriga omständigheter i det enskilda fallet.

Boendekostnad per månad

Ränta
+  kr
Driftkostnad
+  kr
Månadsavgift
+ 6826 kr
Skattereduktion
 kr
Summa
ca  kr
Amortering
+  kr
Inkl amortering
ca  kr

Ansök om lånelöfte

Hos vårt systerbolag Ordna Bolån kan du enkelt ansöka om lånelöfte eller bolån. En ansökan, svar från flera banker.

Intresseformulär

Fyll i formuläret så kontaktar vi dig inom kort.

Kontaktuppgifter
Vänligen ange förnamn
Vänligen ange efternamn
Vänligen ange telefonnummer
Vänligen ange e-post
500 tecken kvar
Har du lånelöfte?*
Vill du ha hjälp med lånelöfte?
Vill du få nyheter och erbjudanden?

Oj, något gick fel! Försök igen. 

Ett ögonblick!
Tack, dina uppgifter är sparade!
Du fyllde inte i någon e-postadress. Ange den nedan för att inte missa någon information.
 
 
 
Ta del av vår integritetspolicy
 
 
 

Liknande bostäder till salu

Nykvarn, Nykvarn
Rudkällavägen 3AA
Dela bostad: Dela på Facebook Dela med epost Dela med sms Kopiera länk Länken kopierad

Planritning