Hoppa till innehåll
 
Pris (Utgångspris): 
1 895 000 kr
Månadsavgift: 4 575 kr/månad
Trångsund

Tornslingan 11B

Pris (Utgångspris): 
1 895 000 kr
Månadsavgift: 4 575 kr/månad

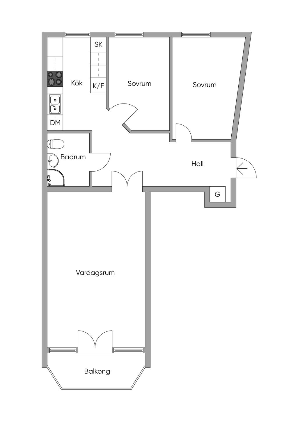
Totalrenoverad 3a med balkong i söderläge

  • Typ: Bostadsrättslägenhet
  • Rum: 3, varav 2 sovrum
  • Boarea: 64 m2
  • Lägenhetsnummer: 631
  • Byggnadsår: 1960
  • Månadsavgift: 4 575 kr
  • Driftkostnad: 571 kr/månad
  • Upplåtelseform: Bostadsrätt
  • Våning: 3 av 3
  • Hiss: Nej

Här saluförs en totalrenoverad lägenhet högst upp i huset på tredje våningen med balkong i soligt söderläge. Populär BRF med stabil ekonomi.

Lägenheten välkomnar in i en rymlig hall med bra förvaringsmöjligheter längs med vägg. Intill finns ett sovrum med plats för dubbelsäng och annat möblemang. Vardagsrummet är stort och har ett härlig ljusinsläpp från fönsterpartier ut mot balkongen - En balkong som ligger i soligt söderläge. Köket är välplanerat och modernt med snygga inredningsdetaljer. Intill köket ligger ytterligare ett sovrum som rymmer dubbelsäng och förvaring. Stambytt och helkaklat badrum som precis fått ett ansiktslyft med hjälp av microcement på golv och väggar i moderna färger samt ny badrumsinredning. Utöver nytt kök och nytt badrum har lägenhetens samtliga ytskikt och snickerier bytts ut.

Brf Löparen 3 är en välskött och populär förening som utfört många större renoveringar såsom nya fönster, stambyte, nya elstammar samt installation av fiber. Bredband 100 Mbits ingår dessutom i den låga avgiften! Med knappa 5 minuters promenad nås Trångsunds centrum med pendeltåget alternativt 10 min med buss nås Farsta centrum med galleria och tunnelbana. I Trångsund Centrum finns förutom kommunikationer med buss och tåg även flertalet restauranger, matbutik, frisör och apotek. Närhet till fina naturstråk och badplatser kring Drevviken och Magelungen.


Varmt välkomna på visning!

Om Bostaden

Sammanfattning

Typ: Bostadsrättslägenhet
Rum: 3, varav 2 sovrum
Boarea: 64 m2
Lägenhetsnummer: 631
Pris (Utgångspris): 1 895 000 kr
Byggnadsår: 1960
Driftkostnad: 571 kr/månad
Upplåtelseform: Bostadsrätt
Våning: 3 av 3
Hiss: Nej

Kommentar till boarean

Boareauppgift enligt: Bostadsrättsföreningen

Allmänt

Län: Stockholm
Kommun: Huddinge

Omgivning

TRÅNGSUND
Ett lugnt bostadsområde med kort gångavstånd till buss och tåg samt Trångsund centrum med vårdcentral, ICA, café, frisörer samt olika restauranger mm.

FRITID
I området finns flera lekplatser och stora härliga grönområden. I närområdet finns gott om fritidsaktiviteter både för stora och små. Området är rikt på skog och natur och närheten till de båda sjöarna Drevviken och Magelungen erbjuder många fina badplatser och plogade banor för långfärdsskridsko vintertid.
I närbelägna Nytorps Mosse finns en stor konstgräsplan för fotboll, motionsspår och utegym. Vid Vreten finns en nyanlagd konstgräsplan för elvamannalag.

I Stortorpshallen huserar hockey- och konståkningsföreningen. Här anordnas skridskoskolor för de minsta och hallen har också öppet för allmänhetens åkning.
I övrigt är föreningslivet rikt och omfattar bland annat innebandy, basket, handboll och fotboll. Skogås Racketcenter är storstockholms modernaste anläggning för att utöva badminton, padel, tennis och squash. Intill finns Skogåshallen som har en 25-meters bassäng där kan du simträna, gå på vattengympa, delta i simskola eller badfritids. I anläggningen finns också en stor sporthall.

Mellan Trångsund och Farsta ligger Ågesta Friluftsområde med flera olika spår - allt från den enkla promenaden till det lite tuffare milspåret i skogen. Under vintern görs flera skidspår i ordning både i skogen och ute på golfbanan. Elljus finns på slingorna som är 1, 3,3 och 6 kilometer långa. Ågesta golfklubb erbjuder både en 18-hålsbana och en 9-håls-bana. Här finns också Ågesta ridklubb och ridskola.
Drevvikens segelsällskap verkar för att främja båtlivet i Drevviken och erbjuder seglarskolor och aktiviteter knutna till sjön och naturen kring Drevviken.

Andel i föreningen

Andel i föreningen: 0,9901
Andel av månadsavgift: 0,009901

Pantsättningsavgift

592 kr

Bostadsrättens indirekta nettoskuldsättning

315 483 kr
Bostadsrättens indirekta nettoskuldsättning anger hur stor andel av bostadsrättsföreningens lån som indirekt belastar bostadsrätten. Det underlag som ligger till grund för beräkning av uppgiften har inhämtats från bostadsrättsföreningen, dels från årsredovisning dels från utdrag ur bostadsrättsföreningens lägenhetsregister. Observera att föreningens skuldsättningsgrad kan ha förändrats sedan årsredovisningen som ligger till grund för beräkningen upprättades.

Om föreningen

Bostadsrättsföreningen Löparen nr 3.
Organisationsnumret är 712800-0135.

Fastigheten byggnadsår: 1960
Föreningen har 115 lägenheter på totalt 6 451 m², huvudsakligen ettor och tvåor. Där finns även 10 lokaler för uthyrning. Föreningen har en fin uteplats mellan Trångsundsskolan och Tornslingan 13-15. Här finns bänkar och bord samt grillplats.
Mäklarinformation

I månadsavgiften ingår vatten, värme, tvättstuga, bredband (100/100), baspaket för TV (T1-Bas), månadsavgiften för IP-telefoni, bostadsrättstillägg för hemförsäkring och till lägenheten hör ett källarförråd.
Föreningen har installerat gemensam el till ett volympris som alla drar nytta av. Elkostnaden består då utav nätkostnad och en förbrukningskostnad. Aktuellt pris som föreningen debiterar är 1,2 kr /kWh.


Antal lokaler: 10.
Antal garageplatser: 24
• hyra from 1:a mars: mellan 750 - 1150 kr beroende på garagets storlek.
Antal parkeringsplatser: 38
• hyra from 1:a mars 2024: 400 kr/mån.
Det är kö till garage och parkeringsplatser.

Från och med 2013-01-01 har föreningen kompletterat sin fastighetsförsäkring med bostadsrättstillägg för samtliga lägenheter. Egen hemförsäkring utöver detta skall ändå tecknas men då utan bostadsrättstillägg.

Föreningen tar vid försäljning, gåva, bodelning samt arv ut en stadgeenlig överlåtelseavgift av säljaren på 2,5% av gällande prisbasbelopp för föreningens arbete och kostnader.
2026 – 1480 kr (Uppdaterad 2026-02-09)

Föreningen tar ut stadgeenlig pantsättningsavgift på 1% av gällande prisbasbelopp per pantsättning.
2026 – 592 kr (Uppdaterad 2026-02-09)

Föreningen vill träffa säljare och köpare vid ett gemensamt besök på föreningens expedition.
Detta besök kan bokas först då överlåtelsehandlingarna inkommit till föreningens expedition.
Föreningen kontaktar säljare och köpare för att boka ett möte.

Mötet bokas med föreningen via info@brfloparen3.se

Överlåtelsen – och med det inträde/utträde ur föreningen – anses inte klar förrän överlåtelseavgiften inkommit (Fastighetsägarna skickar en faktura) och säljare & köpare har varit på överlåtelsebesök.

Överlåteseavgiften betalas av köparen.
Föreningen godkänner inte juridisk person som bostadsrättshavare.

Renoveringsbeskrivning

Utförda renoveringar i föreningen:
Föreningen genomförde ett stambyte samt renoverade samtliga badrum 1999.
Nya fönster 2011-2012.
Solceller på taken 2020.
Fasadrenovering 2023.

Gemensamma utrymmen

Det finns två tvättstugor, mellan port 11-13 och 13-15.
Båda tvättstugorna är utrustade med tre tvättmaskiner, en torktumlare och ett torkrum.

Till alla lägenheter tillhör det ett källarförråd.
Cykelrum finns i anslutning till alla entréer förutom i port 15 och 25.

Parkering

Föreningen har 24 garageplatser samt 38 parkeringsplatser. Till dessa är det separat kö. Utefter gatorna i Trångsund är det fri parkering.

Kommunikationer

Från Trångsunds centrum går pendeltåget mot Stockholm och söderut mot Västerhaninge/Nynäshamn. Tågen går en gång i kvarten och resan till Södra station tar ca 16 minuter och till Centralen ca 18 minuter. Bra bussförbindelser finns till Farsta, Haninge och Huddinge. Med bil är du vid Centralen på en kvart om det inte är mitt i morgon- eller eftermiddagsrusningen förstås. Du har också nära till Farsta Centrum som är en viktig knutpunkt och en naturlig mötesplats i södra Stockholm med sina ca 150 butiker och restauranger. Länna Köpcentrum nås också inom 5 minuter med bil, där finns ett stort utbud med butiker och restauranger.

Ekonomi

Pris (Utgångspris)

1 895 000 kr

Överlåtelseavgift

Överlåtelseavgift: 1 480 kr
Överlåtelseavgift betalas av: köpare

Månadsavgift

4 575 kr
I avgiften ingår värme, vatten, internet och kabel-tv

Driftkostnader

571 kr/månad

Fördelas enligt följande

El: 450 kr
Försäkring: 121 kr
0 kr

Observera att driftskostnaderna som anges ovan baseras på säljarens faktiska kostnader det senaste året om inget annat särskilt anges.
Vilka driftskostnader köparen kommer att ha beror på hur bostaden kommer att användas, vilka abonnemang som kommer att tecknas och övriga omständigheter i det enskilda fallet.

Pantsättning

Uppgift om pantsättning saknas

Försäkring

Svensk Fastighetsförmedling samarbetar med If för att underlätta ditt bostadsköp. När du köper bostad eller fritidshus genom Svensk Fastighetsförmedling är den automatiskt försäkrad. Vi kallar det Flytta in-försäkring. Den är kostnadsfri och gäller under de första 30 dagarna. Fortsätter du sedan att försäkra hemmet eller fritidshuset hos If får du 10% rabatt och flera andra unika förmåner. Fråga din mäklare för att ta del av erbjudandet.

Alla bilder

+ 19 Visa alla 25 bilder
 

Planritning

Karta och område

Tornslingan 11B, Trångsund

Kalkyl

Vad kostar nya boendet?

Fler värden

Här nedanför kan du ändra ränta, amortering och driftkostnader och se hur de påverkar kalkylen.

Återställ alla värden
Visa fler

Ränta

Amortering

Driftkostnad per månad

Driftkostnad/månad

Observera att driftskostnaderna som anges ovan baseras på säljarens faktiska kostnader det senaste året om inget annat särskilt anges.

Vilka driftskostnader köparen kommer att ha beror på hur bostaden kommer att användas, vilka abonnemang som kommer att tecknas och övriga omständigheter i det enskilda fallet.

Boendekostnad per månad

Ränta
+  kr
Driftkostnad
+  kr
Månadsavgift
+ 4575 kr
Skattereduktion
 kr
Summa
ca  kr
Amortering
+  kr
Inkl amortering
ca  kr

Ansök om lånelöfte

Hos vårt systerbolag Ordna Bolån kan du enkelt ansöka om lånelöfte eller bolån. En ansökan, svar från flera banker.

Intresseformulär

Fyll i formuläret så kontaktar vi dig inom kort.

Kontaktuppgifter
Vänligen ange förnamn
Vänligen ange efternamn
Vänligen ange telefonnummer
Vänligen ange e-post
500 tecken kvar
Har du lånelöfte?*
Vill du ha hjälp med lånelöfte?
Vill du få nyheter och erbjudanden?

Oj, något gick fel! Försök igen. 

Ett ögonblick!
Tack, dina uppgifter är sparade!
Du fyllde inte i någon e-postadress. Ange den nedan för att inte missa någon information.
 
 
 
Ta del av vår integritetspolicy
 
 
 

Liknande bostäder till salu

Huddinge
Tornslingan 11B
Dela bostad: Dela på Facebook Dela med epost Dela med sms Kopiera länk Länken kopierad

Planritning