Hoppa till innehåll
 
Aktiv matchning
Utgångspris: 
5 995 000 kr
Månadsavgift: 5 098 kr/månad
Aktiv matchning
Detta är en bostad som visas exklusivt på svenskfast.se. Mäklaren letar aktivt efter rätt köpare och uppgifter som pris och visningsdatum kan saknas. Anmäl ditt intresse för att få alla uppdateringar och mer information om denna bostad.
Vendelsö

Lyckebyvägen 17

Aktiv matchning
Utgångspris: 
5 995 000 kr
Månadsavgift: 5 098 kr/månad
Aktiv matchning
Detta är en bostad som visas exklusivt på svenskfast.se. Mäklaren letar aktivt efter rätt köpare och uppgifter som pris och visningsdatum kan saknas. Anmäl ditt intresse för att få alla uppdateringar och mer information om denna bostad.

Fint parhus med stor tomt mot grönskan

  • Typ: Parhus
  • Rum: 5, varav 4 sovrum
  • Boarea: 125 m2
  • Lägenhetsnummer: 2
  • Byggnadsår: 2014
  • Månadsavgift: 5 098 kr
  • Driftkostnad: 3 531 kr/månad
  • Upplåtelseform: Bostadsrätt
  • Hiss: Nej

Naturnära parhus i familjevänligt område
Här finner du ett modernt hem i absolut toppskick där familjen kan trivas under lång tid. Design där funktionalitet möter dagens standard. Bostaden är perfekt planerad med sociala ytor i öppen planlösning på entréplan och sovrum samt allrum på övervåningen.
Den generösa tomten angränsar till naturen och erbjuder en underbar plats där familj och vänner kan njuta av uteliv tillsammans. Gott om utrymme för barnens lek, studsmatta och aktiviteter. Skyddande grönska skapar en privat oas.
Genomgående håller huset hög klass med fina materialval, ljusa golv och infällda spotlights. Kök och vardagsrum ligger i öppen planlösning, vilket skapar en inbjudande miljö för både vardagsliv och festliga tillställningar. Braskaminen utgör hemmets naturliga mittpunkt och bidrar med både värme och trivsel. Här finns även utgång till det generösa trädäcket – en perfekt plats för utemöbler och umgänge. På entréplan finns även ett stilrent familjebadrum samt en separat tvättstuga.
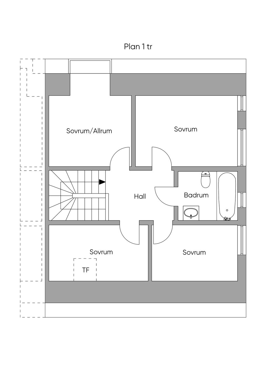
Övre plan är unikt tack vare den generösa takhöjden och det fina ljusinsläppet från både stora fönster och takfönster. Master bedroom är rymligt och erbjuder gott om plats för både säng och förvaring. Utöver detta finns ytterligare tre sovrum, lämpliga som barnrum eller kontor, samtliga med fint ljusinsläpp och utsikt mot grönska. Även familjebadrummet på övre plan har en elegant design och är utrustat med badkar.

Uppfarten rymmer två bilar och det finns även tillgång till gästparkering vid besök.

Säljarens ord
"Det vi fastnade för direkt med huset var ljuset och rymden. Högt i tak, stora fönster och en känsla av att ute och inne hänger ihop. Det märks i vardagen och gör att huset känns större än det är. Sällskapsytorna på nedre plan har varit den självklara samlingspunkten för både familjeliv och umgänge, och kontoret med sitt stora fönster mot skogen är en plats där det är lätt att trivas och komma till ro. En annan sak vi verkligen uppskattat är hur okomplicerat allt är. Huset är nytt och genomtänkt, utan konstigheter. Enkel förvaring, eluttag och belysning sitter där man faktiskt vill ha dem och inget har känts som tillfälliga lösningar.
Tomten är något utöver det vanliga för ett parhus. Här finns sol någonstans under hela dagen och gott om plats för lek, odling och middagar på altanen. Att tomten dessutom gränsar direkt mot skog ger både en vacker grön fond från fönstren i huset och en fantastisk lekmiljö. Stämningen på gatan är varm och social, med en fin balans mellan gemenskap och privatliv. För oss med små barn har området varit perfekt. Barnen kan gå ut och leka på gatan eller i skogen utan att man behöver planera, och vill man inte leka själv finns det nästan alltid någon kompis i närheten. Parken, fotbollsplanen eller att bada i Lycksjön är enkla utflyktsmål när man vill byta miljö med en kort 5-10 minuters promenad. Vill man istället ta sig in till stan med bilen tar det inte mer än 25 minuter innan man parkerat för besök på Skansen en lördag förmiddag. Logistiken har gjort vardagen väldigt smidig. Förskolor och skola ligger på gångavstånd och direktbussarna tar en snabbt och enkelt in både till stan (Vattugatan) och Gullmarsplan. Vardagsservice som matbutik, vårdcentral, apotek och frisör m.m. finns alla inom 5 minuters gångavstånd, vilket gör att bilen sällan behövs.
Sammantaget är detta ett hem och område där livet är enkelt och tryggt! "

Närområdet erbjuder allt man som barnfamilj kan tänkas behöva. Här finns fantastiska grönområden, Tyresta nationalpark och badplats vid tex Lycksjön. För familjen är det gångavstånd till förskola, skola och kommunikationer. Tack vare det centrala men lugna läget tar det inte lång tid att komma till Haninges centrala delar. Lugnt område där familjen kommer trivas.

Vänligen kontakta Jimmy Rossetti för mer info och privat visning 0701088071

Om Bostaden

Beskrivning

ENTREPLAN -
HALL
Redan här möts man av exklusiva materialval och hög klass. Hall med plats för att hänga av ytterkläder och skor. Här finns även lämpligt tvättstugan. Hallen leder vidare till kök och vardagsrum i öppen planlösning

TVÄTTSTUGA
Funktionell tvättstuga med maskinell utrustning och bekvämligheter såsom tvättmaskin och torktumlare. Här står även frånluftsvärmepumpen.

KÖK
En plats där familjen kan samlas för att laga härliga måltider. Modernt kök beklätt med vita luckor och goda arbetsytor. Full maskinell utrustning som möter dagens standard.

VARDAGSRUM
Här kan familjeliv och festliga tillställningar samsas. Den öppna planlösningen gör rummet socialt och lättmöblerat med soffa samt tillhörande TV- möbler. Stora fönsterpartier och utgång till baksidan ger rymd en härlig känsla. Här finns även plats för större matsalsbord och trevligt sällskap. Braskaminen ger värme och mysfaktor

ALTAN
Här finns verkligen utrymme för fina utemöbler och trevligt sällskap. Altanen övergår till en större gräsmatta där barnen kan leka. Perfekt läge så att du verkligen kan njuta av att vara ute och njuta maximalt av solen.

BADRUM
Rymligt och helkaklat i toppskick. Här finns dusch, wc och handfat. Snygg design i toppskick.

- ÖVRE PLAN -

MASTER BEDROOM
Stort sovrum med plats för dubbelsäng och förvaring. Den generösa takhöjden gör rummet luftigt och ger en rymlig känsla. Förvara dina kläder gör du i garderoben. Fin utsikt genom större fönster.

SOVRUM
Trevligt sovrum med plats för säng och förvaring. Trevlig utsikt mot grönska genom stort fönster.

SOVRUM
Även detta rum är perfekt som barnrum, kontor eller gästrum. Utrymme finns för säng och förvaring. Takfönster ger rummet karaktär

SOVRUM/ ALLRUM
Mysigt sovrum med gott om utrymme och stort fönster. Detta rum kan även återställas till originalplanlösning och öppnas upp. Perfekt som användas som ett TV-rum eller kontor. En perfekt plats om man vill koppla av eller barnen vara med sina vänner.

BADRUM
Designat familjebadrum i högsta klass och snygg design. Här finns wc, handfat och badkar där barnen kan bada. Taket har spotlights för att få den rätta belysningen.

FÖRRÅD
Det finns två bra förråd på tomten

Sammanfattning

Typ: Parhus
Rum: 5, varav 4 sovrum
Boarea: 125 m2
Lägenhetsnummer: 2
Utgångspris: 5 995 000 kr
Byggnadsår: 2014
Driftkostnad: 3 531 kr/månad
Upplåtelseform: Bostadsrätt
Hiss: Nej

Kommentar till boarean

Boareauppgift enligt: Säljaren och bostadsrättsföreningen

Byggnadssätt

Kommentar: Byggnadstyp: 8 st. Parhus 1½ plan.
Mark/Undergrund: Packad sprängbotten respektive fyllning på berg.
Grundläggning: Betongplattor och sulor.
Dränering: Dräneringsledning utförd 117/110 plaströr.
Stomme: Trä.
Bjälklag: Trä.
Yttertak: Benders Betongpannor.
Vind: Kattvind, undertak av trä.
Vindsisolering: Mineralull.
Fasad: Liggande träpanel.
Entrédörrar: Trädörrar.
Fönster: Aluminium/ Trä - 1+ 2 - Isolerglas.
VA: Vattenledningar koppar. Avloppsledningar av plast.

Tomt/balkong/uteplats

Upplåten mark: Mark framför och bakom huset

Tv/Internetanslutning

Det är valfritt för respektive medlem att teckna bredband etc. Nätägare i området är Telia.

Värme- och ventilationsanläggning

Värmepump frånluft (el).
Frånluftsventilation med värmeåtervinning.

Allmänt

Län: Stockholm
Kommun: Haninge
Område: Lyckebyn

Omgivning

Ett stenkast bort ligger en förskola och det är bekvämt promenadavstånd till skolor, naturområdena Tyresta nationalpark och sjön Drevviken med fina badstränder. Kollektivtrafiken är utmärkt med direktbuss till Gullmarsplan, Tyresö och Nacka samt lokala busslinjer till Haninge centrum och pendeltågsstation i Handen. Vill man bada de heta sommardagarna finns tex Lycksjön nära. Går man mot villaområdet möts man av vårdcentral och förskolan skeppet. Här finns även Hagaskolan och Lyckebyskolan.

För mer info se haninge.se

Andel i föreningen

Andel i föreningen: 10,06009%
Andel av månadsavgift: 0,01038374

Pantsättningsavgift

588 kr

Bostadsrättens indirekta nettoskuldsättning

1 299 519 kr
Bostadsrättens indirekta nettoskuldsättning anger hur stor andel av bostadsrättsföreningens lån som indirekt belastar bostadsrätten. Det underlag som ligger till grund för beräkning av uppgiften har inhämtats från bostadsrättsföreningen, dels från årsredovisning dels från utdrag ur bostadsrättsföreningens lägenhetsregister. Observera att föreningens skuldsättningsgrad kan ha förändrats sedan årsredovisningen som ligger till grund för beräkningen upprättades.

Om föreningen

Brf Lyckeby i Vendelsö är en liten bostadsrättsförening som ligger mitt emellan civilisation och vildmark. Går du åt ena hållet kan du promenera in i Vendelsös slingrande villaområden – går du åt det andra hållet kliver du ganska snart in i den väldiga Tyresta nationalpark.

Byggår: 2013-2014. Föreningen bildades år 2013. Föreningen består av 5 parhus och tio bostäder. Gästparkering finns vid vändplan.

Föreningen äger marken.

Renoveringsbeskrivning

Utförda renoveringar i föreningen:
2021-2022 - Målning ytterpanel
Kommande renoveringar i föreningen:
Föreningen planerar att göra en taktvätt. (Enligt styrelsen 2025-09-18)
Utförda renoveringar i lägenheten:
2022: Slipat golv i hela huset
2022: målat om 2 sovrum
2023: Byggt ny trall runt hela huset
2023: Byggt Trall till förråd baksida
2024: Lekstuga
2024: Billaddare
2025: Stenläggning framsida

Gemensamma utrymmen

Inga gemensamhetsutrymmen finns i föreningen.

Parkering

Varje lägenhet har en parkeringsplats på sin uppfart. Inga övriga parkeringsplatser finns att tillgå genom föreningen.
Kostnadsfri korttidsparkering finns vid vändplanen på lyckebyvägen 14/16.

Föreningens ekonomi

Kommande avgiftsförändringar: Föreningen har inga planerade avgiftsförändringar i dagsläget. (Enligt styrelsen 2025-09-18)

Kommunikationer

Alla vägar bär till Lyckeby. Det går lätt och snabbt att ta sig in till centrala Stockholm med kollektiva färdmedel ifrån Lyckeby.
I rusningstrafik går bussarna ofta med mindre än 5 minuters intervall och det tar ca 30 min till Gullmarsplan med buss 806, 807 och 808. Med buss 818C tar det ca 40 min till Vattugatan (Stockholm City).

Närmaste busshållplatser är Djurgårdsvägen och Skomakarvägen.
Närmaste pendeltågsstationer är Vega (4 km) och Handen (5 km).

Ekonomi

Utgångspris

5 995 000 kr

Överlåtelseavgift

Överlåtelseavgift: 1 470 kr
Överlåtelseavgift betalas av: köpare

Månadsavgift

5 098 kr
Det är enbart föreningens lån som ingår i avgiften. Övriga abonnemang tecknas separat av respektive medlem.

Driftkostnader

3 531 kr/månad
Årlig elförbrukning: 10567 kWh/år
Antal i hushållet: 4

Fördelas enligt följande

El: 1 890 kr
Försäkring: 369 kr
Sophämntning: 272 kr (obligatorisk)
Vatten & avlopp: 1 000 kr (obligatorisk)

Observera att driftskostnaderna som anges ovan baseras på säljarens faktiska kostnader det senaste året om inget annat särskilt anges.
Vilka driftskostnader köparen kommer att ha beror på hur bostaden kommer att användas, vilka abonnemang som kommer att tecknas och övriga omständigheter i det enskilda fallet.

Avgiftsförändringar

Föreningen har inga planerade avgiftsförändringar i dagsläget. (Enligt styrelsen 2025-09-18)

Pantsättning

Lägenheten är inte pantsatt

Energideklaration

Status: Energideklaration är utförd
Energiprestanda: 110 kWh/kvm/år
Energiklass: DD
Specifik energianvändning: 69 kWh/kvm/år
Energideklaration utförd: 2020-03-22
Besiktningsman: NIsse Nielsen, Eminenta
Beskrivning: Giltig tom 2030-03-22

Försäkring

Svensk Fastighetsförmedling samarbetar med If för att underlätta ditt bostadsköp. När du köper bostad eller fritidshus genom Svensk Fastighetsförmedling är den automatiskt försäkrad. Vi kallar det Flytta in-försäkring. Den är kostnadsfri och gäller under de första 30 dagarna. Fortsätter du sedan att försäkra hemmet eller fritidshuset hos If får du 10% rabatt och flera andra unika förmåner. Fråga din mäklare för att ta del av erbjudandet.

Alla bilder

+ 51 Visa alla 57 bilder
 

Planritning

Karta och område

Lyckebyvägen 17, Vendelsö

Kalkyl

Vad kostar nya boendet?

Fler värden

Här nedanför kan du ändra ränta, amortering och driftkostnader och se hur de påverkar kalkylen.

Återställ alla värden
Visa fler

Ränta

Amortering

Driftkostnad per månad

Driftkostnad/månad

Observera att driftskostnaderna som anges ovan baseras på säljarens faktiska kostnader det senaste året om inget annat särskilt anges.

Vilka driftskostnader köparen kommer att ha beror på hur bostaden kommer att användas, vilka abonnemang som kommer att tecknas och övriga omständigheter i det enskilda fallet.

Boendekostnad per månad

Ränta
+  kr
Driftkostnad
+  kr
Månadsavgift
+ 5098 kr
Skattereduktion
 kr
Summa
ca  kr
Amortering
+  kr
Inkl amortering
ca  kr

Ansök om lånelöfte

Hos vårt systerbolag Ordna Bolån kan du enkelt ansöka om lånelöfte eller bolån. En ansökan, svar från flera banker.

Intresseformulär

Fyll i formuläret så kontaktar vi dig inom kort.

Kontaktuppgifter
Vänligen ange förnamn
Vänligen ange efternamn
Vänligen ange telefonnummer
Vänligen ange e-post
500 tecken kvar
Har du lånelöfte?*
Vill du ha hjälp med lånelöfte?
Vill du få nyheter och erbjudanden?

Oj, något gick fel! Försök igen. 

Ett ögonblick!
Tack, dina uppgifter är sparade!
Du fyllde inte i någon e-postadress. Ange den nedan för att inte missa någon information.
 
 
 
Ta del av vår integritetspolicy
 
 
 

Liknande bostäder till salu

Lyckebyn, Haninge
Lyckebyvägen 17
Dela bostad: Dela på Facebook Dela med epost Dela med sms Kopiera länk Länken kopierad

Planritning