Hoppa till innehåll
Vega

Vega Allé 98

Magisk 3a i mycket fint skick och uteplats med skyddat läge

  • Typ: Bostadsrättslägenhet
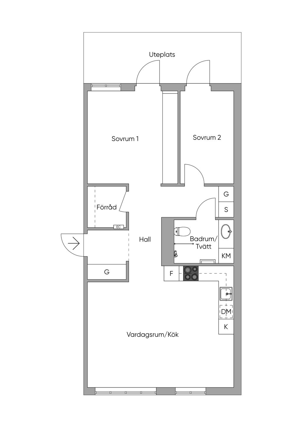
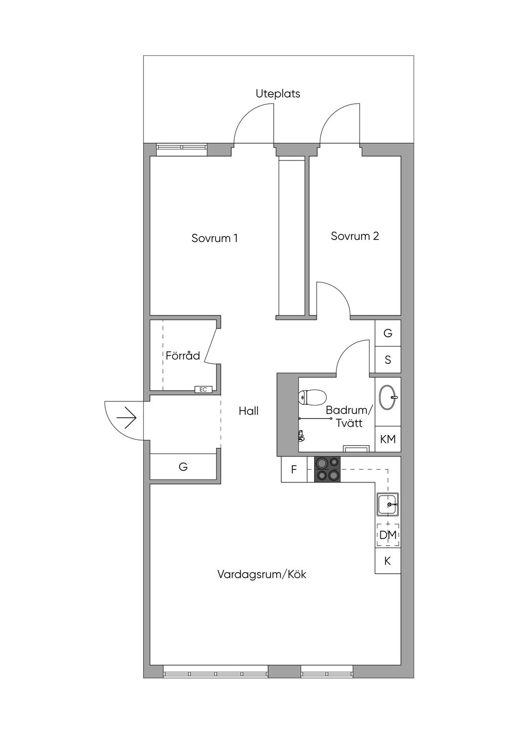
  • Rum: 3, varav 2 sovrum
  • Boarea: 69 m2
  • Lägenhetsnummer: 31005
  • Byggnadsår: 2019
  • Månadsavgift: 4 627 kr
  • Driftkostnad: 479 kr/månad
  • Upplåtelseform: Bostadsrätt
  • Hiss: Ja

Med bostadens fantastiska läge, generös takhöjd och stor uteplats ger denna lägenhet ett hem där du kan trivas länge. Takhöjden gör lägenheten unik av sitt slag och erbjuder en luftig känsla. Genomgående finns design, fina materialval och ljusa golv för att skapa ett hem utöver det vanliga. Uteplatsens generösa storlek ger plats åt fina utemöbler, solstolar, planteringar, pergola och trevligt sällskap. Här kan du verkligen njuta av att vara ute hela dagen. Vill man njuta ännu mer av solen tar man hissen upp till föreningens takterrass. Invändigt finner du en social planlösning mellan det exklusiva köket och vardagsrummet. Köket från Marbodal går i en sober kulör som matchas med exklusiv stenskiva. Master bedroom är av den större modellen med plats för säng och förvaring. Den platsbyggda förvaringen ger både rummet karaktär och praktiskt förvaring. Bostadens andra sovrum är även det av rätt storlek för säng och leksaker eller kontor. Förråd ligger i anslutning till hallen och kan disponeras som walk in closet. Badrum i toppskick med fina materialval och tvättmöjligheter.

Säljarens ord
En unik bostad med högt i tak, moderna färgval och ljusinsläpp genom hela lägenheten. Mysig och användbar uteplats som ligger avskilt från allmänheten utöver boende i föreningen. En otrolig styrelse som är väldigt engagerade, noga med att informera oss boende och bidrar till en trygg och hemtrevlig förening. Bostaden ligger väldigt centralt i Vega med nära gångavstånd till allt. Gör det även lättare för oss att hitta parkering nära vår bostad då vi ligger lite i mitten av allting och kan parkera på flera olika ställen men ändå ha nära till bostaden. Tillgång till en härlig takterrass där vi haft trevliga stunder med familj och vänner. Terrassen är utrustad med nyinköpta möbler, grill och har sol hela dagen och kvällen. Något vi även har uppskattat med lägenheten är att den är väldigt öppen och ger en stor social yta runt kök och vardagsrum.

Här bor du ett stenkast från Vega pendeltågsstation som tar dig till Stockholm city på ca 23 min. På andra sidan gatan finns förskola och skola, vilket gör det lätt att lämna barnen på vägen till jobbet. Bekvämt ligger ICA längre ner på gatan. I Vega finns det flera restauranger, gym, mataffärer och mer planeras. Behöver man handla är det inte långt till Port 73, Länna köpcentrum eller Haninge centrum. Området erbjuder även flera fina grönområden där du kan ta avkopplande promenader eller motionera. Vill man bada de heta sommardagarna finns Rudasjön och Drevviken i närheten.

Vänligen kontakta ansvarig mäklare Jimmy Rossetti för mer info och privat visning 0701088071

Om Bostaden

Beskrivning

HALL
Välkomnande och ljus hall. Redan här möts man av en högstandard och fina materialval. Gott om utrymme för att hänga av kläder och skor.

BADRUM
Rymligt familjebadrum med snygg design som möter dagens standard. Här finns dusch, wc och handfat samt tvätt- och torkmöjligheter.

FÖRRÅD
Lägenhetens förråd finns i lägenheten. Går även att inredas till en lyxig walk in closet eller kontor.

KÖK I ÖPPEN PLANLÖSNING
Modernt kök med öppen och social planlösningen. Trendig kulör på luckor och full maskinell utrustning som möter dagens standard. Här möts funktionalitet med snygga materialval. Den öppna planlösningen gör att man har en social kontakt med både familjen och vid festliga tillställningar. Det finns även en given plats vid fönstret där ett större matsalsbord får plats.

VARDAGSRUM
Rymligt vardagsrum med perfekta ytor, där familjens vardag och festliga tillställningar kan samlas. Gott om plats för ett större möblemang om så önskas.

MASTER BEDROOM
Rymligt rum med fin känsla. Rummet har rätt storlek för att få plats med säng och förvaring. Platsbyggd bokhylla ger rummet karaktär och förvaring. Utgång till den underbara uteplatsen.

UTEPLATS
Härlig plats med generös storlek för att få plats med fina utemöbler och planteringar. Här har du generöst med sol och ett fritt läge.

SOVRUM
Rum i bra storlek för att använda efter behov. Här får säng samt förvaring plats om så önskas. Perfekt som barnrum som kan fyllas med massa leksaker eller som i dagsläget kontor. Även här utgång till uteplatsen

Sammanfattning

Typ: Bostadsrättslägenhet
Rum: 3, varav 2 sovrum
Boarea: 69 m2
Lägenhetsnummer: 31005
Utgångspris: 3 100 000 kr
Byggnadsår: 2019
Driftkostnad: 479 kr/månad
Upplåtelseform: Bostadsrätt
Hiss: Ja

Kommentar till boarean

Boareauppgift enligt: Säljaren och bostadsrättsföreningen

Byggnadssätt

Kommentar: Balkonginglasning: Styrelsen har valt en leverantör för Brf Slänten med en snygg design som passar till Brf Släntens arkitektur. Vi har naturligtvis också tittat på frågor om pris, kvalitet, avbetalningsmöjligheter, leveranstid, tillvalsmöjligheter & garantier m m. Leverantör Lumon.
Inglasning balkonger är möjligt på de lägenheter som inte har det, bygglov finns, Lumon har ensamrätt. Egen bekostnad. Markplanslägenheter kan EJ inglasas.

Tv/Internetanslutning

Föreningen har gruppavtal med Bahnhof för bredband. Hastighet 1000/1000, det tillkommer en kostnad om 80 kr/mån.

Värme- och ventilationsanläggning

Fjärrvärme och el (direktverkande).
Ventilation: FTX.
Lägenheten har ett eget ventilationssystem, (SmartCasa) som ger god luftkvalitet.

Allmänt

Län: Stockholm
Kommun: Haninge

Omgivning

Brf Slänten ligger intill den livfulla huvudgatan i Vegastaden, en helt ny och modern stadsdel i hjärtat av Haninge.

Vega är en stadsdel med närhet till natur, skogar och vatten. Ett stenkast bort ligger Rudan naturreservat med motionsspår, bad och fiske. Vintertid anläggs skidspår. Norrut kan du bada i Drevviken och på cykelavstånd ligger Tyresta nationalpark med hela fem mil fina vandringsleder, några lämpliga för hela familjen med picknick- och grillplatser längs vägen. Söderut når du Haninges fantastiska skärgård. Från Dalarö och Årsta havsbad kan du ta båt ut till bland annat Utö som är en av skärgårdens mest välbesökta ö.

Stadsdelen växer fram med fart. Med pendeltåg, bil och buss tar du dig lätt till och från Vega. Från den nya pendeltågsstationen som blev klar 2019 tar du dig till storstadspulsen. För dig som ska till Handen, Skogås eller Farsta finns bra busskommunikationer. Den nya av- och påfarten till motorvägen kommer att förenkla för dig som behöver använda bil.

Det är enkelt att leva i Vegastaden. Här planeras flera nya förskolor, en helt ny grundskola, och Vegaborna har tillgång till ett stort utbud av butiker och service i sitt närområde. Handelsplats, köpcentrum och livsmedelsbutik ligger på gångavstånd, och på cykelavstånd ligger Haninge Centrum med ett brett utbud av butiker, caféer och restauranger.

I Vegastaden lever hela familjen hållbart och klimatsmart, då slutmålet är ett lågenergisamhälle med många cykelvägar, laddningsstationer och smarta återvinningssystem. Självklart kommer området vara grönt även till färgen, med dignande fruktträd, bärbuskar och sedumodlingar på taken. Läs mer på www.vegastan.se

Andel i föreningen

Andel i föreningen: 1,226%
Andel av månadsavgift: 0,012292

Pantsättningsavgift

588 kr

Bostadsrättens indirekta nettoskuldsättning

715 179 kr
Bostadsrättens indirekta nettoskuldsättning anger hur stor andel av bostadsrättsföreningens lån som indirekt belastar bostadsrätten. Det underlag som ligger till grund för beräkning av uppgiften har inhämtats från bostadsrättsföreningen, dels från årsredovisning dels från utdrag ur bostadsrättsföreningens lägenhetsregister. Observera att föreningens skuldsättningsgrad kan ha förändrats sedan årsredovisningen som ligger till grund för beräkningen upprättades.

Om föreningen

Brf Slänten vann Haninge arkitekturpris 2020: Med Brf Slänten har Vega fått ett uttrycksfullt kvarter som välkomnar besökarna till den nya stadsdelen. Kvarteret ”skapar ett tydligt stadslandskap mot Vega Allé samtidigt som det fint möter naturen och slänten”. SPG har tillsammans med BSK Arkitekter skapat ett kvarter som både refererar till arkitekturhistorien och stenstaden men också med samtiden och ett framväxande Vega – mellan stad och natur, säger Andreas Paulson, stadsarkitekt Haninge Kommun, om årets vinnare.

Brf Slänten följer Vegastadens huvudgata, från torget vid pendeltågsstationen till parken vid skolan. Husets skala, höjd och detaljer knyter an till det tidiga nittonhundratalets stadsbebyggelse. De fyra entréerna vänder sig mot gatan och de markerade trapphusen ger fasaden dess rytm.

Föreningen Brf Slänten 1 har 103 Bostadsrätter om 1-4 rok i storlekarna 31-107 kvm. Hiss finns. 5-6 våningar.

Brf Slänten har ett krav om minimum ägarandel om 20%.
Brf Slänten godkänner inte juridiska personer som ägare (medlemmar).
Krav på hemförsäkring med bostadsrättstillägg samtliga boende/ägare/medlemmar i föreningen.

Se mer info på föreningens hemsida: www.brfslanten.se

Renoveringsbeskrivning

Kommande renoveringar i föreningen:
OVK-besiktning & rengöring samtliga ventilationskanaler samt byte av filter kommer att genomföras i september 2025. Lagstadgat krav vart tredje år (FT/FTX). (Enligt föreningens hemsida 2025-05-13)

Gemensamma utrymmen

Föreningen har en gemensam Terrass på ca 80 kvm. (Port 100, 5 trappor). Terrassen kan bokas genom vårt bokningssystem för föreningen här på denna hemsidan. Det finns plats för ca 30 personer maximalt med sittplatser med dagens trivselarrangemang på plats. Terrassen är möblerad utomhus mellan ca början av april till ca mitten av oktober.

Cykel- & Barnvagnsförråd. Det finns ett gemensamt förråd i varje port avsett för t ex cykel, barnvagn, rullstol, pulka osv för föreningens medlemmar. Nås endast med husnyckel (Er nyckel når endast Er ports gemensamma förråd).

Brf Slänten har 2 soprum, ett strax söder om Port 98 och ett strax norr om Port 94. Nås med samma blipp som entréer & med Er husnyckel. Vänligen släng endast hushållsavfall och släng det i kärlen tack. Ställ ingenting på golvet! Båda soprummen har en sopskyffel, vattenslang & en vattenraka.

Parkering

Parkeringsgarage. Nordkapsvägen 3. Öppnat 3 maj 2021 (garageport närmast ICA Nära Vega ingång). 1 entré via dörr till vänster om garageport med hiss eller trappa ned en våning, öppnas med kod. För utfart vit knapp vänster stolpe innan uppfart öppnar garageporten. Från den 1 juni 2023 så har Brf Slänten endast 10 platser (robotfria & plats 19-28). Boende i Brf Slänten kan kontakta Savills för att hyra plats från juni 2023 och teckna eget avtal med dem (gäller deras samtliga 3 garage). Vid infart: maxhöjd 2,1 meter & maxvikt 3 ton. Securitas bevakning.

De som har platser mellan 1-18 & 29-44 har 2 blippar för parkeringsroboten. Glöm ej att blippa varje gång för att ta fram/ställa tillbaka bilen, annars hänger sig systemet. Entrédörr/garageport/ingång garage från porthus öppnas med Portkod. Elstolpar/laddstation för elbil finns ej. Kallgarage. Observera att det inte är föreningens garage utan de hyr endast in sig på det.

Kostnad/avgift om 1.275 kr/månad (gäller samtliga 3 garage som Savills förfogar över). 3 månaders uppsägningstid avtal.
(Enligt styrelsens hemsida 2025-05-13)

Föreningens ekonomi

Kommande avgiftsförändringar: Föreningen kommer att höja avgiften med 4% från och med 2026. (Enligt hemsidan 2025-11-10)

Ekonomi

Utgångspris

3 100 000 kr

Överlåtelseavgift

Överlåtelseavgift: 1 470 kr
Överlåtelseavgift betalas av: köpare

Månadsavgift

4 627 kr
I månadsavgiften ingår uppvärmning, kallvatten och varmvatten.
Föreningen har ett gemensamt avtal med Vattenfall för samtliga boende & allmänna utrymmen som är bundet pris från 1 oktober 2024-30 september 2027. Priset är från 2024-10-01 till 2027-09-30: 2,30 kr per kWh (inklusive avgifter & moms). Hushållsel debiteras månadsvis (IMD).

Avgift filter: 50 kr/månad. Avgift bredband: 80 kr/månad. Avgift SRV sophantering: 200 kr/månad. Detta tillkommer månadsavgiften.

Driftkostnader

479 kr/månad
Årlig elförbrukning: 3584 kWh/år
Antal i hushållet: 2

Fördelas enligt följande

Försäkring: 149 kr
Avgift Bredband 1000/1000 Bahnhof: 80 kr (obligatorisk)
Avgift filter: 50 kr (obligatorisk)
Avgift SRV sophantering: 200 kr (obligatorisk)

Observera att driftskostnaderna som anges ovan baseras på säljarens faktiska kostnader det senaste året om inget annat särskilt anges.
Vilka driftskostnader köparen kommer att ha beror på hur bostaden kommer att användas, vilka abonnemang som kommer att tecknas och övriga omständigheter i det enskilda fallet.

Avgiftsförändringar

Föreningen kommer att höja avgiften med 4% från och med 2026. (Enligt hemsidan 2025-11-10)

Pantsättning

Lägenheten är pantsatt

Energideklaration

Status: Energideklaration är utförd
Energiprestanda: 109 kWh/kvm/år
Energiklass: EE
Specifik energianvändning: 105 kWh/kvm/år
Energideklaration utförd: 2021-09-08
Besiktningsman: Anders Lindkvist, Inspecta Sweden AB
Beskrivning: Energideklarationen är giltig till: 2031-09-08

Försäkring

Svensk Fastighetsförmedling samarbetar med If för att underlätta ditt bostadsköp. När du köper bostad eller fritidshus genom Svensk Fastighetsförmedling är den automatiskt försäkrad. Vi kallar det Flytta in-försäkring. Den är kostnadsfri och gäller under de första 30 dagarna. Fortsätter du sedan att försäkra hemmet eller fritidshuset hos If får du 10% rabatt och flera andra unika förmåner. Fråga din mäklare för att ta del av erbjudandet.

Alla bilder

+ 32 Visa alla 38 bilder
 

Planritning

Karta och område

Vega Allé 98, Vega

Kalkyl

Vad kostar nya boendet?

Fler värden

Här nedanför kan du ändra ränta, amortering och driftkostnader och se hur de påverkar kalkylen.

Återställ alla värden
Visa fler

Ränta

Amortering

Driftkostnad per månad

Driftkostnad/månad

Observera att driftskostnaderna som anges ovan baseras på säljarens faktiska kostnader det senaste året om inget annat särskilt anges.

Vilka driftskostnader köparen kommer att ha beror på hur bostaden kommer att användas, vilka abonnemang som kommer att tecknas och övriga omständigheter i det enskilda fallet.

Boendekostnad per månad

Ränta
+  kr
Driftkostnad
+  kr
Månadsavgift
+ 4627 kr
Skattereduktion
 kr
Summa
ca  kr
Amortering
+  kr
Inkl amortering
ca  kr

Ansök om lånelöfte

Hos vårt systerbolag Ordna Bolån kan du enkelt ansöka om lånelöfte eller bolån. En ansökan, svar från flera banker.

Visningsanmälan

Fyll i formuläret så kontaktar vi dig inom kort.

Välj mellan nedan alternativ
Söndag 3 maj
Anmälan krävs

Vega Allé 98, 136 57 Vega
Välkommen på visning - Anmäl dig gärna
Söndag 10 maj
Anmälan krävs

Vega Allé 98, 136 57 Vega
Välkommen på visning - Anmäl dig gärna
Jag vill veta mer om bostaden

Kontaktuppgifter
Vänligen ange förnamn
Vänligen ange efternamn
Vänligen ange telefonnummer
Vänligen ange e-post
500 tecken kvar
Har du lånelöfte?*
Vill du ha hjälp med lånelöfte?
Vill du få nyheter och erbjudanden?

Oj, något gick fel! Försök igen. 

Ett ögonblick!
Tack, dina uppgifter är sparade!
Du fyllde inte i någon e-postadress. Ange den nedan för att inte missa någon information.
 
 
 
Ta del av vår integritetspolicy
 
 
 

Liknande bostäder till salu

Haninge
Vega Allé 98
Dela bostad: Dela på Facebook Dela med epost Dela med sms Kopiera länk Länken kopierad

Planritning