Hoppa till innehåll
Oxie

Stensåkervägen 338

Ljust och välplanerat brf radhus i två plan med stor altan i insynsskyddat läge!

  • Typ: Radhus
  • Rum: 4, varav 3 sovrum
  • Boarea: 116 m2
  • Lägenhetsnummer: 1
  • Byggnadsår: 1976
  • Månadsavgift: 5 930 kr
  • Driftkostnad: 2 100 kr/månad
  • Upplåtelseform: Bostadsrätt

Välkommen till Stensåkervägen 338 – ett trivsamt och välplanerat radhus om 116 kvm fördelat på två plan. Här erbjuds ett funktionellt och familjevänligt boende med generösa sällskapsytor, tre sovrum, två badrum samt en stor altan i ett trevligt och insynsskyddat läge.

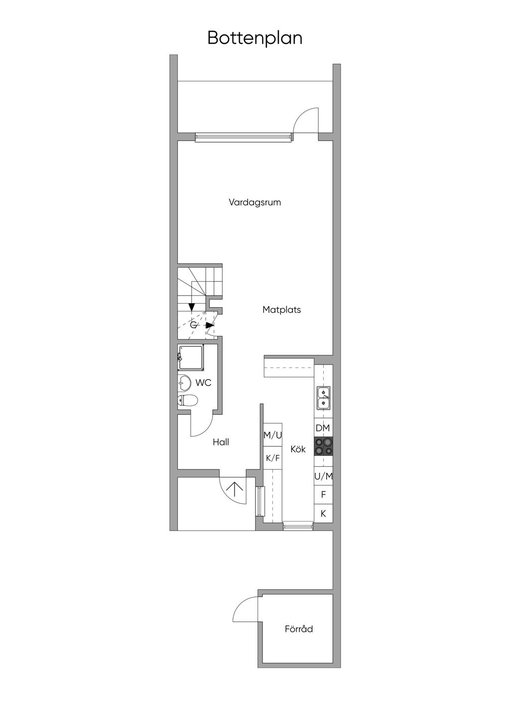
Entréplanet präglas av ljusa ytskikt och en social planlösning där kök, matplats och vardagsrum samspelar på ett naturligt sätt. Det stilrena köket erbjuder gott om förvaring och arbetsytor samt är utrustat med moderna vitvaror. Intill köket finns en rymlig matplats med plats för större matbord, perfekt för både vardagsmiddagar och sociala tillställningar. Vardagsrummet är generöst tilltaget och har stora fönsterpartier som ger ett härligt ljusinsläpp samt direkt utgång till bostadens stora altan. Här finns gott om plats för både soffgrupp och socialt umgänge. På entréplanet finns även en praktisk hall med goda förvaringsmöjligheter samt en gästtoalett.

Altanen fungerar som en naturlig förlängning av vardagsrummet under årets varmare månader och erbjuder gott om plats för både matgrupp, loungemöbler och odlingar. Den omgärdas av staket vilket skapar en privat och trivsam utemiljö. Altanen har ett västerläge med härlig eftermiddags- och kvällssol.

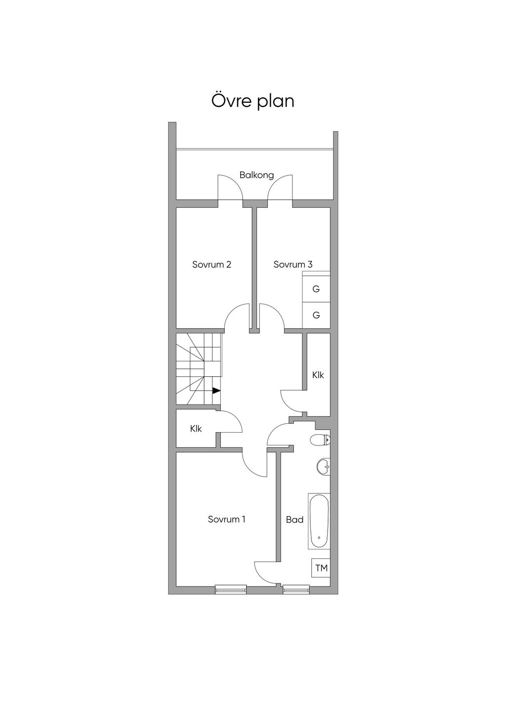
På övre plan finns bostadens mer privata del med tre sovrum i bra storlek samt ett rymligt badrum. Här finns även praktiska lösningar för tvätt med både tvättmaskin och torktumlare. Flera av sovrummen har fint ljusinsläpp och goda möbleringsmöjligheter, vilket gör att de passar lika bra som barnrum, gästrum eller hemmakontor.

Bostaden erbjuder en genomtänkt planlösning med bra förvaring, ljusa materialval och generösa ytor för både vardagsliv och sociala sammanhang. Tillhörande förråd finns på framsidan där det finns gott om plats för förvaring. Till bostaden hör även ett garage med installerad laddstolpe för elbil. På husets tak finns solceller som bidrar till en mer energieffektiv och hållbar drift. Här bor du i ett lugnt och familjevänligt område med närhet till natur, skolor, service och goda kommunikationer.

Ett hem som kombinerar funktionalitet, trivsam utemiljö och gott om plats för hela familjen.

Om Bostaden

Sammanfattning

Typ: Radhus
Rum: 4, varav 3 sovrum
Boarea: 116 m2
Lägenhetsnummer: 1
Utgångspris: 2 550 000 kr
Byggnadsår: 1976
Driftkostnad: 2 100 kr/månad
Upplåtelseform: Bostadsrätt

Kommentar till boarean

Boareauppgift enligt: Bostadsrättsföreningen

Allmänt

Län: Skåne
Kommun: Malmö

Andel i föreningen

Andel i föreningen: 0.8972

Pantsättningsavgift

592 kr

Bostadsrättens indirekta nettoskuldsättning

223 916 kr
Bostadsrättens indirekta nettoskuldsättning anger hur stor andel av bostadsrättsföreningens lån som indirekt belastar bostadsrätten. Det underlag som ligger till grund för beräkning av uppgiften har inhämtats från bostadsrättsföreningen, dels från årsredovisning dels från utdrag ur bostadsrättsföreningens lägenhetsregister. Observera att föreningens skuldsättningsgrad kan ha förändrats sedan årsredovisningen som ligger till grund för beräkningen upprättades.

Om föreningen

Bostadsrättsföreningen HSB Brf Oxiegården bildades 1976 på fastigheterna Oxie 54:9 och är en äkta förening. I föreningen finns 123 st lägenheter fördelat på 19 st tvåor, 19 st treor och 85 st fyror. Föreningens ekonomiska förvaltare är HSB.
Husen byggdes 1976 och marken innehas med tomträtt. Tomträttsavtalet omförhandlades 2017-01-01.

Fastigheten är fullvärdesförsäkrad hos Länsförsäkringar/Willis. I föreningens fastighetsförsäkring ingår bostadsrättstillägg för föreningens lägenheter.
Solpaneler: Anläggningen ägs av föreningen. Varje lägenhet förfogar över en egen del av anläggningen och styr med eget avtal förbrukning osv. Varje lägenhet har egen mätare och eget avtal för värme och el.
Vid överlåtelse ska ett särskilt avtal om nyttjanderätt av "tomten" skrivas på av köparen. Detta är ett avtal som reglerar eventuella konstruktioner som den boende gör på "tomten" då denna inte är upplåten som bostadsrätt.

I föreningen finns lekplatser och festlokal som föreningens medlemmar kan nyttja kostnadsfritt. Detsamma gäller även föreningens multisportarena, boulebana samt bokbytarskåp. Föreningen har även trädgårdsredskap såsom gräsklippare och häcksax som föreningens medlemmar är fria att nyttja vilket är en stor fördel.

Gjorda renoveringar:
2023/2024 - Fasadmålning
2023 - Laddplatser vid alla p-platser i garage
2023 - Spolning och kontroll av samtliga fastigheters stamledningar har genomförsts.
2022 -Renoverat garagetrösklar (steg 3 av 3)
2021 - Installerat kameraövervakning av miljöstationerna.
2021 - Installerat solpaneler.
2020 - Elbil laddstation tagits i bruk.
2019 - Renoverat multisportarenan, bytt ut mjukfogar mellan betongelement på altaner och balkonger samt uppfört ett nytt förråd för fastighetsskötaren där det sedan innan fanns en spolplatta.
2018 - Renoverat lägenhetsförråden.
2017 - Monterat plåtfasad på garage.
2016 - Bytt takpapp och stuprännor, bytt all ytterbelysning, bytt kantsten i rabatter.
2014 - Nytt digital-TV system.
2013 - Ny plåtbeklädnad på fasad och nya frontplåtar på balkongerna.
2012 - Anläggning av P-platser, flytt av basketplan, samt anläggande av två boulebanor.
2011 - Ommålning av fasad och betongytor.
2010 - Ombyggnad av sopsorteringsstationer.
2009 - Utbyte av fönster.

Kommande renoveringar:
Kommande renoveringar omfattar asfaltering av markytor vid garage, renovering av fasad på garage samt inköp av ny traktor.

Avgiftsförändringar:
Föreningen höjde avgiften med 3% 2025-01-01
Föreningen har beslutat att höja avgiften med 6% from 2026-01-01

Övrig information
Övrig avgift om 500 kr i medlemsavgift betalas in till HSB Malmö i anslutning med medlemskapsansökan, som återbetalas vid utträde. Därefter årlig medlemsavgift 300 kr/hushåll och år.

Föreningen godkänner delat ägande, den boende måste äga minst 10%.

Föreningen tillämpar tillsyn vid överlåtelse där både säljare och köpare ska närvara. Vicevärden kontaktar köpare och säljare för tidsbokning.


Ovanstående uppgifter är inhämtade från berörd förening 2025-08-29. Den slutliga köparen uppmanas att kontrollera dessa uppgifter med föreningen samt uppgifter om kommande renoveringar och eventuella avgiftsförändringar. Årsredovisningen, stadgar och energideklaration finns att hämta på vår hemsida, www.svenskfast.se

Parkering

Bilplats 1: 20 st p-platser . Avgift 100 kr/mån, har separat kö.
1 st garageplats tillhör varje bostadsrätt.

Ekonomi

Utgångspris

2 550 000 kr

Överlåtelseavgift

Överlåtelseavgift: 1 480 kr
Överlåtelseavgift betalas av: köpare

Månadsavgift

5 930 kr
I avgiften ingår vatten, kallvatten, internet/TV, garage, parkeringsplats och bostadsrättstillägg

Driftkostnader

2 100 kr/månad
Årlig elförbrukning: 5500 kWh/år
Antal i hushållet: 3
Kommentar: I el-avgiften ingår uppvärmning.

Fördelas enligt följande

El: 1 600 kr
Försäkring: 500 kr

Observera att driftskostnaderna som anges ovan baseras på säljarens faktiska kostnader det senaste året om inget annat särskilt anges.
Vilka driftskostnader köparen kommer att ha beror på hur bostaden kommer att användas, vilka abonnemang som kommer att tecknas och övriga omständigheter i det enskilda fallet.

Pantsättning

Uppgift om pantsättning saknas

Energideklaration

Status: Energideklaration är utförd
Energiprestanda: 155 kWh/kvm/år
Energiklass: FF
Specifik energianvändning: 74 kWh/kvm/år
Energideklaration utförd: 2020-10-16
Besiktningsman: Torkel Rosenberg

Försäkring

Svensk Fastighetsförmedling samarbetar med If för att underlätta ditt bostadsköp. När du köper bostad eller fritidshus genom Svensk Fastighetsförmedling är den automatiskt försäkrad. Vi kallar det Flytta in-försäkring. Den är kostnadsfri och gäller under de första 30 dagarna. Fortsätter du sedan att försäkra hemmet eller fritidshuset hos If får du 10% rabatt och flera andra unika förmåner. Fråga din mäklare för att ta del av erbjudandet.

Alla bilder

+ 19 Visa alla 25 bilder
 

Karta och område

Stensåkervägen 338, Oxie

Kalkyl

Vad kostar nya boendet?

Fler värden

Här nedanför kan du ändra ränta, amortering och driftkostnader och se hur de påverkar kalkylen.

Återställ alla värden
Visa fler

Ränta

Amortering

Driftkostnad per månad

Driftkostnad/månad

Observera att driftskostnaderna som anges ovan baseras på säljarens faktiska kostnader det senaste året om inget annat särskilt anges.

Vilka driftskostnader köparen kommer att ha beror på hur bostaden kommer att användas, vilka abonnemang som kommer att tecknas och övriga omständigheter i det enskilda fallet.

Boendekostnad per månad

Ränta
+  kr
Driftkostnad
+  kr
Månadsavgift
+ 5930 kr
Skattereduktion
 kr
Summa
ca  kr
Amortering
+  kr
Inkl amortering
ca  kr

Ansök om lånelöfte

Hos vårt systerbolag Ordna Bolån kan du enkelt ansöka om lånelöfte eller bolån. En ansökan, svar från flera banker.

Visningsanmälan

Fyll i formuläret så kontaktar vi dig inom kort.

Välj mellan nedan alternativ
Torsdag 23 april
Anmälan krävs

Stensåkervägen 338, 238 33 Oxie
Söndag 26 april
Anmälan krävs

Stensåkervägen 338, 238 33 Oxie
Jag vill veta mer om bostaden

Kontaktuppgifter
Vänligen ange förnamn
Vänligen ange efternamn
Vänligen ange telefonnummer
Vänligen ange e-post
500 tecken kvar
Har du lånelöfte?*
Vill du ha hjälp med lånelöfte?
Vill du få nyheter och erbjudanden?

Oj, något gick fel! Försök igen. 

Ett ögonblick!
Tack, dina uppgifter är sparade!
Du fyllde inte i någon e-postadress. Ange den nedan för att inte missa någon information.
 
 
 
Ta del av vår integritetspolicy
 
 
 

Liknande bostäder till salu

Malmö
Stensåkervägen 338
Dela bostad: Dela på Facebook Dela med epost Dela med sms Kopiera länk Länken kopierad

Planritning