Hoppa till innehåll
 
Budgivning pågår
Utgångspris: 
2 495 000 kr
Månadsavgift: 7 882 kr/månad
Svärtinge

Blåsippsvägen 29B

Budgivning pågår
Utgångspris: 
2 495 000 kr
Månadsavgift: 7 882 kr/månad

Stilrent parhus i två plan med takterrass, carport och sjöutsikt!

  • Typ: Parhus
  • Rum: 5, varav 4 sovrum
  • Boarea: 105 m2
  • Lägenhetsnummer: 127
  • Byggnadsår: 2022
  • Månadsavgift: 7 882 kr
  • Driftkostnad: 443 kr/månad
  • Upplåtelseform: Bostadsrätt
  • Våning: 1 & 2
  • Hiss: Nej

Välkommen till Blåsippsvägen 29B, ett stilrent och modernt bostadsrättsparhus i två plan, uppfört 2022, beläget i omtyckta Svärtinge Skogsbacke med rogivande utsikt över Glan.
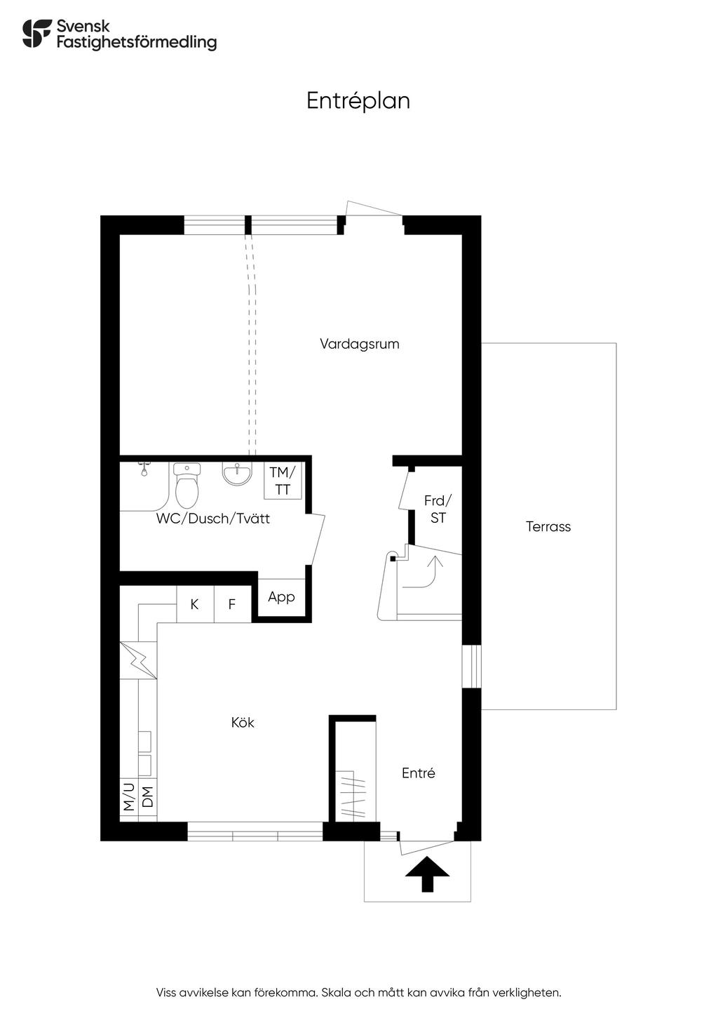
Entréplanet präglas av ljus och rymd med kök och vardagsrum som två separata, välplanerade rum. Det stilrena köket är fullt utrustat och erbjuder gott om arbetsytor och förvaring, medan vardagsrummet bjuder in till umgänge och avkoppling. De stora fönsterpartierna ger ett generöst ljusinsläpp och låter utsikten bli en naturlig del av interiören. Härifrån nås även uteplatsen på baksidan, en skyddad plats för middagar och sköna stunder utomhus. På entréplanet finns dessutom ett helkaklat badrum i modern design.
En trappa upp möts du av ett allrum som fungerar utmärkt som TV-rum, lekhörna eller arbetsplats. Här finns tre trivsamma sovrum samt ytterligare ett helkaklat badrum i samma stilrena utförande. Från allrummet nås den generösa takterrassen ovanför carporten, en fantastisk plats att njuta av sol, utsikt och långa sommarkvällar.
Bostaden erbjuder uteplats både på fram- och baksida, vilket ger möjlighet att följa solen under dagen. Till huset hör carport med praktiskt förråd samt extra parkeringsmöjlighet på uppfarten. Välkommen på visning!

Om Bostaden

Beskrivning

- Entréplan

Hall
Välkomnande och ljus hall med vitmålade väggar och praktiskt grått klinkergolv innanför entrén som övergår i varm parkett längre in i bostaden. Förvaringen är generös tack vare skjutdörrsgarderob längs ena sidan. Fönster både bredvid och ovanför ytterdörren ger ett härligt ljusinsläpp och bidrar till den luftiga känslan redan vid första steget in.

Kök
Stilrent och välplanerat kök med parkettgolv och vitmålade väggar som skapar en ljus och harmonisk helhet. De vita släta köksluckorna kombineras snyggt med vitt kakel ovanför en mörk laminatbänkskiva, vilket ger en modern och tidlös kontrast. Köket är fullt utrustat med spishäll, ugn, fläkt, inbyggd mikro, diskmaskin samt kyl och frys.

Duschrum
Stilrent och helkaklat duschrum med grått klinkergolv och vita kaklade väggar i tidlös design. Utrustat med wc, handfat i kommod samt duschhörna med glasväggar. Här finns även tvättmaskin och torktumlare praktiskt placerade i pelare med förvaringsskåp ovanför.

Vardagsrum
Ljust och inbjudande vardagsrum med parkettgolv och vitmålade väggar som skapar en harmonisk och tidlös känsla. De stora fönsterpartierna ger ett generöst ljusinsläpp och låter den rogivande utsikten bli en naturlig del av rummet. Här finns gott om plats för både soffgrupp och övrigt möblemang. Från vardagsrummet nås uteplatsen på baksidan, vilket ger fina möjligheter till umgänge under årets varmare månader.

- Övre plan

Allrum
Trivsamt och ljust allrum med parkettgolv och vitmålade väggar. Rummet lämpar sig utmärkt som TV-rum, lekhörna eller arbetsplats och blir en naturlig samlingspunkt på övre plan. Härifrån nås takterrassen ovanför carporten, en härlig plats att njuta av sol, utsikt och avkoppling under årets varmare månader.

Sovrummen
På övre plan finns tre rogivande sovrum, samtliga med parkettgolv och vitmålade väggar. Två av sovrummen bjuder på fin utsikt mot sjön Glan, vilket ger en extra dimension av lugn och trivsel. Ett av dessa rum är utrustat med praktisk skjutdörrsgarderob, medan de övriga två sovrummen har en respektive två garderober. Samtliga rum erbjuder goda möjligheter till flexibel möblering efter behov, perfekt för familj, gäster eller hemmakontor.

Badrum
Stilrent och helkaklat badrum i ljus och tidlös färgsättning med grått klinkergolv och vita kaklade väggar. Badrummet är utrustat med badkar, wc, handfat i kommod samt spegelskåp.

Sammanfattning

Typ: Parhus
Rum: 5, varav 4 sovrum
Boarea: 105 m2
Lägenhetsnummer: 127
Utgångspris: 2 495 000 kr
Byggnadsår: 2022
Driftkostnad: 443 kr/månad
Upplåtelseform: Bostadsrätt
Våning: 1 & 2
Hiss: Nej

Kommentar till boarean

Boareauppgift enligt: Bostadsrättsföreningen

Byggnadssätt

Kommentar: Parhus

Tomt/balkong/uteplats

Terrass: Stenbelagd uteplats på framsidan, trädäck på baksidan samt generös takterrass ovanför carporten.

Tv/Internetanslutning

Fiber är installerat i samtliga bostäder med multimediacentral och spridningsnät. Föreningen har ett kollektivt avtal med Telia som levererar Triple Play med bredband 100/100 och TV Lagom till samtliga hushåll. Kostnaden debiteras via ett obligatoriskt tillägg på månadsavin.

Värme- och ventilationsanläggning

Värmepump-frånluft (el)
Mekanisk frånluft med återvinning

Allmänt

Län: Östergötland
Kommun: Norrköping

Andel i föreningen

Andel i föreningen: 3,57143%
Andel av månadsavgift: 0,0357143

Andelskommentar

Andelstalen

Bostadsrättens indirekta nettoskuldsättning

1 311 364 kr
Nettoskuldsättningen är beräknad utifrån föreningens årsredovisning för 2024.
Bostadsrättens indirekta nettoskuldsättning anger hur stor andel av bostadsrättsföreningens lån som indirekt belastar bostadsrätten. Det underlag som ligger till grund för beräkning av uppgiften har inhämtats från bostadsrättsföreningen, dels från årsredovisning dels från utdrag ur bostadsrättsföreningens lägenhetsregister. Observera att föreningens skuldsättningsgrad kan ha förändrats sedan årsredovisningen som ligger till grund för beräkningen upprättades.

Om föreningen

Föreningen äger och förvaltar fastigheten Östra Eneby 1:226 i Norrköpings kommun och innehar marken med äganderätt.
På fastigheten finns 28 bostäder i form av radhus och parhus, fördelade på elva huskroppar. Samtliga hus färdigställdes år 2022.

Renoveringsbeskrivning

Kommande renoveringar i föreningen:
Då fastigheten är nybyggd finns ingen planerad renovering med än 5 års besiktning 2027.

Gemensamma utrymmen

Till varje bostad hör ett kallförråd, detta finns i anslutning till bostaden.
Sophantering och källsortering sker i gemensamt miljöhus. Därutöver finns kärl för mat- och hushållsavfall utplacerade i området.

Parkering

Alla bostäder har minst en parkeringsplats. Utöver detta finns fyra gästparkeringar samt en handikappsparkeringsplats.

Föreningens ekonomi

Kommande avgiftsförändringar: Föreningen har inga beslutade avgiftsförändringar enligt kontakt med styrelsen 2026-02-06.

Övrigt

Ovanstående information är inhämtad från berörd förening 2026-02-06. Den slutgiltiga köparen ombeds att själv bekräfta ovanstående information med representant från föreningen.

Ekonomi

Utgångspris

2 495 000 kr

Månadsavgift

7 882 kr
I månadsavgiften ingår sophämtning, snöröjning, gemensam skötsel samt utvändigt underhåll.

Utöver grundavgiften tillkommer fasta obligatoriska tillägg för vatten samt TV och bredband, vilka debiteras via månadsavin.

Föreningen tillämpar preliminär debitering av vatten. Den faktiska förbrukningen mäts individuellt, avläses var sjätte månad och justeras därefter på månadsavin.

Driftkostnader

443 kr/månad

Fördelas enligt följande

Telia: 203 kr (obligatorisk)
Vattenförbrukning prel. debitering: 240 kr (obligatorisk)

Observera att driftskostnaderna som anges ovan baseras på säljarens faktiska kostnader det senaste året om inget annat särskilt anges.
Vilka driftskostnader köparen kommer att ha beror på hur bostaden kommer att användas, vilka abonnemang som kommer att tecknas och övriga omständigheter i det enskilda fallet.

Avgiftsförändringar

Föreningen har inga beslutade avgiftsförändringar enligt kontakt med styrelsen 2026-02-06.

Pantsättning

Uppgift om pantsättning saknas

Energideklaration

Status: Energideklaration är utförd
Energiprestanda: 78 kWh/kvm/år
Energiklass: CC
Specifik energianvändning: 43 kWh/kvm/år
Energideklaration utförd: 2023-01-30
Besiktningsman: Olle Vikström, Sweco Sverige AB

Försäkring

Svensk Fastighetsförmedling samarbetar med If för att underlätta ditt bostadsköp. När du köper bostad eller fritidshus genom Svensk Fastighetsförmedling är den automatiskt försäkrad. Vi kallar det Flytta in-försäkring. Den är kostnadsfri och gäller under de första 30 dagarna. Fortsätter du sedan att försäkra hemmet eller fritidshuset hos If får du 10% rabatt och flera andra unika förmåner. Fråga din mäklare för att ta del av erbjudandet.

Alla bilder

+ 25 Visa alla 31 bilder
 

Planritning

Karta och område

Blåsippsvägen 29B, Svärtinge

Kalkyl

Vad kostar nya boendet?

Fler värden

Här nedanför kan du ändra ränta, amortering och driftkostnader och se hur de påverkar kalkylen.

Återställ alla värden
Visa fler

Ränta

Amortering

Driftkostnad per månad

Driftkostnad/månad

Observera att driftskostnaderna som anges ovan baseras på säljarens faktiska kostnader det senaste året om inget annat särskilt anges.

Vilka driftskostnader köparen kommer att ha beror på hur bostaden kommer att användas, vilka abonnemang som kommer att tecknas och övriga omständigheter i det enskilda fallet.

Boendekostnad per månad

Ränta
+  kr
Driftkostnad
+  kr
Månadsavgift
+ 7882 kr
Skattereduktion
 kr
Summa
ca  kr
Amortering
+  kr
Inkl amortering
ca  kr

Ansök om lånelöfte

Hos vårt systerbolag Ordna Bolån kan du enkelt ansöka om lånelöfte eller bolån. En ansökan, svar från flera banker.

Intresseformulär

Fyll i formuläret så kontaktar vi dig inom kort.

Kontaktuppgifter
Vänligen ange förnamn
Vänligen ange efternamn
Vänligen ange telefonnummer
Vänligen ange e-post
500 tecken kvar
Har du lånelöfte?*
Vill du ha hjälp med lånelöfte?
Vill du få nyheter och erbjudanden?

Oj, något gick fel! Försök igen. 

Ett ögonblick!
Tack, dina uppgifter är sparade!
Du fyllde inte i någon e-postadress. Ange den nedan för att inte missa någon information.
 
 
 
Ta del av vår integritetspolicy
 
 
 

Liknande bostäder till salu

Norrköping
Blåsippsvägen 29B
Dela bostad: Dela på Facebook Dela med epost Dela med sms Kopiera länk Länken kopierad

Planritning