Hoppa till innehåll
 
Pris (Utgångspris): 
1 795 000 kr
Månadsavgift: 5 771 kr/månad
Gällivare

Rimfrostgatan 12, lgh 029

Pris (Utgångspris): 
1 795 000 kr
Månadsavgift: 5 771 kr/månad

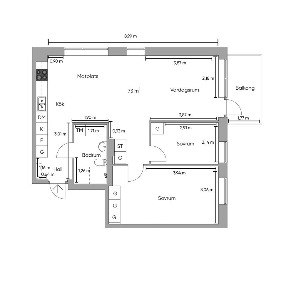
3 ROK, 76,2 M², VÅN 3

  • Typ: Bostadsrättslägenhet
  • Rum: 3, varav 2 sovrum
  • Boarea: 76,2 m2
  • Lägenhetsnummer: 029
  • Byggnadsår: 2022
  • Månadsavgift: 5 771 kr
  • Driftkostnad: 300 kr/månad
  • Upplåtelseform: Bostadsrätt
  • Våning: 3 av 4
  • Hiss: Ja

Välplanerad 3:a om 76,2 kvm med öppen planlösning och härlig balkong. Lägenheten har genomgående hög standard med kök från Ballingslöv, enhetligt vinylgolv, fönsterbänkar i sten och helkaklat badrum med golvvärme. Köket har gott om förvaring och tillhörande matplats intill fönster och i badrummet finns en tvättmaskin. I månadsavgiften ingår värme, vatten och förvaltning. Till lägenheten hör ett vindsförråd.

Om Bostaden

Beskrivning

Lägenhetens planlösning disponeras enligt följande:

HALL
Hall med hatthylla, målade väggar och vinylgolv.

KÖK MED MATPLATS
Kök med vit köksinredning från Ballingslöv och kakel ovan laminatbänkskiva. Förberett för mikro. Maskinell utrustning i form av kyl/frys från Cylinda, spis med häll, ugn, spisfläkt och diskmaskin. Tillhörande matplats intill fönster.

VARDAGSRUM
Lättmöblerat vardagsrum med öppen planlösning mot kök och matplats. Utgång till balkong. Målade väggar och vinylgolv.

BALKONG
Rymlig balkong med utsikt mot innergården.

SOVRUM 1
Rymligt sovrum med garderobsvägg och plats för dubbelsäng. Målade väggar och vinylgolv.

SOVRUM 2
Sovrum med 1 garderob, målade väggar och vinylgolv.

BADRUM
Helkaklat badrum med golvvärme. Dusch med draperi, wc, handfat, spegel och tvättmaskin.

Fönsterbänkar i sten, persienner i fönster samt gardinstänger.

Sammanfattning

Typ: Bostadsrättslägenhet
Rum: 3, varav 2 sovrum
Boarea: 76,2 m2
Lägenhetsnummer: 029
Pris (Utgångspris): 1 795 000 kr
Byggnadsår: 2022
Driftkostnad: 300 kr/månad
Upplåtelseform: Bostadsrätt
Våning: 3 av 4
Hiss: Ja
Inflyttning: Enligt överenskommelse

Kommentar till boarean

Boareauppgift enligt: Bostadsrättsföreningen

Byggnadssätt

Kommentar: Betong.

Tv/Internetanslutning

Internet via fiber. Föreningen står för abonnemangskostnaden till Dundernet. Varje lägenhetsinnehavare tecknar internet via egen leverantör.
Juridiska personer måste teckna avtal via pappersblankett hos Dundernet.
Internet via fiber från Dundernet.

Värme- och ventilationsanläggning

Uppvärmning via bergvärme.
FTX-ventilation.

Allmänt

Län: Norrbotten
Kommun: Gällivare
Område: Repisvaara

Omgivning

Att bo på Rimfrostgatan är att få det bästa av både natur och bekvämlighet året om.
Här börjar vintermagin redan utanför dörren. När sjöar och myrar fryser till öppnar sig milsvida promenadstråk där du kan njuta av stillheten och följa norrskenets dans över himlen. Skogens tystnad och den klara vinternatten blir en del av vardagen, något man aldrig tröttnar på.

Friluftslivet finns bokstavligen runt hörnet. Bara 50 meter från huset ansluter du till Harrträskspåret, ett välskött skidspår med förbindelser till både Hellnerstadion, kommunrundan och hela vägen upp mot Dundret. Här finns även en rolig hinderbana med omkring 13 stationer – perfekt för barnfamiljer eller den som vill kombinera träning med naturupplevelse. Intill skidspåret ligger dessutom en skoterled som tar dig genom hela Gällivare och för den som behöver finns gratis skoterparkering vid hyrparkeringarna.

När vinterlederna över myrarna bakom skogen och vid Harrträsk prepareras blir de till idylliska promenadstråk där man verkligen får uppleva naturen på nära håll.

Sommaren bjuder på minst lika mycket frihet. På bara tio minuters promenad – eller tre minuter med bil – når du Harrträsk. Här kan du bada, paddla SUP eller sjösätta båt och vattenskoter. Många boende tar med hundarna hit och njuter av lugna sommarkvällar vid vattnet.

Samtidigt bor du med all tänkbar bekvämlighet precis intill. ICA nära Dundret ligger på kort avstånd och har öppet dygnet runt – perfekt när vardagen kräver flexibilitet. Bussförbindelserna är bra och mindre än en minuts promenad från porten finns busshållplatsen.

På Rimfrostgatan får du en vardag där naturens stora upplevelser och stadens smidighet möts på bästa sätt och där varje årstid har sitt eget sätt att imponera.

Andel i föreningen

Andel i föreningen: 3.06271
Andel av insats: 2.45378
Andel av månadsavgift: 0,0306271

Pantsättningsavgift

592 kr

Bostadsrättens indirekta nettoskuldsättning

988 711 kr
Bostadsrättens indirekta nettoskuldsättning anger hur stor andel av bostadsrättsföreningens lån som indirekt belastar bostadsrätten. Det underlag som ligger till grund för beräkning av uppgiften har inhämtats från bostadsrättsföreningen, dels från årsredovisning dels från utdrag ur bostadsrättsföreningens lägenhetsregister. Observera att föreningens skuldsättningsgrad kan ha förändrats sedan årsredovisningen som ligger till grund för beräkningen upprättades.

Om föreningen

Brf Rimfrostgatan har 38 lägenheter på fastigheten Gällivare Gällivare 12:816. Lägenheterna består av 28 bostadsrätter och 10 hyresrätter. Lägenheterna består av 1:or, 2:or och 3:or.
1 rok, 38 m² - 6 st
2 rok, 61,2 m² - 8 st
3 rok, 72,1 m² - 8 st
3 rok, 73 m² - 8 st
3 rok, 76,2 m² - 8 st

Husen är byggda 2022 fördelade på två hus med 4 våningar och hiss i varje byggnad. Husen är byggda i betong och värms upp via bergvärme.

Till varje lägenhet ingår ett vindsförråd.

Renoveringsbeskrivning

Kommande renoveringar i föreningen:
Föreningen planerar att teckna gemensamhetsel och gemensam internetleverantör samt bygga 27 st carportplatser.

Gemensamma utrymmen

Föreningen erbjuder fina gemensamma utrymmen i form av en härlig bastu med dusch och wc i hus 1, fräsch tvättstuga med tvättmaskin, torktumlare, torkskåp och mangel i hus 2, miljöstation, grillplats och cykelförråd på innergård.

Parkering

Bilplats 1: P-plats . Avgift 450 kr/mån, har separat kö, har strömuttag.
Bilplats 2: Skoterparkering .
43 st p-platser med motorvärmare.
28 st av platserna är förberedda för carport.

Gästparkeringar finns bakom hus 12. Avgift 5 kr/tim, 40 kr/dygn och 200 kr/vecka.
Föreningen tillhandahåller även skoterparkering.

Föreningens ekonomi

Kommande avgiftsförändringar: Årsavgifterna höjdes senast med 12,5 % from 2026-01-01.

Kommunikationer

Bra bussförbindelser in till centrala Gällivare som tar ca 13 minuter samt sjukhuset på ca 10 minuter med busshållplats endast några meter från lägenheterna.

Ekonomi

Pris (Utgångspris)

1 795 000 kr

Överlåtelseavgift

Överlåtelseavgift: 1 480 kr
Överlåtelseavgift betalas av: säljare

Månadsavgift

5 771 kr
I avgiften ingår värme, vatten och bostadsrättstillägg

Driftkostnader

300 kr/månad

Fördelas enligt följande

El: 300 kr

Observera att driftskostnaderna som anges ovan baseras på säljarens faktiska kostnader det senaste året om inget annat särskilt anges.
Vilka driftskostnader köparen kommer att ha beror på hur bostaden kommer att användas, vilka abonnemang som kommer att tecknas och övriga omständigheter i det enskilda fallet.

Avgiftsförändringar

Årsavgifterna höjdes senast med 12,5 % from 2026-01-01.

Pantsättning

Lägenheten är inte pantsatt

Energideklaration

Status: Energideklaration är utförd
Energiprestanda: 61 kWh/kvm/år
Energiklass: CC
Specifik energianvändning: 45 kWh/kvm/år
Energideklaration utförd: 2025-03-18
Besiktningsman: Andreas Andersson

Försäkring

Svensk Fastighetsförmedling samarbetar med If för att underlätta ditt bostadsköp. När du köper bostad eller fritidshus genom Svensk Fastighetsförmedling är den automatiskt försäkrad. Vi kallar det Flytta in-försäkring. Den är kostnadsfri och gäller under de första 30 dagarna. Fortsätter du sedan att försäkra hemmet eller fritidshuset hos If får du 10% rabatt och flera andra unika förmåner. Fråga din mäklare för att ta del av erbjudandet.

Alla bilder

+ 15 Visa alla 21 bilder
 

Planritning

Karta och område

Rimfrostgatan 12, lgh 029, Gällivare

Kalkyl

Vad kostar nya boendet?

Fler värden

Här nedanför kan du ändra ränta, amortering och driftkostnader och se hur de påverkar kalkylen.

Återställ alla värden
Visa fler

Ränta

Amortering

Driftkostnad per månad

Driftkostnad/månad

Observera att driftskostnaderna som anges ovan baseras på säljarens faktiska kostnader det senaste året om inget annat särskilt anges.

Vilka driftskostnader köparen kommer att ha beror på hur bostaden kommer att användas, vilka abonnemang som kommer att tecknas och övriga omständigheter i det enskilda fallet.

Boendekostnad per månad

Ränta
+  kr
Driftkostnad
+  kr
Månadsavgift
+ 5771 kr
Skattereduktion
 kr
Summa
ca  kr
Amortering
+  kr
Inkl amortering
ca  kr

Ansök om lånelöfte

Hos vårt systerbolag Ordna Bolån kan du enkelt ansöka om lånelöfte eller bolån. En ansökan, svar från flera banker.

Intresseformulär

Fyll i formuläret så kontaktar vi dig inom kort.

Kontaktuppgifter
Vänligen ange förnamn
Vänligen ange efternamn
Vänligen ange telefonnummer
Vänligen ange e-post
500 tecken kvar
Har du lånelöfte?*
Vill du ha hjälp med lånelöfte?
Vill du få nyheter och erbjudanden?

Oj, något gick fel! Försök igen. 

Ett ögonblick!
Tack, dina uppgifter är sparade!
Du fyllde inte i någon e-postadress. Ange den nedan för att inte missa någon information.
 
 
 
Ta del av vår integritetspolicy
 
 
 

Liknande bostäder till salu

Repisvaara, Gällivare
Rimfrostgatan 12, lgh 029
Dela bostad: Dela på Facebook Dela med epost Dela med sms Kopiera länk Länken kopierad

Planritning