Hoppa till innehåll
Västervik

Björklundsgatan 1B

Välplanerad 2:a med inglasad balkong i populärt område & i förening med låg månadsavgift

  • Typ: Bostadsrättslägenhet
  • Rum: 2, varav 1 sovrum
  • Boarea: 59,5 m2
  • Lägenhetsnummer: 103
  • Byggnadsår: 1961
  • Månadsavgift: 3 688 kr
  • Driftkostnad: 245 kr/månad
  • Upplåtelseform: Bostadsrätt
  • Våning: 2 av 3
  • Hiss: Nej

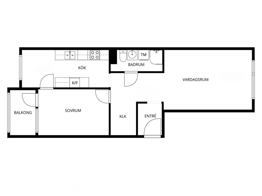
Välkommen på visning till denna fräscha & välplanerade 2:a på andra våningen. Här har du en trivsam & ljus genomgångslägenhet med bra förvaringsmöjligheter & inglasad balkong som öppnar åt väster med kvällssol. Med del i en förening i ett lugnt & populärt läge med låg månadsavgift om 3 688 kr/mån inkl vatten, uppvärmning, tv & internet. Inom gångavstånd finner du skolor, förskola, matbutiker, gym och till centrum har du ca 1 km. Lägenheten fördelas på en rymlig entré/hall med klädavhängning, rymlig klädkammare med förvaringsinredning, kök med plats för matbord, luftigt sovrum med utgång till inglasad balkong samt ett ljust & trivsamt vardagsrum.

Om Bostaden

Beskrivning

ENTRÉ med laminatgolv och målade väggar, klädavhängning. Centralt placerad HALL med laminatgolv som sträcker sig enhetligt till klädkammare, kök, sovrum och vardagsrum. Generös KLÄDKAMMARE bakom draperi med praktiskt platsbyggd inredning. Ljust och luftigt VARDAGSRUM med målade väggar/fondvägg. BADRUM med plastmatta och kaklade väggar, utrustat med wc, handfat, badrumsskåp med spegel och belysning, dusch samt toppmatad tvättmaskin. KÖK med plats för matbord, skåpsinredning med ljusa luckor och kakel över diskbänk. Utrustat med kyl/frys -22, diskmaskin, fläkt och spis med häll och varmluftsugn. Rymligt SOVRUM med plats för dubbelsäng och med utgång till inglasad balkong med platsbyggd sittmöbel som öppnar mot väster med eftermiddag/kvällssol.

Sammanfattning

Typ: Bostadsrättslägenhet
Rum: 2, varav 1 sovrum
Boarea: 59,5 m2
Lägenhetsnummer: 103
Pris (Utgångspris): 640 000 kr
Byggnadsår: 1961
Driftkostnad: 245 kr/månad
Upplåtelseform: Bostadsrätt
Våning: 2 av 3
Hiss: Nej

Kommentar till boarean

Boareauppgift enligt: Bostadsrättsföreningen

Byggnadssätt

Kommentar: Renoverades: 1991-2010
Renoveringsinformation: 1991: Inglasning balkonger. 1999: Renovering av tvättstugor. 2002: Stam- och ventilationsbyte samt renovering av badrum. 2005: Renovering av tak. 2006: Byte av fönster till 3-isolerglas. 2007: Lekplats och boulebana. Nya torktumlare och manglar i tvättstugorna. 2008: Gym/träningslokal har iordningställts. 2009: Ny miljöstation för sophantering. PCB-inventering utförd. Digitalisering av TV-nätet är slutförd. 2010: Bredband genom Tele2 har installerats.

Tv/Internetanslutning

Bredbandsbolaget levererar bredband, IP-telefoni och TV-kanaler till fastigheten via fiberkabel.

Värme- och ventilationsanläggning

Fjärrvärme

Allmänt

Län: Kalmar
Kommun: Västervik
Område: Västervik

Omgivning

MARIEBORG:
Centralt beläget område med gångavstånd till alla nödvändiga bekvämligheter så som centrum med ett brett utbud av restauranger, mataffärer, sjukhus, busshållplats och skolor så som Marieborgsskolan åk 0-6. Högstadieskola åk 7-9, Ellen Key och Alpha skolan.
Stadsparken ligger med direkt närhet till Marieborg och stadsparken erbjuder bland annat lekplats, minigolfbana, boulebana och fina grönområden.

Andel i föreningen

Andel i föreningen: 0,87
Andel av insats: Uppgiften saknas i föreningens register
Andel av månadsavgift: 0,88

Om föreningen

Till lägenheten hör ett källarförråd (nätat) samt ett matkällarförråd.

Renoveringsbeskrivning

Utförda renoveringar i föreningen:
Takrenovering
1991: Inglasning balkonger.
2001: Ombyggnad av rörstammar och badrum.
2005: Balkongrenovering, takrenovering och åtgärd yttre miljö.
2009: Gym/träningslokal har iordningställts.
2006: Byte av fönster till 3-glas isoler.
2014: Miljörum för sopsortering.
2014: Underhållsplan har tagits fram.
2017: Gruppanslutning till Bredbandsbolaget (Bredband, digital-TV och IP-telefoni, ingår med 200:-/mån i månadsavgiften)
2018: Byte av garageportar
2019: Målningsarbete tak

Gemensamma utrymmen

Övernattningslägenhet med badrum, 150 kr/natt. Gym, tvättstugor, miljöstation, cykelrum och förråd.

Parkering

21 garageplatser och 77 parkeringsplatser. 7 mopedplatser.
För närvarande kö till garage, p-plats finns fn ledigt.

Ekonomi

Pris (Utgångspris)

640 000 kr

Överlåtelseavgift

Överlåtelseavgift betalas av: säljare

Månadsavgift

3 688 kr
I avgiften ingår värme, vatten och internet/TV

Driftkostnader

245 kr/månad
Antal i hushållet: 1
Kommentar: Parkering med el: 150 kr/mån



Fördelas enligt följande

El: 169 kr
Försäkring: 76 kr

Observera att driftskostnaderna som anges ovan baseras på säljarens faktiska kostnader det senaste året om inget annat särskilt anges.
Vilka driftskostnader köparen kommer att ha beror på hur bostaden kommer att användas, vilka abonnemang som kommer att tecknas och övriga omständigheter i det enskilda fallet.

Pantsättning

Lägenheten är pantsatt

Energideklaration

Status: Energideklaration är utförd
Energiprestanda: 155 kWh/kvm/år
Energiklass: FF
Specifik energianvändning: 138 kWh/kvm/år
Energideklaration utförd: 2020-05-05

Inre reparationsfond

Summa: 3 353 kr

Försäkring

Svensk Fastighetsförmedling samarbetar med If för att underlätta ditt bostadsköp. När du köper bostad eller fritidshus genom Svensk Fastighetsförmedling är den automatiskt försäkrad. Vi kallar det Flytta in-försäkring. Den är kostnadsfri och gäller under de första 30 dagarna. Fortsätter du sedan att försäkra hemmet eller fritidshuset hos If får du 10% rabatt och flera andra unika förmåner. Fråga din mäklare för att ta del av erbjudandet.

Alla bilder

+ 28 Visa alla 34 bilder
 

Planritning

Karta och område

Björklundsgatan 1B, Västervik

Kalkyl

Vad kostar nya boendet?

Fler värden

Här nedanför kan du ändra ränta, amortering och driftkostnader och se hur de påverkar kalkylen.

Återställ alla värden
Visa fler

Ränta

Amortering

Driftkostnad per månad

Driftkostnad/månad

Observera att driftskostnaderna som anges ovan baseras på säljarens faktiska kostnader det senaste året om inget annat särskilt anges.

Vilka driftskostnader köparen kommer att ha beror på hur bostaden kommer att användas, vilka abonnemang som kommer att tecknas och övriga omständigheter i det enskilda fallet.

Boendekostnad per månad

Ränta
+  kr
Driftkostnad
+  kr
Månadsavgift
+ 3688 kr
Skattereduktion
 kr
Summa
ca  kr
Amortering
+  kr
Inkl amortering
ca  kr

Ansök om lånelöfte

Hos vårt systerbolag Ordna Bolån kan du enkelt ansöka om lånelöfte eller bolån. En ansökan, svar från flera banker.

Visningsanmälan

Fyll i formuläret så kontaktar vi dig inom kort.

Välj mellan nedan alternativ
Måndag 6 april
Anmälan krävs

Björklundsgatan 1B, 593 34 Västervik
Jag vill veta mer om bostaden

Kontaktuppgifter
Vänligen ange förnamn
Vänligen ange efternamn
Vänligen ange telefonnummer
Vänligen ange e-post
500 tecken kvar
Har du lånelöfte?*
Vill du ha hjälp med lånelöfte?
Vill du få nyheter och erbjudanden?

Oj, något gick fel! Försök igen. 

Ett ögonblick!
Tack, dina uppgifter är sparade!
Du fyllde inte i någon e-postadress. Ange den nedan för att inte missa någon information.
 
 
 
Ta del av vår integritetspolicy
 
 
 

Liknande bostäder till salu

Västervik, Västervik
Björklundsgatan 1B
Dela bostad: Dela på Facebook Dela med epost Dela med sms Kopiera länk Länken kopierad

Planritning