Hoppa till innehåll
Falkenberg

Sunes väg 15B

Trivsamt parhus med solig baksida i lugnt kvarter.

  • Typ: Parhus
  • Rum: 4, varav 3 sovrum
  • Boarea: 107,7 m2
  • Lägenhetsnummer: 412
  • Byggnadsår: 2017-2018
  • Månadsavgift: 4 972 kr
  • Driftkostnad: 3 400 kr/månad
  • Upplåtelseform: Bostadsrätt
  • Våning: 1-2
  • Hiss: Nej

Välplanerat parhus i bostadsrättsform om 107,7 kvm med en genomtänkt planlösning. Bostaden erbjuder tre sovrum och en baksida som blir en självklar samlingsplats under årets ljusare månader. Här bor du dessutom med fördelar som solceller och installerad laddbox – ett bekvämt och framtidsanpassat boende.

Bostaden erbjuder en genomtänkt planlösning med sociala ytor på entréplan. Köket är modernt med vita luckor, goda arbetsytor och plats för matbord invid fönster. Vardagsrummet ligger i öppen anslutning och präglas av fint ljusinsläpp samt utgång till altanen på baksidan, vilket skapar en naturlig övergång mellan inne och ute under årets varmare månader.

Utbyggnaden på baksidan gör att utemiljön kan användas från tidig vår till sen sommar. Redan under årets första soliga dagar infinner sig den där speciella känslan av att kunna sitta i lä med en kopp kaffe och njuta av vårens första strålar. När sommaren tar vid blir altanen en given plats för umgänge, med sol under stora delar av dagen och gott om utrymme för både matgrupp och loungemöbler.

Baksidan vetter mot ett grönområde som skapar en luftig och trivsam inramning samt bidrar till en känsla av gemenskap i området. Här finns ytor som bjuder in till lek, spontana möten och sociala stunder.

På övre plan finns tre sovrum i bra storlek samt badrum. Rummen passar såväl barnfamiljen som den som önskar hemmakontor eller gästrum. Förvaringsmöjligheterna är goda och helheten är en bostad som upplevs välhållen och lätt att trivas i.

Läget är praktiskt med god tillgång till cykelvägar som smidigt leder till affärer, skola, strand och vidare in till stan. Här kombineras ett tryggt och stillsamt bostadsområde med närhet till vardagens behov.

Ett hem med genomtänkta ytor, trivsam utemiljö och ett kvarter där gemenskap och trygghet blivit en naturlig del av livet.

Om Bostaden

Beskrivning

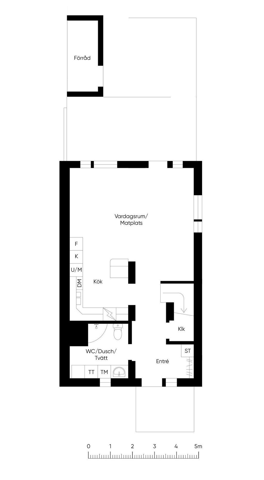
Entréplan

Välkomnande entré med plats för avhängning direkt innanför dörren. Ljus färgsättning och praktiskt golv som är lätt att hålla rent. Vidare in i bostaden öppnar planlösningen upp mot de sociala ytorna.

WC/Dusch/Tvätt

Badrum i ljusa toner utrustat med dusch, wc och handfat med kommod. Väggarna är klädda med våtrumsskivor. Här finns även tvättmaskin och torktumlare med praktisk arbetsyta ovan samt förvaring i skåp, vilket skapar ett funktionellt och yteffektivt rum för vardagens behov.

Kök

Modernt kök med vita skåpluckor och mörkare stänkskydd ovan arbetsbänk som skapar en fin kontrast. Gott om förvaring och generösa arbetsytor. Maskinell utrustning i form av spishäll, ugn, fläkt, kyl och frys samt diskmaskin. Plats för matbord invid fönster med trevligt ljusinsläpp.

Vardagsrum

Ljust och luftigt vardagsrum i öppen anslutning till köket. Här finns gott om plats för soffgrupp och mediemöbel. Stora fönsterpartier och utgång till altanen på baksidan ger ett fint ljusflöde och suddar ut gränsen mellan inne och ute under årets varmare månader.

Övre plan
Läshörna

Övre hall/allrum som med fördel kan användas som läshörna, arbetsplats eller extra tv-hörna. Ett flexibelt utrymme som knyter samman våningsplanets sovrum.

Sovrum 1

Rymligt sovrum med plats för dubbelsäng och tillhörande möblemang. Förvaring i garderober och fönster som ger ett behagligt ljusinsläpp.

Sovrum 2

Sovrum i bra storlek som passar utmärkt som barnrum, gästrum eller kontor. Plats för säng, skrivbord och förvaring.

Sovrum 3

Ytterligare ett trivsamt sovrum med fint ljusinsläpp. Även detta rum lämpar sig väl som barnrum eller arbetsrum beroende på behov.

Badrum

Badrum i ljusa toner med väggar klädda i våtrumsskivor och praktisk plastmatta på golv. Utrustat med wc, handfat med kommod samt fristående badkar. Här finns även spegelskåp för förvaring. Ett lättskött och funktionellt badrum med stilren känsla.

Klädkammare
På övre plan med praktisk förvaring i form av hyllor och klädstänger. Ett yteffektivt och välplanerat utrymme som skapar god ordning och överblick över garderoben.

Sammanfattning

Typ: Parhus
Rum: 4, varav 3 sovrum
Boarea: 107,7 m2
Lägenhetsnummer: 412
Pris (Utgångspris): 2 749 000 kr
Byggnadsår: 2017-2018
Driftkostnad: 3 400 kr/månad
Upplåtelseform: Bostadsrätt
Våning: 1-2
Hiss: Nej
Inflyttning: Enligt överenskommelse

Kommentar till boarean

Boareauppgift enligt: Bostadsrättsföreningen

Upplåtna utrymmen

Förråd finns på baksidan av parhuset i anslutning till uteplatsen.
Förrådet är upplåten med bostadsrätten (ingår i bostadsrätten).

Byggnadssätt

Kommentar: Bostadsrättsparhus i två plan. Myresjöparhus i klassisk stil.
Kortfattad byggnadsbeskrivning:

Antal våningar 2
Grundläggning Betongplatta på mark
Stomme Prefabricerade volymbyggda träelement
Bjälklag Prefabricerade träelement
Yttertak Prefabricerade fackverkstakstolar med betongpannor
Fasad Liggande träpanel
Dörrsnickerier Glasad entrédörr
Fönster Träfönster av fabrikat Elitfönster, samtligafönster har 3-glas isolerruta
Innerväggar i lägenhet Prefabricerade träelement
Kök Fabrikat Vedum
Uppvärmningssystem Vattenburen värme med radiatorer på båda våningsplanen
Ventilation Frånluftsventilation Nibe Fighter 730
TV/data/tele Fiber

Kortfattad byggnadsbeskrivning förråd:

Grundläggning Platta på mark
Yttervägg Oisolerad träregelstomme
Yttertak Papptak samt betongpannor


Kortfattad rumsbeskrivning:

Rum Golv Väggar Tak
Entré, kapprum Klinker Målad gips Folierad spånskiva/målad
Kök Ekparkett Målad gips Folierad spånskiva/målad
Bad, wc/dusch/tvätt Våtrumsmatta Våtrumsskiva Folierad spånskiva/målad
Vardagsrum Ekparkett Målad gips Folierad spånskiva/målad
Sovrum Ekparkett Målad gips Folierad spånskiva/målad
Klädkammare Ekparkett Målad gips Folierad spånskiva/målad

Tomt/balkong/uteplats

Uteplats:
Upplåten mark: Uteplatsen/marken är upplåten med bostadsrätten (ingår i bostadsrätten)

Tv/Internetanslutning

Fiber finns anslutet via Telia till bostadsrätten, abonnemangsavgiften står ägaren för själv.

Värme- och ventilationsanläggning

Frånluftsvärmepump Nibe F730 med vattenburna radiatorer samt mekanisk frånluft med återvinning.

Allmänt

Län: Halland
Kommun: Falkenberg
Område: Skrea

Omgivning

Områdesbeskrivning Skrea

Skrea är ett attraktivt och växande område som längst västerut har utsikt över Kattegatt och Falkenbergs underbara stränder, men som i öster gränsar till motorvägen och vackra, milslånga halländska vidder. Skrea ligger ca fem km från centrum. Det är nära till allting i Falkenberg. Man cyklar till det mesta. Till motorvägen kommer du på några minuter och till järnvägsstationen lika så. I Skrea finns Falkenbergs golfbana med restaurang, idrottsplats med fotbollsplaner, eget mejeri, välkända Prostens pizzeria, Skrea bilverkstad och bra busskommunikationer. Du har en kort cykeltur till Laxbutiken. I naturnära Skrea har du nära till både till skogen med sina kantareller och till havet. Närmaste mataffär är ICA Skrea Strand, i folkmun BeGe-mat, som håller hög klass och även har egna kockar som lagar husmanskost. ICA är beläget på Hjortsbergs centrum där du även hittar apotek, färg, pizzerior, skoaffär, blomsteraffär mm.

I Falkenberg finns ett trettiotal kommunala förskolor placerade över hela kommunen från Slöinge i söder till Ullared i norr. Förskolorna är uppdelade i områdena Centrum Syd, Centrum Nord och Centrum Öst. Det finns också flera fristående förskolor. De närmaste är t. ex. förskolan Thoren Framtid, Montessori Snäckan, Hjorhagens förskola och Hjortsbergs förskola.

I Falkenberg kan du som förälder tillsammans med ditt barn välja den grundskola som du tycker passar ditt barn bäst. Det kan vara skolan i ditt närområde eller någon annan skola. Välj de skolor du vill jämföra. Närmaste skolorna är Skreaskolan och Hjortsbergsskolan.

Andel i föreningen

Andel i föreningen: 3,29330
Andel av insats: 3,29330
Andel av månadsavgift: 0,0329

Pantsättningsavgift

588 kr

Bostadsrättens indirekta nettoskuldsättning

1 132 992 kr
Baserat på årsredovisningen från 2024
Bostadsrättens indirekta nettoskuldsättning anger hur stor andel av bostadsrättsföreningens lån som indirekt belastar bostadsrätten. Det underlag som ligger till grund för beräkning av uppgiften har inhämtats från bostadsrättsföreningen, dels från årsredovisning dels från utdrag ur bostadsrättsföreningens lägenhetsregister. Observera att föreningens skuldsättningsgrad kan ha förändrats sedan årsredovisningen som ligger till grund för beräkningen upprättades.

Om föreningen

I Brf Skreanäs 2 finns det totalt 30 stycken bostadsrätter varav 26 stycken 4:or och fyra stycken 5:or.

Att bo i bostadsrätt innebär att man tillsammans med övriga boende äger byggnader och mark i sin bostadsrättsförening. Detta innebär att man också gemensamt bestämmer över ekonomi och förvaltning. Engagemanget skapar sammanhållning och trivsel, samtidigt som kostnaderna för exempelvis underhåll och reparationer kan hållas nere.

En årsredovisning finns att erhålla av fastighetsmäklaren.

Renoveringsbeskrivning

Kommande renoveringar i föreningen:
Inga kommande renoveringar är planerade.

Parkering

Bilplats 1: Carport , ingår i avgiften.
Asfalterad uppfart under carport med plats för 1 bil. Här finns också laddstolpe för att kunna ladda elbilen om så önskas. Utöver detta finns även en stenlagd uppfart där även en bil får plats.

Föreningens ekonomi

Kommande avgiftsförändringar: 2022 Ingen avgiftsförändring
2023 Höjdes avgiften med 12%
2025 Höjdes avgiften med 11%

Ekonomi

Pris (Utgångspris)

2 749 000 kr

Överlåtelseavgift

Överlåtelseavgift: 1 470 kr
Överlåtelseavgift betalas av: köpare

Månadsavgift

4 972 kr
I avgiften ingår carport, parkeringsplats och bostadsrättstillägg

Driftkostnader

3 400 kr/månad
Årlig elförbrukning: 13262 kWh/år
Antal i hushållet: 4
Kommentar: Solpanelerna producerade 7 572 kWh under 2025. Av detta har 2 734 kWh använts för egen förbrukning och resterande del har sålts vidare. Utöver hushållets ordinarie elförbrukning har även elbil laddats med totalt 5 673 kWh under året.

Fördelas enligt följande

El: 2 177 kr
Försäkring: 103 kr
Vatten och sophantering: 1 120 kr (obligatorisk)

Observera att driftskostnaderna som anges ovan baseras på säljarens faktiska kostnader det senaste året om inget annat särskilt anges.
Vilka driftskostnader köparen kommer att ha beror på hur bostaden kommer att användas, vilka abonnemang som kommer att tecknas och övriga omständigheter i det enskilda fallet.

Avgiftsförändringar

2022 Ingen avgiftsförändring
2023 Höjdes avgiften med 12%
2025 Höjdes avgiften med 11%

Pantsättning

Lägenheten är pantsatt

Energideklaration

Status: Energideklaration är utförd
Energiprestanda: 53 kWh/kvm/år
Energiklass: BB
Specifik energianvändning: 31 kWh/kvm/år
Energideklaration utförd: 2020-06-03
Besiktningsman: Tobias Barsk, Aktea Energy AB

Försäkring

Svensk Fastighetsförmedling samarbetar med If för att underlätta ditt bostadsköp. När du köper bostad eller fritidshus genom Svensk Fastighetsförmedling är den automatiskt försäkrad. Vi kallar det Flytta in-försäkring. Den är kostnadsfri och gäller under de första 30 dagarna. Fortsätter du sedan att försäkra hemmet eller fritidshuset hos If får du 10% rabatt och flera andra unika förmåner. Fråga din mäklare för att ta del av erbjudandet.

Alla bilder

+ 31 Visa alla 37 bilder
 

Planritning

Karta och område

Sunes väg 15B, Falkenberg

Kalkyl

Vad kostar nya boendet?

Fler värden

Här nedanför kan du ändra ränta, amortering och driftkostnader och se hur de påverkar kalkylen.

Återställ alla värden
Visa fler

Ränta

Amortering

Driftkostnad per månad

Driftkostnad/månad

Observera att driftskostnaderna som anges ovan baseras på säljarens faktiska kostnader det senaste året om inget annat särskilt anges.

Vilka driftskostnader köparen kommer att ha beror på hur bostaden kommer att användas, vilka abonnemang som kommer att tecknas och övriga omständigheter i det enskilda fallet.

Boendekostnad per månad

Ränta
+  kr
Driftkostnad
+  kr
Månadsavgift
+ 4972 kr
Skattereduktion
 kr
Summa
ca  kr
Amortering
+  kr
Inkl amortering
ca  kr

Ansök om lånelöfte

Hos vårt systerbolag Ordna Bolån kan du enkelt ansöka om lånelöfte eller bolån. En ansökan, svar från flera banker.

Visningsanmälan

Fyll i formuläret så kontaktar vi dig inom kort.

Välj mellan nedan alternativ
Onsdag 13 maj
Anmälan krävs

Sunes väg 15B, 311 72 Falkenberg
Varmt välkommen på visning! Anmälan till visning gör du enkelt på vår hemsida, alternativt ring oss på 0346-48840 så bokar vi in din visningstid!
Jag vill veta mer om bostaden

Kontaktuppgifter
Vänligen ange förnamn
Vänligen ange efternamn
Vänligen ange telefonnummer
Vänligen ange e-post
500 tecken kvar
Har du lånelöfte?*
Vill du ha hjälp med lånelöfte?
Vill du få nyheter och erbjudanden?

Oj, något gick fel! Försök igen. 

Ett ögonblick!
Tack, dina uppgifter är sparade!
Du fyllde inte i någon e-postadress. Ange den nedan för att inte missa någon information.
 
 
 
Ta del av vår integritetspolicy
 
 
 

Liknande bostäder till salu

Skrea, Falkenberg
Sunes väg 15B
Dela bostad: Dela på Facebook Dela med epost Dela med sms Kopiera länk Länken kopierad

Planritning