Hoppa till innehåll
Gagnef

Mojevägen 18D

Bostadsrätt i radhusform i Stationssamhället.

  • Typ: Radhus
  • Rum: 3, varav 2 sovrum
  • Boarea: 81 m2
  • Lägenhetsnummer: 2
  • Byggnadsår: 2023
  • Månadsavgift: 5 950 kr
  • Driftkostnad: 1 933 kr/månad
  • Upplåtelseform: Bostadsrätt
  • Våning: 1 av 1

Drömmer du om att bo i en underhållsfri lägenhet samtidigt som du vill behålla känslan av att ha din egen lilla oas mitt i bylivet? Då är detta din chans att slå till på den fantastiska 3:an i Brf Stationssamhället, centralt belägen i charmiga Gagnef.

Här välkomnas du av en lyxig 3:a som fångar ögat med sin stilrena design från Ballingslöv i både kök och badrum. Den öppna planlösningen skapar en känsla av rymd samtidigt som de två generösa sovrummen och det väl tilltagna badrummet erbjuder all komfort du behöver. Dessutom finns en uteplats där du kan njuta av soliga dagar och intill bostaden finns ett praktiskt kallförråd för alla dina ägodelar.

Brf Stationssamhället är det perfekta alternativet för dig som vill ha det bekvämt utan att ge upp känslan av eget boende. Med moderna och lättskötta bostadsrättsradhus på gångavstånd från Gagnefs Station har du allt du behöver inom räckhåll. Oavsett om detta blir din första bostad eller om du är redo att säga adjö till trädgårdsarbete och villaansvar, passar dessa bostäder dig perfekt!

Nu har du möjligheten att bli en del av detta härliga samhälle mitt i Dalarna. Missa inte chansen att säkra din plats i ett trevligt villaområde, välkomna hem till Brf Stationssamhället!

Om Bostaden

Sammanfattning

Typ: Radhus
Rum: 3, varav 2 sovrum
Boarea: 81 m2
Lägenhetsnummer: 2
Pris (Utgångspris): 1 795 000 kr
Byggnadsår: 2023
Driftkostnad: 1 933 kr/månad
Upplåtelseform: Bostadsrätt
Våning: 1 av 1
Inflyttning: Enligt överenskommelse

Kommentar till boarean

Boareauppgift enligt: Föreningen/Ritning(ar)

Upplåtna utrymmen

Förråd tillhör lägenheten om
2,5kvm.

Byggnadssätt

Kommentar: Husen är byggda på på betongplatta med trästomme och träpanel målad med järnvitriol samt betongtegel på taken. Bostaden har utgång i två väderstreck via entré från gatan och uteplats in mot gemensamma grönytorna. Stora fönsterpartier med 3-glas.

Tomt/balkong/uteplats

Upplåten mark: Uteplats med trall

Tv/Internetanslutning

Fiber

Värme- och ventilationsanläggning

Individuell frånluftsvärmepump i varje lägenhet, vattenburen golvvärme. Mekanisk frånluft, system med tilluft via ventiler i fönster/fasad.

Allmänt

Län: Dalarna
Kommun: Gagnef
Område: Stationssamhället

Omgivning

Fastigheten belägen i det centrala området Staionssamhället i Gagnef.
Här har du närhet till en välsorterad mataffär, skolor samt till bra kommunikationer med både tåg och buss.
Promenadavstånd till Gagnef Minnesstuga och både Mojesjön och Tjärnsjön för sköna sommarbad. I närheten rinner Österdalälven med den äldre och välkända flottbron.
Närhet till skidåkning både på längden och utför med fina skidspår i området. Populära Romme Alpin endast 30 minuters bilresa bort.

Andel i föreningen

Andel i föreningen: 0,1
Andel av månadsavgift: 0,1

Om föreningen

Bostadsrättsradhus med två huskroppar med 5 lägenheter i varje och gemensam grönyta mellan husen. En modern bostad anpassad för att smälta in i områdets miljö med gott om förvaring.

Gemensamma utrymmen

Separat kallförråd i anslutning till bostaden, ca 2,5kvm.

Parkering

Bilplats 1: P-plats , ingår i avgiften.

Ekonomi

Pris (Utgångspris)

1 795 000 kr

Överlåtelseavgift

Överlåtelseavgift betalas av: köpare

Månadsavgift

5 950 kr
I avgiften ingår parkeringsplats
Parkeringsplats (uppställningsplats) och sophantering ingår i avgiften.

Driftkostnader

1 933 kr/månad
Årlig elförbrukning: 6900 kWh/år
Antal i hushållet: 2
Kommentar: Utöver månadsavgiften tillkommer individuell kostnad för uppvärmningen och elförbrukningen. Elförbrukningen innefattar även värme. Föreningen har ett separat avtal för V/A. Varje bostadsrättshavare debiteras efter sin förbrukning. undermätare finns i varje bostadsrätt. Abonnemang för fiber tillkommer.

Observera att driftkostnader är individuella och varierar utifrån vanor , avtal och hushållets storlek.

Fördelas enligt följande

El: 1 000 kr
Uppvärmning: 500 kr
Försäkring: 143 kr
Vatten och avlopp enligt schablon: 290 kr

Observera att driftskostnaderna som anges ovan baseras på säljarens faktiska kostnader det senaste året om inget annat särskilt anges.
Vilka driftskostnader köparen kommer att ha beror på hur bostaden kommer att användas, vilka abonnemang som kommer att tecknas och övriga omständigheter i det enskilda fallet.

Pantsättning

Lägenheten är pantsatt

Försäkring

Svensk Fastighetsförmedling samarbetar med If för att underlätta ditt bostadsköp. När du köper bostad eller fritidshus genom Svensk Fastighetsförmedling är den automatiskt försäkrad. Vi kallar det Flytta in-försäkring. Den är kostnadsfri och gäller under de första 30 dagarna. Fortsätter du sedan att försäkra hemmet eller fritidshuset hos If får du 10% rabatt och flera andra unika förmåner. Fråga din mäklare för att ta del av erbjudandet.

Alla bilder

+ 18 Visa alla 24 bilder
 

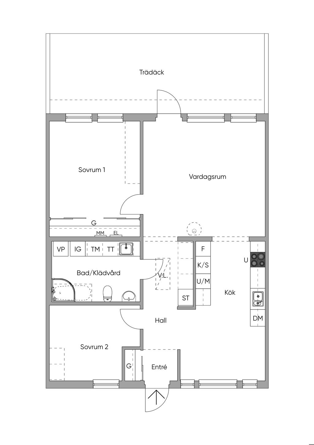
Planritning

Karta och område

Mojevägen 18D, Gagnef

Kalkyl

Vad kostar nya boendet?

Fler värden

Här nedanför kan du ändra ränta, amortering och driftkostnader och se hur de påverkar kalkylen.

Återställ alla värden
Visa fler

Ränta

Amortering

Driftkostnad per månad

Driftkostnad/månad

Observera att driftskostnaderna som anges ovan baseras på säljarens faktiska kostnader det senaste året om inget annat särskilt anges.

Vilka driftskostnader köparen kommer att ha beror på hur bostaden kommer att användas, vilka abonnemang som kommer att tecknas och övriga omständigheter i det enskilda fallet.

Boendekostnad per månad

Ränta
+  kr
Driftkostnad
+  kr
Månadsavgift
+ 5950 kr
Skattereduktion
 kr
Summa
ca  kr
Amortering
+  kr
Inkl amortering
ca  kr

Ansök om lånelöfte

Hos vårt systerbolag Ordna Bolån kan du enkelt ansöka om lånelöfte eller bolån. En ansökan, svar från flera banker.

Intresseformulär

Fyll i formuläret så kontaktar vi dig inom kort.

Kontaktuppgifter
Vänligen ange förnamn
Vänligen ange efternamn
Vänligen ange telefonnummer
Vänligen ange e-post
500 tecken kvar
Har du lånelöfte?*
Vill du ha hjälp med lånelöfte?
Vill du få nyheter och erbjudanden?

Oj, något gick fel! Försök igen. 

Ett ögonblick!
Tack, dina uppgifter är sparade!
Du fyllde inte i någon e-postadress. Ange den nedan för att inte missa någon information.
 
 
 
Ta del av vår integritetspolicy
 
 
 

Liknande bostäder till salu

Stationssamhället, Gagnef
Mojevägen 18D
Dela bostad: Dela på Facebook Dela med epost Dela med sms Kopiera länk Länken kopierad

Planritning