Hoppa till innehåll
 
Visning
Utgångspris: 
2 195 000 kr
Månadsavgift: 6 942 kr/månad
Falun

Kvartsstigen 6A

Visning
Utgångspris: 
2 195 000 kr
Månadsavgift: 6 942 kr/månad

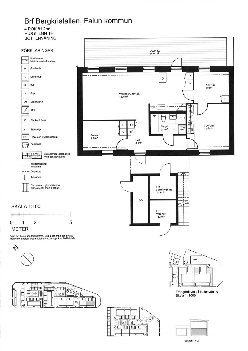
  • Typ: Bostadsrättslägenhet
  • Rum: 4, varav 3 sovrum
  • Boarea: 81 m2
  • Lägenhetsnummer: 19
  • Månadsavgift: 6 942 kr
  • Driftkostnad: 400 kr/månad
  • Upplåtelseform: Bostadsrätt
  • Våning: Bottenvåning

FIN FYRA MED STOR UTEPLATS OCH UTMÄRKT LÄGE PÅ GALGBERGET.

Nu har ni chansen att förvärva en fyra om ca 81 m² med egen ingång och stor mycket tilltalande uteplats. Uteplatsen ger Er möjlighet att njuta av solen under stora delar av dagen samt möblera med loungegrupp, solstolar, grill och planteringar. Här välkomnar en synnerligen trivsam, ljus och tilltalande bostad med väldisponerade ytor, genomgående ljusa färgval och enhetliga parkettgolv. Fina ljusinsläpp från stora fönsterpartier, härliga- öppna ytor mellan vardagsrum och kök vilket skapar trevliga umgängesytor. Smakfullt kök med ljus inredning, goda arbetsytor och hög funktionalitet. Vidare finns tre fina sovrum, fräscht helkaklat badrum med komfortvärme samt tvättavdelning med kombinerad tvättmaskin/torktumlare. Välkomnande entréhall med intilliggande kapprum. I anslutning till entrén finns ett tillhörande förrådsutrymme. För den med gröna fingrar så har föreningen också en gemensam odlingslott.

Idylliska Galgberget ligger ca 3 km från Faluns centrum. Rikligt med aktiviteter som golfbana, fotbollsplaner, slalombacke och ridhus finns endast en kort cykeltur bort. Härlig natur med skog och elljusspår finns inpå knuten. Fin cykelväg ner till centrum för den som vill cykla till jobbet, shoppingen, restaurangerna och nöjeslivet. Annars går det gott om bussar i området. Bra kommunikationen till både Faluns centrum och Borlänge.

Välkommen till ett optimalt boende för alla åldrar!

Om Bostaden

Beskrivning

HALL med parkettgolv och ljus målad vägg.
KÖK med parkettgolv, ljus målad vägg och ljusa köksluckor. Utrustning: induktionshäll, fläkt, ugn, kyl, frys och diskmaskin.
VARDAGSRUM med parkettgolv och ljus målad vägg med grå fondvägg.
SOVRUM med parkettgolv, ljus målad vägg med blå fondvägg. Gott om förvaring via garderob med skjutpartier.
SOVRUM med parkettgolv och grå målad vägg.
SOVRUM med parkettgolv och ljus målad vägg.
BADRUM med klinker (golvvärme) och kakel. Utrustning: toalett, tvättställ, badkar och kombinerad tvättmaskin/torktumlare.

Sammanfattning

Typ: Bostadsrättslägenhet
Rum: 4, varav 3 sovrum
Boarea: 81 m2
Lägenhetsnummer: 19
Utgångspris: 2 195 000 kr
Driftkostnad: 400 kr/månad
Upplåtelseform: Bostadsrätt
Våning: Bottenvåning

Kommentar till boarean

Boareauppgift enligt: Bostadsrättsföreningen

Tv/Internetanslutning

Telia Triple Play (bredband, tv och ip-telefoni). Ingår i avgiften.

Allmänt

Län: Dalarna
Kommun: Falun
Område: Galgberget

Andel i föreningen

Andel i föreningen: 3,2609
Andel av insats: 3,2609
Andel av månadsavgift: 3,2609

Pantsättningsavgift

525 kr

Bostadsrättens indirekta nettoskuldsättning

853 867 kr
Bostadsrättens indirekta nettoskuldsättning anger hur stor andel av bostadsrättsföreningens lån som indirekt belastar bostadsrätten. Det underlag som ligger till grund för beräkning av uppgiften har inhämtats från bostadsrättsföreningen, dels från årsredovisning dels från utdrag ur bostadsrättsföreningens lägenhetsregister. Observera att föreningens skuldsättningsgrad kan ha förändrats sedan årsredovisningen som ligger till grund för beräkningen upprättades.

Om föreningen

Brf Bergkristallen uppfördes med en stomme helt i platsgjuten betong med en isolering bestående av cellplast. Även lägenhetsskiljande väggar, golv och tak är tillverkade av betong. Detta ger många fördelar, bl.a att husen får en tyst inomhusmiljö och att de är energisnåla. Att bo i ett lågenergihus är ett klokt val för dig och din familj. Med långsiktig hållbarhet och lägre energikostnader får ni pengar över till annat, samtidigt som ni gör en insats för miljön. Uppvärmning via bergvärme (luftburet system)

Gemensamma utrymmen

FÖRRÅD
Ett förråd som tillhör lägenheten ligger i anslutning till entrén.

Parkering

Bilplats 1: P-plats . Avgift 250 kr/mån, har separat kö, har strömuttag.
Parkeringsplats med eluttag hör till bostaden (obligatorisk kostnad om 278 kr/mån.

Ekonomi

Utgångspris

2 195 000 kr

Överlåtelseavgift

Överlåtelseavgift: 1 313 kr
Överlåtelseavgift betalas av: köpare

Månadsavgift

6 942 kr
I avgiften ingår värme, vatten, internet/TV, parkeringsplats och bostadsrättstillägg

Driftkostnader

400 kr/månad

Fördelas enligt följande

El: 400 kr

Observera att driftskostnaderna som anges ovan baseras på säljarens faktiska kostnader det senaste året om inget annat särskilt anges.
Vilka driftskostnader köparen kommer att ha beror på hur bostaden kommer att användas, vilka abonnemang som kommer att tecknas och övriga omständigheter i det enskilda fallet.

Pantsättning

Uppgift om pantsättning saknas

Försäkring

Svensk Fastighetsförmedling samarbetar med If för att underlätta ditt bostadsköp. När du köper bostad eller fritidshus genom Svensk Fastighetsförmedling är den automatiskt försäkrad. Vi kallar det Flytta in-försäkring. Den är kostnadsfri och gäller under de första 30 dagarna. Fortsätter du sedan att försäkra hemmet eller fritidshuset hos If får du 10% rabatt och flera andra unika förmåner. Fråga din mäklare för att ta del av erbjudandet.

Alla bilder

+ 25 Visa alla 31 bilder
 

Planritning

Karta och område

Kvartsstigen 6A, Falun

Kalkyl

Vad kostar nya boendet?

Fler värden

Här nedanför kan du ändra ränta, amortering och driftkostnader och se hur de påverkar kalkylen.

Återställ alla värden
Visa fler

Ränta

Amortering

Driftkostnad per månad

Driftkostnad/månad

Observera att driftskostnaderna som anges ovan baseras på säljarens faktiska kostnader det senaste året om inget annat särskilt anges.

Vilka driftskostnader köparen kommer att ha beror på hur bostaden kommer att användas, vilka abonnemang som kommer att tecknas och övriga omständigheter i det enskilda fallet.

Boendekostnad per månad

Ränta
+  kr
Driftkostnad
+  kr
Månadsavgift
+ 6942 kr
Skattereduktion
 kr
Summa
ca  kr
Amortering
+  kr
Inkl amortering
ca  kr

Ansök om lånelöfte

Hos vårt systerbolag Ordna Bolån kan du enkelt ansöka om lånelöfte eller bolån. En ansökan, svar från flera banker.

Visningsanmälan

Fyll i formuläret så kontaktar vi dig inom kort.

Välj mellan nedan alternativ
Måndag 4 maj

Kvartsstigen 6A, 791 56 Falun
Vänligen anmäl om ni kommer.
Jag vill veta mer om bostaden

Kontaktuppgifter
Vänligen ange förnamn
Vänligen ange efternamn
Vänligen ange telefonnummer
Vänligen ange e-post
500 tecken kvar
Har du lånelöfte?*
Vill du ha hjälp med lånelöfte?
Vill du få nyheter och erbjudanden?

Oj, något gick fel! Försök igen. 

Ett ögonblick!
Tack, dina uppgifter är sparade!
Du fyllde inte i någon e-postadress. Ange den nedan för att inte missa någon information.
 
 
 
Ta del av vår integritetspolicy
 
 
 

Liknande bostäder till salu

Galgberget, Falun
Kvartsstigen 6A
Dela bostad: Dela på Facebook Dela med epost Dela med sms Kopiera länk Länken kopierad

Planritning