Hoppa till innehåll
 
Visning
Utgångspris: 
350 000 kr
Månadsavgift: 3 923 kr/månad
Avesta

Kolgillaregatan 12B

Visning
Utgångspris: 
350 000 kr
Månadsavgift: 3 923 kr/månad

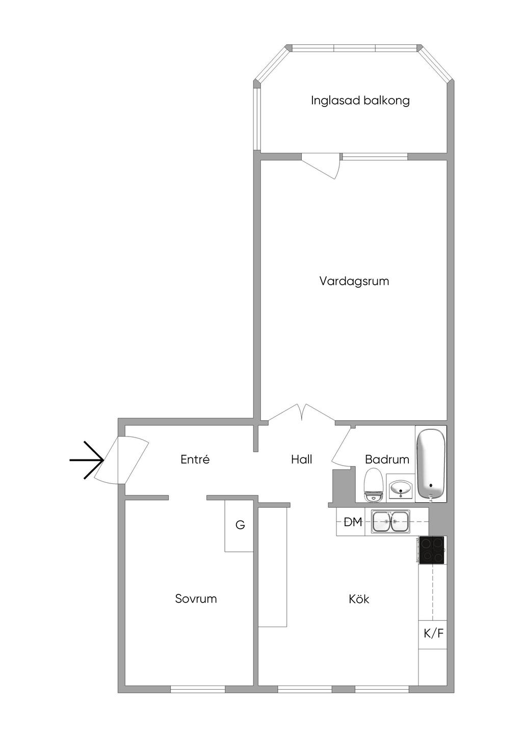
Välplanerad tvåa i centrala Avesta

  • Typ: Bostadsrättslägenhet
  • Rum: 2, varav 1 sovrum
  • Boarea: 60 m2
  • Lägenhetsnummer: 85
  • Byggnadsår: 1959
  • Månadsavgift: 3 923 kr
  • Driftkostnad: 525 kr/månad
  • Upplåtelseform: Bostadsrätt
  • Våning: 1
  • Hiss: Nej

Välkommen till denna välplanerade tvåa på Kolgillaregatan 12B, centralt belägen i hjärtat av Avesta. Med sina 60 kvadratmeter erbjuder lägenheten en optimal planlösning som ger både rymlighet och funktionalitet. Här finner du ett generöst vardagsrum och ett rofyllt sovrum, perfekt för både avkoppling och sociala tillställningar. Köket är praktiskt utformat och inbjuder till matlagning med goda arbetsytor.

Lägenheten ligger i en förening med stabil ekonomi, vilket ger trygghet för framtiden. Den centrala placeringen gör att du har gångavstånd till stadens utbud av shopping, restauranger och kultur. Här bor du med närhet till både service och kommunikationer, vilket gör vardagen smidig och bekväm.

Området runt Kolgillaregatan är lugnt och välskött, vilket ger en trivsam boendemiljö. Denna bostadsrätt är ett idealiskt val för dig som söker ett centralt boende med allt inom räckhåll. Välkommen att upptäcka ditt nya hem i Avesta.

Om Bostaden

Sammanfattning

Typ: Bostadsrättslägenhet
Rum: 2, varav 1 sovrum
Boarea: 60 m2
Lägenhetsnummer: 85
Utgångspris: 350 000 kr
Byggnadsår: 1959
Driftkostnad: 525 kr/månad
Upplåtelseform: Bostadsrätt
Våning: 1
Hiss: Nej

Allmänt

Län: Dalarna
Kommun: Avesta

Andel i föreningen

Andel i föreningen: 0,83469

Pantsättningsavgift

592 kr

Bostadsrättens indirekta nettoskuldsättning

161 592 kr
Bostadsrättens indirekta nettoskuldsättning anger hur stor andel av bostadsrättsföreningens lån som indirekt belastar bostadsrätten. Det underlag som ligger till grund för beräkning av uppgiften har inhämtats från bostadsrättsföreningen, dels från årsredovisning dels från utdrag ur bostadsrättsföreningens lägenhetsregister. Observera att föreningens skuldsättningsgrad kan ha förändrats sedan årsredovisningen som ligger till grund för beräkningen upprättades.

Ekonomi

Utgångspris

350 000 kr

Överlåtelseavgift

Överlåtelseavgift: 1 490 kr
Överlåtelseavgift betalas av: köpare

Månadsavgift

3 923 kr
Värme vatten sophämtning

Driftkostnader

525 kr/månad

Fördelas enligt följande

El: 400 kr
Kabel TV / Bredband: 125 kr

Observera att driftskostnaderna som anges ovan baseras på säljarens faktiska kostnader det senaste året om inget annat särskilt anges.
Vilka driftskostnader köparen kommer att ha beror på hur bostaden kommer att användas, vilka abonnemang som kommer att tecknas och övriga omständigheter i det enskilda fallet.

Pantsättning

Uppgift om pantsättning saknas

Försäkring

Svensk Fastighetsförmedling samarbetar med If för att underlätta ditt bostadsköp. När du köper bostad eller fritidshus genom Svensk Fastighetsförmedling är den automatiskt försäkrad. Vi kallar det Flytta in-försäkring. Den är kostnadsfri och gäller under de första 30 dagarna. Fortsätter du sedan att försäkra hemmet eller fritidshuset hos If får du 10% rabatt och flera andra unika förmåner. Fråga din mäklare för att ta del av erbjudandet.

Alla bilder

+ 11 Visa alla 17 bilder
 

Planritning

Karta och område

Kolgillaregatan 12B, Avesta

Kalkyl

Vad kostar nya boendet?

Fler värden

Här nedanför kan du ändra ränta, amortering och driftkostnader och se hur de påverkar kalkylen.

Återställ alla värden
Visa fler

Ränta

Amortering

Driftkostnad per månad

Driftkostnad/månad

Observera att driftskostnaderna som anges ovan baseras på säljarens faktiska kostnader det senaste året om inget annat särskilt anges.

Vilka driftskostnader köparen kommer att ha beror på hur bostaden kommer att användas, vilka abonnemang som kommer att tecknas och övriga omständigheter i det enskilda fallet.

Boendekostnad per månad

Ränta
+  kr
Driftkostnad
+  kr
Månadsavgift
+ 3923 kr
Skattereduktion
 kr
Summa
ca  kr
Amortering
+  kr
Inkl amortering
ca  kr

Ansök om lånelöfte

Hos vårt systerbolag Ordna Bolån kan du enkelt ansöka om lånelöfte eller bolån. En ansökan, svar från flera banker.

Visningsanmälan

Fyll i formuläret så kontaktar vi dig inom kort.

Välj mellan nedan alternativ
Torsdag 9 april
Anmälan krävs

Kolgillaregatan 12B, 774 34 Avesta
Jag vill veta mer om bostaden

Kontaktuppgifter
Vänligen ange förnamn
Vänligen ange efternamn
Vänligen ange telefonnummer
Vänligen ange e-post
500 tecken kvar
Har du lånelöfte?*
Vill du ha hjälp med lånelöfte?
Vill du få nyheter och erbjudanden?

Oj, något gick fel! Försök igen. 

Ett ögonblick!
Tack, dina uppgifter är sparade!
Du fyllde inte i någon e-postadress. Ange den nedan för att inte missa någon information.
 
 
 
Ta del av vår integritetspolicy
 
 
 

Liknande bostäder till salu

Avesta
Kolgillaregatan 12B
Dela bostad: Dela på Facebook Dela med epost Dela med sms Kopiera länk Länken kopierad

Planritning