
Såld 05 maj 2024
Slutpris
4 035 000 kr
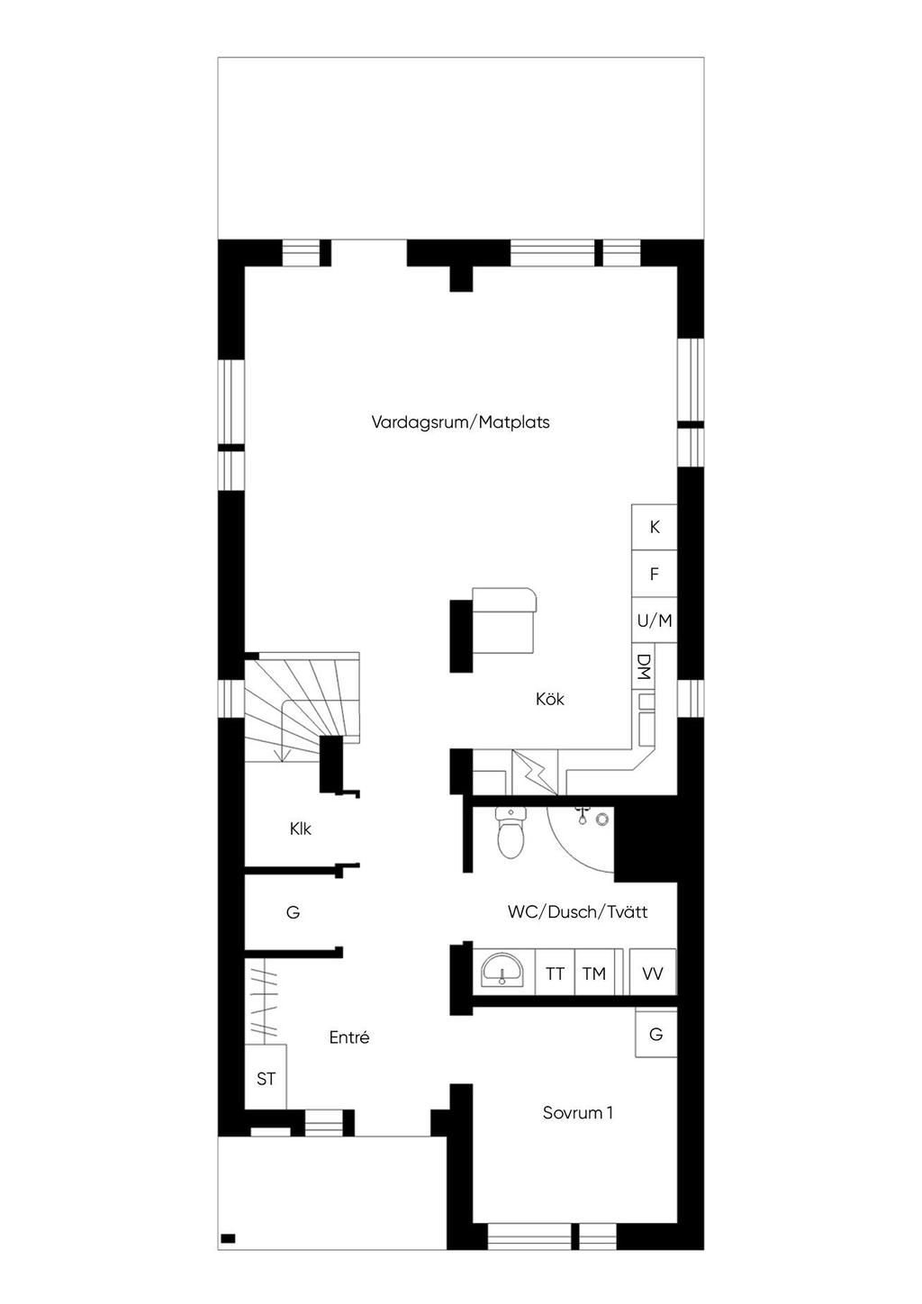
BR-Villa på populära Tornkroken 12!
Lediga tider:
mån 20/10 och tis 21/10