Hoppa till innehåll
Gunnarskog

Älgstråket 29A & 29B

Kommersiell investeringsfastighet med lägenheter och restauranglokal!

  • Typ: Bostadsfastighet
  • Tomtarea: 2 925 m2
  • Bruksarea: 753 m2
  • Driftkostnad: 248 075 kr/år

En attraktiv investeringsmöjlighet med bra läge i Gunnarskog. På Älgstråket 29A och 29B erbjuds en större kommersiell fastighet med en generös tomt om 2 925 kvadratmeter och en tydlig inriktning mot både boende och verksamhet.

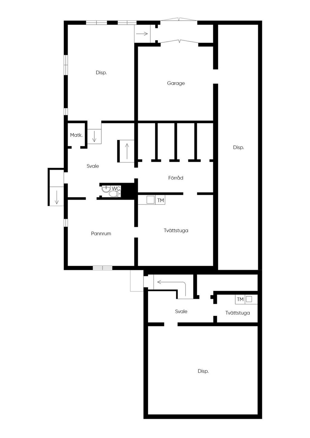
På fastigheten finns två byggnader med goda förutsättningar för stabila hyresintäkter. I den första byggnaden finns sex lägenheter om två rum och kök. Den andra byggnaden rymmer fyra lägenheter med två rum och kök samt en lägenhet med ett rum och kök, vilket ger en flexibel mix av bostäder. Här finns även en restauranglokal som skapar möjligheter för etablerad eller ny verksamhet i området, samt ett garage som kan generera ytterligare intäkter. I dagsläget är fem av lägenheterna uthyrda och restauranglokalen samt garaget är också uthyrda.

Läget i Gunnarskog erbjuder närhet till lokala bekvämligheter och kommunikationer, vilket gör fastigheten intressant både för boende och affärsverksamheter. Sammantaget är detta en möjlighet för den som söker en kommersiell fastighet med utvecklingspotential och flera intäktsben.

Kontakta oss för mer information om fastigheten och dess möjligheter.

Om Fastigheten

Sammanfattning

Typ: Bostadsfastighet
Tomtarea: 2 925 m2
Utgångspris: 3 250 000 kr
Driftkostnad: 248 075 kr/år
Byggnadsarea: 753 m2
Tomtareauppgift enligt: Lantmäteriet

Allmänt

Län: Värmland
Kommun: Arvika
Fastighetsbeteckning: ARVIKA SÖDRA BACKA 1:27

Planbestämmelser

Södra backa 1:41 m fl, Stadsplan (Beslutsdatum: 1982-07-16, Senast ändrad: 2023-04-21)

Älgstråket 29A

Typ: Hyreshusbyggnad
Byggnadsår: 1947
Taxeringsvärde: 784 000 kr
Bruksarea: 304 m2
Energistatus: Energideklaration är utförd
Energideklaration utförd: 2020-10-08
Energiprestanda: 102 kWh/kvm/år
Energiklass: F
Besiktningsman: Peter Persson, HSB Värmland
Vatten: Kommunalt vatten
Kommunalt avlopp
Uppvärmning, kylning och ventilation: Jordvärme
Oljepanna
Kommentar: Tvåvåningsbyggnad med tre stycken lägenheter med två rum och kök samt en lägenhet med ett rum och kök

Älgstråket 29A

Typ: Hyreshuslokal
Byggnadsår: 1947
Taxeringsvärde: 102 000 kr
Bruksarea: 95 m2
Energistatus: Energideklaration är utförd
Energideklaration utförd: 2020-10-08
Energiprestanda: 102 kWh/kvm/år
Energiklass: F
Besiktningsman: Peter Persson, HSB Värmland
Vatten: Kommunalt vatten
Kommunalt avlopp
Uppvärmning, kylning och ventilation: Jordvärme
Oljepanna
Kommentar: Tvåvåningsbyggnad med restaurangverksamhet

Älgstråket 29B

Typ: Hyreshusbyggnad
Byggnadsår: 1987
Taxeringsvärde: 1 181 000 kr
Bruksarea: 354 m2
Energistatus: Energideklaration är utförd
Energideklaration utförd: 2020-10-08
Energiprestanda: 104 kWh/kvm/år
Energiklass: F
Besiktningsman: Peter Persson, HSB Värmland
Vatten: Kommunalt vatten
Kommunalt avlopp
Uppvärmning, kylning och ventilation: Jordvärme
Oljepanna
Kommentar: Tvåvåningsbyggnad med trapphus i mitten

Älgstråket 29A

Byggnadsår: 1947
Taxeringsvärde: 784 000 kr
Värderingsår: 1955
Area: 304 m2

Älgstråket 29A

Byggnadsår: 1947
Taxeringsvärde: 102 000 kr
Värderingsår: 1955
Area: 95 m2

Älgstråket 29B

Byggnadsår: 1987
Taxeringsvärde: 1 181 000 kr
Värderingsår: 1987
Area: 354 m2

Ekonomi

Utgångspris

3 250 000 kr

Driftkostnader

248 075 kr/år

Fördelas enligt följande

El: 76 162 kr
Vatten och avlopp: 52 176 kr
Försäkring: 24 756 kr
Renhållning: 15 252 kr
Olja: 62 713 kr
Digitala tjänster: 17 016 kr

Utöver ovanstående eventuella driftkostnader tillkommer fastighetsavgift med belopp om 8 656 kr.

Observera att driftskostnaderna som anges ovan baseras på säljarens faktiska kostnader det senaste året om inget annat särskilt anges.
Vilka driftskostnader köparen kommer att ha beror på hur bostaden kommer att användas, vilka abonnemang som kommer att tecknas och övriga omständigheter i det enskilda fallet.

Taxering

Byggnad: 2 067 000 kr
Mark: 487 000 kr
Totalt: 2 554 000 kr
Taxeringsår: 2025
Taxeringsvärdet är: Fastställt
Värdeår: 1987
Typkod: 321, Hyreshusenhet, bostäder och lokaler

Pantbrev

Det finns 10 pantbrev uttaget om sammanlagt 5 400 000 kr.

Alla bilder

+ 42 Visa alla 48 bilder
 

Planritning

Karta och område

Älgstråket 29A & 29B, Gunnarskog

Intresseformulär

Fyll i formuläret så kontaktar vi dig inom kort.

Kontaktuppgifter
Vänligen ange förnamn
Vänligen ange efternamn
Vänligen ange telefonnummer
Vänligen ange e-post
500 tecken kvar
Har du lånelöfte?*
Vill du ha hjälp med lånelöfte?
Vill du få nyheter och erbjudanden?

Oj, något gick fel! Försök igen. 

Ett ögonblick!
Tack, dina uppgifter är sparade!
Du fyllde inte i någon e-postadress. Ange den nedan för att inte missa någon information.
 
 
 
Ta del av vår integritetspolicy
 
 
 

Liknande bostäder till salu

Arvika
Älgstråket 29A & 29B
Dela bostad: Dela på Facebook Dela med epost Dela med sms Kopiera länk Länken kopierad

Planritning