Hoppa till innehåll
Alvesta

Blädinge Backkrönet 1

Enplansvilla med lantligt läge nu till salu!

  • Typ: Villa, Enplansvilla
  • Rum: 4, varav 3 sovrum
  • Boarea: 140 m2
  • Tomtarea: 1 206 m2
  • Byggnadsår: 1977
  • Driftkostnad: 56 300 kr/år
  • Upplåtelseform: Äganderätt

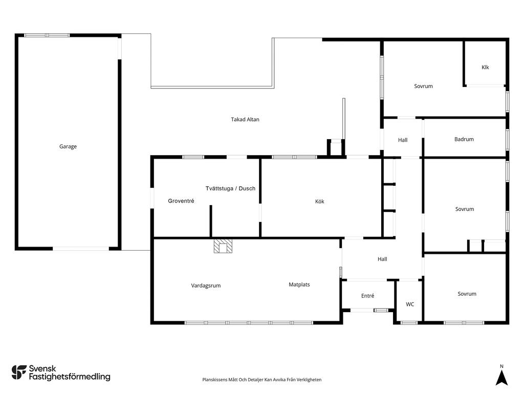
Varmt välkommen till Blädinge Backkrönet 1 och denna enplansvilla med bra planlösning och trevlig hörntomt! Här bor ni lantligt i populär och aktiv by samtidigt som man har trygghet med grannar på gatan. Bostaden med uppmätt yta om ca 141 kvm består idag utav hall, stort vardagsrum, kök, groventré/tvättstuga, tre sovrum som kan bli fyra, en wc och ett duschrum. Solpanel på tak och elbilsladdare finns installerat. Välplanerat med stora umgängesrum, groventré samt gott om rum för familjer. Här kan ni sätta er prägel men även flytta in och renovera löpande rum för rum - helt efter egna önskemål.
Garage och uppfart. Uteplats i form av altan om baksidan samt stenläggning om framsidan. Kommunalt vatten och avlopp.
Närmaste service finns i Vislanda, Alvesta och dessutom ett behändigt pendlingsavstånd till Växjö. Närmast förskola och skola F-9 finner ni i Vislanda.

Hör av er för mer information. Välkommen på visning! Martina Börjesson

Om Bostaden

Beskrivning

HALL
Välkomnande hall med plats för avhängning. Här finns en luftvärmepump installerad.

VARDAGSRUM
Till vänster om hallen når vi in till stort vardagsrum som ger plats för både soffgrupp och matsalsmöblemang. Eldstad med keddyinsats.

KÖK
Kök i bra storlek med plats för matbord. Utrustat med spis, ugn, fläkt, kyl och frys.
Utgång till altan.

GROVENTRÈ/TVÄTTSTUGA
Från köket når vi groventré med plats för avhängning och förvaring.
Utrustad med tvättmaskin.
Här finns en dusch.

WC
Gäst-wc med handfat och wc.

SOVRUM
Sovrum med heltäckningsmatta.

SOVRUM
Sovrum plats för dubbelsäng. Går att dela av till två sovrum.

BADRUM
Badrum med wc, tvättställ och badkar.

SOVRUM
Sovrum plats för dubbelsäng och ingång till klädkammare.

Sammanfattning

Typ: Villa, Enplansvilla
Rum: 4, varav 3 sovrum
Boarea: 140 m2
Tomtarea: 1 206 m2
Utgångspris: 1 595 000 kr
Byggnadsår: 1977
Driftkostnad: 56 300 kr/år
Upplåtelseform: Äganderätt
Inflyttning: Enligt överenskommelse

Kommentar till boarean

Boareauppgift enligt: Lantmäteriet
129 kvm enligt taxeringsinformation
140 kvm enligt säljarens egna mätning ocih ritning.

Uppvärmning

Elvärme: uftvärmepump samt takvärme

Byggnadssätt

Vatten: Kommunalt vatten
Avlopp: Kommunalt avlopp
Grund: Platta på mark
Stomme: Trä
Fasad: Träfasad
Fönster: 2-glasfönster
Takbeklädnad: Betongpannor
Utvändiga plåtarbeten: Plåt

Renoveringar

2024
Solceller installerades

Tomt/balkong/uteplats

Överbyggd altan

Övriga byggnader

Förråd

Parkering

Uppfart
Garage med elbilsladdare

Tv/Internetanslutning

Fiber

Allmänt

Län: Kronoberg
Kommun: Alvesta
Område: Blädinge
Fastighetsbeteckning: ALVESTA BLÄDINGE 5:24

Övriga rättigheter och belastningar

Gemensamhetsanläggning: ALVESTA BLÄDINGE GA:4
Rättigheter last: Avtalsservitut: LEDNING - SE BESKRIVNING
Avtalsrättigheter: Avtalsservitut LEDNING

Ekonomi

Utgångspris

1 595 000 kr

Driftkostnader

56 300 kr/år
Årlig elförbrukning: 16646 kWh/år
Antal i hushållet: 1

Fördelas enligt följande

El: 39 600 kr
Vatten och avlopp: 7 000 kr
Försäkring: 5 500 kr
Renhållning: 3 000 kr
Sotning: 1 200 kr

Utöver ovanstående eventuella driftkostnader tillkommer fastighetsavgift med belopp om 7 815 kr.

Observera att driftskostnaderna som anges ovan baseras på säljarens faktiska kostnader det senaste året om inget annat särskilt anges.
Vilka driftskostnader köparen kommer att ha beror på hur bostaden kommer att användas, vilka abonnemang som kommer att tecknas och övriga omständigheter i det enskilda fallet.

Taxering

Byggnad: 799 000 kr
Mark: 243 000 kr
Totalt: 1 042 000 kr
Taxeringsår: 2024
Taxeringsvärdet är: Fastställt
Värdeår: 1977
Standardpoäng: 31
Typkod: 220, Småhusenhet, bebyggd

Pantbrev

Det finns 4 pantbrev uttaget om sammanlagt 595 000 kr.

Energideklaration

Status: Energideklaration är beställd
Energiprestanda: 73 kWh/kvm/år
Energiklass: EE
Specifik energianvändning: 131 kWh/kvm/år
Energideklaration utförd: 2025-11-19

Försäkring

Svensk Fastighetsförmedling samarbetar med If för att underlätta ditt bostadsköp. När du köper bostad eller fritidshus genom Svensk Fastighetsförmedling är den automatiskt försäkrad. Vi kallar det Flytta in-försäkring. Den är kostnadsfri och gäller under de första 30 dagarna. Fortsätter du sedan att försäkra hemmet eller fritidshuset hos If får du 10% rabatt och flera andra unika förmåner. Fråga din mäklare för att ta del av erbjudandet.
Trygg affär - Varudeklarerad Villa

Alla bilder och video

+ 22 Visa alla 28 bilder
 

Karta och område

Blädinge Backkrönet 1, Alvesta

Kalkyl

Vad kostar nya boendet?

Fler värden

Här nedanför kan du ändra ränta, amortering och driftkostnader och se hur de påverkar kalkylen.

Återställ alla värden
Visa fler

Ränta

Amortering

Driftkostnad per månad

Driftkostnad/månad

Observera att driftskostnaderna som anges ovan baseras på säljarens faktiska kostnader det senaste året om inget annat särskilt anges.

Vilka driftskostnader köparen kommer att ha beror på hur bostaden kommer att användas, vilka abonnemang som kommer att tecknas och övriga omständigheter i det enskilda fallet.

Boendekostnad per månad

Ränta
+  kr
Driftkostnad
+  kr
Fastighetsskatt/-avgift
+ 651 kr
Skattereduktion
 kr
Summa
ca  kr
Amortering
+  kr
Inkl amortering
ca  kr

Ansök om lånelöfte

Hos vårt systerbolag Ordna Bolån kan du enkelt ansöka om lånelöfte eller bolån. En ansökan, svar från flera banker.

Visningsanmälan

Fyll i formuläret så kontaktar vi dig inom kort.

Välj mellan nedan alternativ
Måndag 27 april
Anmälan krävs

Blädinge Backkrönet 1, 342 91 Alvesta
Varmt välkommen på visning! Anmälan krävs
Jag vill veta mer om bostaden

Kontaktuppgifter
Vänligen ange förnamn
Vänligen ange efternamn
Vänligen ange telefonnummer
Vänligen ange e-post
500 tecken kvar
Har du lånelöfte?*
Vill du ha hjälp med lånelöfte?
Vill du få nyheter och erbjudanden?

Oj, något gick fel! Försök igen. 

Ett ögonblick!
Tack, dina uppgifter är sparade!
Du fyllde inte i någon e-postadress. Ange den nedan för att inte missa någon information.
 
 
 
Ta del av vår integritetspolicy
 
 
 

Liknande bostäder till salu

Blädinge, Alvesta
Blädinge Backkrönet 1
Dela bostad: Dela på Facebook Dela med epost Dela med sms Kopiera länk Länken kopierad

Planritning