Hoppa till innehåll
Kallinge

Kockumsvägen 52

Kockumsvägen 52, Kallinge

  • Typ: Villa, Villa, 2-plan med inredd övervåning
  • Rum: 6, varav 4 sovrum
  • Boarea: 205 m2
  • Tomtarea: 768 m2
  • Byggnadsår: 1940
  • Driftkostnad: 43 793 kr/år
  • Upplåtelseform: Äganderätt

Villa om 2-plan tilltagna ytor om 205 kvadratmeter.

Fastigheten är delad i två bostadsdelar vilket skapar perfekta uthyrningsmöjligheter.

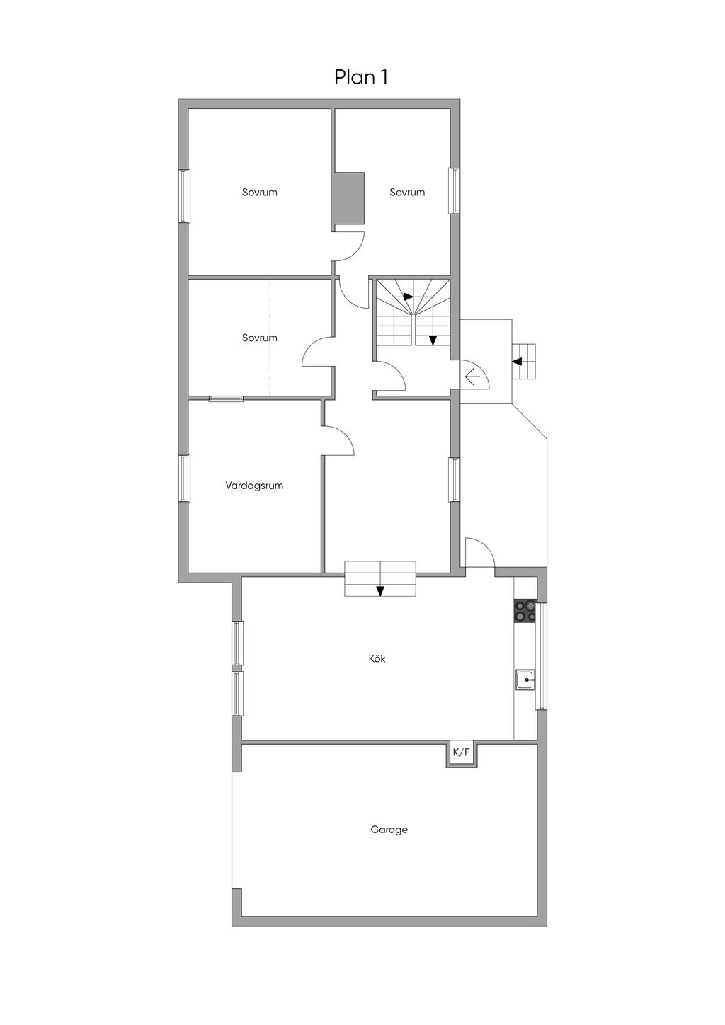
Väldisponerad planlösning med en stort kök och matplats. Vidare på bottenplan finns tre rum varav ett rum som är tänk som badrum.

Övre plan erbjuder två sovrum i god storlek, vardagsrum, badrum samt kök med matplats.

Här erbjuds möjligheten att nyttja hela arealen som ett boende eller nyttja fastigheten som två lägenheter i syfte för uthyrning. Enkelt och anpassat för för uthyrning då det finns separata ingångar till varje del samt badrum på båda planen.

Till huset hör en tomt om 768 kvadratmeter med gräsmatta och uteplatsmöjlighet på baksidan samt infart med plats för två bilar på framsidan.
Välkomna att anmäla er för visning.

Om Bostaden

Beskrivning

Planlösning med entréplan där kök med matplats finns, duschrum samt två sovrum.
Övre plan finns allrum, duschrum samt två sovrum.

Sammanfattning

Typ: Villa, Villa, 2-plan med inredd övervåning
Rum: 6, varav 4 sovrum
Boarea: 205 m2
Tomtarea: 768 m2
Utgångspris: 1 095 000 kr
Byggnadsår: 1940
Driftkostnad: 43 793 kr/år
Upplåtelseform: Äganderätt

Kommentar till boarean

Boareauppgift enligt: Lantmäteriet

Uppvärmning

Pelletspanna och en luft/luftvärmepump

Byggnadssätt

Vatten: Kommunalt vatten året om
Avlopp: Kommunalt avlopp
Grund: Källare på ursprungliga husdelen och gjuten betongplatta på tillbyggnaden
Stomme: Betong/trä
Fasad: Puts och träpanel
Fönster: 2-glas kopplade fönster, 2 och 3- glas isolerfönster
Takbeklädnad: Sadeltak, tegelpannor på ursprungliga husdelen och
betongpannor på tillbyggnaden
Ventilation: Självdrag
Murstock kommentar: Senaste sotarkontrollen påpekades att de ville att dörren in till tvättstugan från pannrummet ska täcktas av metall.
Sotas regelbundet i enlighet med rekommendationer. Oklart huruvida öppenspis på plan 3 är tryckt.
Fel och brister: Fastigheten är i behov av renovering.

Renoveringar

2012 fogades tidigare 1:a i garaget samman med lägenheten på markplan.
Nya golv i lägenheten på markplan samt ommålat.
2025: Halva taket mak mot smältaregatan omlagt

Allmänt

Län: Blekinge
Kommun: Ronneby
Fastighetsbeteckning: RONNEBY KALLEBERGA 41:1

Planbestämmelser

Kalleberga 5:6-5:8, Stadsplan (Beslutsdatum: 1965-03-16, Senast ändrad: 2021-10-28)
Smältaren, Tomtindelning (Beslutsdatum: 1976-07-14)

Ekonomi

Utgångspris

1 095 000 kr

Driftkostnader

43 793 kr/år
Årlig elförbrukning: 39780 kWh/år
Antal i hushållet: 6

Fördelas enligt följande

El: 12 000 kr
Uppvärmning: 15 000 kr
Vatten och avlopp: 7 500 kr
Försäkring: 5 000 kr
Renhållning: 3 793 kr
Sotning: 500 kr
Beskrivning: Fastigheten har stått oanvänd senaste året. Uppgifter avser från 2024.

Utöver ovanstående eventuella driftkostnader tillkommer fastighetsavgift med belopp om 6 473 kr.

Observera att driftskostnaderna som anges ovan baseras på säljarens faktiska kostnader det senaste året om inget annat särskilt anges.
Vilka driftskostnader köparen kommer att ha beror på hur bostaden kommer att användas, vilka abonnemang som kommer att tecknas och övriga omständigheter i det enskilda fallet.

Taxering

Byggnad: 633 000 kr
Mark: 230 000 kr
Totalt: 863 000 kr
Taxeringsår: 2024
Taxeringsvärdet är: Fastställt
Värdeår: 1940
Standardpoäng: 26
Typkod: 220, Småhusenhet, bebyggd

Pantbrev

Det finns 4 pantbrev uttaget om sammanlagt 960 000 kr.

Energideklaration

Status: Energideklaration är utförd
Energiprestanda: 125 kWh/kvm/år
Energiklass: EE
Specifik energianvändning: 173 kWh/kvm/år
Energideklaration utförd: 2026-02-13
Besiktningsman: Daniel Persson, Anticimex AB

Försäkring

Svensk Fastighetsförmedling samarbetar med If för att underlätta ditt bostadsköp. När du köper bostad eller fritidshus genom Svensk Fastighetsförmedling är den automatiskt försäkrad. Vi kallar det Flytta in-försäkring. Den är kostnadsfri och gäller under de första 30 dagarna. Fortsätter du sedan att försäkra hemmet eller fritidshuset hos If får du 10% rabatt och flera andra unika förmåner. Fråga din mäklare för att ta del av erbjudandet.
Trygg affär - Varudeklarerad Villa

Alla bilder

+ 7 Visa alla 13 bilder
 

Karta och område

Kockumsvägen 52, Kallinge

Kalkyl

Vad kostar nya boendet?

Fler värden

Här nedanför kan du ändra ränta, amortering och driftkostnader och se hur de påverkar kalkylen.

Återställ alla värden
Visa fler

Ränta

Amortering

Driftkostnad per månad

Driftkostnad/månad

Observera att driftskostnaderna som anges ovan baseras på säljarens faktiska kostnader det senaste året om inget annat särskilt anges.

Vilka driftskostnader köparen kommer att ha beror på hur bostaden kommer att användas, vilka abonnemang som kommer att tecknas och övriga omständigheter i det enskilda fallet.

Boendekostnad per månad

Ränta
+  kr
Driftkostnad
+  kr
Fastighetsskatt/-avgift
+ 539 kr
Skattereduktion
 kr
Summa
ca  kr
Amortering
+  kr
Inkl amortering
ca  kr

Ansök om lånelöfte

Hos vårt systerbolag Ordna Bolån kan du enkelt ansöka om lånelöfte eller bolån. En ansökan, svar från flera banker.

Visningsanmälan

Fyll i formuläret så kontaktar vi dig inom kort.

Välj mellan nedan alternativ
Tisdag 19 maj
Anmälan krävs

Kockumsvägen 52, 372 50 Kallinge
Anmälan sker via hemsidan. Välkomna!
Jag vill veta mer om bostaden

Kontaktuppgifter
Vänligen ange förnamn
Vänligen ange efternamn
Vänligen ange telefonnummer
Vänligen ange e-post
500 tecken kvar
Har du lånelöfte?*
Vill du ha hjälp med lånelöfte?
Vill du få nyheter och erbjudanden?

Oj, något gick fel! Försök igen. 

Ett ögonblick!
Tack, dina uppgifter är sparade!
Du fyllde inte i någon e-postadress. Ange den nedan för att inte missa någon information.
 
 
 
Ta del av vår integritetspolicy
 
 
 

Liknande bostäder till salu

Ronneby
Kockumsvägen 52
Dela bostad: Dela på Facebook Dela med epost Dela med sms Kopiera länk Länken kopierad

Planritning