Hoppa till innehåll
Sysslebäck

Branäs Syd Hus 13

Stuga planerad för fjällmys och tillsammanstid

  • Typ: Fritidshus, 1 och 1/2 plans hus
  • Rum: 5, varav 4 sovrum
  • Boarea: 88 m2
  • Tomtarea: 611 m2
  • Byggnadsår: 2027
  • Driftkostnad: 41 200 kr/år
  • Upplåtelseform: Äganderätt

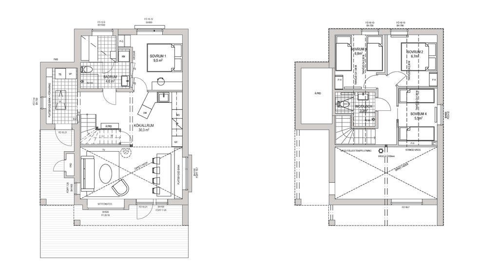
Den här fjällstugan på 88 välplanerade kvadratmeter med fyra sovrum och åtta bäddar gör plats för både familjer och kompisgänget. Oavsett hur många ni är, blir det garanterat mysigt!

Hallen på nedre plan har gott om förvaring och avhängningsmöjligheter. Den är både praktisk och tålig med klinkergolv, golvvärme och torkskåp, bra när mycket ska torka snabbt efter en lång dag ute i backen. Här nere finns också ett större sovrum och badrum med bastu. Vardagsrum, kök och matplats ligger i en öppen planlösning och har öppet upp i nock. Fönster i flera väderstreck ger ett fint ljus och rumshöjden skapar rymd. I det stora sittfönstret vid soffgruppen kan du krypa upp och se ut över omgivningen eller kanske läsa något kapitel i din bok.

En trappa upp väntar tre sovrum och en extra toalett, praktiskt när alla vill göra sig i ordning samtidigt. Det bästa? Det gör inget om strumporna ligger kvar på golvet eller sängen är obäddad, sällskapsytorna finns ändå på nedre plan.

Till stugan hör en uteplats i ett fint läge, förråd under trappan, skidförråd vid entrén, sittbänk för att ta av dig pjäxorna. Här finns plats för tre bilar och möjlighet till tillval som elbilsladdare, kamin och ett extra förråd.

Inredning som ingår:

Golv: 1-stavs härdat ekgolv
Socklar: I trä, likt träpanel
Dörrfoder & lister: I trä, likt träpanel
Fönsterbänk: I trä, likt träpanel
Innerdörrar: Bruna eller grå massiva med ram
Väggar: Infärgad träpanel
Innertak: Infärgad träpanel
Garderober: Bruna eller grå med slät lucka
Kamin: Som tillval
Trappa: Brun eller grå med plansteg likt trägolv
Kök: Brunt eller grått med släta luckor
Köksblandare: Köksblandare i krom med diskmaskinsavstängning
Bänkskiva: Laminat
Diskho: Rostfri underlimmad
Stänkskydd: Laminat
Vitvaror: Rostfria
Fläkt: Utdragbar
Golv, badrum: Klinker
Väggar, badrum: Målade, kakel i dusch
Badrumskommod: Gråbeige med två lådor
Badrumsblandare: Krom
Toalett: Vit golvstående
Spegel: Rund spegel med belysning
Duschvägg: Rak med klarglas
Dusch: Takdusch
Klädvård: Kombimaskin

Välkommen till Branäs Syd. Stugorna i Skogsliden finns i två olika storlekar - 88 kvm med 8 bäddar och 103 kvm med 10 bäddar. Derome har ritat fram varianter av dem så att du välja vilken storlek du vill oavsett tomt.

Om Bostaden

Beskrivning

Till Skogsliden i Branäs har vi valt ut material och produkter från välkända varumärken. För att du ska kunna sätta din egen personliga prägel på ditt nya hem ger vi dig möjlighet att göra olika typer av inredningsval. I vår tillvalsportal presenteras inredningen i sin helhet.

Sammanfattning

Typ: Fritidshus, 1 och 1/2 plans hus
Rum: 5, varav 4 sovrum
Boarea: 88 m2
Tomtarea: 611 m2
Pris: 4 190 000 kr
Byggnadsår: 2027
Driftkostnad: 41 200 kr/år
Upplåtelseform: Äganderätt

Kommentar till boarean

Boareauppgift enligt: Ritning(ar)

Uppvärmning

Nibe frånluftsvärmepump med varmvattenberedare och energisparande ventilationssystem. Vattenburen golvvärme på plan 1, radiatorer på plan 2.

Byggnadssätt

Vatten: Kommunalt vatten
Avlopp: Kommunalt avlopp
Grund: Betongplatta på mark
Stomme: Trä
Fasad: Värmebehandlad och pigmenterad träpanel
Fönster: 3-glas energifönster med svart in- och utsida
Takbeklädnad: Faltak
Ventilation: Spaltventiler som tilluft, frånluft via värmepump
Allmän information: Bostaden säljes som nyproduktion. Denna stuga beräknas kunna vara klar mars 2027.
Kommentar: Tillval för elbilsladdare, fristående förråd och braskamin kan göras.

Tomt/balkong/uteplats

Trätrall på framsidan.
Tomtytan är preliminär då fastighetsgränserna ännu inte är fastställda av Lantmäteriet.

Parkering

Uppfart med plats för tre bilar.

Tv/Internetanslutning

Fiber.

Allmänt

Län: Värmland
Kommun: Torsby
Område: Branäs
Fastighetsbeteckning: Del av TORSBY BRANÄS 5:95

Omgivning

Branäs är nära. Perfekt för en spontanhelg, oavsett om du vill ha stillhet eller full fart i skidbacken. Från Göteborg och Stockholm tar det bara drygt 5 timmar med bil och från Karlstad bara två. Det gör att du kan njuta av åken på förmiddagen och ändå vara hemma till middagen på kvällen.

Skidanläggningen:
Branäs är en väletablerad och välutvecklad skidort för hela familjen. Svårighetsgraden varierar och passar alla, såväl nybörjare om skickliga skidåkare. Anläggningen har skidskola, skiduthyrning, restauranger och afterski. I närheten finns roliga aktiviteter för barnen. Skiddestinationen Branäs har blivit korat till Sveriges bästa barn-och ungdomsdestination i flera år.

Skoterleder:
För den som vill åka skoter är Branäs perfekt. Många skoterleder finns runtom berget och vissa leder ger dig tillgång till det övriga skoternätet i Sverige, för den som vill åka längre turer.

Sommaraktiviteter:
I området runt Branäs finns goda möjligheter för den som önskar använda stugan även under sommarsäsongen. Bra fiskevatten, vandringsleder och vacker jakt-terräng för Branäs till ett helårsområde. Man kan njuta i naturen, plocka bär eller se ripor på nära håll. Bad och padelmöjligheter finns också i Klarälven samt omkringliggande sjöar. För den som gillar att cykla i terräng är Branäs en bra destination.

Avstånd:
Till Likenäs ca 11 km
Till Sysslebäck ca 19 km
Till Torsby ca 76 km
Till Trysil ca 100 km
Till Oslo ca 200 km
Till Göteborg ca 390 km
Till Stockholm ca 430 km

Övriga rättigheter och belastningar

Kommentar: Fastigheten kommer att ha del i gemensamhetsanläggningar som snöröjning, skidspår i terrängen, vägar i området, vägar i Branäs, gatubelysning med mera.

Övrigt

Projektet presenteras med illustrationsbilder och kan avvika ifrån slutlig produkt.

Ekonomi

Pris

4 190 000 kr

Driftkostnader

41 200 kr/år
Årlig elförbrukning: 7250 kWh/år

Fördelas enligt följande

Uppvärmning: 14 500 kr
Vatten och avlopp: 10 200 kr
Försäkring: 5 000 kr
Samfällighet: 11 500 kr
Beskrivning: Uppvärmning avser även kostnaden för hushållsel. Eftersom stugan kommer att vara nybyggd är den befriad ifrån kommunal fastighetsavgift i 15 år från byggår. Driftskostnaderna är beräknade enligt schablon. Förbrukningen av ström varierar huruvida stugan hyrs ut eller inte.

Observera att driftskostnaderna som anges ovan baseras på säljarens faktiska kostnader det senaste året om inget annat särskilt anges.
Vilka driftskostnader köparen kommer att ha beror på hur bostaden kommer att användas, vilka abonnemang som kommer att tecknas och övriga omständigheter i det enskilda fallet.

Taxering

Taxeringsvärdet är: Ej fastställt
Typkod: 200, Ej fastställd typ av småhusenhet

Energideklaration

Status: Energideklaration behövs ej

Alla bilder och video

+ 5 Visa alla 11 bilder
 

Planritning

Karta och område

Branäs Syd Hus 13, Sysslebäck

Kalkyl

Vad kostar nya boendet?

Fler värden

Här nedanför kan du ändra ränta, amortering och driftkostnader och se hur de påverkar kalkylen.

Återställ alla värden
Visa fler

Ränta

Amortering

Driftkostnad per månad

Driftkostnad/månad

Observera att driftskostnaderna som anges ovan baseras på säljarens faktiska kostnader det senaste året om inget annat särskilt anges.

Vilka driftskostnader köparen kommer att ha beror på hur bostaden kommer att användas, vilka abonnemang som kommer att tecknas och övriga omständigheter i det enskilda fallet.

Boendekostnad per månad

Ränta
+  kr
Driftkostnad
+  kr
Fastighetsskatt/-avgift
+ 0 kr
Skattereduktion
 kr
Summa
ca  kr
Amortering
+  kr
Inkl amortering
ca  kr

Ansök om lånelöfte

Hos vårt systerbolag Ordna Bolån kan du enkelt ansöka om lånelöfte eller bolån. En ansökan, svar från flera banker.

Intresseformulär

Fyll i formuläret så kontaktar vi dig inom kort.

Kontaktuppgifter
Vänligen ange förnamn
Vänligen ange efternamn
Vänligen ange telefonnummer
Vänligen ange e-post
500 tecken kvar
Har du lånelöfte?*
Vill du ha hjälp med lånelöfte?
Vill du få nyheter och erbjudanden?

Oj, något gick fel! Försök igen. 

Ett ögonblick!
Tack, dina uppgifter är sparade!
Du fyllde inte i någon e-postadress. Ange den nedan för att inte missa någon information.
 
 
 
Ta del av vår integritetspolicy
 
 
 

Liknande bostäder till salu

Branäs, Torsby
Branäs Syd Hus 13
Dela bostad: Dela på Facebook Dela med epost Dela med sms Kopiera länk Länken kopierad

Planritning