Hoppa till innehåll
Mellösa

Östtorp 39

Fritid med 2 hus.

  • Typ: Fritidshus, 1-plan
  • Rum: 4, varav 3 sovrum
  • Boarea: 70 m2
  • Biarea: 3 m2
  • Tomtarea: 1 732 m2
  • Byggnadsår: 1978
  • Driftkostnad: 12 342 kr/år
  • Upplåtelseform: Äganderätt

Rymligt hus på bra och lekvänlig tomt där det även finns ett extra hus med gästrum, dusch, bastu och bra verkstad.
Beläget i ett litet idylliskt fritidsområde. Här tillbringar man sin fritid året runt med värmande eldstad och stor altan i perfekt syd-västläge.
Till bad i Örhammaren är det knappt 3 km och till Flen med mataffärer och stockholmståget är det knappa milen.
Välkommen till Östtorp i hjärtat av Sörmland!

Om Bostaden

Beskrivning

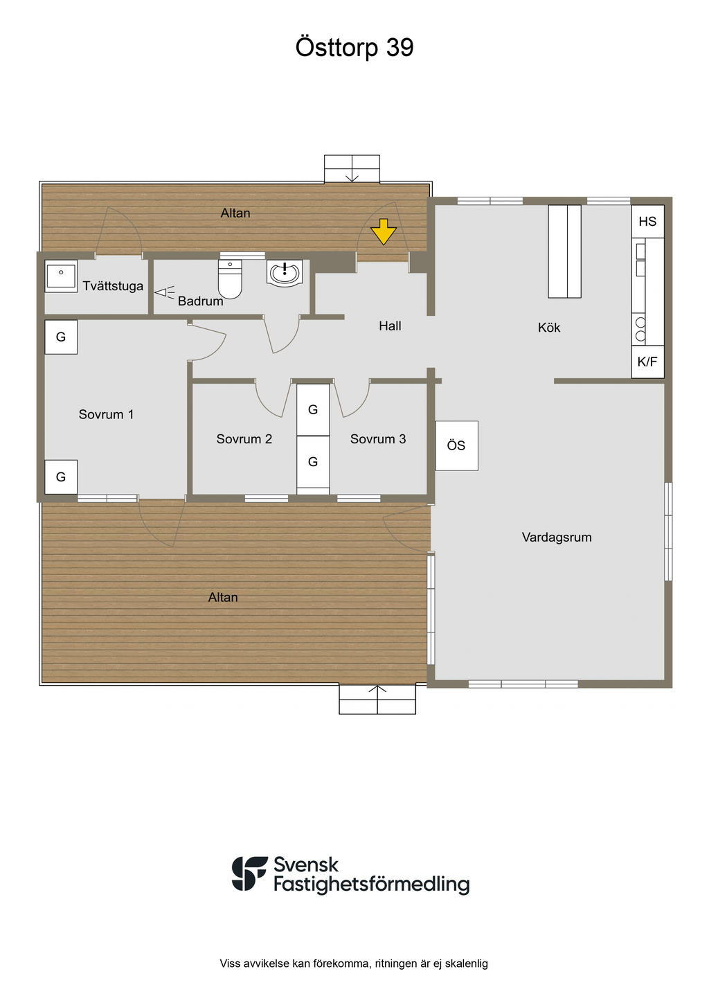
HALL med plastmatta och tapet.
SOVRUM 1 har plastmatta, tapet 1 garderob samt utgång till altanen.
SOVRUM 2 med plastmatta, tapet och 2 garderober.
SOVRUM 3 har plastmatta, tapet och 2 garderober.
DUCHRUM med plastmatta, målad väv, handfat, wc och dusch.
STORT KÖK i "barmodell" som har plastmatta, tapet/panel, kyl/frys och spis.
VARDAGSRUM med trägolv, tapet, öppen spis och utgång till altanen.
TVÄTTSTUGA med separat ingång.

Sammanfattning

Typ: Fritidshus, 1-plan
Rum: 4, varav 3 sovrum
Boarea: 70 m2
Biarea: 3 m2
Byggnadsarea: 80 m2
Tomtarea: 1 732 m2
Utgångspris: 1 400 000 kr
Byggnadsår: 1978
Driftkostnad: 12 342 kr/år
Upplåtelseform: Äganderätt
Inflyttning: Enligt överenskommelse

Kommentar till boarean

Boareauppgift enligt: Lantmäteriet

Uppvärmning

Direkt-el och eldstad

Byggnadssätt

Vatten: Vintervatten från områdets gemsamma borrade brunn
Avlopp: 2-kammarbrunn, wc via aquatron-system (separering) för kompostering.
Grund: Krypgrund
Stomme: Trä
Fasad: Träfasad
Fönster: 2-glasfönster
Takbeklädnad: Betongpannor
Utvändiga plåtarbeten: Plåt
Ventilation: Självdrag
Murstock: Murad skorsten

Tomt/balkong/uteplats

ALTANDÄCK om ca 25 m² i soligt syd-/västläge.
ENTRÉALTAN om ca 12 m².

Övriga byggnader

GÄSTHUSBYGGNAD om ca 40m², isolerat och el indraget. Här finns gästrum, bastu, dusch, tvättmaskin och en rymlig hobbyverkstad/förråd. Egen Altan om ca 10 m².
FÖRRÅD om ca 10 rymmande förråd/gräsklippargarage och vedbod.

Tv/Internetanslutning

FIBER

Allmänt

Län: Södermanland
Kommun: Flen
Fastighetsbeteckning: FLEN ÖSTTORP 1:39

Planbestämmelser

Östtorp 1:11 och 1:22, Byggnadsplan (Beslutsdatum: 1972-04-27, Senast ändrad: 1994-06-28)
Östtorps fritidsområde, Ändring av detaljplan (Beslutsdatum: 1994-05-18)

Övriga rättigheter och belastningar

Gemensamhetsanläggning: FLEN MELLÖSA-MÄLBY GA:1
FLEN ÖSTTORP GA:1
Rättigheter förmån: Officialservitut: VÄG
Samfällighet: FLEN ÖSTTORP S:2

Ekonomi

Utgångspris

1 400 000 kr

Driftkostnader

12 342 kr/år
Årlig elförbrukning: 849 kWh/år
Antal i hushållet: 2

Fördelas enligt följande

El: 5 827 kr
Väg: 850 kr
Försäkring: 2 865 kr
Renhållning: 1 600 kr
Samfällighet: 700 kr
Sotning: 500 kr
Beskrivning: Tömning 2 kammarbrunn 1300kr.
Huset har nyttjats sommarhalvåret.

Utöver ovanstående eventuella driftkostnader tillkommer fastighetsavgift med belopp om 7 693 kr.

Observera att driftskostnaderna som anges ovan baseras på säljarens faktiska kostnader det senaste året om inget annat särskilt anges.
Vilka driftskostnader köparen kommer att ha beror på hur bostaden kommer att användas, vilka abonnemang som kommer att tecknas och övriga omständigheter i det enskilda fallet.

Taxering

Byggnad: 651 000 kr
Mark: 281 000 kr
Totalt: 932 000 kr
Taxeringsår: 2024
Taxeringsvärdet är: Fastställt
Värdeår: 1978
Standardpoäng: 23
Typkod: 220, Småhusenhet, bebyggd
Beskrivning: Bostadshus och tomt har i dag olika typkoder (225, småhus på ofri grund och 210 tomtmark).
Ägaren har dock begärt sammanföring av dessa så det blir typkod 220, bebyggd småhusenhet.

Pantbrev

Det finns 0 pantbrev uttaget om sammanlagt 0 kr

Energideklaration

Status: Energideklaration behövs ej

Försäkring

Svensk Fastighetsförmedling samarbetar med If för att underlätta ditt bostadsköp. När du köper bostad eller fritidshus genom Svensk Fastighetsförmedling är den automatiskt försäkrad. Vi kallar det Flytta in-försäkring. Den är kostnadsfri och gäller under de första 30 dagarna. Fortsätter du sedan att försäkra hemmet eller fritidshuset hos If får du 10% rabatt och flera andra unika förmåner. Fråga din mäklare för att ta del av erbjudandet.
Trygg affär - Varudeklarerad Villa

Alla bilder

+ 23 Visa alla 29 bilder
 

Planritning

Karta och område

Östtorp 39, Mellösa

Kalkyl

Vad kostar nya boendet?

Fler värden

Här nedanför kan du ändra ränta, amortering och driftkostnader och se hur de påverkar kalkylen.

Återställ alla värden
Visa fler

Ränta

Amortering

Driftkostnad per månad

Driftkostnad/månad

Observera att driftskostnaderna som anges ovan baseras på säljarens faktiska kostnader det senaste året om inget annat särskilt anges.

Vilka driftskostnader köparen kommer att ha beror på hur bostaden kommer att användas, vilka abonnemang som kommer att tecknas och övriga omständigheter i det enskilda fallet.

Boendekostnad per månad

Ränta
+  kr
Driftkostnad
+  kr
Fastighetsskatt/-avgift
+ 641 kr
Skattereduktion
 kr
Summa
ca  kr
Amortering
+  kr
Inkl amortering
ca  kr

Ansök om lånelöfte

Hos vårt systerbolag Ordna Bolån kan du enkelt ansöka om lånelöfte eller bolån. En ansökan, svar från flera banker.

Visningsanmälan

Fyll i formuläret så kontaktar vi dig inom kort.

Välj mellan nedan alternativ
Söndag 17 maj
Anmälan krävs

Östtorp 39, 642 63 Mellösa
Välkommen att boka er på visnigen i vår annons.
Jag vill veta mer om bostaden

Kontaktuppgifter
Vänligen ange förnamn
Vänligen ange efternamn
Vänligen ange telefonnummer
Vänligen ange e-post
500 tecken kvar
Har du lånelöfte?*
Vill du ha hjälp med lånelöfte?
Vill du få nyheter och erbjudanden?

Oj, något gick fel! Försök igen. 

Ett ögonblick!
Tack, dina uppgifter är sparade!
Du fyllde inte i någon e-postadress. Ange den nedan för att inte missa någon information.
 
 
 
Ta del av vår integritetspolicy
 
 
 

Liknande bostäder till salu

Flen
Östtorp 39
Dela bostad: Dela på Facebook Dela med epost Dela med sms Kopiera länk Länken kopierad

Planritning