Hoppa till innehåll
Sälen

Stugbyvägen 64

Välkommen till Garpsätra Stugby - rofyllt med närhet till Sälenfjällen!

  • Typ: Fritidshus, 1-planshus
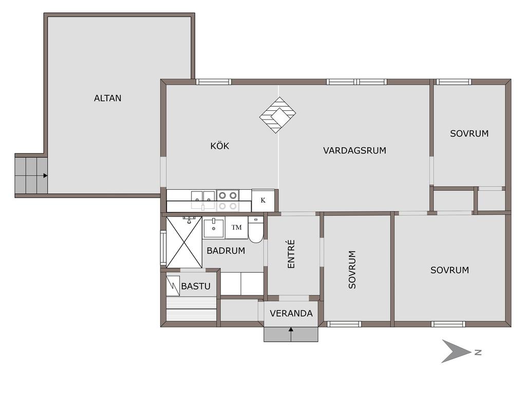
  • Rum: 4, varav 3 sovrum
  • Boarea: 54 m2
  • Tomtarea: 142 m2
  • Byggnadsår: 1980
  • Driftkostnad: 32 199 kr/år
  • Upplåtelseform: Äganderätt

Välkommen till Garpsätra Stugby –rofyllt naturnära läge med närhet till Sälenfjällen! Ett bekvämt fritidsboende omgivet av grönska, frisk luft och rogivande miljöer. Perfekt för dig som vill koppla av från vardagens stress eller uppleva naturen på nära håll. En plats där lugnet möter naturens skönhet.

Garpsätra Stugby erbjuder en trevlig atmosfär med närhet till både skog och vatten eller vinteraktiteter så som skidåkning och skoterled. Vakna till fågelkvitter, njut av långa promenader i natursköna omgivningar eller tillbringa kvällen med familj och vänner i din mysiga stuga. Här finns något för alla – oavsett om du söker stillhet eller äventyr.
Stugbyn har även egna tennisbanor och två fina badplatser i de intilliggande små sjöarna.

Stugan välkomnar med allrum och kök i öppen planlösning som skapar en social och inbjudande atmosfär – perfekt för både vardagsliv och umgänge med familj och vänner. Här blir braskaminen den naturliga samlingspunkten, som sprider både värme och trivsel under årets kallare dagar. Från köket kommer du ut på den rymliga altanen för att enkelt njuta av livet utomhus.
Stugan erbjuder tre sovrum med 6 sängplats vilket ger utrymme för både familj och gäster. Badrummet är utrustat med bastu – en lyxig detalj som förhöjer livskvaliteten och ger möjlighet till avkoppling året om.
En perfekt kombination av funktion, komfort och mysig stugkänsla.

Kontakta ansvarig mäklare för mer information och visning.

Om Bostaden

Sammanfattning

Typ: Fritidshus, 1-planshus
Rum: 4, varav 3 sovrum
Boarea: 54 m2
Tomtarea: 142 m2
Utgångspris: 1 595 000 kr
Byggnadsår: 1980
Driftkostnad: 32 199 kr/år
Upplåtelseform: Äganderätt

Kommentar till boarean

Boareauppgift enligt: Lantmäteriet

Uppvärmning

Direktverkande el, braskamin

Byggnadssätt

Vatten: Samfällighet: Enskilt vatten året om
Avlopp: Samfällighet: Enskilt avlopp
Ventilation: Självdrag

Tomt/balkong/uteplats

Altan med räcke

Parkering

Egen parkering vid bostaden

Tv/Internetanslutning

Fiber finns till fastighet men ej anslutet

Allmänt

Län: Dalarna
Kommun: Malung-Sälen
Fastighetsbeteckning: MALUNG-SÄLEN HÖGSTRAND 1:82

Planbestämmelser

Högstrand 1:10 m fl i transtrand, Byggnadsplan (Beslutsdatum: 1986-10-08, Senast ändrad: 1994-12-06)

Övriga rättigheter och belastningar

Gemensamhetsanläggning: MALUNG-SÄLEN HÖGSTRAND GA:1
MALUNG-SÄLEN HÖGSTRAND GA:2
Samfällighet: MALUNG-SÄLEN HÖGSTRAND S:8

Ekonomi

Utgångspris

1 595 000 kr

Driftkostnader

32 199 kr/år
Årlig elförbrukning: 8000 kWh/år
Antal i hushållet: 4
Kommentar: Som ägare av fastigheten har du del i Samfällighet samt är medlem i Stugägarföreningen och Sälen-Hälla Vägföreningen.
Samfälligheten sköter vatten/avlopp, renhållning, delar av vägskötsel, badsjö och fiskesjö.
Stugägarföreningen ansvarar för tv, grusning och snöröjning av stugbyns vägar samt annat underhåll.

Fördelas enligt följande

El: 18 047 kr
Väg: 1 260 kr
Försäkring: 2 800 kr
Samfällighet: 9 500 kr
Sotning: 592 kr

Utöver ovanstående eventuella driftkostnader tillkommer fastighetsavgift med belopp om 9 720 kr.

Observera att driftskostnaderna som anges ovan baseras på säljarens faktiska kostnader det senaste året om inget annat särskilt anges.
Vilka driftskostnader köparen kommer att ha beror på hur bostaden kommer att användas, vilka abonnemang som kommer att tecknas och övriga omständigheter i det enskilda fallet.

Taxering

Byggnad: 677 000 kr
Mark: 619 000 kr
Totalt: 1 296 000 kr
Taxeringsår: 2024
Taxeringsvärdet är: Fastställt
Värdeår: 1980
Standardpoäng: 25
Typkod: 220, Småhusenhet, bebyggd

Pantbrev

Det finns 3 pantbrev uttaget om sammanlagt 200 000 kr.

Försäkring

Svensk Fastighetsförmedling samarbetar med If för att underlätta ditt bostadsköp. När du köper bostad eller fritidshus genom Svensk Fastighetsförmedling är den automatiskt försäkrad. Vi kallar det Flytta in-försäkring. Den är kostnadsfri och gäller under de första 30 dagarna. Fortsätter du sedan att försäkra hemmet eller fritidshuset hos If får du 10% rabatt och flera andra unika förmåner. Fråga din mäklare för att ta del av erbjudandet.

Alla bilder

+ 33 Visa alla 39 bilder
 

Planritning

Karta och område

Stugbyvägen 64, Sälen

Kalkyl

Vad kostar nya boendet?

Fler värden

Här nedanför kan du ändra ränta, amortering och driftkostnader och se hur de påverkar kalkylen.

Återställ alla värden
Visa fler

Ränta

Amortering

Driftkostnad per månad

Driftkostnad/månad

Observera att driftskostnaderna som anges ovan baseras på säljarens faktiska kostnader det senaste året om inget annat särskilt anges.

Vilka driftskostnader köparen kommer att ha beror på hur bostaden kommer att användas, vilka abonnemang som kommer att tecknas och övriga omständigheter i det enskilda fallet.

Boendekostnad per månad

Ränta
+  kr
Driftkostnad
+  kr
Fastighetsskatt/-avgift
+ 810 kr
Skattereduktion
 kr
Summa
ca  kr
Amortering
+  kr
Inkl amortering
ca  kr

Ansök om lånelöfte

Hos vårt systerbolag Ordna Bolån kan du enkelt ansöka om lånelöfte eller bolån. En ansökan, svar från flera banker.

Intresseformulär

Fyll i formuläret så kontaktar vi dig inom kort.

Kontaktuppgifter
Vänligen ange förnamn
Vänligen ange efternamn
Vänligen ange telefonnummer
Vänligen ange e-post
500 tecken kvar
Har du lånelöfte?*
Vill du ha hjälp med lånelöfte?
Vill du få nyheter och erbjudanden?

Oj, något gick fel! Försök igen. 

Ett ögonblick!
Tack, dina uppgifter är sparade!
Du fyllde inte i någon e-postadress. Ange den nedan för att inte missa någon information.
 
 
 
Ta del av vår integritetspolicy
 
 
 

Liknande bostäder till salu

Malung-Sälen
Stugbyvägen 64
Dela bostad: Dela på Facebook Dela med epost Dela med sms Kopiera länk Länken kopierad

Planritning