Hoppa till innehåll
Växjö

Furumovägen 2B

Flexibel fyra med naturen och sjön direkt runt knuten!

  • Typ: Bostadsrättslägenhet
  • Rum: 4, varav 3 sovrum
  • Boarea: 90,8 m2
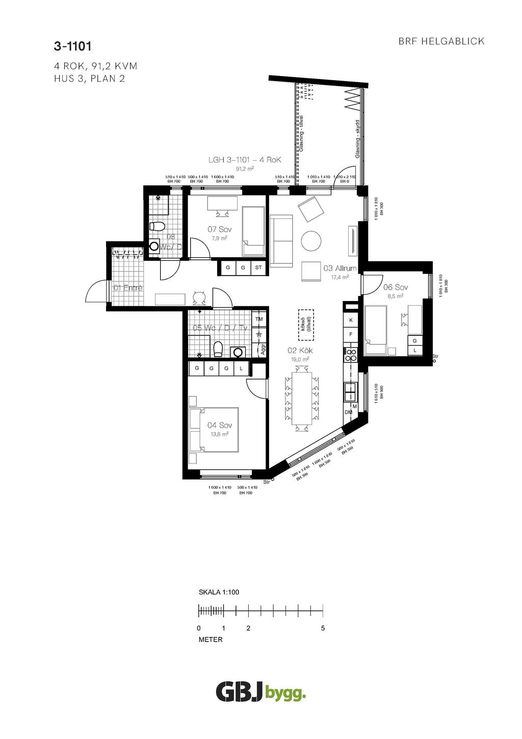
  • Lägenhetsnummer: 3-1101
  • Byggnadsår: 2024
  • Månadsavgift: 5 521 kr
  • Driftkostnad: 1 299 kr/månad
  • Upplåtelseform: Bostadsrätt
  • Våning: 2 av 3
  • Hiss: Ja

VILL DU BO AVGIFTSFRITT I 6 MÅNADER? TECKNA AVTAL FÖR EN NY BOSTAD I BRF HELGABLICK SENAST 31 MARS 2026.

Rymlig och flexibel är ledordet för denna fyra, som också kan vara en trea. Planlösningen förvaltar ljuset på ett skickligt och vackert sätt och erbjuder en genomgående lägenhet som fångar ljuset i flera väderstreck Är ni flera som bor här kommer ni att uppskatta det stora badrummet med tvättavdelning, som dessutom kompletteras av en gästtoalett med ytterligare duschmöjligheter, givetvis är båda helkaklade. Uteplatsen/balkongen är ett kapitel för sig - den bjuder på ljus, solvärme och en skön retreat. Ditt gröna rum i solen för såväl morgonkaffet, kvällsvinet och allt däremellan.

På första parkett mellan Helgasjön och Toftasjön reser sig Sandsbros nya landmärke, ett hemtrevligt och familjärt kvarter för dig som vill bo lyxigt och sjönära. De fem trevåningshusen sluter sig runt en lugn och skyddad innergård med plats för lek, odling och trevlig samvaro kring grillen. I föreningen finns en mysig övernattningslägenhet för efterlängtade gäster samt möjlighet att hyra parkeringsplats i källargarage/på gården. Dessutom är bygglov sökt via föreningen för inglasning av balkongerna, vilket innebär att du som bostadsrättsinnehavare har möjlighet att glasa in din balkong om du önskar.

Bo i bekymmersfritt liv vid porten till staden! Här får du inte bara närhet in till stadskärnan, utan också till Växjös största natur- och friluftsområde, hälsoarenan Fyllerydskogen med en uppsjö av möjligheter för rekreation, friluftsaktiviteter och familjeutflykter. Är du golfintresserad? Här bor du 1,5 km från den populära 18-hålsbana på Glasrikets golfklubb, som är vackert belägen i utkanten av Fylleryd naturreservat. Till Sandsbro badplats och Sandsbrovikens båtklubb är det endast ett par gångminuter. För dig som gärna åker kollektivt finns det smidig tillgång till buss strax utanför dörren som tar dig in till Stortorget i city på knappt 15 minuter!

Är detta ditt nya drömboende? Tveka inte att kontakta mäklarna redan idag och boka en visning. Välkommen hem!

Om Bostaden

Beskrivning

HALL
Entré med praktiskt klinkergolv som övergår i 3-stavs ekparkett i hallen samt därutöver i övriga lägenheten. Garderober och plats för avhängningsmöjligheter.

KÖK/ALLRUM
Öppen planlösning mellan kök, matplats och allrum. Kök med inredning från Ballingslöv och vitvaror från Cylinda (rostfria). Utrustning: Inbyggd ugn- och mikro, kyl, frys, diskmaskin och induktionshäll. Spisfläkt inbyggd i överskåp.

TVÅ BADRUM
Två helkaklade badrum som är komfortabelt utrustade med vattenburen golvvärme (eget reglage). Inredning: Spegel med belysning, tvättställ med två lådor, elektrisk handdukstork, WC-stol och duschväggar. I det större badrummet finns en tvättavdelning med tvättmaskin, torktumlare samt förvaring och arbetsyta.

SOVRUM
Rymligt sovrum med plats för dubbelsäng. Gott om förvaringsmöjligheter i garderober.

SOVRUM 2-3
Sovrum som lämpar sig bra som barnrum, gästrum eller hemmakontor. Garderob finns i det ena rummet.

Sammanfattning

Typ: Bostadsrättslägenhet
Rum: 4, varav 3 sovrum
Boarea: 90,8 m2
Lägenhetsnummer: 3-1101
Utgångspris: 2 880 000 kr
Byggnadsår: 2024
Driftkostnad: 1 299 kr/månad
Upplåtelseform: Bostadsrätt
Våning: 2 av 3
Hiss: Ja
Inflyttning: Enligt överenskommelse

Kommentar till boarean

Boareauppgift enligt: Bostadsrättsföreningen

Byggnadssätt

Kommentar: I föreningen finns 42 st lägenheter mellan 52,8 och 138,5 kvm samt en övernattningslägenhet för gäster. Med endast tre bostäder per våningsplan ligger de flesta i ostört gavelläge, med genomgångsljus och utblick i tre väderstreck.

Tomt/balkong/uteplats

Balkong: Till lägenheten hör en delvis inglasad balkong med räcke i aluminium.

Tv/Internetanslutning

- Internet, tv och telefoni -
Fastigheten är ansluten till fiber.

Värme- och ventilationsanläggning

- Uppvärmning -
Fjärrvärme. Värme via radiatorer. Elektrisk komfortgolvvärme i badrum. Egen mätning av varm- och kallvatten samt hushållsel för respektive lägenhet.

- Ventilation -
Mekanisk till- och frånluftsventilation med värmeåtervinning. FTX aggregat i samtliga lägenheter. Frånluften tas om hand i badrum, kök och klädkammare samt förvärmer tilluften som fördelas i respektive rum via tilluftsdon.

Allmänt

Län: Kronoberg
Kommun: Växjö

Omgivning

Det bästa med Brf Helgablick är närheten till natur, bad och båtliv. Till Sandsbro badplats och Sandsbrovikens båtklubb är det endast ett par gångminuter. Glasrikets golfklubb med sin populära 18-hålsbana mitt i ett naturreservat väntar på dig i utkanten av Fylleryd naturreservat.

Andel i föreningen

Andel i föreningen: 2,852
Andel av månadsavgift: 0,02852

Pantsättningsavgift

558 kr

Bostadsrättens indirekta nettoskuldsättning

1 190 439 kr
Bostadsrättens indirekta nettoskuldsättning anger hur stor andel av bostadsrättsföreningens lån som indirekt belastar bostadsrätten. Det underlag som ligger till grund för beräkning av uppgiften har inhämtats från bostadsrättsföreningen, dels från årsredovisning dels från utdrag ur bostadsrättsföreningens lägenhetsregister. Observera att föreningens skuldsättningsgrad kan ha förändrats sedan årsredovisningen som ligger till grund för beräkningen upprättades.

Gemensamma utrymmen

- Lägenhetsförråd -
Förråd med nätväggar finns till varje lägenhet i källaren.

- Cykelparkering -
Finns under tak på innergården, samt i källaren med uttag för laddning av elcyklar.

- Rullstols- och barnvagnsförråd -
Finns i källarplan.

- Sophantering -
Full sortering i miljörum. Farligt avfall hänvisas till kommunens återvinningstationer.

- Övernattningsrum -
Finns att tillgå i källarplan.

Parkering

Bilplats 1: P-plats . Avgift 600 kr/mån, har separat kö.
Bilplats 2: Garage . Avgift 800 kr/mån, har separat kö.
Bilplats 3: Garage med elbilsladdning . Avgift 1000 kr/mån, har separat kö.
I föreningen finns 38 st parkeringsplatser i ouppvärmt källargarage samt 4 st parkeringsplatser utomhus vid hus 1 och hus 2. Handikappsparkering samt besöksparkering finns. Kostnad för parkeringsplats i garage är 800 kr/månad respektive 600 kr/månad för parkeringsplats utomhus. El-plats kostar 1 000 kr/månad (exklusive el).

Kommunikationer

Sandsbro, som ligger ca 5 km från Växjö centrum, är vackert beläget på näset mellan Helgasjön och Toftasjön. Dessutom bekvämt cykelavstånd in till stadskärnan och till handeln i Norremark. Direkt utanför husen stannar bussen med täta avgångar till stan. Norremarks skola och förskola ligger på gångavstånd – så praktiskt när alla i familjen ska till sitt på morgonen!

Övrigt

Notera att de bilder som visas är inspirationsbilder. Bilderna är från valda visningslägenheter, varför avvikelser kan förekomma vad gäller, materialval, färger och utformning.

Bakom projektet står GBJ Bygg, som sedan 1945 vuxit från ett litet familjeföretag till ett modernt byggbolag med drygt 250 anställda med kontor på fem orter. GBJ bygg utför alla typer av byggarbeten och är både kvalitets- och miljöcertifierade. Läs mer om GBJ Bygg under Länkar nedan.

Ekonomi

Utgångspris

2 880 000 kr

Överlåtelseavgift

Överlåtelseavgift: 1 470 kr
Överlåtelseavgift betalas av: köpare

Månadsavgift

5 521 kr
I avgiften ingår värme och bostadsrättstillägg
I månadsavgiften ingår uppvärmning, sophämtning, förråd och bostadsrättstillägg.

Driftkostnader

1 299 kr/månad
Kommentar: Uppskattade driftskostnader för föreningen och bostadsrättshavarna framgår av den ekonomiska planen. Kostnaderna kan variera för olika hushåll exempelvis beroende på antalet boende och konsumtionsmönster.
- Hushållsel via individuell mätning, 45 kr/kvm/år
- V/A via individuell mätning (kallvatten via andelstal), 80 kr/kvm/år
- Bredband via Wexnet med grundtaxa 180 kr/mån plus kostnad för valt utbud.
- Hemförsäkring (bostadsrättstillägget är tecknat via föreningen), 23 kr/kvm/år

Fördelas enligt följande

El: 340 kr
Försäkring: 174 kr
V/A via individuell mätning (kallvatten via andelstal), 80 kr/kvm/år: 605 kr (obligatorisk)
Bredband via Wexnet med grundtaxa 180 kr/mån plus kostnad för valt utbud.: 180 kr (obligatorisk)

Observera att driftskostnaderna som anges ovan baseras på säljarens faktiska kostnader det senaste året om inget annat särskilt anges.
Vilka driftskostnader köparen kommer att ha beror på hur bostaden kommer att användas, vilka abonnemang som kommer att tecknas och övriga omständigheter i det enskilda fallet.

Pantsättning

Lägenheten är pantsatt

Energideklaration

Status: Energideklaration är utförd
Energiprestanda: 69 kWh/kvm/år
Energiklass: CC
Specifik energianvändning: 76 kWh/kvm/år
Energideklaration utförd: 2024-11-14
Besiktningsman: Yifan Guo, Assemblin Ventilation AB
Beskrivning:

Försäkring

Svensk Fastighetsförmedling samarbetar med If för att underlätta ditt bostadsköp. När du köper bostad eller fritidshus genom Svensk Fastighetsförmedling är den automatiskt försäkrad. Vi kallar det Flytta in-försäkring. Den är kostnadsfri och gäller under de första 30 dagarna. Fortsätter du sedan att försäkra hemmet eller fritidshuset hos If får du 10% rabatt och flera andra unika förmåner. Fråga din mäklare för att ta del av erbjudandet.

Alla bilder och video

+ 26 Visa alla 32 bilder
 

Planritning

Karta och område

Furumovägen 2B, Växjö

Kalkyl

Vad kostar nya boendet?

Fler värden

Här nedanför kan du ändra ränta, amortering och driftkostnader och se hur de påverkar kalkylen.

Återställ alla värden
Visa fler

Ränta

Amortering

Driftkostnad per månad

Driftkostnad/månad

Observera att driftskostnaderna som anges ovan baseras på säljarens faktiska kostnader det senaste året om inget annat särskilt anges.

Vilka driftskostnader köparen kommer att ha beror på hur bostaden kommer att användas, vilka abonnemang som kommer att tecknas och övriga omständigheter i det enskilda fallet.

Boendekostnad per månad

Ränta
+  kr
Driftkostnad
+  kr
Månadsavgift
+ 5521 kr
Skattereduktion
 kr
Summa
ca  kr
Amortering
+  kr
Inkl amortering
ca  kr

Ansök om lånelöfte

Hos vårt systerbolag Ordna Bolån kan du enkelt ansöka om lånelöfte eller bolån. En ansökan, svar från flera banker.

Visningsanmälan

Fyll i formuläret så kontaktar vi dig inom kort.

Välj mellan nedan alternativ
Söndag 5 april
Öppen visning

Furumovägen 2B, 352 72 Växjö
Vi visar lägenheterna och bjuder på fika från Toftastrand.
Söndag 12 april
Öppen visning

Furumovägen 2B, 352 72 Växjö
Vi visar lägenheterna och bjuder på fika från Toftastrand.
Söndag 19 april
Öppen visning

Furumovägen 2B, 352 72 Växjö
Vi visar lägenheterna och bjuder på fika från Toftastrand.
Söndag 26 april
Öppen visning

Furumovägen 2B, 352 72 Växjö
Vi visar lägenheterna och bjuder på fika från Toftastrand.
Jag vill veta mer om bostaden

Kontaktuppgifter
Vänligen ange förnamn
Vänligen ange efternamn
Vänligen ange telefonnummer
Vänligen ange e-post
500 tecken kvar
Har du lånelöfte?*
Vill du ha hjälp med lånelöfte?
Vill du få nyheter och erbjudanden?

Oj, något gick fel! Försök igen. 

Ett ögonblick!
Tack, dina uppgifter är sparade!
Du fyllde inte i någon e-postadress. Ange den nedan för att inte missa någon information.
 
 
 
Ta del av vår integritetspolicy
 
 
 

Liknande bostäder till salu

Växjö
Furumovägen 2B
Dela bostad: Dela på Facebook Dela med epost Dela med sms Kopiera länk Länken kopierad

Planritning