
Såld 22 jun 2024
Slutpris ej tillgängligt
-kontakta mäklaren för mer information
Charmig lägenhet ett stenkast från Villamartin Plaza och Golf
Kontakta ansvarig mäklare
Toni Jäppinen
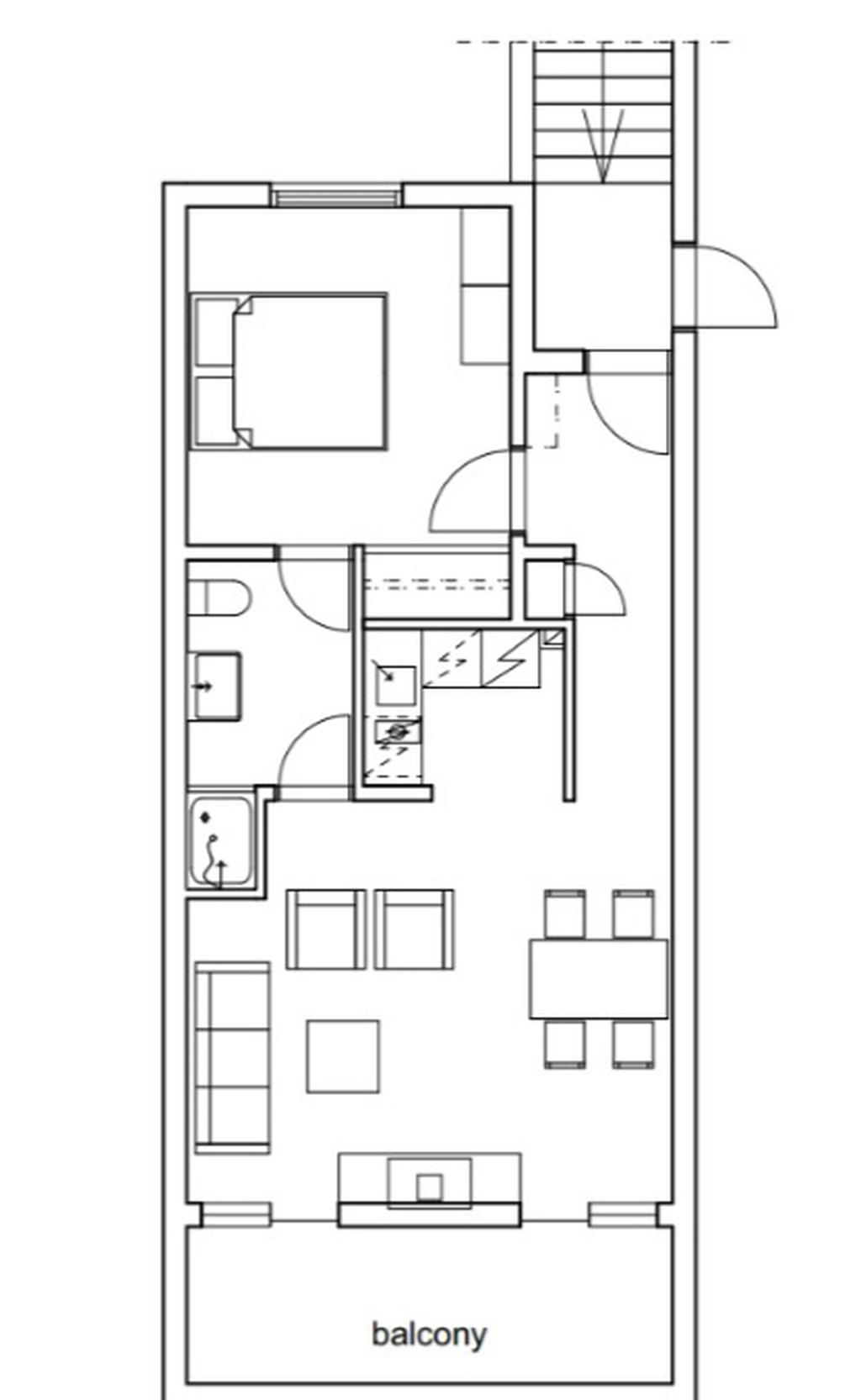
Planritning

Viss avvikelse kan förekomma. Skala och mått kan avvika från verkligheten.
Fullskärm