Såld 09 sep 2023
Slutpris ej tillgängligt
-kontakta mäklaren för mer information
Njut av utsikten över medelhavet med härlig takterrass i Playa Flamenca.
Kontakta ansvarig mäklare
Toni Jäppinen
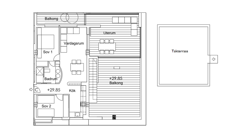
Planritning

Viss avvikelse kan förekomma. Skala och mått kan avvika från verkligheten.
Fullskärm