Hoppa till innehåll
Såld 14 feb 2023
Slutpris ej tillgängligt
-kontakta bobutiken för mer information

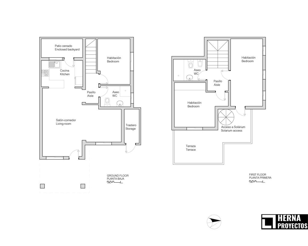
Fantastiskt radhus med havsutsikt från takterrassen och gemensam pool

  • Typ: Radhus
  • Rum: 3, varav 2-3 sovrum
  • Boarea: 82 m2
  • Byggnadsår: 2004
  • Upplåtelseform: Äganderätt

Planritning

Karta och område

Liknande objekt till salu