Hoppa till innehåll

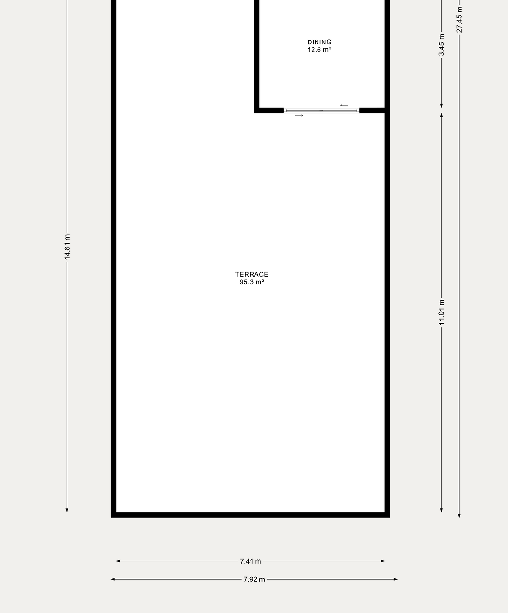
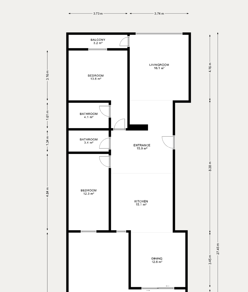
Completely renovated apartment with a large private terrace of 96 m2, in the center of Palma.

  • Type: Lägenhet
  • Rooms: 3, of which 2 bedrooms
  • Living area: 90 m2
  • Additional area: 99 m2
  • Tenure form: Äganderätt
  • Floor: 1 of 5
  • Elevator: Yes
Dream location in the heart of the city - where the pulse of the city meets the sea breeze. Welcome to a home that has it all - and then some. This fantastic apartment is perfectly located in the center, with a short walk to both the sea and the city's best selection of restaurants, cafes and shopping. The home has been completely renovated and has an interior living area of ​​approximately 90 m² with a fantastic private terrace of an additional approximately 96 m². The terrace is spacious and provides space for social events, dinners, barbecues and relaxation in the sun lounger. The home offers two bedrooms, two bathrooms, a living room with access to the balcony, an open kitchen and dining room. The floor plan is open and social with the kitchen and living room in fine harmony - a home where space and light create a very pleasant environment. The large, sunny terrace is an obvious gathering point, perfect for long dinners, socializing and relaxing during Mallorca's many hours of sunshine. Indoors and outdoors merge and create a generous feeling that extends far beyond the square meters. Foners is a vibrant and authentic area of ​​Palma that has become increasingly sought after in recent years. Here you live within walking distance of both the city center and the sea. while maintaining the local and genuine Mallorcan feel. In Foners, tradition and modern city life meet in a natural way. The proximity to the city center, communications, services and Palma's wide range of amenities make the location both practical and attractive - regardless of whether you are looking for permanent residence or a holiday home on the island. The location also offers walking distance to the beach and the sea, which is approximately 400 m away. Welcome to this cozy and beautiful apartment with a large private terrace - a cozy oasis in the middle of the city. Contact us for more information or to book a viewing!

About the property

Summary

Type: Lägenhet
Rooms: 3, of which 2 bedrooms
Living area: 90 m2
Additional area: 99 m2
Building area: 189 m2
Starting price: 649 000 EUR
Tenure form: Äganderätt
Floor: 1 av 5
Elevator: Yes

Heating

El - luftburen värme

Construction method

Water: Kommunalt vatten
Drain: Kommunalt avlopp

Plot/balcony/patio

Uteplats: Stor privat uteplats på baksidan, ca 96 m2.
Balkong: Balkong på framsidan med utgång från vardagsrummet, ca 3 m2.

General

Region: Mallorca
Municipality: Palma
Area: Foners

Economy

Starting price

649 000 EUR

Mortgage deed

There are 0 mortgages with a total of 0 SEK

Energy declaration

Status: Energideklaration pågår

All images

+ 26 Show all 32 images
 

Map and area

Enquiry form

Fill out the form and we'll be in touch shortly.

Contact details
Please enter first name
Please enter last name
Please enter phone number
Please enter email
500 characters left
Do you want to receive news and offers?

 

One moment!
Thank you!
You have not registered an email address. In order not to miss important mailings, you can enter it here.
 
 
 
Read our privacy policy
 
 
 

Similar properties for sale

Foners, Palma
Share property: Share on Facebook Share with email Share with sms Copy link Link is copied

Floor plan