Hoppa till innehåll
Palma

Penthouse with large terrace and sea view - great renovation potential.

  • Type: Lägenhet
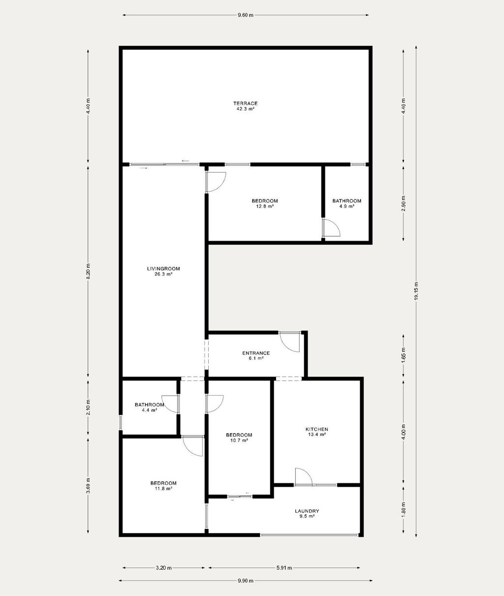
  • Rooms: 4, of which 3 bedrooms
  • Living area: 100 m2
  • Additional area: 44 m2
  • Operating cost: 1 500 EUR/year
  • Tenure form: Äganderätt
  • Floor: 6 of 7
  • Elevator: Yes
Penthouse with large terrace and sea view - great renovation potential, chance to create your dream home. Welcome to this sought-after penthouse with a generous terrace and magnificent sea view. Here you will get a home with fantastic lighting conditions, an airy feel and an outdoor environment that truly extends the home. The apartment is used and in need of renovation, which gives you the perfect opportunity to transform it into a modern and personal home completely based on your own wishes. With its open spaces and the large terrace, there are all the conditions to create a home with both style and function. The terrace is one of the great highlights of the home - ideal for relaxing in the sun, dinners with friends or just enjoying the view of the sea and the surrounding area. This is a home with charm, space and great potential - a rare opportunity for those looking for an ático with the right location and the perfect starting point for a tasteful renovation. A home to refine, transform and truly make your own.

About the property

Summary

Type: Lägenhet
Rooms: 4, of which 3 bedrooms
Living area: 100 m2
Additional area: 44 m2
Building area: 144 m2
Starting price: 749 000 EUR
Year of construction: 1975
Operating cost: 1 500 EUR/year
Tenure form: Äganderätt
Floor: 6 av 7
Elevator: Yes

Heating

El - luftburen värme

Construction method

Water: Kommunalt vatten
Drain: Kommunalt avlopp

Plot/balcony/patio

Terrass: Stor privat terrass med magisk utsikt över havet och hamnen.

General

Region: Mallorca
Municipality: Palma
Area: El Terreno

Parking

Det finns en trippel parkeringsplats att köpa i huset bredvid för 75.000 €

Economy

Starting price

749 000 EUR

Operating costs

1 500 EUR/year

Distributed as follows

Community: 1 500 EUR
Description: Kostnaden är inklusive vatten

Please note that the operating costs listed above are based on the seller's actual costs in the last year unless otherwise specified.
Which operating costs the buyer will have depends on how the home will be used, which subscriptions will be taken out and other circumstances in the individual case.

Mortgage deed

There are 0 mortgages with a total of 0 SEK

Energy declaration

Energy class: FF

All images

+ 36 Show all 42 images
 

Enquiry form

Fill out the form and we'll be in touch shortly.

Contact details
Please enter first name
Please enter last name
Please enter phone number
Please enter email
500 characters left
Do you want to receive news and offers?

 

One moment!
Thank you!
You have not registered an email address. In order not to miss important mailings, you can enter it here.
 
 
 
Read our privacy policy
 
 
 

Similar properties for sale

El Terreno, Palma
Share property: Share on Facebook Share with email Share with sms Copy link Link is copied

Floor plan