Hoppa till innehåll
 
Utgångspris: 
895 000 kr
Vad kostar boendet? Räkna på din månadskostnad
Christin Wahlman, Mäklare Svensk Fastighetsförmedling
Ansvarig mäklare
Christin Wahlman
Franchisetagare/Fastighetsmäklare/Certifierad nyproduktion
Maria Mattsson, Mäklare Svensk Fastighetsförmedling
Maria Mattsson
Mäklarkoordinator
Vad kostar boendet? Räkna på din månadskostnad
Västervik

Gertrudsvik Sjöstad

Utgångspris: 
895 000 kr
Vad kostar boendet? Räkna på din månadskostnad
Christin Wahlman, Mäklare Svensk Fastighetsförmedling
Ansvarig mäklare
Christin Wahlman
Franchisetagare/Fastighetsmäklare/Certifierad nyproduktion
Maria Mattsson, Mäklare Svensk Fastighetsförmedling
Maria Mattsson
Mäklarkoordinator
Vad kostar boendet? Räkna på din månadskostnad

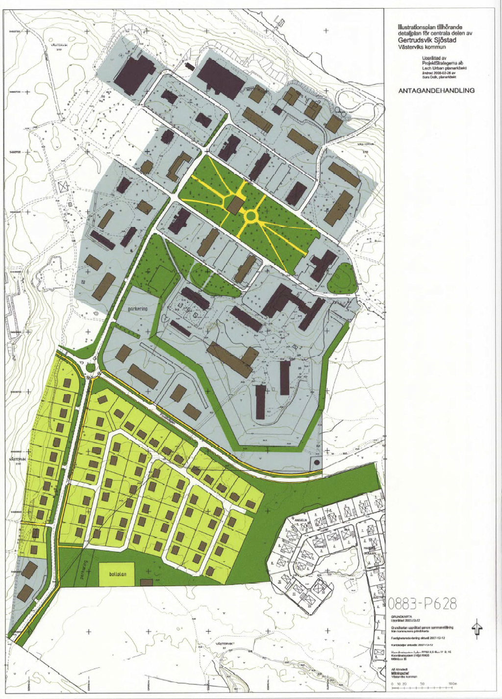
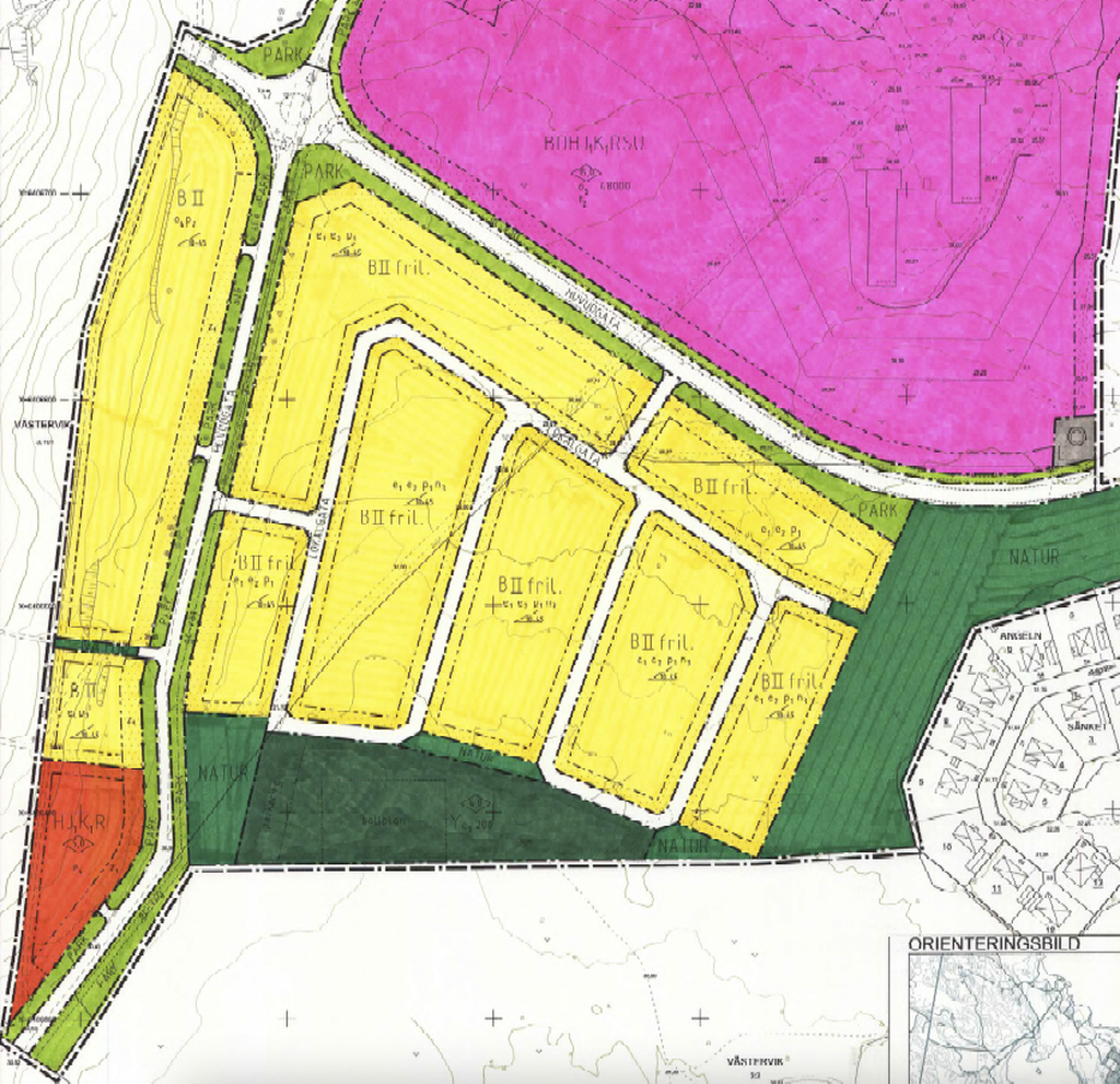
Naturskönt belägna tomter intill sjön Maren!

  • Typ: Tomt
  • Upplåtelseform: Äganderätt

Nu finns tillfälle att förvärva naturskönt belägna tomter intill sjön Maren med närhet till såväl sjö, havet och köpcentrum. Plana byggbara tomter där anslutningar för kommunalt VA, el och fiber ingår i tomtpriset. Tomterna är mellan ca 900-1320 kvm till ytan och vissa av dem med vy över sjön. Området är inte knutet till någon speciell husleverantör utan du väljer själv fritt mellan husleverantörer eller lösvirke.
Området intill Maren är vackert beläget med en sluttning ner mot sjön med vacker äppelträdgård. På sommaren erbjuds gott om fina ströv- och naturområden samt löparspår längs Maren och på vintern är det bara att snöra på sig skridskorna eller ge sig ut på längdskidorna. Precis nedanför äppelträdgården finns två olika fina grillplatser att nyttja. Vid det större tomtområdet kommer en aktivitetsyta anläggas för sport/fritid och här kommer även en pulkabacke att finnas.
Förutom närhet till natur så ligger Västerviks nya handelscentrum Ljungheden i närheten dit det är cykelavstånd. Här finns gott om butiker och området växer år för år.

Gertrudsvik sjöstad är ett ständigt växande område beläget längs med Gamlebyviken och här finns såväl badplats, båtplatser att hyra, utegym, restaurang, förskola, padelbana och jakt/fiskebutik. Från Gertrudsvik löper praktisk cykel och gångba utmed vattnet ända in till Västerviks stadskärna.

Se lediga och sålda tomter på tomtkartan: https://gertrudsvikmaren.se/
Pris 895 000kr.
Varmt välkommen att höra av er för att få veta mer om de nya tomterna vid Maren!

Om Tomten

Sammanfattning

Typ: Tomt
Utgångspris: 895 000 kr
Upplåtelseform: Äganderätt
Inflyttning: Enligt överenskommelse

Byggnadssätt

Vatten: Kommunalt till tomtgräns
Avlopp: Kommunalt till tomtgräns
Byggrätt: Fiber och el-anslutningar ingår i tomtpriset fram till tomtgräns.

Tomt/balkong/uteplats

En helt ny stadsdel i Västervik som omfattar 67 st friköpta tomter mellan ca 900-1550 kvm belägna intill sjön Maren. Välj fritt bland husleverantörer eller lösvirke.

Allmänt

Län: Kalmar
Kommun: Västervik
Område: Västervik
Fastighetsbeteckning: Gertrudsvik Sjöstad villatomt 895.000kr

Omgivning

https://www.gertrudsvik.se/
Gertrudsviks Sjöstad är en ny, spännande stadsdel i Västervik med havet och skogen inpå knuten. Här bor runt 1 000 personer i dagsläget i såväl bostadsrätter, parhus och villor med fantastisk utsikt över Gamlebyvikens strand. En gång- och cykelbana längs vattnet förbinder området med Västerviks stadskärna.

Gertrudsvik är också en blomstrande företagspark med flera stora arbetsgivare. Förskola, hemsjukvård, veterinärstation och restaurang är ett axplock av den service som finns på området.

Hela området är detaljplanelagt för permanentbostäder, vilket gör startsträckan kort för den som vill bygga hus. Alla boende har dessutom möjlighet att hyra en båtplats på de nybyggda pontonerna längs vattnet.
I dag bor en bred mix av äldre och yngre i området – allt från ungdomar och barnfamiljer till pensionärer.

I området finns dessutom fullutrustat utegym, badplats med sandstrand, flera fina grillplatser och otaliga skogsvägar att promenera på.

Planbestämmelser

Västervik 3:101,gertrudsvik Sjöstad Dp 2, Detaljplan (Beslutsdatum: 20080623, Registreringsdatum: 20080918)

Övrigt

Se lediga/sålda tomter på tomtkartan: https://gertrudsvikmaren.se/

-Första raden mot sjön Maren: 1 575 000kr ink anslutningsavgifter
-Första raden mot sjön Maren: 1 250 000kr ink anslutningsavgifter
-Andra raden mot sjön Maren: 1 050 000kr inkl. anslutningsavgifter
-Villatomt: 895 000kr inkl. anslutningsavgifter
-Villatomt: 750 000kr inkl. anslutningsavgifter
-Villatomt: 550 000kr inkl. anslutningsavgifter

Ekonomi

Utgångspris

895 000 kr

Driftkostnader

Kommentar: Kostnad för nybyggnadskarta fn 7780kr.

Fördelas enligt följande

Beskrivning: Du behöver inte betala någon fastighetsavgift de första 15 åren för nybyggda småhus som har värdeår 2012 och senare.

Observera att driftskostnaderna som anges ovan baseras på säljarens faktiska kostnader det senaste året om inget annat särskilt anges.
Vilka driftskostnader köparen kommer att ha beror på hur bostaden kommer att användas, vilka abonnemang som kommer att tecknas och övriga omständigheter i det enskilda fallet.

Taxering

Taxeringsår: 2021
Taxeringsvärdet är: Fastställt
Typkod: 210, Småhusenhet, tomtmark

Pantbrev

Det finns 0 pantbrev uttaget om sammanlagt 0 kr

Alla bilder

+ 20 Visa alla 26 bilder
 

Karta och område

Gertrudsvik Sjöstad, Västervik

Kalkyl

Vad kostar nya boendet?

Ansvarig mäklare erbjuder dig som ska köpa bostad en skriftlig beräkning av dina personliga boendekostnader. Kontakta mäklaren om du önskar en boendekostnadskalkyl.

Intresseformulär

Fyll i formuläret så kontaktar vi dig inom kort.

Kontaktuppgifter
Vänligen ange förnamn
Vänligen ange efternamn
Vänligen ange telefonnummer
Vänligen ange e-post
500 tecken kvar
Har du lånelöfte?*
Vill du ha hjälp med lånelöfte?
Vill du få nyheter och erbjudanden?

Oj, något gick fel! Försök igen. 

Ett ögonblick!
Tack, dina uppgifter är sparade!
Du fyllde inte i någon e-postadress. Ange den nedan för att inte missa någon information.
 
 
 
Ta del av vår integritetspolicy
 
 
 

Liknande bostäder till salu

Västervik, Västervik
Gertrudsvik Sjöstad
Dela bostad: Dela på Facebook Dela med epost Dela med sms Kopiera länk Länken kopierad

Planritning