Hoppa till innehåll
Såld 30 okt 2025
Slutpris
1 900 000 kr

Parkgatan 12D, Mjölby

Välskött radhus i barnvänligt område!

  • Typ: Radhus, Radhus i två plan
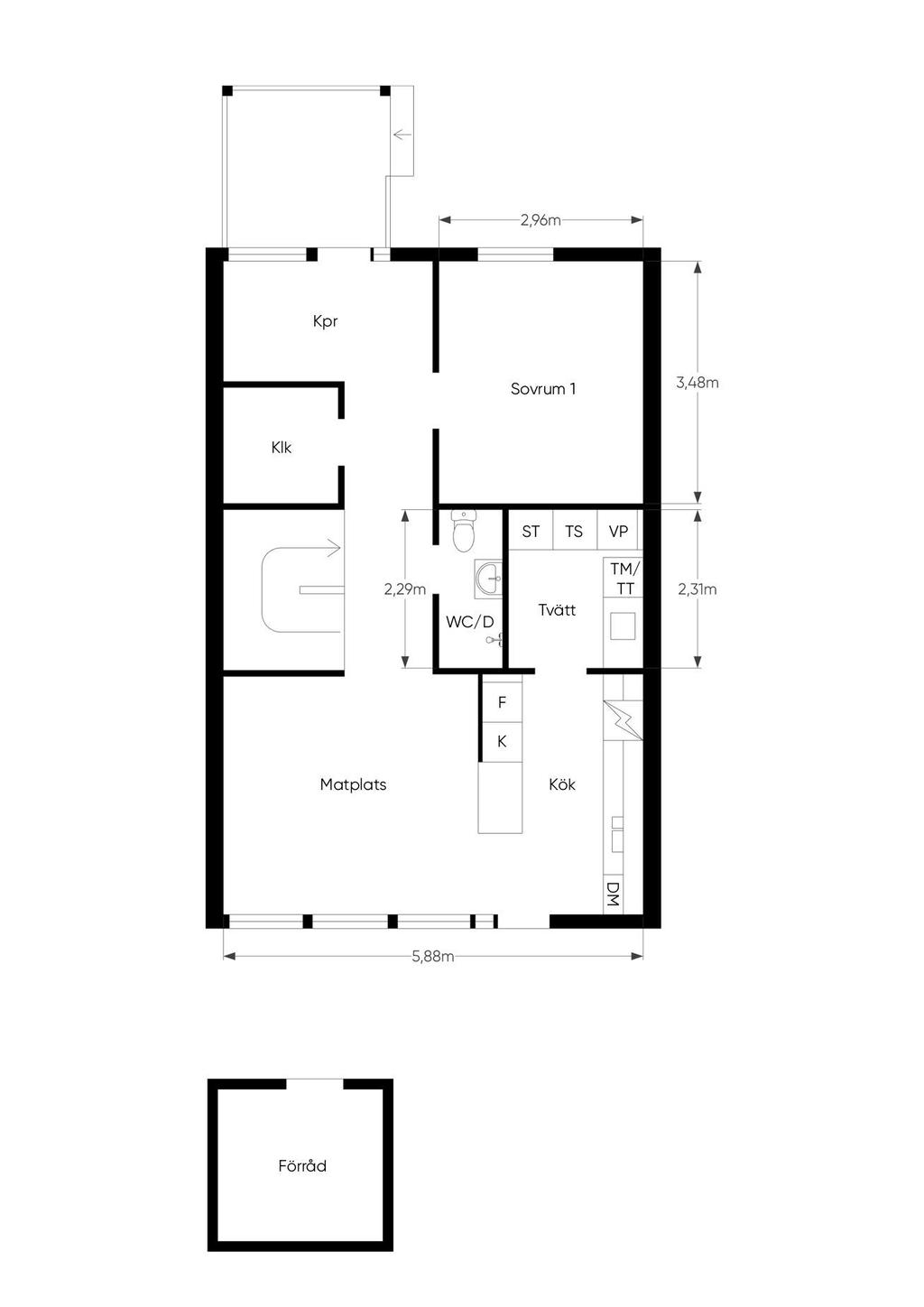
  • Rum: 5, varav 3 sovrum
  • Boarea: 109 m2
  • Tomtarea: 213 m2
  • Byggnadsår: 1977
  • Driftkostnad: 34 007 kr/år
  • Upplåtelseform: Äganderätt

Planritning

Karta och område

Parkgatan 12D, Mjölby

Trygg affär - Varudeklarerad Villa

Omdömen från kunder i Mjölby

2025-12-08
Professionella och smidiga! Vi fick vårt hus sålt innan visning. Papprena påskrivna en vecka efter att annonsen kom ut.
Ingrid B
2025-11-06
Snabb och bra återkoppling. Allt flöt på bra.
Bengt V
2025-10-15
Philip sålde min lägenhet till rekordpris på under 2 veckor. Transparant öppen dialog under hela försäljningen från start till mål som gav mig en stressfri upplevelse. Kan varmt rekommendera Svensk fastighetsförmedling och Philip ...
Martin Alsing W
2025-10-13
Trevlig bemötande vid genomgången av alla dokument
Barbara T
2025-09-20
Tryggt, vänligt och väldigt proffsigt! Bra förklarat och allt känns solklart
Nina J
2025-09-05
Bra bemötande. Snabb handläggning. Tydligt. Enkelt och trevligt
Mikaela H
2025-08-30
Kunnig och engagerad mäklare samt mycket trevlig. Levde verkligen upp till förväntningarna vi hade. Toppen.
Barbro S
2025-07-26
Allt har kännts bra, dock hade jag velat blivit av med huset fortare, men i dessa tider så blev det tydligt att det va svårare än väntat. Men Elin som mäklare är grym! Tack för all hjälp.
Andreas K
2025-07-23
Fick all hjälp vi behövde för att få vårat hus sålt. Bra bemötande av mäklaren.
Ann-Charlotte S
 
Steg 1/3 - Bostadsuppgifter
Steg 2/3 - Välj tid för mötet
Steg 3/3 - Kontaktuppgifter
Steg 4/4 - Slutför bokning
Steg 3/3 - Kontaktuppgifter

Boka tid med en mäklare för värdering

1. Fyll i dina bostadsuppgifter
2. Välj tid och mäklare i kalendern
3. Mäklaren ringer innan besöket

Boka tid med en mäklare som passar dig och din bostad

Så här går det till
1. Fyll i dina bostadsuppgifter
2. Välj tid och mäklare i kalendern
3. Mäklaren ringer innan besöket
Vi ringer dig för att boka en tid
Vi hittade inga lediga tider just nu. Fyll i dina kontaktuppgifter nedan så ringer vi upp för att boka in en passande tid.
Vi ringer dig för att en boka tid
Vi hittade inga lediga tider. Men det är inga problem, vi ringer upp för att hitta en passande tid.
Fyll i dina kontaktuppgifter
Dubbelkolla att uppgifterna stämmer så att mäklaren kan nå dig innan mötet.
Fyll i dina kontaktuppgifter
Vänligen fyll i dina uppgifter nedan så ringer vi upp dig för att boka en tid.
Mäklare:
Tid:

Hur kontaktar vi dig?

Oj, något gick fel. Försök gärna igen. 

En muntlig värdering är oftast gratis, men om du bor långt bort från vårt kontor kan en mindre avgift tillkomma. I så fall stämmer mäklaren av det med dig innan.

Vi tar en avgift för en skriftlig värdering för exempelvis bolån. Prata med din mäklare för att få ytterligare information om detta.

Du förbinder dig inte till någonting när du bokar en tid.

Hämtar tider...
Ett ögonblick!
Tack, dina uppgifter är sparade!
Lägg till gärna till epost för att inte missa något.

Liknande sålda bostäder

Liknande bostäder till salu