Hoppa till innehåll
Karlskoga

Storängstrand

Nyproducerad enplansvilla i Storängstrand

  • Bebyggelsetyp: Enplanshus
  • Rum: 3 - 4
  • Boarea: 90 m2
  • Antal bostäder: 9
  • Upplåtelseform: Äganderätt
  • Försäljningsstart: 2026-02-12

Nu finns möjlighet att förvärva en tomt med entreprenad för att bygga detta enplanshus om 90kvm. Huset kommer ursprungligen att vara 4 rum och kök men det går att påverka om man istället vill ha 3 rum och kök. Priserna kommer att variera mellan
3 395 000 - 3 595 000 sek (inklusive tomtpris). I priset ingår ett färdigställt hus med en inglasad altan om 16kvm samt ett förråd och carport, tomten kommer att vara grovplanerade men detta går att påverka. Anslutningsavgiften för vatten och avlopp kommer att vara betald. Anslutningsavgift för elnät tillkommer om 53 750 sek.

Vi förmedlar tomten och sedan upprättar man ett entreprenadavtal med EEK Förvaltning AB. Mäklaren förmedlar 9 tomter varav tomtpriserna varierar mellan 500 000 - 700 000 sek. Gå in via Bostadsväljaren för att se de aktuella tomterna.

KONTAKTA ANGELICA ELLER JOHANNA FÖR MER INFORMATION!

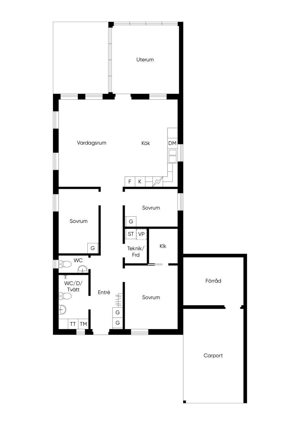
Rumsbeskrivning:
Hall:
Välkomnande hall med slitstarkt klinkergolv följt av ekparkett. Här finns garderober som ger goda förvaringsmöjligheter redan vid entrén.

Sovrum 1:
Rymligt sovrum med ekparkett och tillhörande klädkammare, vilket ger gott om plats för förvaring.

Duschrum / tvätt:
Helkaklat duschrum med klinkergolv. Utrustat med duschhörna, toalett och kommod. Här finns även tvättmaskin och torktumlare med praktisk bänkskiva ovanför, samt vask – ett funktionellt och välplanerat kombinerat bad- och tvättrum.

WC-rum:
Separat WC med klinkergolv, utrustat med toalett och kommod – perfekt för gäster och familjens vardag.

Förråd / teknikrum:
Förrådsrum med värmepump och städskåp som ger extra förvaringsutrymme och en praktisk teknisk lösning.

Sovrum 2:
Sovrum med ekparkett och garderob, lämpligt som barnrum, gästrum eller kontor.

Sovrum 3:
Ytterligare ett sovrum med ekparkett och garderob – flexibelt för olika behov.

Kök:
Modernt kök med ekparkett. Köket är utrustat med ugn och mikro i högskåp, köksfläkt, diskmaskin samt kyl och frys – allt för en funktionell och stilren köksmiljö.

Vardagsrum:
Ljust och öppet vardagsrum i direkt anslutning till köket, med ekparkett på golv. Här finns utgång till det inglasade uterummet, vilket skapar ett fantastiskt extra rum för umgänge stora delar av året.

Byggnadstyp: 1-plans fristående äganderätt
Byggnadsår: 2026
Fönster: 3-glas isolerglas
Ventilation: Mekanisk frånluftsventilation med återvinning
Uppvärmning: Vattenburen golvvärme, frånluftsvärmepump
Övrigt: Fristående kallförråd och carport. Uterum med inglasning vår/höst. Uteplats under tak med trädäck.

Om Fastigheten

Sammanfattning

Byggbolag: EEK Förvaltning AB
Rum: 3 - 4
Pris: 3 395 000 - 3 595 000 kr
Upplåtelseform: Äganderätt

Allmänt

Län: Örebro
Kommun: Karlskoga
Område: Storängstrand

Ekonomi

Pris

3 395 000 - 3 595 000 kr

Bostadsväljare

Alla bilder

Planritning

Karta och område

Storängstrand, Karlskoga

Kalkyl

Vad kostar nya boendet?

Fler värden

Här nedanför kan du ändra ränta, amortering och driftkostnader och se hur de påverkar kalkylen.

Återställ alla värden
Visa fler

Ränta

Amortering

Driftkostnad per månad

Driftkostnad/månad

Observera att driftskostnaderna som anges ovan baseras på säljarens faktiska kostnader det senaste året om inget annat särskilt anges.

Vilka driftskostnader köparen kommer att ha beror på hur bostaden kommer att användas, vilka abonnemang som kommer att tecknas och övriga omständigheter i det enskilda fallet.

Boendekostnad per månad

Ränta
+  kr
Driftkostnad
+  kr
Fastighetsskatt/-avgift *
+  
Skattereduktion
 kr
Summa
ca  kr
Amortering
+  kr
Inkl amortering
ca  kr
* Underlag för beräkning av fastighetsskatt/-avgift saknas och ingår därför inte i totalsumman.

Ansök om lånelöfte

Hos vårt systerbolag Ordna Bolån kan du enkelt ansöka om lånelöfte eller bolån. En ansökan, svar från flera banker.

Intresseformulär

Fyll i formuläret så kontaktar vi dig inom kort.

Kontaktuppgifter
Vänligen ange förnamn
Vänligen ange efternamn
Vänligen ange telefonnummer
Vänligen ange e-post
500 tecken kvar
Har du lånelöfte?*
Vill du ha hjälp med lånelöfte?
Vill du få nyheter och erbjudanden?

Oj, något gick fel! Försök igen. 

Ett ögonblick!
Tack, dina uppgifter är sparade!
Du fyllde inte i någon e-postadress. Ange den nedan för att inte missa någon information.
 
 
 
Ta del av vår integritetspolicy
 
 
 
Storängstrand, Karlskoga
Storängstrand
Dela bostad: Dela på Facebook Dela med epost Dela med sms Kopiera länk Länken kopierad

Planritning